Auf zwei Vollgeschossen findet die ganze Familie Platz, um sich zu entspannen und frei zu entfalten. Die bodentiefen Fensterelemente machen das Haus zu einem Wohnerlebnis und zeigen die Großzügigkeit dieser zeitlosen Stadtvilla.
Über die Diele vorbei an der Treppe, gelangen Sie in den Wohn-/Essbereich des Hauses, an den auch die offene Küche inkl. Abstellraum Anschluss findet. Von hier bieten die bodentiefen Fenster einen herrlichen Blick in den Garten. Ebenso im Erdgeschoss befinden sich ein Haustechnikraum, ein Büro und ein Gäste-WC.
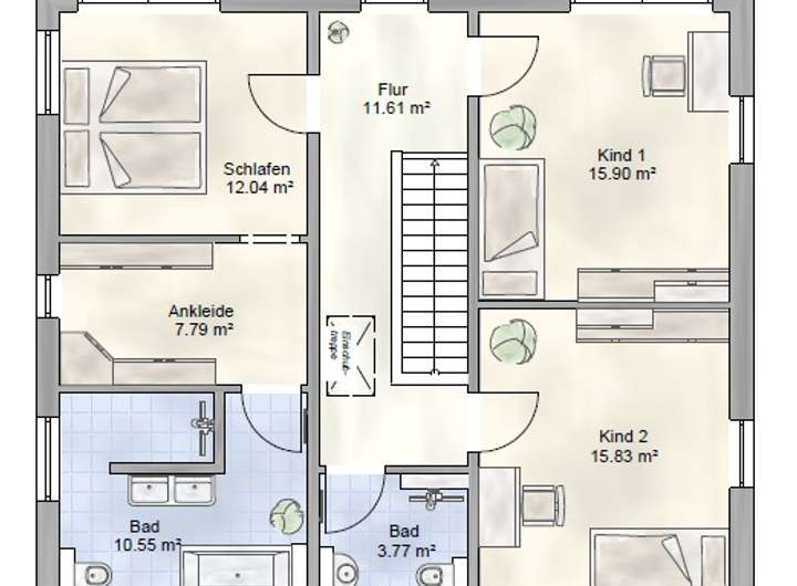
Im Obergeschoss befinden sich die großzügig gestalteten zwei Kinderzimmer. Das Elternschlafzimmer verfügt über eine angrenzende Ankleide und eigenes Bad. Für die Kinder befindet sich im Obergeschoss ein eigenes kleines Bad.
Das perfekte Eigenheim
56410 Montabaur
Die vollständige Adresse der Immobilie erhalten Sie vom Anbieter.
Auf Karte anzeigen
Die vollständige Adresse der Immobilie erhalten Sie vom Anbieter.
Finanzierungszertifikat
In nur zwei Minuten zu Ihrem persönlichen Finanzierungszertifkat.
Infos
| Etagenzahl | 2 |
|---|---|
| Wohnfläche ca. | 156 m2 |
| Grundstücksfläche | 580 m2 |
| Zimmer | 6 |
| Schlafzimmer | 3 |
| Badezimmer | 2 |
Kosten
| Kaufpreis |
508.360 € |
|---|---|
| Provision | Nein |
Finanzierungsrechner:
Kaufpreis:
600.000 €
Eigenkapital:
600.000 €
Monatliche Rate
0 €
Effektiver Jahreszins
0 %
Sollzinsbindung
10 Jahre
Bausubstanz & Energieausweis
| Baujahr | 2025 |
|---|---|
| Bauphase | Haus in Planung (projektiert) |
| Objektzustand | Erstbezug |
| Qualität der Austattung | Gehoben |
| Heizungsart | Wärmepumpe |
| Energieausweis | liegt zur Besichtigung vor |
Beschreibung des Objekts
Ausstattung
Das Angebot umfasst ein schlüsselfertiges KfW 55 Haus inklusiver folgender Ausstattung:
- Innen- und Außenwände massiv
- lichte Rohbauhöhe 2,75 m in allen Geschosse
- alle Fenster erhalten eine 3 Scheiben- Isolierverglasung
- elektrische Rollläden
- Luft-Wasser-Wärmepumpe inkl. Fußbodenheizung
Lage
Das Grundstück befindet sich in Montabaur Stadtteil Ettersdorf in einer ruhigen Lage.
Sonstige Angaben
Im Preis enthalten: schlüsselfertiges Haus gemäß Baubeschreibung mit o.g. Ausstattung incl. Grundstück zuzüglich Baunebenkosten.
Abbildungen enthalten Sonderausstattung.
Dies ist eine beispielhafte Projektierung. Unser Exposé soll Ihnen eine erste Antwort auf die wichtigsten Fragen geben. Allerdings kann Ihnen nur ein persönliches Gespräch die Informationen liefern, die Sie für so eine wichtige Entscheidung wie Ihren Hausbau benötigen.
Alle Informationen sind freibleibend. Irrtümer und Zwischenverkauf vorbehalten. Gewähr für die Richtigkeit der Angaben kann nicht übernommen werden.
Grundriss
Erdgeschoß
>
>
Obergeschoß
>
>
Adresse
56410 Montabaur
Interessante Orte
Preis- und Lageinformationen
Preistrend für Bestandsimmobilien in Montabaur