Zum Verkauf steht dieses schönes Grundstück in Hanglage in einer ruhigen Straßen nahe des Bahnhofes in Gemünden am Main.
Durch die Nähe zu den öffentlichen Verkehrsmitteln sind Sie jederzeit mobil und können so unter Anderem auch den Flughafen in Frankfurt am Main gut erreichen. Je nach Tageszeit und Auslastung der öffentlichen Verkehrsmittel erreichen Sie den Flughafen so in ca. 2 Stunden und das völlig stressfrei.
Die Vielzahl an Freizeitgestaltungsmöglichkeiten gepaart mit allerlei Einkaufsmöglichkeiten und verschiedenen Bildungsstätten, machen die Region am bayrischen Untermain so beliebt und besonders lebenswert.
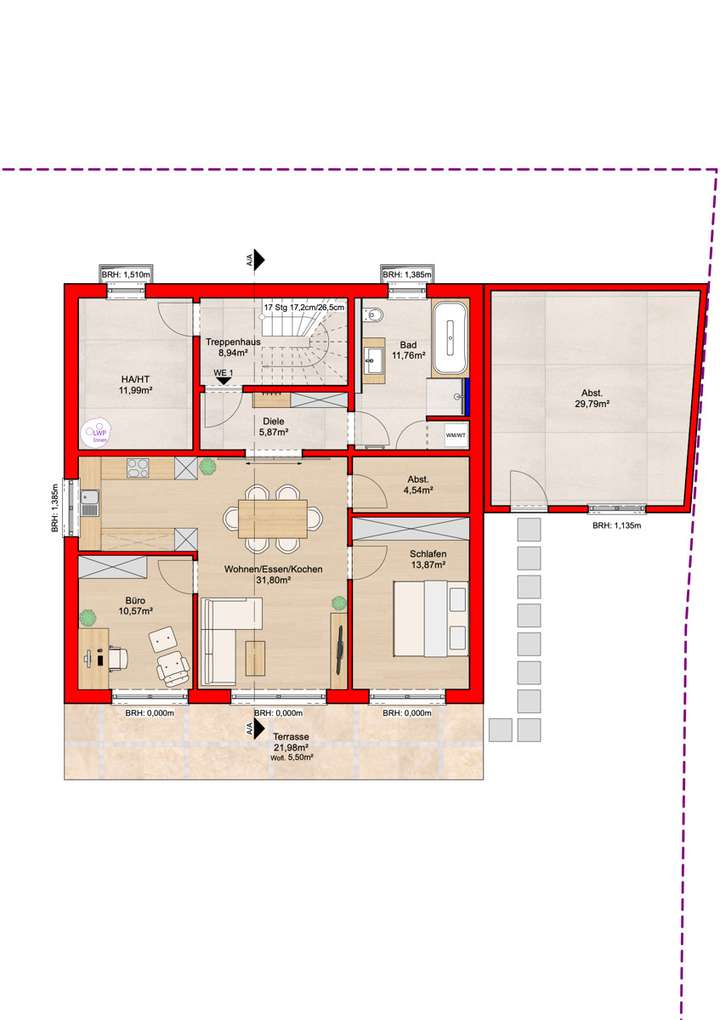
Das von uns auf dem Grundstück geplante Zweifamilienhaus steht im Einklang mit dem gültigen Bebauungsplan und könnte entsprechend der Renderings so genehmigt und auch gebaut werden.
Da wir Stand heute keine Bauvoranfrage bzw. einen sogenannten "Freisteller" beauftragt haben, empfehlen wir Ihnen entsprechend einen Beratungstermin zur detaillierten Planung Ihres Bauvorhabens.
Sprechen Sie uns gerne für eine detaillierte Beratung und/oder einen Besichtigungstermin vor Ort an.
Gerne stellen wir Ihnen die Region mit ihren Besonderheiten näher vor und begleiten Sie auf Wunsch auch über den reinen Kauf des Grundstückes hinaus.
Wir freuen uns Ihnen schon bald Ihre Fragen beantworten zu dürfen.
Baugrundstück mit "Musterplanung" für ein Zweifamilienhaus
97737 Gemünden am Main
Die vollständige Adresse der Immobilie erhalten Sie vom Anbieter.
Auf Karte anzeigen
Die vollständige Adresse der Immobilie erhalten Sie vom Anbieter.
Finanzierungszertifikat
In nur zwei Minuten zu Ihrem persönlichen Finanzierungszertifkat.
Infos
| Vermarktungsart | Kaufen |
|---|---|
| Grundstücksfläche | 671 m2 |
| Erschließung | Teilerschlossen |
| Empfohlene Nutzung | Einfamilienhaus, Mehrfamilienhaus |
| Grundflächenzahl (GRZ) | 0.4 |
| Geschossflächenzahl (GFZ) | 0.4 |
| Bebaubar nach | Bebauungsplan |
Kosten
| Miete pro Jahr |
74.350 € |
|---|---|
| Provision |
5.950€ inkl. MwSt. |
Finanzierungsrechner:
Kaufpreis:
600.000 €
Eigenkapital:
600.000 €
Monatliche Rate
0 €
Effektiver Jahreszins
0 %
Sollzinsbindung
10 Jahre
Beschreibung des Objekts
Lage
Entdecken Sie Ihr neues Zuhause in der malerischen Umgebung von Gemünden am Main, einem charmanten Ort, der eine harmonische Mischung aus beeindruckender Natur und modernem Wohnkomfort bietet. Umgeben von sanften Hügeln und weitläufigen Weinbergen, bietet diese Region nicht nur atemberaubende Ausblicke, sondern auch eine hohe Lebensqualität.
In unmittelbarer Nähe genießen Sie die Vorzüge einer hervorragenden Verkehrsanbindung sowie einer Vielzahl an Einkaufsmöglichkeiten, Freizeitangeboten und kulinarischen Highlights. Familien werden die Nähe zu renommierten Schulen und grünen Parks zu schätzen wissen, während Naturliebhaber die zahlreichen Wander- und Radwege in der Umgebung lieben werden.
Zögern Sie nicht, mehr über diese einmalige Gelegenheit zu erfahren! Vereinbaren Sie noch heute einen Besichtigungstermin und erleben Sie selbst die wunderbare Atmosphäre, die dieser Standort zu bieten hat.
Sonstige Angaben
GELDWÄSCHE: Als Immobilienmaklerunternehmen ist die SMI Social Media Immobilien UG (haftungsbeschränkt) nach § 2 Abs. 1 Nr. 14 und § 11 Abs. 1, 2 Geldwäschegesetz (GwG) dazu verpflichtet, bei der Begründung einer Geschäftsbeziehung die Identität des Vertragspartners festzustellen und zu überprüfen, bzw. sobald ein ernsthaftes Interesse an der Durchführung des Immobilienkaufvertrages besteht. Hierzu ist es erforderlich, dass wir nach § 11 Abs. 4 GwG die relevanten Daten Ihres Personalausweises festhalten (wenn Sie als natürliche Person handeln) – beispielsweise mittels einer Kopie. Bei einer juristischen Person benötigen wir eine Kopie des Handelsregisterauszugs, aus welchem der wirtschaftlich Berechtigte hervorgeht. Das Geldwäschegesetz sieht vor, dass der Makler die Kopien bzw. Unterlagen fünf Jahre aufbewahren muss. Als unser Vertragspartner haben Sie auch eine Mitwirkungspflicht nach § 11 Abs. 6 GwG.
UNSER SERVICE FÜR SIE ALS EIGENTÜMER:
Planen Sie den Verkauf oder die Vermietung Ihrer Immobilie, so ist es für Sie wichtig, deren Marktwert zu kennen. Gerne lassen wir den aktuellen Wert Ihrer Immobilie professionell durch einen unserer Immobilienspezialisten einschätzen. Unser bundesweites Netzwerk ermöglicht es uns, Verkäufer bzw. Vermieter und Interessenten bestmöglich zusammenzuführen.
Grundriss
Erdgeschoss
>
>
Untergeschoss
>
>
Dachgeschoss
>
>
Schnitt A-A
>
>
Freiflächenplan
>
>