95 Jahre STREIF-Jubiläumshaus FAMILY in der Größe L
Das behagliche Family-Haus mit Satteldach aus der Jubiläumsaktion punktet mit einem gut
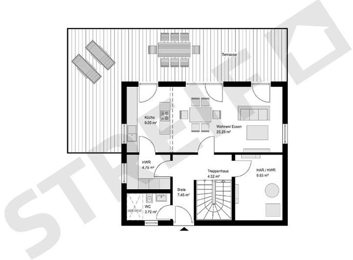
durchdachten Grundriss. Der offen gestaltete Wohn-/Ess- und Kochbereich ist
lichtdurchflutet. Ein praktischer Hauswirtschaftsraum ist direkt neben der Küche platziert.
Komplettiert wird das Raumangebot im Erdgeschoss mit einem Gäste-WC, das optional
auch als Duschbad ausgeführt werden kann, einer Diele und einem Haustechnikraum.
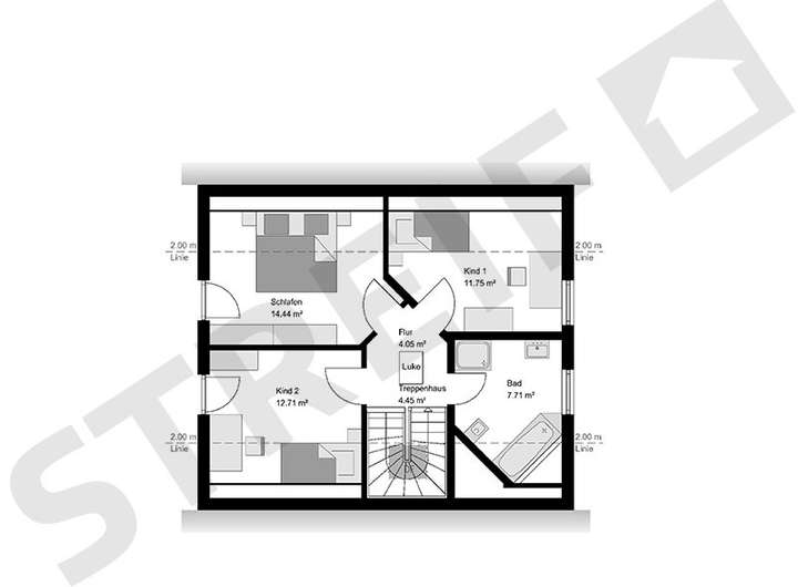
Im Dachgeschoss des Hauses sind zwei schöne Kinderzimmer, ein Elternschlafzimmer, ein
Flur und ein Familienbad untergebracht. Die Netto-Raumfläche beträgt 117,65 m².
Objektart: Einfamilienhaus, 1,5-geschossig
Dachform: Satteldach
Kniestock: 0,75 m
Hausmaße: 9,33 x 8,08 m
Netto-Raumfläche: 117,65 m²
95-Jahre STREIF-Jubiläumshaus Family in Größe L
Innerhalb eines Jahres ins Eigenheim? STREIF kann es!
08645 Bad Elster
Die vollständige Adresse der Immobilie erhalten Sie vom Anbieter.
Auf Karte anzeigen
Die vollständige Adresse der Immobilie erhalten Sie vom Anbieter.
Finanzierungszertifikat
In nur zwei Minuten zu Ihrem persönlichen Finanzierungszertifkat.
Infos
| Haustyp | Einfamilienhaus |
|---|---|
| Etagenzahl | 2 |
| Wohnfläche ca. | 118 m2 |
| Grundstücksfläche | 621 m2 |
| Bezugsfrei ab | 2025 |
| Zimmer | 4 |
| Schlafzimmer | 3 |
| Badezimmer | 1 |
Kosten
| Kaufpreis |
299.999 € |
|---|---|
| Provision | Nein |
Finanzierungsrechner:
Kaufpreis:
600.000 €
Eigenkapital:
600.000 €
Monatliche Rate
0 €
Effektiver Jahreszins
0 %
Sollzinsbindung
10 Jahre
Bausubstanz & Energieausweis
| Baujahr | unbekannt |
|---|---|
| Bauphase | Haus in Planung (projektiert) |
| Qualität der Austattung | Gehoben |
| Heizungsart | Wärmepumpe |
Beschreibung des Objekts
Ausstattung
Die Preise für die limitierten Jubiläumshäuser gelten beim Hauskauf bis zum 31.03.2024.
STREIF-Energiespar-Häuser sind für die Effizienzhaus-Klasse 40 ausgestattet. Gegen Aufpreis kann eine Ökobilanz erstellt werden, die bescheinigt, dass Ihr STREIF-Haus den neuen KfW-Förderrichtlinien in der Stufe KFWG für den Klimafreundlichen Neubau (KFN) entspricht. Für das Erfüllen der Voraussetzungen zur KfW-Förderung ist eine Photovoltaikanlage mit Batteriespeicher erforderlich.
Folgende STREIF-Leistungen sind im Jubiläums-Feierpreis enthalten -
bei Ausbaustufe FASTFERTIG+:
20-monatige Fair- und Festpreisgarantie
Inklusive gedämmter Fundamentplatte
Inklusive STREIF-Luft-Luft-Wärmepumpen-Technologie, mit integrierter Lüftungsanlage mit Wärmerückgewinnung
Inklusive hochwertiger Holzhaustür von KERA
Inklusive Fenster von Porta/Kömmerling, Fenster innen und außen in Weiß
Inklusive Massivholz-Geschosstreppe aus eigener Produktion (außer Bungalow)
Inklusive Sanitärobjekten von Markenherstellern in Bad/WC
Inklusive Elektroinstallation u.v.m.
Inklusive Vorbereitung zur Installation einer Photovoltaik-Anlage
Inklusive individueller Grundrissgestaltung und Raumaufteilung | Die Position der Bäder, die Größe der Haustechnikräume und der Treppen sind bei den Jubiläumshäusern nicht veränderbar.
Die STREIF-Passiv-Außenwand und eine sparsame Heiztechnik mit integrierter Wohnraumlüftung und Wärmerückgewinnung garantieren einen geringen Energieverbrauch und ein fantastisches Raumklima, das insbesondere Allergiker aufatmen lässt.
Die hohe Wertigkeit und Langlebigkeit eines STREIF-Energiespar-Hauses werden durch zahlreiche Auszeichnungen, Qualitäts- und Gütesiegel unabhängiger Institute und Verbände dokumentiert.
Der Angebotspreis ist exklusive Grundstück und bezieht sich auf die Standard-Ausbaustufe Fast-Fertig-Plus. Ihre Eigenleistungen: Spachtel-, Tapezier- und Malerarbeiten, Bodenbeläge, Innentüren.
Baunebenkosten fallen zuzüglich an. Der Verkauf des Grundstücks erfolgt über einen unserer Netzwerkpartner. Bilder können evtl. Anbauteile, Carports, Balkone, Gauben usw. zeigen, die nicht im Angebotspreis enthalten sind. Änderungen und Irrtümer vorbehalten. Fragen Sie Ihre persönliche STREIF-Bauberatung.
Lage
Obersohl gehört zur Gemeinde Bad Elster und liegt im Vogtlandkreis in Sachsen. Die Ortschaft befindet sich etwa 10 Kilometer südwestlich von Bad Elster und etwa 30 Kilometer südwestlich von Plauen.
Obersohl liegt in einer malerischen Landschaft, umgeben von sanften Hügeln, Wäldern und Feldern. Die Gegend ist vor allem für ihre natürliche Schönheit bekannt und lädt zu Spaziergängen, Wanderungen und Radtouren ein. Es gibt zahlreiche gut ausgeschilderte Wanderwege, die den Besuchern die Möglichkeit geben, die Umgebung zu erkunden.
Bad Elster, das nahe gelegene Kurortzentrum, bietet eine Reihe von Wellness-Einrichtungen und Aktivitäten zur Entspannung und Erholung. Hier finden Besucher Thermalbäder, Saunen und Kuranlagen, die verschiedene Formen von Therapien und Wellness-Anwendungen bieten. Es gibt auch ein breites kulturelles Angebot, wie Konzerte, Theateraufführungen und Ausstellungen.
Die Nähe zu anderen interessanten Städten und Sehenswürdigkeiten in der Region, wie Plauen mit seiner historischen Altstadt oder das UNESCO-Weltkulturerbe Göltzschtalbrücke, macht Obersohl zu einem idealen Ausgangspunkt, um die Umgebung zu erkunden.
Die Anreise nach Obersohl ist am besten mit dem Auto möglich, da die Ortschaft abseits größere Verkehrswege liegt. Es gibt jedoch auch die Möglichkeit, mit dem Zug bis nach Bad Elster zu fahren und von dort aus mit dem Bus oder Taxi nach Obersohl weiterzureisen.
Insgesamt ist Obersohl/Bad Elster ein ruhiger, idyllischer Ort inmitten einer schönen Natur, der sich ideal zum Entspannen, Erholen und Wandern eignet.
Sonstige Angaben
Sie brauchen einen kompetenten und verlässlichen Baupartner? Wir stehen Ihnen von Anfang an zur Seite und begleiten Sie auf dem Weg in Ihr Eigenheim.
Mit großem Engagement, Persönlichkeit und der Fachfirma STREIF mit immensen Bau-Know-how, die seit 1929 auf über 90.000 realisierte Wohnträume zurückblicken kann.
Jedes Haus von STREIF wird individuell als Energiesparhaus geplant und gebaut. Eine nachhaltige, ökologische und wohngesunde Bauweise, eine zertifizierte Ausführungsqualität und eine kurze Bauzeit, dafür stehen wir.
Gerne beraten wir Sie nach Vereinbarung im Beratungsbüro Dölau bei Greiz oder ganz unkompliziert bei Ihnen zu Hause und erstellen Ihnen ein Angebot mit einer realistisch ermittelten Aufstellung der Gesamt-Investition.
Wir freuen uns auf Ihren Anruf / Nachricht!
Ihr STREIF Fachberater
Nicole Bamberger
E-Mail: nicole.bamberger@streif.de
Mobil: 0151-10658277
Hinweis:
Vorverkauf und Irrtümer vorbehalten. Bilder können Sonderbauteile darstellen, die im Preis nicht enthalten sind und abweichend von textlichen Inhalten sein.
zzgl. Baunebenkosten.
Der Grundstückserwerb stellt keine STREIF Leistung dar.
Hinweis zu den gesetzlichen Pflichtangaben gemäß der EnEV 2016: Bei dem hier angebotenen Haus handelt es sich um ein Neubauprojekt.
Wir weisen darauf hin, dass zu diesem projektierten Haus noch kein Energieausweis vorliegt. Der Energieausweis wird Ihnen spätestens im Rahmen der Erstellung des Objektes ausgehändigt
Grundriss
Grundriss Erdgeschoss
>
>
Grundriss Obergeschoss
>
>
Adresse
08645 Bad Elster
Interessante Orte
Preis- und Lageinformationen
Preistrend für Bestandsimmobilien in Bad Elster