KFW 40 Aktion B95 Familiy-Line L inkl:
BITTE RUFEN SIE AN, BEVOR SIE EINE EMAIL SCHREIBEN - SIE ERREICHEN MICH UNTER 01775551351 - DANKE!
- Kaufpreis Grundstück enthalten
- Thermo Bodenplatte
- freier Grundrissgestaltung ohne Zusatzkosten!!
- wir haben mehrere hochmoderne Heizlösungen
- inkl. Bäder fertig + Elektro fertig + Treppe massiv
- Ausbaustufe Fast Fertig Plus - Schlüsselfertig Optional
- Festpreisgarantie 20 Monate bei kurzen Bauzeiten
Klein aber fein - Neubau Aktion von Streif
65307 Bad Schwalbach
Die vollständige Adresse der Immobilie erhalten Sie vom Anbieter.
Auf Karte anzeigen
Die vollständige Adresse der Immobilie erhalten Sie vom Anbieter.
Finanzierungszertifikat
In nur zwei Minuten zu Ihrem persönlichen Finanzierungszertifkat.
Infos
| Haustyp | Einfamilienhaus |
|---|---|
| Wohnfläche ca. | 121 m2 |
| Grundstücksfläche | 480 m2 |
| Zimmer | 5 |
| Schlafzimmer | 3 |
| Badezimmer | 1 |
Kosten
| Kaufpreis |
599.000 € |
|---|
Finanzierungsrechner:
Kaufpreis:
600.000 €
Eigenkapital:
600.000 €
Monatliche Rate
0 €
Effektiver Jahreszins
0 %
Sollzinsbindung
10 Jahre
Bausubstanz & Energieausweis
| Baujahr | 2026 |
|---|---|
| Bauphase | Haus in Planung (projektiert) |
| Qualität der Austattung | Gehoben |
| Heizungsart | Wärmepumpe |
Beschreibung des Objekts
Ausstattung
Warum Streif:
- Wir sind seit über 95 Jahre am Markt
- Wir bauen individuelle Architektenhäuser
- Wir setzen den massiven Fertigbau um + bester Schallschutz
- Wir sind Energiespar-Spezialisten, auch Passivhaus möglich
- Wir können schnell, wenn Sie schnell sind
- Wir begleiten persönlich bis zur Hausübergabe
Lage
Wenn Sie noch kein Grundstück haben - gerne melden. Meine Bauherren haben im Regelfall alle meinen Service genutzt und sind nun stolze Hausbesitzer.
Sonstige Angaben
zuzüglich Erwerbs + üblicher Baunebenkosten.
Fördermittel sind verfügbar - sprechen Sie uns an.
Hausgröße und Raumaufteilung nach Ihren Wünschen
Bilder können evtl. Anbauteile, Carports, Balkone, Gauben usw. zeigen, die nicht im Angebotspreis enthalten sind.
Vorverkauf und Irrtümer sind vorbehalten
Der Verkauf des Grundstücks erfolgt über einen unserer
Netzwerkpartner, von Privat oder einem Vermittler - daher sind Kosten wie Provisionen etc. möglich.
Angaben zum Grundstück können nur im persönlichen Gespräch übermittelt werden
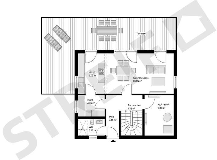
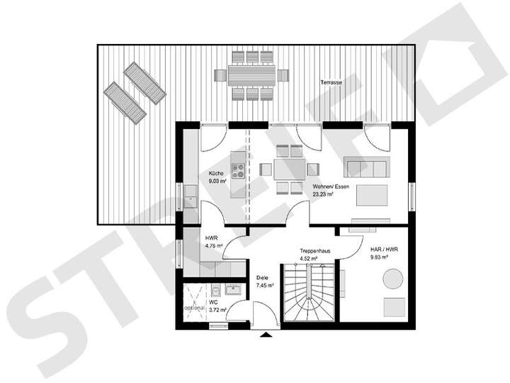
Grundriss
Grundriss EG
>
>
Grundriss OG
>
>
Adresse
65307 Bad Schwalbach
Interessante Orte
Preis- und Lageinformationen
Preistrend für Bestandsimmobilien in Bad Schwalbach