Auf diesem Grundstück ist eine Doppelhaushälfte geplant.
Hinweis: Alle Illustrationen sind unverbindlich!
Doppelhaushälfte
55232 Alzey
Die vollständige Adresse der Immobilie erhalten Sie vom Anbieter.
Auf Karte anzeigen
Die vollständige Adresse der Immobilie erhalten Sie vom Anbieter.
Finanzierungszertifikat
In nur zwei Minuten zu Ihrem persönlichen Finanzierungszertifkat.
Infos
| Haustyp | Doppelhaushaelfte |
|---|---|
| Wohnfläche ca. | 127 m2 |
| Grundstücksfläche | 458 m2 |
| Bezugsfrei ab | Ende 2025 |
| Zimmer | 5 |
Kosten
| Kaufpreis |
614.000 € |
|---|---|
| Provision | Nein |
Finanzierungsrechner:
Kaufpreis:
600.000 €
Eigenkapital:
600.000 €
Monatliche Rate
0 €
Effektiver Jahreszins
0 %
Sollzinsbindung
10 Jahre
Bausubstanz & Energieausweis
| Baujahr | 2025 |
|---|---|
| Bauphase | Haus fertig gestellt |
| Objektzustand | Erstbezug |
| Qualität der Austattung | Gehoben |
| Heizungsart | Fußbodenheizung |
| Energieausweis | laut Gesetz nicht erforderlich |
Beschreibung des Objekts
Ausstattung
Eine Neubau-Doppelhaushälfte in Alzey, insbesondere in einer beliebten Wohnlage wie einem Südhang, klingt nach einer attraktiven Immobilie. Hier sind einige typische Merkmale und Vorteile einer solchen Immobilie:
Eine Südhanglage bedeutet in der Regel, dass die Immobilie den ganzen Tag über viel Sonnenlicht erhält. Das sorgt für helle, freundliche Räume und kann auch energetische Vorteile bringen.
In einer bevorzugten Wohnlage sind oft gute Anbindungen an die Infrastruktur, wie Schulen, Einkaufsmöglichkeiten und öffentliche Verkehrsmittel, gegeben.
Auszug aus der Bau- und Leistungsbeschreibung
• Komplette Planung bis Genehmigungsplanung inklusive
• Tragwerksplanung (Statik) inklusive
• Wärmeschutznachweis, Energieausweis inklusive
• Umplanungen nach Ihren Wünschen inklusive
• Erstellung von Finanzierungsunterlagen inklusive
• Gewährleistungsgarantie 5 Jahre
• 12-monatige Bauzeitgarantie ab Baubeginn
• Sämtliche Innenwände in massiver Bauausführung
• Massive Geschossdecken in Stahlbeton gegossen
• Hochwertiger Innenausbau mit Markenfabrikaten
• Hochwertige Ausstattung für Bad und Gäste WC
• Zwei Stellplätze sind im Kaufpreis enthalten
Nicht enthalten sind:
• Die Bodenbeläge außerhalb des Bades/G-WC sowie die kompletten Malerarbeiten sind Bauherrenleistung
• Hausanschlusskosten in Höhe von ca. 12.000,00-15.000,00 Euro
Laut Stellplatzverordnung ist die Errichtung zweier Stellplätze pro Haus notwendig. Für einen Aufpreis 15.000,00 Euro kann eine Garagen hinzugekauft werden.
Lage
Perfekte Ausrichtung für maximale Sonneneinstrahlung und helle, freundliche Wohnräume.
Bietet eine hervorragende Aussicht.
Gelegen in einem der begehrtesten Wohngebiete von Alzey mit hoher Lebensqualität.
Genug Platz für Familien.
In der direkten Umgebung finden Sie alle Annehmlichkeiten des täglichen Lebens. Einkaufsmöglichkeiten, Schulen, Kindergärten, Krankenhaus und Freizeiteinrichtungen sind bequem erreichbar. Die gute Verkehrsanbindung ermöglicht schnelle Wege nach Mainz, Wiesbaden und Frankfurt.
Dieses Wohnbaugrundstück bietet Ihnen die einmalige Gelegenheit, in einer der besten Lagen von Alzey Ihr Traumhaus zu verwirklichen. Die Kombination aus Südlage, Hanglage und der hervorragenden Nachbarschaft macht dieses Angebot besonders attraktiv.
Für weitere Informationen oder eine Besichtigung stehen wir Ihnen gerne zur Verfügung. Zögern Sie nicht, uns zu kontaktieren und sich dieses einzigartige Grundstück persönlich anzusehen.
Sonstige Angaben
Anfragen können nur bearbeitet werden, mit einer vollständigen schriftlichen Anfrage und Telefonnummer.
Wenn Sie Fragen zum Thema Finanzierung haben, können Sie sich vertrauensvoll an mein Büro in Alzey 06731-499413 wenden..
Die Ansiedlung eines großen Unternehmens wie Eli Lilly, das etwa 1000 neue Arbeitsplätze in der Region um Alzey schafft, kann erhebliche Auswirkungen auf den lokalen Immobilienmarkt haben. Hier sind einige potenzielle Effekte:
Die neuen Arbeitsplätze ziehen möglicherweise neue Bewohner an, was die Nachfrage nach Wohnraum erhöht.
Mit steigender Nachfrage könnten auch die Mietpreise steigen, insbesondere in begehrten Lagen und für moderne Wohnungen.
Höhere Nachfrage kann auch die Kaufpreise für Immobilien in die Höhe treiben. Dies betrifft sowohl Wohnimmobilien als auch Grundstücke.
Investoren könnten verstärkt Interesse an der Region zeigen, was zusätzlich die Preise anhebt.
Um der erhöhten Nachfrage gerecht zu werden, könnte es zu vermehrten Neubautätigkeiten kommen.
Die Demografie der Region könnte sich ändern, was sich auf die Art der nachgefragten Immobilien auswirkt.
Spekulative Investitionen könnten die Preise kurzfristig stark ansteigen lassen, was langfristig zu einer Blase führen könnte.
.
Wir suchen dringend im Kundenauftrag:
- Einfamilienhäuser
- Doppel- bzw. Reihenhäuser
- Baugrundstücke
im gesamten Rhein-Main-Gebiet
Bitte rufen Sie uns unverbindlich an.
Vielen Dank!
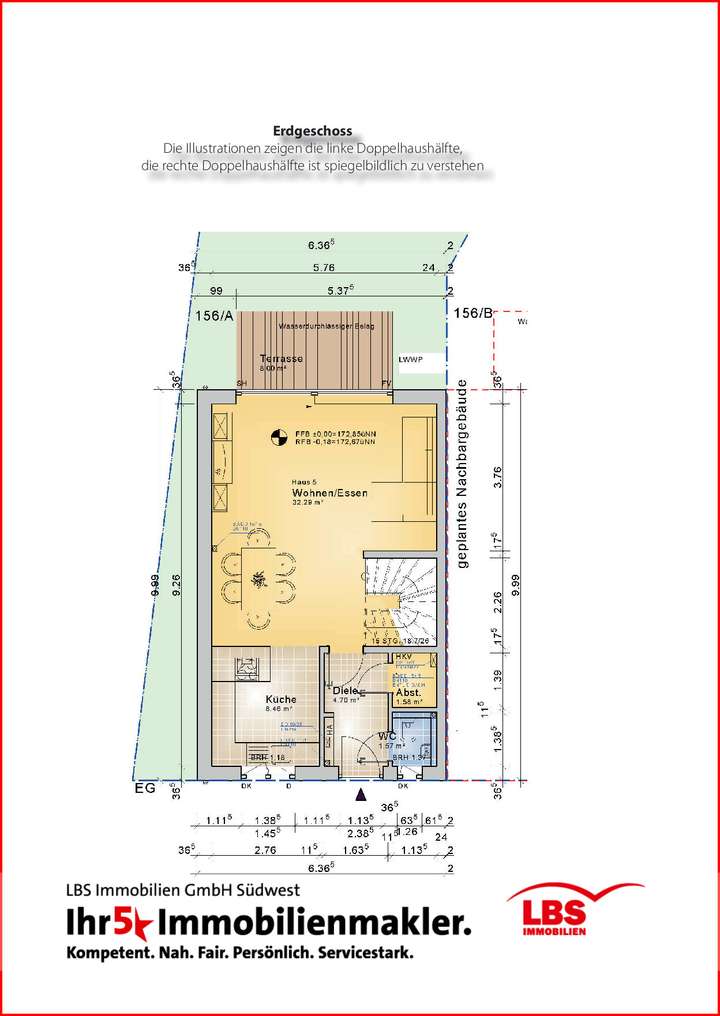
Grundriss
Plan EG DHH links
>
>
Plan OG DHH links
>
>
Plan DG DHH links
>
>
Adresse
55232 Alzey
Interessante Orte
Preis- und Lageinformationen
Preistrend für Bestandsimmobilien in Alzey