Ein perfektes Zuhause für die ganze Familie: Twin XL als Reihenmittelhaus steht für Freiraum und Wohnkomfort auf drei Ebenen - große Fenster verwandeln den Innenraum in ein helles Zuhause.
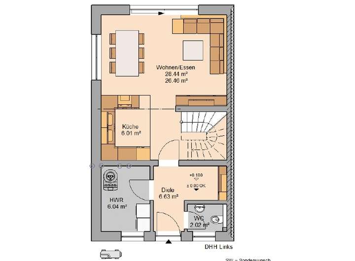
Im Erdgeschoss befinden sich neben Küche und Wohn-Esszimmer auch ein Gäste-WC, der Hauswirtschaftsraum und eine praktische Garderobe.
Das Obergeschoss beherbergt entweder ein großes Elternschlafzimmer mit Ankleide und ein Kinderzimmer (Variante links) oder drei Kinderzimmer (Variante rechts). Das Highlight ist ein großes Badezimmer für die ganze Familie.
Im Dachgeschoss befinden sich zwei weitere Räume wie z.B. ein Kinderzimmer und ein Studio. Die zweite Variante beinhaltet ein großes Elternschlafzimmer mit Ankleide und ein Studio. Ein zusätzliches Duschbad im Dachgeschoss ist auf Wunsch erhältlich.
Die Individualität spiegelt sich auch im Äußeren wider: Wählen Sie zwischen einer klassisch anmutenden oder einer modernen Variante oder entscheiden Sie selbst über Farben und Materialien der Fassade!
Dieses Haus wird nach Ihren individuellen Wünschen geplant und ausgestattet!
Freiraum und Wohnkomfort für die ganze Familie!
64291 Darmstadt
Die vollständige Adresse der Immobilie erhalten Sie vom Anbieter.
Auf Karte anzeigen
Die vollständige Adresse der Immobilie erhalten Sie vom Anbieter.
Finanzierungszertifikat
In nur zwei Minuten zu Ihrem persönlichen Finanzierungszertifkat.
Infos
| Haustyp | Doppelhaushaelfte |
|---|---|
| Wohnfläche ca. | 132 m2 |
| Grundstücksfläche | 210 m2 |
| Zimmer | 5 |
| Schlafzimmer | 4 |
| Badezimmer | 1 |
| Anzahl Garage/Stellplatz | 2 |
Kosten
| Kaufpreis |
756.400 € |
|---|---|
| Provision | Nein |
Finanzierungsrechner:
Kaufpreis:
600.000 €
Eigenkapital:
600.000 €
Monatliche Rate
0 €
Effektiver Jahreszins
0 %
Sollzinsbindung
10 Jahre
Bausubstanz & Energieausweis
| Baujahr | 2025 |
|---|---|
| Bauphase | Haus in Planung (projektiert) |
| Objektzustand | Erstbezug |
| Qualität der Austattung | Gehoben |
| Heizungsart | Wärmepumpe |
| Wesentliche Energieträger | Strom |
| Energieausweis | liegt vor |
| Energieausweistyp | Bedarfsausweis |
| Energieverbrauchskennwert | 17,4 kWh/(m²*a) |
| Energieeffizienzklasse | A+ |
17,4
kWh/(m²*a)
Energieeffizienzklasse A+
- A+
- A
- B
- C
- D
- E
- F
- G
- H
- 0
- 25
- 50
- 75
- 100
- 125
- 150
- 175
- 200
- 225
- >250
Beschreibung des Objekts
Ausstattung
5 Zimmer, Küche, Diele, WC, 2 x Flur, Bad, Hauswirtschaftsraum, Garderobe, Ankleide
Das gezeigte Traumhaus im Überblick:
+ Schlüsselfertiges Massivhaus im Sinne der Ausstattungsbeschreibung "Edition 24"
+ Energieeffizienzklasse A+
+ Inklusive Bodenplatte
Beste Markenausstattung in jedem Kern-Haus:
+ Zimmermannsmäßiger Dachstuhl aus Konstruktionsvollholz
+ Dacheindeckung mit Betondachsteinen von Braas
+ Hochwertiger Kunstharz-Außenputz für eine langlebige Fassade
+ Vollständige Badausstattung von Villeroy & Boch mit Badewanne und flacher Duschwanne sowie einer Echtglasduschkabine
+ Fliesen von Villeroy & Boch in Bad und WC
+ Haustür mit 5-fach-Sicherheitsverriegelung
+ Erstklassige Innentüren der Marke Herholz
+ Fenster mit 3-Scheiben-Wärmeschutzverglasung und Rollläden
+ Stahl-Holz-Treppe mit individueller Farbgestaltungsmöglichkeit
+ Vollständige und überdurchschnittliche Elektroausstattung inklusive Klingelanlage
+ Rauchmelder für Ihre Sicherheit
+ Alle Leistungen aus einer Hand
+ Alle Planungs- und Architektenleistungen
+ Einsatz regionaler Handwerksbetriebe
+ Baubegleitende 5-Phasen-TÜV-Prüfung und Blower-Door-Test
+ Individuelle Anpassung auf Ihre Bedürfnisse
+ Auf Wunsch mit Keller erhältlich
+ Auf Wunsch mit weiteren Energietechniken erhältlich
Lage
Das Baugrundstück befindet sich in zentraler Lage von Arheilgen, einem Stadtteil im Norden der Großstadt Darmstadt.
Arheilgen verfügt über eine gute Anbindung an den öffentlichen Personennahverkehr (ÖPNV) und ist mit dem Bahnhof Darmstadt-Arheilgen an die S-Bahn-Strecke S3 von Darmstadt über Frankfurt am Main nach Bad Soden am Taunus angeschlossen. Darüber hinaus gibt es vielfältige Anbindungen an das Darmstädter Nahverkehrsnetz. Mit der direkten Anbindung an zwei Autobahnen, Regionalzügen und S-Bahnen, sowie mehreren IC- und ICE-Verbindungen lassen sich von Darmstadt aus auch hervorragend Ziele außerhalb der Region erreichen.
Im Ort gibt es zwei Grundschulen und eine Gesamtschule, weiterführende Schulen wie Gymnasien, Berufs- und Hochschulen sowie die Universität befinden sich in Darmstadt.
Die Stadt verfügt flächendeckend über eine gute Infrastruktur, zahlreiche Kultur- und Freizeitangebote und gute Naherholungsmöglichkeiten.
Sonstige Angaben
Kern-Haus baut individuelle und massive Architektenhäuser zu einem attraktiven Preis-Leistungs-Verhältnis – und das bereits mit einer Erfahrung seit 1980. Bei Kern-Haus erhalten Sie unter anderem 10 Jahre Gewährleistung auf die wesentlichen Bauleistungen, bis zu 24 Monate Preissicherheit sowie eine dokumentierte 5-Phasen-TÜV-Prüfung während der Bauphase. Jedes Kern-Haus als Effizienzhaus 40 ist bereits QNG-zertifiziert durch die Deutsche Gesellschaft für nachhaltiges Bauen (DGNB).
40 Jahre Expertise für das massive, energieeffiziente Bauen: Kern-Haus realisiert Massivhäuser in Ziegel, Bims, Porenbeton oder Stahlbeton (DuoTherm).
Kern-Haus setzt auf eine hohe Bauqualität der Handwerker und auf eine große Auswahl starker Marken. So verwendet Kern-Haus beim Bau Ihres Hauses nur hochwertige Markenprodukte renommierter Hersteller – wie etwa Produkte von Villeroy & Boch.
Preise und Auszeichnungen von Kern-Haus:
- German Brand Award in den Jahren 2018 und 2021
- Hausbau Design Award: Sieger in den Jahren 2017, 2018, 2019, 2020, 2021, 2022 und 2023
- Deutscher Traumhauspreis: Sieger in den Jahren 2014, 2015, 2016 und 2018 und Silber 2017, 2020 und 2021
- Mittelstandspreis "Top 100" in den Jahren 2014, 2016, 2018, 2020 und 2022
- German Design Award im Jahr 2018
Weitere Informationen
Der gezeigte Preis versteht sich inklusive Grundstück sowie inklusive der Baunebenkosten und bezieht sich auf die Variante eines Reihenmittelhauses.
Das Kern-Haus-Team in Hessen freut sich darauf Ihre Fragen zu beantworten. Jetzt anrufen: +49 2623 884-488.
Grundriss
Grundriss Erdgeschoss
>
>
Grundriss Obergeschoss
>
>
Grundriss Dachgeschoss
>
>
Adresse
64291 Darmstadt
Interessante Orte
Preis- und Lageinformationen
Preistrend für Bestandsimmobilien in Arheilgen