* Ursprünglich 1919-1921 auf historischen Kellerfundamenten errichtet, wurde das ehemalige Kelterhaus 1972 erstmals zu Wohnraum umgebaut und in den Jahren 1994 und 2016/17 umfassend saniert und modernisiert
* Teil eines ehemaligen Oppenheimer Weingutes im Zentrum der historischen Altstadt in Hanglage mit einem unvergleichlichem Fernblick in die Rheinebene und den Odenwald
* Im Moment als Zweifamilienhaus genutzt, sind auch Ideen des Mehrgenerationenwohnens oder der Kombination aus Wohnen und Arbeiten möglich
* großzügige Raumaufteilung mit ca. 205 m² Wohnfläche auf jeder Etage. Ein externer Pavillon bietet ca. 20 m² zusätzliche Fläche
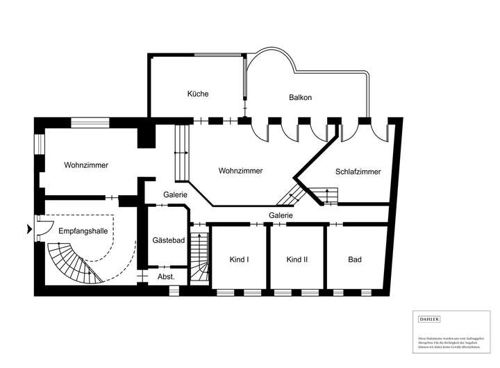
* Die Wohnung im Erdgeschoss verfügt über zwei Wohnzimmer, drei Schlafzimmer, eine große Wohnküche, eine Terrasse mit Fernblick, zwei Bäder sowie ein Gästezimmer und ein Saunabad im Keller
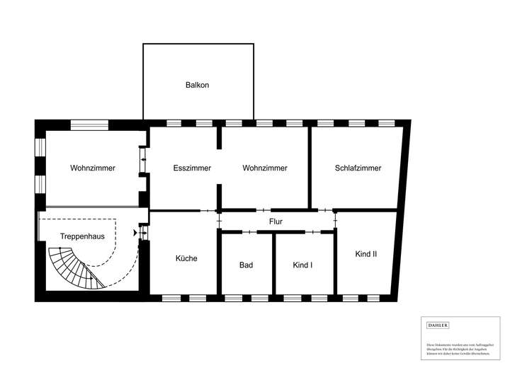
* Das Obergeschoss erreicht man durch die repräsentative Eingangshalle über die breite Marmortreppe. Die Wohnung im Obergeschoss verfügt gleichfalls über zwei Wohnzimmer, ein Esszimmer mit Zugang zur ca. 30 m² großen Terrasse, drei Schlafzimmer, eine große Küche und ein großzügiges Tageslichtbad
* Das Dachgeschoss bietet einen großen Speicherraum mit Einbauschränken. Als Nutzfläche stehen eine Kellerfläche mit ca. 50 m², ein Tiefkeller mit rund 107m², ein Hauskeller mit rund 67 m² und ein Dachboden mit ca. 213 m² zur Verfügung.
* Beide Etagen verfügen über große, nach Südosten ausgerichtete Terrassen. Das terrassierte Grundstück mit Hof und pflegeleichter Steingartenanlage mit Grillkamin und fester Sitzgruppe sowie die drei im Nachbarhof vorhandenen Stellplätze für PKW runden das Angebot ab
Repräsentatives Wohnen im Herzen von Rheinhessen
55276 Oppenheim
Die vollständige Adresse der Immobilie erhalten Sie vom Anbieter.
Auf Karte anzeigen
Die vollständige Adresse der Immobilie erhalten Sie vom Anbieter.
Finanzierungszertifikat
In nur zwei Minuten zu Ihrem persönlichen Finanzierungszertifkat.
Infos
| Haustyp | Mehrfamilienhaus |
|---|---|
| Etagenzahl | 2 |
| Wohnfläche ca. | 409 m2 |
| Nutzfläche | 461 m2 |
| Grundstücksfläche | 730 m2 |
| Zimmer | 11 |
| Schlafzimmer | 6 |
| Badezimmer | 3 |
| Garage/Stellplatz | Außenstellplatz |
| Anzahl Garage/Stellplatz | 3 |
Kosten
| Kaufpreis |
1.490.000 € |
|---|---|
| Provision |
2,975 % bezogen auf den Kaufpreis |
Finanzierungsrechner:
Kaufpreis:
600.000 €
Eigenkapital:
600.000 €
Monatliche Rate
0 €
Effektiver Jahreszins
0 %
Sollzinsbindung
10 Jahre
Bausubstanz & Energieausweis
| Baujahr | 1972 |
|---|---|
| Objektzustand | Modernisiert |
| Heizungsart | Zentralheizung |
| Wesentliche Energieträger | Öl |
| Energieausweis | laut Gesetz nicht erforderlich |
Beschreibung des Objekts
Ausstattung
* Fussbodenheizung im Erdgeschoss, Marmorböden im Obergeschoss
* Holz- und Kunststofffenster, überwiegend mit Isolierverglasung, teilweise mit Bleiverglasung
* Zimmertüren als handgefertigte Echtholztüren in profilierten Holzzargen
* Neben der Vielzahl an Massivholz-Einbauschränken aus Kirschbaum und Eiche sind die einzigartigen Majolika-Wandbilder ein weiteres Highlight
*Massivbauweise mit ca. 60 cm starken Außenwänden im Erdgeschoss und ca. 35 cm im Obergeschoss
* Der großzügige Hof ist mit Travertin belegt, die eindrucksvolle Hofeingangstür aus massiver Eiche gearbeitet
* Umfassende Innen- und Außensanierung in den Jahren 2016-2017: Heizung. Terrassen, Fassade, zwei Bäder, Wohnräume sowie Küche im Obergeschoss
* sehr guter Erhaltungszustand
* 2017 wurde eine moderne Ölbrennwertheizung mit Hocheffizienzpumpen eingebaut. Dadurch Verbrauchsreduktion an Heizöl um ca. 25-20 % erreicht
Lage
*Oppenheim liegt auf halber Strecke zwischen Mainz und Worms verkehrsgünstig am Rhein und zentral im Rhein-Main-Gebiet
*Ausgezeichnete Infrastruktur und Grundversorgung, verschiedene Kindergärten und Schultypen von der Grundschule über Realschule+, IGS, Förderschule bis hin zum Gymnasium und Volkshochschule
*Einzigartig ist das Oppenheimer Kellerlabyrinth, die Stadt unter der Stadt
*Die weithin bekannte gotische Katharinenkirche, die Burgruine "Landskron", das deutsche Weinbaumuseum und der historische Stadtkern mit Marktplatz und seinen gemütlichen Kneipen und Restaurants, das Oppenheimer Weinfest und die Schlemmerwanderungen durch die weithin bekannten Weinberge lassen Jahr für Jahr viele Besucher nach Oppenheim kommen
*Oppenheim bietet ein ausgeprägtes Vereinsleben, sowohl in kultureller als auch sportiver Hinsicht - zwei vollwertige Sportanlagen und ein Strandbad im Naherholungsgebiet „Oppenheimer Wäldchen"
Grundriss
Grundriss Erdgeschoss
>
>
Grundriss Obergeschoss
>
>
Grundriss Untergeschoss
>
>
Adresse
55276 Oppenheim
Interessante Orte
Preis- und Lageinformationen
Preistrend für Bestandsimmobilien in Oppenheim