Zum Verkauf steht ein charmantes Einfamilienhaus, das im Jahr 1932 erbaut und 2013 umfassend renoviert wurde. Das Haus bietet eine gelungene Kombination aus historischem Charme und modernem Wohnkomfort.
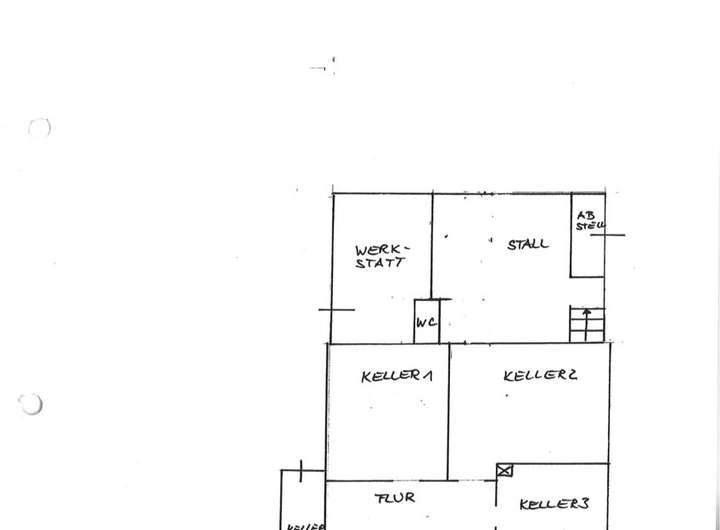
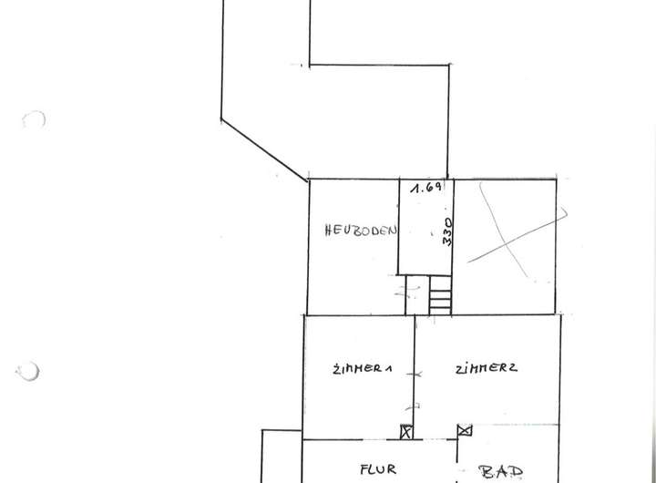
Im EG befinden sich ein Wohnzimmer mit Kaminofen, eine offene Küche, ein Hauswirtschaftsraum sowie ein Gäste-WC. Im OG gibt es 2 Zimmer durch eine Schiebetür getrennt, sowie ein großzügiges Duschbad. Im DG sind bereits zwei weitere Räume vorbereitet. Und im KG finden Sie eine gemütliche Hobbyküche sowie eine Werkstatt und reichlich Abstellflächen.
Ein Haus mit Charme sucht neue Eigentümer
31177 Harsum
Die vollständige Adresse der Immobilie erhalten Sie vom Anbieter.
Auf Karte anzeigen
Die vollständige Adresse der Immobilie erhalten Sie vom Anbieter.
Finanzierungszertifikat
In nur zwei Minuten zu Ihrem persönlichen Finanzierungszertifkat.
Infos
| Etagenzahl | 2 |
|---|---|
| Wohnfläche ca. | 120 m2 |
| Grundstücksfläche | 911 m2 |
| Zimmer | 6 |
Kosten
| Kaufpreis |
425.700 € |
|---|---|
| Provision |
3,57 |
Finanzierungsrechner:
Kaufpreis:
600.000 €
Eigenkapital:
600.000 €
Monatliche Rate
0 €
Effektiver Jahreszins
0 %
Sollzinsbindung
10 Jahre
Bausubstanz & Energieausweis
| Baujahr | 1932 |
|---|---|
| Heizungsart | Zentralheizung |
| Wesentliche Energieträger | Gas |
| Energieausweis | liegt vor |
| Energieausweistyp | Bedarfsausweis |
| Energieverbrauchskennwert | 155,2 kWh/(m²*a) |
Beschreibung des Objekts
Ausstattung
Massives, frei stehendes Einfamilienhaus mit Satteldach (Tonziegeln)
Baujahr 1932, voll unterkellert, komplett renoviert
Gas-Heizung Baujahr 2014
großzügige Raumaufteilung
Elektrik auf dem neusten Stand
Holzfenster 2014
überdachte Terrasse
Wintergarten
verschiedene Gartenhäuser
Garage, Werkstatt am Wohnhaus
Gewächshaus, sehr schöner Garten
Glasfaser an der Straße
Lage
Das Haus befindet sich in einem ruhigen Wohngebiet in Klein Förste. Das liegt Nahe der B 6 zwischen Hildesheim und Hannover. Harsum ist ein Haltepunkt der Bahnstrecke Lehrte- Hildesheim und wird von der S-Bahn bedient.
Das Grundstück bietet viel Platz für individuelle Gestaltungsmöglichkeiten. Besonders hervorzuheben ist der schöne Garten, der ideal für Familien, Gartenliebhaber oder als Rückzugsort zum Entspannen geeignet ist.
Sonstige Angaben
Bitte haben Sie Verständnis dafür, dass eine Besichtigung nur stattfinden kann, wenn uns vorab ein Finanznachweis vorliegt.
Provisionshinweise:
Der Maklervertrag mit uns kommt durch die Bestätigung der Inanspruchnahme unserer Maklertätigkeit in Textform zustande. Die Höhe der Courtage richtet sich ab dem 23.12.2020 in Kraft getretenen gesetzlichen Regelungen zur Teilung der Maklercourtage. Hiernach wird die Courtage für beide Parteien (Eigentümer und Käufer) 3,57 % auf den Kaufpreis einschließlich gesetzlicher Mehrwertsteuer betragen und ist bei notariellem Vertragsabschluss verdient und fällig. Grunderwerbssteuer, Notar- und Gerichtskosten trägt der Käufer.
Allgemein:
Alle Angaben sind ohne Gewähr und basieren ausschließlich auf Informationen, die uns von unserem Auftraggeber übermittelt wurden. Wir übernehmen keine Gewähr für die Vollständigkeit, Richtigkeit und Aktualität dieser Angaben. Zwischenverkauf bleibt vorbehalten. Sollte das von uns nachgewiesene Objekt bereits bekannt sein, teilen Sie uns dieses bitte unverzüglich mit. Die Weitergabe dieses Exposees an Dritte ohne unsere Zustimmung löst gegebenenfalls Courtage- bzw. Schadensersatzansprüche aus.
Bitte stimmen Sie den Besichtigungstermin nur mit der Margret Scharf Immobilien GbR ab.
Adresse
31177 Harsum
Interessante Orte
Preis- und Lageinformationen
Preistrend für Bestandsimmobilien in Harsum