Erleben Sie das Gefühl zu Hause zu sein!
Durch den Windfang betreten Sie das Haus und gelangen in den repräsentativen Flur. Das dahinterliegende, helle Wohn- und Esszimmer bietet viel Platz für einen großen Esstisch und eine gemütliches Sofa. Durch die bodentiefen Fenster hat man einen freien Blick in den Garten. In der offenen Küche macht das Kochen besonders viel Freude. Dieser familienfreundliche Bereich wird Ihnen ebenso zusagen wie der zusätzliche Wohnraum im Erdgeschoss. Gestalten Sie diesen ganz nach Belieben als Arbeits- oder Lesezimmer bzw. als Gästequartier.
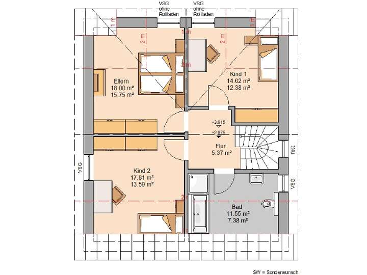
Über die attraktive Treppenkonstruktion gelangen Sie ins Dachgeschoss, in dem sich neben 3 Schlafräumen ein praktisch geschnittenes Familienbad befindet. Zur Gartenseite hin öffnet sich eine Panoramagaube, die einen herrlichen Ausblick ins Grüne ermöglicht. Dies ist der perfekte Ort zum Entspannen.
Dieses Haus wird nach Ihren individuellen Wünschen geplant und ausgestattet!
Komfort vom Keller bis zum Dach!
65623 Hahnstätten
Die vollständige Adresse der Immobilie erhalten Sie vom Anbieter.
Auf Karte anzeigen
Die vollständige Adresse der Immobilie erhalten Sie vom Anbieter.
Finanzierungszertifikat
In nur zwei Minuten zu Ihrem persönlichen Finanzierungszertifkat.
Infos
| Haustyp | Einfamilienhaus |
|---|---|
| Wohnfläche ca. | 122 m2 |
| Grundstücksfläche | 1.024 m2 |
| Zimmer | 5 |
| Schlafzimmer | 4 |
| Badezimmer | 1 |
| Anzahl Garage/Stellplatz | 2 |
Kosten
| Kaufpreis |
591.200 € |
|---|---|
| Provision | Nein |
Finanzierungsrechner:
Kaufpreis:
600.000 €
Eigenkapital:
600.000 €
Monatliche Rate
0 €
Effektiver Jahreszins
0 %
Sollzinsbindung
10 Jahre
Bausubstanz & Energieausweis
| Baujahr | 2025 |
|---|---|
| Bauphase | Haus in Planung (projektiert) |
| Objektzustand | Erstbezug |
| Qualität der Austattung | Gehoben |
| Heizungsart | Wärmepumpe |
| Wesentliche Energieträger | Strom |
| Energieausweis | liegt vor |
| Energieausweistyp | Bedarfsausweis |
| Energieverbrauchskennwert | 19,7 kWh/(m²*a) |
| Energieeffizienzklasse | A+ |
19,7
kWh/(m²*a)
Energieeffizienzklasse A+
- A+
- A
- B
- C
- D
- E
- F
- G
- H
- 0
- 25
- 50
- 75
- 100
- 125
- 150
- 175
- 200
- 225
- >250
Beschreibung des Objekts
Ausstattung
5 Zimmer, offene Küche, Windfang, WC, Flur, Diele, Bad, Panoramagaube, Hauswirtschaftsraum, Keller
Das gezeigte Traumhaus im Überblick:
+ Schlüsselfertiges Massivhaus im Sinne der Ausstattungsbeschreibung "Edition 25"
+ Zukunftsorientierte Energieausstattung in Form einer Luft-Wasser-Wärmepumpe und Fußbodenheizung sowie einer kontrollierten Wohnraumlüftung mit Wärmerückgewinnung
+ Inklusive Keller
Beste Markenausstattung in jedem Kern-Haus:
+ Zimmermannsmäßiger Dachstuhl aus Konstruktionsvollholz
+ Dacheindeckung mit Betondachsteinen von Braas
+ Hochwertiger Kunstharz-Außenputz für eine langlebige Fassade
+ Vollständige Badausstattung von Villeroy & Boch mit Badewanne und flacher Duschwanne sowie einer Echtglasduschkabine
+ Fliesen von Villeroy & Boch in Bad und WC
+ Haustür mit 5-fach-Sicherheitsverriegelung
+ Erstklassige Innentüren der Marke Herholz
+ Fenster mit 3-Scheiben-Wärmeschutzverglasung und Rollläden
+ Stahl-Holz-Treppe mit individueller Farbgestaltungsmöglichkeit
+ Vollständige und überdurchschnittliche Elektroausstattung inklusive Klingelanlage und Netzwerkdosen
+ Rauchmelder für Ihre Sicherheit
+ Alle Leistungen aus einer Hand
+ Alle Planungs- und Architektenleistungen
+ Einsatz regionaler Handwerksbetriebe
+ Baubegleitende 5-Phasen-TÜV-Prüfung und Blower-Door-Test
+ Individuelle Anpassung auf Ihre Bedürfnisse
+ Auf Wunsch mit weiteren Energietechniken erhältlich
Lage
Das große Baugrundstück von ca. 1.024 qm befindet sich am Rand eines ruhigen Wohngebietes von Hahnstätten im Rhein-Lahn Kreis, eingebettet zwischen Taunus und dem angrenzenden Westerwald.
Hahnstätten zeichnet sich besonders durch seine optimale Erreichbarkeit und flexible Mobilität aus. Verkehrstechnisch erreichen Sie den Ort über die Autobahn 3 und Bundesstraße 54. Der nächstgelegene ICE-Halt ist der Bahnhof Limburg an der Schnellfahrstrecke Köln–Rhein/Main.
Neben Grundschule, Realschule plus, Kindergarten, Ärzten, Einkaufsmöglichkeiten jeder Art, wie Discountern, Bäckerei und Metzgerei bietet Hahnstätten auch ein Kulturhaus, sowie Sport- und Tennisplätze. Gastronomie, eine Pizzeria und Eisdiele sorgen für das leibliche Wohl.
Mit großartigen Rad- und Wanderwegen ergeben sich vielseitige Freizeitmöglichkeiten.
Entfliehen Sie dem Alltagsstress und genießen die Ruhe in Hahnstätten!
Sonstige Angaben
Kern-Haus baut individuelle und massive Architektenhäuser zu einem attraktiven Preis-Leistungs-Verhältnis – und das bereits mit einer Erfahrung seit 1980. Bei Kern-Haus erhalten Sie unter anderem 10 Jahre Gewährleistung auf die wesentlichen Bauleistungen, bis zu 24 Monate Preissicherheit sowie eine dokumentierte 5-Phasen-TÜV-Prüfung während der Bauphase. Jedes Kern-Haus als Effizienzhaus 40 ist bereits QNG-zertifiziert durch die Deutsche Gesellschaft für nachhaltiges Bauen (DGNB).
40 Jahre Expertise für das massive, energieeffiziente Bauen: Kern-Haus realisiert Massivhäuser in Ziegel, Bims, Porenbeton oder Stahlbeton (DuoTherm).
Kern-Haus setzt auf eine hohe Bauqualität der Handwerker und auf eine große Auswahl starker Marken. So verwendet Kern-Haus beim Bau Ihres Hauses nur hochwertige Markenprodukte renommierter Hersteller – wie etwa Produkte von Villeroy & Boch.
Preise und Auszeichnungen von Kern-Haus:
- German Brand Award in den Jahren 2018 und 2021
- Hausbau Design Award: Sieger in den Jahren 2017, 2018, 2019, 2020, 2021, 2022 und 2023
- Deutscher Traumhauspreis: Sieger in den Jahren 2014, 2015, 2016 und 2018 und Silber 2017, 2020 und 2021
- Mittelstandspreis "Top 100" in den Jahren 2014, 2016, 2018, 2020 und 2022
- German Design Award im Jahr 2018
Weitere Informationen
Der gezeigte Preis versteht sich inklusive Grundstück und exklusive der Baunebenkosten.
Grundriss
Grundriss Keller
>
>
Grundriss Erdgeschoss
>
>
Grundriss Dachgeschoss
>
>
Adresse
65623 Hahnstätten
Interessante Orte
Preis- und Lageinformationen
Preistrend für Bestandsimmobilien in Hahnstätten