Ein Doppelhaus mit dem Mehr an Eleganz!
Nicht nur optisch hat das Doppelhaus von außen einiges zu bieten, sondern zeigt sich auch praktisch. Highlight des Erdgeschosses ist der große Wohn- und Essbereich, der mit einem großen Fe nsterelement mit viel Tageslicht durchflutet wird. Die separate Küche ist so geräumig, dass eine Kochinsel eingebaut werden kann. Komplattiert wird das Erdgeschoss durch ein Homeoffice und ein Gäste-WC.
Im Obergeschoss haben zwei Kinderzimmer, ein Eltern-Schlafzimmer und ein Familien-Badezimmer Platz. Durch bodentiefe Fenster werden die Räume zur Gartenseite sowohl im Erd- als auch im Obergeschoss lichtdurchflutet.
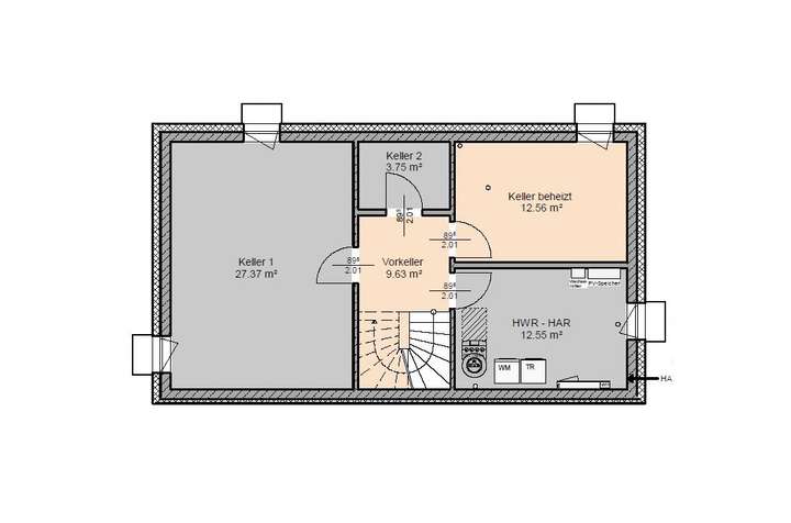
Das Kellergeschoss verfügt über einen Hauswirtschaftsraum mit ausreichend Platz für die Haus- und Heiztechnik und drei weitere Räume zur individuellen Nutzung.
Dieses Haus wird nach Ihren individuellen Wünschen ausgestattet!
Elegantes Doppelhaus für die ganze Familie!
61381 Friedrichsdorf
Die vollständige Adresse der Immobilie erhalten Sie vom Anbieter.
Auf Karte anzeigen
Die vollständige Adresse der Immobilie erhalten Sie vom Anbieter.
Finanzierungszertifikat
In nur zwei Minuten zu Ihrem persönlichen Finanzierungszertifkat.
Infos
| Haustyp | Doppelhaushaelfte |
|---|---|
| Wohnfläche ca. | 121 m2 |
| Grundstücksfläche | 360 m2 |
| Zimmer | 5 |
| Schlafzimmer | 4 |
| Badezimmer | 1 |
| Anzahl Garage/Stellplatz | 2 |
Kosten
| Kaufpreis |
832.400 € |
|---|---|
| Provision | Nein |
Finanzierungsrechner:
Kaufpreis:
600.000 €
Eigenkapital:
600.000 €
Monatliche Rate
0 €
Effektiver Jahreszins
0 %
Sollzinsbindung
10 Jahre
Bausubstanz & Energieausweis
| Baujahr | 2025 |
|---|---|
| Bauphase | Haus in Planung (projektiert) |
| Objektzustand | Erstbezug |
| Qualität der Austattung | Gehoben |
| Heizungsart | Wärmepumpe |
| Wesentliche Energieträger | Strom |
| Energieausweis | liegt vor |
| Energieausweistyp | Bedarfsausweis |
| Energieverbrauchskennwert | 18,2 kWh/(m²*a) |
| Energieeffizienzklasse | A+ |
18,2
kWh/(m²*a)
Energieeffizienzklasse A+
- A+
- A
- B
- C
- D
- E
- F
- G
- H
- 0
- 25
- 50
- 75
- 100
- 125
- 150
- 175
- 200
- 225
- >250
Beschreibung des Objekts
Ausstattung
5 Zimmer, Küche, Diele, WC, Flur, Bad, Hauswirtschaftsraum, Keller
Das gezeigte Traumhaus im Überblick:
+ Schlüsselfertiges Massivhaus im Sinne der Ausstattungsbeschreibung "Edition 24"
+ Energieeffizienzklasse A+
+ Inklusive Bodenplatte
+ Inklusive Keller
Beste Markenausstattung in jedem Kern-Haus:
+ Zimmermannsmäßiger Dachstuhl aus Konstruktionsvollholz
+ Dacheindeckung mit Betondachsteinen von Braas
+ Hochwertiger Kunstharz-Außenputz für eine langlebige Fassade
+ Vollständige Badausstattung von Villeroy & Boch mit Badewanne und flacher Duschwanne sowie einer Echtglasduschkabine
+ Fliesen von Villeroy & Boch in Bad und WC
+ Haustür mit 5-fach-Sicherheitsverriegelung
+ Erstklassige Innentüren der Marke Herholz
+ Fenster mit 3-Scheiben-Wärmeschutzverglasung und Rollläden
+ Stahl-Holz-Treppe mit individueller Farbgestaltungsmöglichkeit
+ Vollständige und überdurchschnittliche Elektroausstattung inklusive Klingelanlage
+ Rauchmelder für Ihre Sicherheit
+ Alle Leistungen aus einer Hand
+ Alle Planungs- und Architektenleistungen
+ Einsatz regionaler Handwerksbetriebe
+ Baubegleitende 5-Phasen-TÜV-Prüfung und Blower-Door-Test
+ Individuelle Anpassung auf Ihre Bedürfnisse
+ Auf Wunsch mit weiteren Energietechniken erhältlich
Lage
Das Baugrundstück befindet sich im Friedrichsdorfer Stadtteil Köppern in einm gewachsenen Wohngebiet.
Östlich des Ortes befindet sich die A 5, die eine schnelle Verbindung nach Frankfurt schafft.
Zwei Lebensmitteldiscounter, eine Metzgerei, vier Bäckereien und weitere Ladengeschäfte decken die Grundversorgung mit Nahrungsmitteln ab und werden von mehreren Gastronomiebetrieben sowie zwei Tankstellen ergänzt. Es existieren mehrere Arztpraxen und Apotheken im Ortsteil. Drei Kindertageseinrichtungen und eine Grundschule sind ebenfalls vorhanden. Die weiterführende Schule in Friedrichsdorf ist mit dem Fahrrad zu erreichen. In der Nähe der weiterführenden Schule befinden sich verschiedene moderne Sportstätten.
Friedrichsdorf ist eine Stadt mit einer hohen Wohn- und Lebensqualität.
Sonstige Angaben
Kern-Haus baut individuelle und massive Architektenhäuser zu einem attraktiven Preis-Leistungs-Verhältnis – und das bereits mit einer Erfahrung seit 1980. Bei Kern-Haus erhalten Sie unter anderem 10 Jahre Gewährleistung auf die wesentlichen Bauleistungen, bis zu 24 Monate Preissicherheit sowie eine dokumentierte 5-Phasen-TÜV-Prüfung während der Bauphase. Jedes Kern-Haus als Effizienzhaus 40 ist bereits QNG-zertifiziert durch die Deutsche Gesellschaft für nachhaltiges Bauen (DGNB).
40 Jahre Expertise für das massive, energieeffiziente Bauen: Kern-Haus realisiert Massivhäuser in Ziegel, Bims, Porenbeton oder Stahlbeton (DuoTherm).
Kern-Haus setzt auf eine hohe Bauqualität der Handwerker und auf eine große Auswahl starker Marken. So verwendet Kern-Haus beim Bau Ihres Hauses nur hochwertige Markenprodukte renommierter Hersteller – wie etwa Produkte von Villeroy & Boch.
Preise und Auszeichnungen von Kern-Haus:
- German Brand Award in den Jahren 2018 und 2021
- Hausbau Design Award: Sieger in den Jahren 2017, 2018, 2019, 2020, 2021, 2022 und 2023
- Deutscher Traumhauspreis: Sieger in den Jahren 2014, 2015, 2016 und 2018 und Silber 2017, 2020 und 2021
- Mittelstandspreis "Top 100" in den Jahren 2014, 2016, 2018, 2020 und 2022
- German Design Award im Jahr 2018
Weitere Informationen
Der gezeigte Preis versteht sich inklusive Grundstück und exklusive der Baunebenkosten. Auf das Grundstück kann eine Maklerprovision anfallen.
Grundriss
Grundriss Erdgeschoss
>
>
Grundriss Obergeschoss
>
>
Grundriss Kellergeschoss
>
>
Adresse
61381 Friedrichsdorf
Interessante Orte
Preis- und Lageinformationen
Preistrend für Bestandsimmobilien in Friedrichsdorf