Dieses Reihenendhaus aus dem Baujahr 1965 bietet ca. 110 m² Wohnfläche auf zwei Etagen und steht auf einem ca. 191 m² großen Grundstück. Vier Zimmer, ein Badezimmer sowie ein Gäste-WC bieten ideale Voraussetzungen für Paare oder Familien. Die Immobilie die zur Zeit noch Vermietet ist, befindet sich in einem gepflegten, jedoch renovierungsbedürftigen Zustand und eignet sich hervorragend zur individuellen Modernisierung. Die attraktive Lage in Kelkheim überzeugt durch eine sehr gute Infrastruktur und hohe Lebensqualität.
Reihenendhaus in Kelkheim – Vermietetes Wohndomizil mit 4 Zimmern.
65779 Kelkheim (Taunus)
Die vollständige Adresse der Immobilie erhalten Sie vom Anbieter.
Auf Karte anzeigen
Die vollständige Adresse der Immobilie erhalten Sie vom Anbieter.
Finanzierungszertifikat
In nur zwei Minuten zu Ihrem persönlichen Finanzierungszertifkat.
Infos
| Haustyp | Reiheneckhaus |
|---|---|
| Etagenzahl | 2 |
| Wohnfläche ca. | 110 m2 |
| Nutzfläche | 30 m2 |
| Grundstücksfläche | 191 m2 |
| Zimmer | 4 |
| Schlafzimmer | 2 |
| Badezimmer | 1 |
| Garage/Stellplatz | Carport |
| Anzahl Garage/Stellplatz | 1 |
Kosten
| Kaufpreis |
432.500 € |
|---|---|
| Provision |
3,57% inkl. MwSt. 3,57 % Käuferprovision inkl. MwSt., verdient und fällig mit Beurkundung des notariellen Kaufvertrages. Der Immobilienmakler hat einen provisionspflichtigen Maklervertrag mit dem Verkäufer in gleicher Höhe abgeschlossen. |
| Mieteinnahmen | 900 € |
Finanzierungsrechner:
Kaufpreis:
600.000 €
Eigenkapital:
600.000 €
Monatliche Rate
0 €
Effektiver Jahreszins
0 %
Sollzinsbindung
10 Jahre
Bausubstanz & Energieausweis
| Baujahr | 1965 |
|---|---|
| Letzte Sanierung | 2011 |
| Bauphase | Haus fertig gestellt |
| Objektzustand | Renovierungsbedürftig |
| Qualität der Austattung | Normal |
| Heizungsart | Zentralheizung |
| Wesentliche Energieträger | Gas |
| Energieausweis | liegt vor |
| Energieausweistyp | Bedarfsausweis |
| Energieverbrauchskennwert | 181,2 kWh/(m²*a) |
| Energieeffizienzklasse | F |
181,2
kWh/(m²*a)
Energieeffizienzklasse F
- A+
- A
- B
- C
- D
- E
- F
- G
- H
- 0
- 25
- 50
- 75
- 100
- 125
- 150
- 175
- 200
- 225
- >250
Beschreibung des Objekts
Ausstattung
- Gäste-WC
- Einbauküche
- Terrasse/Wintergarten
- Carport als sicherer Stellplatz für Ihr Fahrzeug, im Preis inbegriffen
- Gaszentralheizung Viessmann
- Garten
- Hauswirtschftsraum (Heizung, Waschmaschine, Fahhräder etc.)
Lage
Das Reihenendhaus befindet sich im Kelkheimer Stadtteil Hornau, einer ruhigen und überwiegend wohngeprägten Lage mit guter Anbindung an die Innenstadt sowie das Rhein-Main-Gebiet. Einkaufsmöglichkeiten, Schulen und der öffentliche Nahverkehr sind gut erreichbar und unterstreichen die hohe Wohnqualität.
Sonstige Angaben
HAFTUNG: Wir weisen darauf hin, dass die von uns weiterge‐ gebenen Objektinformationen, Unterlagen, Pläne etc. ausschließlich auf Informationen basieren, die uns vom Verkäufer zur Verfügung gestellt wurden. Wir übernehmen keine Gewähr für die Vollständigkeit, Richtigkeit und Aktualität dieser Angaben. Alle Immobilienangebote sind freibleibend und vorbehaltlich Irrtümer, Zwischenverkauf- und Vermietung oder sonstiger Zwischenverwertung. Die Bilder im Exposé können vom tatsächlichen Ergebnis abweichen.
GELDWÄSCHE: Wir weisen darauf hin, dass Immobilienmaklerunternehmen nach § § 1, 2 Abs. 1 Nr. 10, 4 Abs. 3 Geldwäschegesetz (GwG) vor dem Entstehen einer Geschäftsbeziehung zur Feststellung und Überprüfung des Vertragspartners verpflichtet sind. Dies erfolgt z.B. durch eine Kopie Ihres Personalausweises. Die Angaben hieraus müssen gemäß Geldwäschegesetz fünf Jahre aufbewahrt werden.
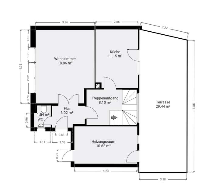
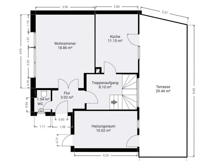
Grundriss
Erdgeschoss
>
>
Obergeschoss
>
>
Dachgeschoss
>
>
Adresse
65779 Kelkheim (Taunus)
Interessante Orte
Preis- und Lageinformationen
Preistrend für Bestandsimmobilien in Kelkheim (Taunus)