Dieses bezaubernde Haus mit Geschichte befindet sich im Herzen von Schöneck-Kilianstädten im alten Ortskern in der Nähe des Rathauses. Es ist zentral gelegen, aber dennoch ruhig.
Offiziell handelt es sich hier um ein Zweifamilienhaus, zurzeit genutzt wird es allerdings als Einfamilienhaus. Beides ist natürlich möglich. Das Baujahr ist ca. 1705, es wurde aber 1924 erweitert und aufgestockt.
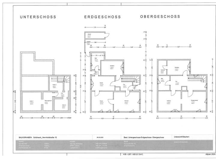
Im Erdgeschoss gelangt man über einen Windfang in den Flur, von dem aus alle Räume erreichbar sind. Linksseitig liegt das geräumige Wohnzimmer, von dem aus man über eine schöne Tür mit Sprossenfenster in das angrenzende Esszimmer gelangt. Rechts vom Flur befindet sich ein weiteres Zimmer, das zum Beispiel als Büro geeignet wäre. Die Küche ist sehr geräumig und hat Zugang zu einem weiteren Flur. Dieser führt zum einen in das Bad mit Badewanne, in dem auch noch ausreichend Platz für eine Waschmaschine und einen Trockner ist.
Und zum anderen führt dieser über eine praktische Hintertür in den ca. 45 m² großen, geschützten Hinterhof, der von keiner Seite einsehbar ist. Dies ist der ideale Platz für eine gemütliche Sitzecke. Im vorderen Hof befinden sich ein Carport und sowie ein Schuppen.
Über eine schöne Holztreppe kommt man in das Obergeschoss. Hier befinden sich zwei fast gleichgroße Zimmer sowie ein etwas kleinerer Raum mit angrenzender Kammer. Diese beiden Räume wurden zuletzt als Schlafzimmer mit angrenzendem begehbarem Kleiderschrank genutzt. Aber auch die Nutzung als Küche mit angrenzendem Abstellraum wäre möglich, da die erforderlichen Anschlüsse vorhanden sind. Waschmaschine und Trockner könnten hier auch ihren Platz finden.
Ein modernes Bad mit Dusche und Badewanne ergänzt diese Etage.
Eine Bodenauszugstreppe führt in den Dachboden. Dieser ist sehr großzügig und könnte als Wohnfläche erweitert und ausgebaut werden.
Das Haus ist teilunterkellert. Weitere Räume über dem Carport sorgen für zusätzliche
Abstellmöglichkeiten.
Bei den Grundrissen sind die Fenster noch nicht eingezeichnet. Sobald die aktualisierten Grundrisse vorliegen, werden diese ausgetauscht.
Charmantes Ein- bis Zweifamilienhaus im Herzen von Schöneck-Kilianstädten
61137 Schöneck
Die vollständige Adresse der Immobilie erhalten Sie vom Anbieter.
Auf Karte anzeigen
Die vollständige Adresse der Immobilie erhalten Sie vom Anbieter.
Finanzierungszertifikat
In nur zwei Minuten zu Ihrem persönlichen Finanzierungszertifkat.
Infos
| Haustyp | Mehrfamilienhaus |
|---|---|
| Etagenzahl | 2 |
| Wohnfläche ca. | 150 m2 |
| Grundstücksfläche | 293 m2 |
| Bezugsfrei ab | nach Vereinbarung |
| Zimmer | 6 |
| Schlafzimmer | 4 |
| Badezimmer | 2 |
Kosten
| Kaufpreis |
398.000 € |
|---|---|
| Provision |
3,57 % inkl. MwSt. |
Finanzierungsrechner:
Kaufpreis:
600.000 €
Eigenkapital:
600.000 €
Monatliche Rate
0 €
Effektiver Jahreszins
0 %
Sollzinsbindung
10 Jahre
Bausubstanz & Energieausweis
| Baujahr | 1705 |
|---|---|
| Objektzustand | Gepflegt |
| Heizungsart | Zentralheizung |
| Wesentliche Energieträger | Gas |
| Energieausweis | laut Gesetz nicht erforderlich |
Beschreibung des Objekts
Ausstattung
- 1993 neue Fußböden (Holzdielen, Parkett) sowie Erneuerung Bad OG
- 2006 neue Gasheizung
- 2012/2013 neue Dacheindeckung sowie Verstärkung der Holzbalken, neuer Anstrich der Hausfassade
- 2018 Erneuerung Schuppen
- Kellerdecke wurde ausgetauscht und Wände im KG neu verputzt
- Glasfaseranschluss ist vorhanden
- Das Haus steht unter Ensembleschutz
Lage
Das Haus befindet sich in zentraler Lage der Gemeinde Schöneck, im Ortsteil Kilianstädten. Weitere Ortsteile sind Büdesheim und Oberdorfelden. Schöneck liegt am Rande der Wetterau und zeichnet sich durch seine reizvolle Lage sowie die abwechslungsreiche Topographie aus. Die nahen Erholungsgebiete Taunus, Vogelsberg und Spessart sind jeweils in ca. 45 Minuten mit dem PKW zu erreichen.
Schöneck liegt an der Bundesbahnstrecke Bad Vilbel - Stockheim. In jedem der drei Ortsteile von Schöneck befindet sich ein Bahnhof. In Bad Vilbel bestehen Anschlussmöglichkeiten an die S-Bahn-Strecke Frankfurt - Friedberg. Die Gemeinde ist durch die B 521 und die L 3008 an das überregionale Straßennetz angebunden. Die Entfernung bis zur Stadtmitte Frankfurt beträgt rund 20 km, zur Stadtmitte Hanau rund 10 km.
In Schöneck gibt es ausreichen Kindertagesstätten sowie zwei Grundschulen.
Für mehr Informationen zu Schöneck sprechen Sie uns einfach an oder sehen Sie sich die Internetseite der Gemeinde an unter www.schoeneck.de
Sonstige Angaben
Eine Besichtigung des Hauses kann gerne mit uns vereinbart werden.
Bitte kontaktieren Sie uns per E-Mail.
Da wir Objektangaben nicht selbst ermitteln, übernehmen wir hierfür keine Gewähr. Dieses Exposé ist nur für Sie persönlich bestimmt. Eine Weitergabe an Dritte ist an unsere ausdrückliche Zustimmung gebunden und unterbindet nicht unseren Provisionsanspruch bei Zustande kommen eines Vertrages. Alle Gespräche sind über unser Büro zu führen. Bei Zuwiderhandlung behalten wir uns Schadenersatz bis zur Höhe der Provisionsansprüche ausdrücklich vor. Zwischenverkauf ist nicht ausgeschlossen.
Adresse
61137 Schöneck
Interessante Orte
Preis- und Lageinformationen
Preistrend für Bestandsimmobilien in Schöneck