Sind Sie auf der Suche nach einer werthaltigen Anlageimmobilie mit solider Rendite und gepflegtem Zustand? Dann werfen Sie einen Blick auf dieses charmante Objekt!
Das 1953 erbaute Mehrfamilienhaus erstreckt sich über drei Etagen und verfügt über ein Kellergeschoss sowie einen praktischen Garagenanbau. Das Haus steht auf einem ca. 431 m² großen Grundstück und bietet drei vermietete Wohneinheiten mit insgesamt ca. 141 m² Wohnfläche.
Erdgeschoss:
Die geräumige 2-Zimmer-Wohnung (ca. 54 m²) besticht durch einen durchdachten Grundriss. Hochwertige Parkettböden verleihen den Räumen eine warme Atmosphäre. Das moderne Tageslichtbad ist mit einer Badewanne und eleganten Fliesen in Anthrazit gestaltet. Eine gemütliche Wohnküche, ein Wohnzimmer mit Blick in den gemeinschaftlich genutzten Garten sowie ein stilvolles Schlafzimmer runden diese Einheit ab.
1. Obergeschoss:
Auch diese 2-Zimmer-Wohnung (ca. 48 m²) überzeugt mit einer hochwertigen Ausstattung. Das Tageslichtbad mit Badewanne und die integrierte Einbauküche bieten zeitgemäßen Komfort.
Dachgeschoss:
Die charmante Dachwohnung (ca. 39 m² Wohnfläche + 4 m² Nutzfläche) besteht aus zwei hellen Zimmern mit Blick ins Grüne. Vereinzelte Dachschrägen sorgen für Gemütlichkeit, während Parkettböden den modernen Stil unterstreichen. Ein kleines Tageslichtbad mit Dusche und eine offene Küche ergänzen das Wohnkonzept ideal.
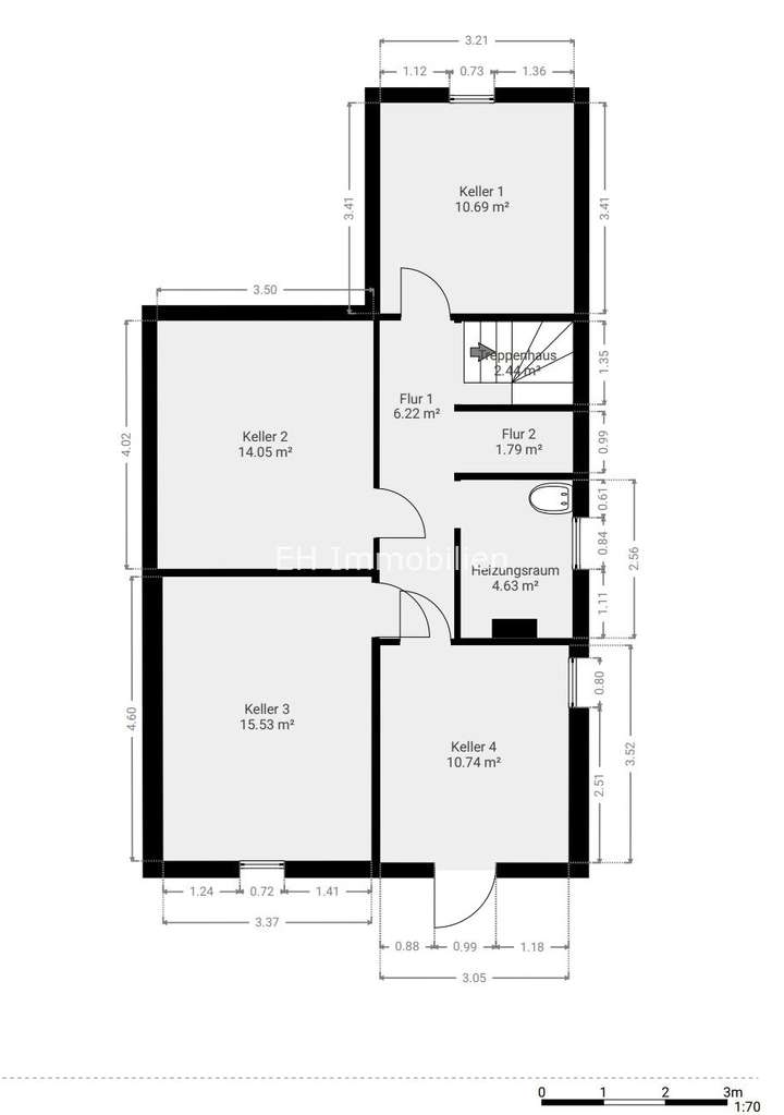
Das Treppenhaus präsentiert sich in gepflegtem Zustand und verbindet die Wohneinheiten nahtlos. Im Keller sorgt eine moderne Heizungsanlage aus dem Jahr 2022 für zuverlässige Wärme.
Das großzügige Grundstück bietet vielfältige Nutzungsmöglichkeiten. Im Eingangsbereich befinden sich eine Garage sowie zwei PKW-Stellplätze. Der Gemeinschaftsgarten hinter dem Haus lädt zum Verweilen ein.
Mit einer aktuellen Jahresnettokaltmiete von 24.660 EUR bietet dieses Objekt eine solide Einnahmequelle und weiteres Steigerungspotenzial. Ob als langfristige Kapitalanlage oder zur späteren Privatisierung der Einheiten - hier eröffnen sich vielfältige Optionen für Investoren.
Gepflegtes, vollvermietetes Mehrfamilienhaus in Frankfurt-Griesheim!
Waldschulstraße 112,
65933 Frankfurt am Main
Auf Karte anzeigen
Finanzierungszertifikat
In nur zwei Minuten zu Ihrem persönlichen Finanzierungszertifkat.
Infos
| Haustyp | Mehrfamilienhaus |
|---|---|
| Etagenzahl | 3 |
| Wohnfläche ca. | 141 m2 |
| Grundstücksfläche | 431 m2 |
| Bezugsfrei ab | sofort |
| Zimmer | 6 |
| Schlafzimmer | 3 |
| Badezimmer | 3 |
| Anzahl Garage/Stellplatz | 3 |
Kosten
| Kaufpreis |
698.000 € |
|---|---|
| Provision |
3,57 % Die Provision beträgt 3,57 % inkl. der gesetzlichen MwSt. und ist sofort fällig nach Unterzeichnung des notariellen Kaufvertrages. |
| Mieteinnahmen | 2.055 € |
Finanzierungsrechner:
Kaufpreis:
600.000 €
Eigenkapital:
600.000 €
Monatliche Rate
0 €
Effektiver Jahreszins
0 %
Sollzinsbindung
10 Jahre
Bausubstanz & Energieausweis
| Baujahr | 1953 |
|---|---|
| Letzte Sanierung | 2022 |
| Objektzustand | Gepflegt |
| Qualität der Austattung | Normal |
| Heizungsart | Gas-Heizung |
| Wesentliche Energieträger | Gas |
| Energieausweis | liegt vor |
| Energieausweistyp | Bedarfsausweis |
| Energieverbrauchskennwert | 217,0 kWh/(m²*a) |
| Energieeffizienzklasse | G |
217,0
kWh/(m²*a)
Energieeffizienzklasse G
- A+
- A
- B
- C
- D
- E
- F
- G
- H
- 0
- 25
- 50
- 75
- 100
- 125
- 150
- 175
- 200
- 225
- >250
Beschreibung des Objekts
Ausstattung
- Mehrfamilienhaus mit drei vermieteten Wohnungen
- Errichtet im Jahr 1953
- Guter Allgemeinzustand
- Attraktive Lage mit hervorragender Infrastruktur in Griesheim
- Hochwertige Parkettböden in allen Wohneinheiten
- Komplett modernisierte Badezimmer (2020)
- Zeitgemäße weiße Kunststofffenster (Erneuerung 2000)
- Einbauküchen in allen Wohnungen (inkl. Elektrik, 2013)
- Gemeinschaftlich nutzbarer Gartenbereich
- Effiziente Heizungsanlage, neu installiert 2022
- Vollständig unterkellert für zusätzlichen Stauraum
- Garage und zwei zusätzliche PKW-Stellplätze
Lage
Griesheim, im Westen von Frankfurt am Main gelegen, grenzt an die Stadtteile Nied, Rödelheim, Bockenheim und das Gallusviertel. Eine ausgezeichnete Verkehrsanbindung trägt maßgeblich zur positiven Entwicklung des Viertels bei. Mit den S-Bahn-Linien S1 und S2 erreicht man den Frankfurter Hauptbahnhof in nur einer Station, und die Innenstadt ist in etwa 8 Minuten erreichbar.
Für Autofahrer ist die Mainzer Landstraße eine wichtige Verkehrsachse. Sie verbindet Griesheim in östlicher Richtung mit dem Stadtzentrum und führt westlich zur Bundesstraße 43, die schnellen Zugang zum Flughafen und dem Frankfurter Kreuz bietet.
Eine besonders reizvolle Alternative ist die Fahrt mit dem Fahrrad in die Innenstadt. Die rund 6 Kilometer lange Strecke verläuft größtenteils idyllisch entlang des Mains und eignet sich ideal sowohl für den Arbeitsweg als auch für entspannte Ausflüge.
Dank dieser hervorragenden Verkehrsanbindungen verbindet Griesheim citynahes Wohnen mit einem ruhigen, fast dörflichen Lebensgefühl.
Zahlreiche Sport- und Freizeitangebote sowie vielfältige Einkaufsmöglichkeiten befinden sich in direkter Umgebung und runden das attraktive Wohnumfeld ab.
Grundriss
Erdgeschoss
>
>
1. Obergeschoss
>
>
Dachgeschoss
>
>
Keller
>
>
Adresse
Waldschulstraße 112, 65933 Frankfurt am Main
Interessante Orte
Preis- und Lageinformationen
Preistrend für Bestandsimmobilien in Griesheim