Zum Verkauf steht dieses neuwertige Mehrfamilienhaus in Lindschied mit einer Grundstücksgröße von 479 m².
Das Objekt wurde im Jahre 2000 kernsaniert und modernisiert und durch einen Anbau erweitert. Dabei sind drei neue Wohneinheiten entstanden.
In der Erdgeschosswohnung wohnt eine Dame, die ein Nießbrauch mit lebenslangen und unentgeltlichen Wohnrecht hat. Die Wohnung im 1. Obergeschoss steht aufgrund des derzeitigen Verkaufs leer. Die Dachgeschosswohnung wird durch den Eigentümer bewohnt und nach Verkauf freigestellt.
Es bietet große und helle Räume auf drei Etagen.
Das Objekt ist als Kapitalanlage oder als Mehrgenerationenhaus nutzbar.
Eine tolle Gelegenheit, die Sie sich nicht entgehen lassen sollten.
Großzügiges, Mehrfamilienhaus in Lindschied zu verkaufen
65307 Bad Schwalbach
Die vollständige Adresse der Immobilie erhalten Sie vom Anbieter.
Auf Karte anzeigen
Die vollständige Adresse der Immobilie erhalten Sie vom Anbieter.
Finanzierungszertifikat
In nur zwei Minuten zu Ihrem persönlichen Finanzierungszertifkat.
Infos
| Haustyp | Mehrfamilienhaus |
|---|---|
| Etagenzahl | 2 |
| Wohnfläche ca. | 294 m2 |
| Nutzfläche | 150 m2 |
| Grundstücksfläche | 582 m2 |
| Bezugsfrei ab | nach Absprache |
| Zimmer | 10 |
| Schlafzimmer | 7 |
| Badezimmer | 4 |
Kosten
| Kaufpreis |
545.000 € |
|---|---|
| Provision |
3,57 % inkl. ges. Mwst. vom beurkundeten Kaufpreis |
Finanzierungsrechner:
Kaufpreis:
600.000 €
Eigenkapital:
600.000 €
Monatliche Rate
0 €
Effektiver Jahreszins
0 %
Sollzinsbindung
10 Jahre
Bausubstanz & Energieausweis
| Baujahr | 2000 |
|---|---|
| Objektzustand | Modernisiert |
| Heizungsart | Zentralheizung |
| Wesentliche Energieträger | Gas |
| Energieausweis | liegt vor |
| Energieausweistyp | Verbrauchsausweis |
| Energieverbrauchskennwert | 89,5 kWh/(m²*a) |
| Energieeffizienzklasse | C |
89,5
kWh/(m²*a)
Energieeffizienzklasse C
- A+
- A
- B
- C
- D
- E
- F
- G
- H
- 0
- 25
- 50
- 75
- 100
- 125
- 150
- 175
- 200
- 225
- >250
Beschreibung des Objekts
Ausstattung
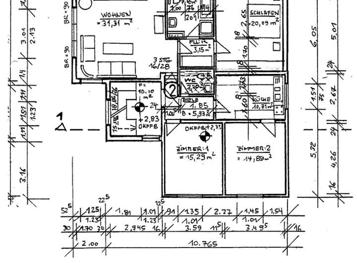
Über das großzügige, gepflegte Treppenhaus erreichen Sie alle Wohnungen.
Im Erdgeschoss befindet sich die 4-ZKB-Wohnung. Über die Eingangsdiele erreichen Sie die Küche, das Gäste WC, das Tageslichtduschbad und drei Schlafzimmer und das großzügige Wohnzimmer mit Zugang zur Terrasse. In dieser Wohnung wohnt eine Dame, die ein Nießbrauch mit lebenslangen und unentgeltlichen Wohnrecht hat.
Im Obergeschoss befindet sich ebenfalls eine ca. 97m² große 4-ZKB-Wohnung. Über die Eingangsdiele erreichen Sie die Küche, das Gäste WC, das Tageslichtbad und drei Schlafzimmer, sowie das großzügige Wohnzimmer mit Zugang zum Balkon mit schöner Aussicht.
Im Dachgeschoss befindet sich die gemütliche 2,5-ZKB-Wohnung mit einem großzügigen Wohn- und Esszimmer, einem Wannenbad, eine Küche die mit einer Einbauküche ausgestattet ist und ein Schlafzimmer mit zusätzlichem Duschbad. Bei Bedarf kann man die Dachgeschosswohnung auch in zwei 1-ZKB-Wohnungen aufteilen.
Im Dachgeschoss befindet sich ebenfalls der Heizungsraum. Die Gaszentralheizung wurde 2020 erneuert.
Das Kellergeschoss bietet drei Kellerräume, die ausreichend Lagerfläche bieten. Weiterhin ist eine Waschküche und ein Büroraum mit angrenzendem Duschbad vorhanden.
Auf dem Grundstück sind 4 Kfz-Stellplätze vorhanden.
Lage
Lindschied mit ca. 500 Einwohnern ist ein Stadtteil der Kreisstadt Bad Schwalbach im südhessischen Rheingau-Taunus-Kreis. Bad Schwalbach können Sie in wenigen Minuten mit dem Auto oder dem Bus erreichen.
Das idyllische Bad Schwalbach liegt im westlichen Taunus, nur 20 km von der Landeshauptstadt Wiesbaden entfernt und unmittelbar vor den Toren des Rheingaus. Der traditionsreiche Kurort ist eines der ältesten hessischen Heilbäder und seit 2014 ein anerkannter und beliebter Kneippkurort. Die Kreisstadt besitzt ein Mineral- und Moorheilbad, sieben staatlich anerkannte Heilquellen, sowie den Linden- und Brodelbrunnen.
Unter dem Motto "Natur erleben - natürlich leben" hält Bad Schwalbach eine ganze Reihe von Angeboten bereit. Wunderschöne Wanderrouten zum Beispiel die Premiumwanderwege Wisper Trails, ein hervorragend ausgebautes Radwegenetz und Nordic-Walking-Strecken laden ein, der Natur ein Stück näher zu kommen. Auch der große Kurpark lädt zu ausgedehnten Spaziergängen ein.
Ebenso bietet Ihnen Bad Schwalbach zahlreiche Einkaufsmöglichkeiten, Ärzte und Schulen. Weitere Informationen finden Sie unter https://www.bad-schwalbach.de/
Sonstige Angaben
Für eine erweiterte Raumansicht werden Innenräume teilweise mit einem Weitwinkelobjektiv fotografiert und können daher etwas größer wirken als Sie tatsächlich sind.
Alle in diesem Angebot enthaltenen Angaben, Abmessungen und Preisangaben beruhen auf Angaben des Verkäufers (oder eines Dritten). Die Firma Zell-Immobilien kann für die Richtigkeit und Vollständigkeit keine Gewähr übernehmen.
Für die Zusendung eines Exposés und die Vereinbarung eines Besichtigungstermines benötigen wir Ihren vollständigen Namen sowie Ihre Anschrift und Telefonnummer. Bitte füllen Sie das Kontaktformular aus!
Durch das Ausfüllen des Kontaktformulars stimmen Sie einer telefonischen Kontaktaufnahme zu.
Weitere Angebote im Rheingau und Umgebung finden Sie unter www.zell-immobilien.de
Widerrufsbelehrung für Verbraucher
Widerrufsrecht
Sie haben das Recht, binnen vierzehn Tagen ohne Angabe von Gründen diesen Vertrag zu widerrufen. Die Widerrufsfrist beträgt vierzehn Tage ab dem Tag des Vertragsabschlusses (Erhalt unseres Exposés).
Um Ihr Widerrufsrecht auszuüben, müssen Sie uns (Zell-Immobilien, Inh. Wolfgang Zell, Im Wiesental 8, 65366 Geisenheim Fax: 06722 - 91 05 98, eMail: info@zell-immobilien.de) mittels einer eindeutigen Erklärung (z.B. ein mit der Post versandter Brief, Telefax oder E-Mail) über Ihren Entschluss, diesen Vertrag zu widerrufen, informieren. Sie können dafür das beigefügte Muster-Widerrufsformular verwenden, das jedoch nicht vorgeschrieben ist.
Zur Wahrung der Widerrufsfrist reicht es aus, dass Sie die Mitteilung über die Ausübung des Widerrufsrechts vor Ablauf der Widerrufsfrist absenden.
Folgen des Widerrufs
Wenn Sie diesen Vertrag widerrufen, haben wir Ihnen alle Zahlungen, die wir von Ihnen erhalten haben, einschließlich der Lieferkosten (mit Ausnahme der zusätzlichen Kosten, die sich daraus ergeben, dass Sie eine andere Art der Lieferung als die von uns angebotene, günstigste Standardlieferung gewählt haben), unverzüglich und spätestens binnen vierzehn Tagen ab dem Tag zurückzuzahlen, an dem die Mitteilung über Ihren Widerruf dieses Vertrags bei uns eingegangen ist.
Für diese Rückzahlung verwenden wir dasselbe Zahlungsmittel, das Sie bei der ursprünglichen Transaktion eingesetzt haben, es sei denn, mit Ihnen wurde ausdrücklich etwas anderes vereinbart; in
keinem Fall werden Ihnen wegen dieser Rückzahlung Entgelte berechnet.
Haben Sie verlangt, dass die Dienstleistungen während der Widerrufsfrist beginnen sollen, so haben
Sie uns einen angemessenen Betrag zu zahlen, der dem Anteil der bis zu dem Zeitpunkt, zu dem Sie
uns von der Ausübung des Widerrufsrechts hinsichtlich dieses Vertrags unterrichten, bereits erbrachten Dienstleistungen im Vergleich zum Gesamtumfang der im Vertrag vorgesehenen Dienstleistungen entspricht.
Muster-Widerrufsformular
Wenn Sie den Vertrag widerrufen wollen, dann füllen Sie bitte dieses Formular aus und senden Sie es
zurück an:
Zell-Immobilien
Inh. Wolfgang Zell
Im Wiesental 8
65366 Geisenheim
Fax: 06722 - 91 05 98, eMail: info@zell-immobilien.de
Hiermit widerrufe(n) ich/wir (*) den von mir/uns (*) abgeschlossenen Vertrag über den Kauf der folgenden Waren (*)/ die Erbringung der folgenden Dienstleistung (*)
-Bestellt am (*)/ erhalten am (*)
-Name und Anschrift des/der Verbraucher(s)
_________ ________________________
Datum, Ort Unterschrift des/der Verbraucher(s) (nur bei Mitteilung auf Papier)
(*) Unzutreffendes streichen.
Grundriss
Grundriss
>
>
Grundriss
>
>
Grundriss
>
>
Grundriss
>
>
Adresse
65307 Bad Schwalbach
Interessante Orte
Preis- und Lageinformationen
Preistrend für Bestandsimmobilien in Bad Schwalbach