Perfekt für Familien mit Ansprüchen!
In diesem Anwesen lässt sich das Wohnen und das Arbeiten perfekt kombinieren.
Verkauft wird ein einzigartiges Architektenhaus in guter und ruhiger Lage von Eppertshausen.
Das gesamte Anwesen wurde in den Jahren 2012-2013 ab der Kellerdecke komplett neu aufgestellt und in hochwertiger Form für den individuellen Gebrauch erschaffen.
Es besteht aus einem großzügigen Haupthaus mit Keller sowie einem angeklebten Nebengebäude zur Gartenseite.
Das Haupthaus verfügt über insgesamt 8 Zimmer, verbunden mit ca. 188 m² reine Wohnfläche.
Der offene und helle Wohn-/Essbereich im Erdgeschoss umhüllt sozusagen die zum größten Teil geöffnete Küche mit Kochinsel und Gasherd. Ein Kaminofen im Wohnbereich eignet sich als natürliche Heizquelle, sorgt gleichzeitig aber auch für die gemütliche Atmosphäre an kälteren Tagen des Jahres.
Auf dieser Ebene befinden sich noch ein weiteres, flexibel nutzbares Zimmer, ein kleines Duschbad mit WC sowie eine komplett überdachte Terrasse, verbunden mit dem Ausblick in den Garten und in den Innenhof.
Über eine hochwertige Holzinnentreppe lässt sich das lichtdurchflutete Obergeschoss wunderbar erreichen.
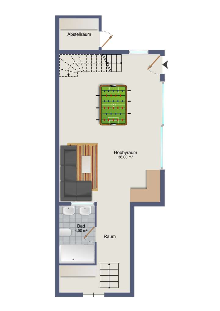
Diese Etage bietet die gewünschten Rückzugsorte, verbunden mit 4 Schlafzimmern, ein großes Tageslichtbad sowie ein großer Hobbyraum in der offenen Mitte dieser hellen Ebene.
Letztlich wäre da noch eine schicke Galerie unter dem Dach. Dieser Bereich eignet sich wunderbar als Kinderspielfläche oder als Büro.
Der Kellerbereich ist aus dem Flur im Erdgeschoss erreichbar. Hier befinden sich diverse Abstellräume, Heizungsraum, Fitnessraum sowie der direkte Zugang zur Tiefgarage mit elektrischem Rolltor.
Das gesamte Objekt wird über eine Fußbodenheizung beheizt.
Der angeklebte Anbau kann entweder über den abgeschlossenen Innenhof, oder aber auch über den Kellerbereich erreicht werden.
Die hochwertig ausgebaute Wohn-/Nutzfläche im Nebengebäude verschafft dieser Liegenschaft, neben zahlreichen weiteren Highlights, sicherlich die besondere Attraktivität.
Dieses Nebenhaus kann wunderbar für berufliche Zwecke verwendet werden. Die schöne und angemessene Fläche verteilt sich dabei auf 2 Ebenen und eignet sich daher auch für diverse, gewerbliche Dienstleistungen.
Die untere Ebene verfügt über einen offenen und hellen Raum, kombiniert mit einer Weintheke sowie einem modernen Duschbad mit WC. Das Obergeschoss verfügt ebenfalls über einen großen, offenen Raum sowie eine Dachterrasse. Besonders hervorzuheben sind sicherlich die hochwertigen, bodentiefen Fensterflächen und die offene Bauart ohne Zwischendecke im Obergeschoss. Im gesamten Anbau wurde ein pflegeleichter Natursteinboden verlegt.
Der mediterrane Garten bietet das ultimative Urlaubsgefühl.
Die überdachte Schwimmbadhalle lässt sich sowohl geschlossen im Winter, als auch mit geöffneten Seiten im Sommer wunderbar genießen und verschafft dieser Immobilie einen enormen Mehrwert.
Gleich neben dem beheizten Pool befindet sich die Außensauna und eine Außendusche sowie ein separater Raum für die Pooltechnik.
Diverse Sitzmöglichkeiten, ein Gartenhaus, sowie ein gemauerter Holzsteinofen runden dieses fantastische Gesamtpaket hervorragend ab.
Für weitere Informationen stehen wir Ihnen gerne auch persönlich zur Verfügung.
Besichtigungstermine können flexibel nach Absprache vereinbart werden.
Olivenbaum mit Luxushaus zu verkaufen
64859 Eppertshausen
Die vollständige Adresse der Immobilie erhalten Sie vom Anbieter.
Auf Karte anzeigen
Die vollständige Adresse der Immobilie erhalten Sie vom Anbieter.
Finanzierungszertifikat
In nur zwei Minuten zu Ihrem persönlichen Finanzierungszertifkat.
Infos
| Haustyp | Einfamilienhaus |
|---|---|
| Etagenzahl | 3 |
| Wohnfläche ca. | 260 m2 |
| Nutzfläche | 69 m2 |
| Grundstücksfläche | 531 m2 |
| Bezugsfrei ab | nach Absprache |
| Zimmer | 10 |
| Schlafzimmer | 6 |
| Badezimmer | 3 |
| Garage/Stellplatz | Tiefgarage |
| Anzahl Garage/Stellplatz | 3 |
Kosten
| Kaufpreis |
1.289.000 € |
|---|---|
| Provision |
2,975 % Käuferprovision inkl. Mehrwertsteuer und fällig mit Zustandekommen eines notariellen Kaufvertrages. Der Immobilienmakler hat einen provisionspflichtigen Maklervertrag mit dem Verkäufer in gleicher Höhe abgeschlossen. |
Finanzierungsrechner:
Kaufpreis:
600.000 €
Eigenkapital:
600.000 €
Monatliche Rate
0 €
Effektiver Jahreszins
0 %
Sollzinsbindung
10 Jahre
Bausubstanz & Energieausweis
| Baujahr | 1968 |
|---|---|
| Letzte Sanierung | 2024 |
| Bauphase | Haus fertig gestellt |
| Objektzustand | Neuwertig |
| Qualität der Austattung | Luxus |
| Heizungsart | Gas-Heizung |
| Wesentliche Energieträger | Gas |
| Energieausweis | liegt zur Besichtigung vor |
Beschreibung des Objekts
Ausstattung
Ein perfektes Haus fürs Leben!
Das Motto lautet: Leben, Wohnen, Arbeiten und vor allem Genießen.
- Wohnhaus mit Nebengebäude
- Ca. 260 m² Wohnfläche
- 10 Zimmer
- Keller
- Einbauküche mit Naturstein-Arbeitsplatte inbegriffen
- Tageslichtbad mit Dusche und Wanne im Obergeschoss Haupthaus
- Weiteres Duschbad mit WC im Erdgeschoss Haupthaus
- Weiteres Duschbad mit WC im Nebengebäude
- Überdachte Terrasse
- Kaminofen im Wohnbereich
- Parkettboden
- Granitboden
- Tiefgarage
- Galerie
- Weintheke im Nebengebäude
- Weitere Dachterrasse im Nebengebäude
- Mediterraner Garten
- Ganzjährig beheizter Swimmingpool mit Schwimmhalle
- Außensauna
- Gartenhaus
- Holzsteinofen
- 2 PKW-Stellplätze im abgeschlossenen Innenhof
- 3-fach verglaste Fensterflächen
- Gas-Zentralheizung
- Gedämmte Fassade
- Fußbodenheizung
Das gesamte Anwesen befindet sich in einem einwandfreien Zustand.
Lage
Das charmante Anwesen befindet sich in einer ruhigen und idyllischen Wohngegend von Eppertshausen, einer malerischen Gemeinde im Landkreis Darmstadt-Dieburg.
Die Naturliebhaber unter Ihnen werden von der Umgebung begeistert sein, da Eppertshausen von grünen Feldern und Wiesen umgeben ist. Es gibt zahlreiche Wander- und Radwege, die sich ideal für entspannende Spaziergänge oder sportliche Aktivitäten eignen. Die angenehme Atmosphäre und die vielen Grünflächen machen das Wohnen hier zu einem wahren Genuss.
Zwei Kindergärten und die Grundschule befinden sich in unmittelbaren Nähe zum Haus und können in nur wenigen Minuten fußläufig erreicht werden.
Insgesamt bietet die Lage eine harmonische Verbindung aus Ruhe und Nähe zu allen Annehmlichkeiten, die ein modernes und komfortables Lebensumfeld ausmachen. Eine ideale Gelegenheit, ein Zuhause in einer der besten Lagen von Eppertshausen zu erwerben.
Die Verkehrsanbindung ist ebenfalls ausgezeichnet. Mit dem Auto sind Sie schnell auf der Hauptstraße und der Bundesstraße B45, was eine einfache Anbindung an die umliegenden Städte und das Rhein-Main-Gebiet ermöglicht. Für Pendler ist dies ein großer Vorteil.
Der Bahnhof ist ca. 7 Gehminuten vom angebotenen Objekt entfernt.
Sonstige Angaben
HINWEIS ZUM GELDWÄSCHEGESETZ (GWG) Gesetzliche Pflichten für Immobilienmakler nach dem GWG gemäß §2 Absatz 1 Nr. 10 GWG. Nach diesem Gesetz ist jeder Immobilienmakler verpflichtet, bei Kontaktaufnahme die Identität des Kunden festzustellen. d.h. Ausweispapiere zu kopieren oder zu fotografieren und 5 Jahre aufzubewahren. Für weitere Informationen stehen wir Ihnen gern zur Verfügung.
Grundriss
Erdgeschoss
>
>
Obergeschoss
>
>
Untergeschoss
>
>
Anbau Erdgeschoss
>
>
Anbau Obergeschoss
>
PDF
Download
>
PDF Download
PDF Download
PDF Download
PDF Download
Adresse
64859 Eppertshausen
Interessante Orte
Preis- und Lageinformationen
Preistrend für Bestandsimmobilien in Eppertshausen