Bei dieser Immobilie handelt es sich um eine Doppelhaushälfte, die im späten 19. Jahrhundert erbaut wurde und heute in drei separate Wohneinheiten auf drei Etagen mit insgesamt ca. 148 m² Gesamtwohnfläche verteilt ist.
Das vollständig unterkellerte Gebäude besticht durch seine historische Ausstrahlung und liegt in einer zentrumsnahen Gegend von Peine mit hervorragender Anbindung an das Stadtzentrum. Die Wohnungen sind gut geschnitten und bieten sowohl für Kapitalanleger als auch für Familien oder Mehrgenerationenhaushalte vielseitige Nutzungsmöglichkeiten.
Das Grundstück umfasst eine Fläche von 241 m². Trotz der zentrumsnahen Lage bietet es einen praktischen, überschaubaren Gartenbereich, der eine pflegeleichte Außenanlage ermöglicht und gleichzeitig Spielraum für individuelle Gestaltung lässt.
Bei vollständiger Vermietung und einer Mietanpassung liegt die erzielbare Jahresnettomiete bei etwa 12.500 Euro.
Der Zugang zu den Wohnungen erfolgt über den Eingang an der Westseite des Hauses, von dort gelangt man ins Treppenhaus mit Verbindung zu den Kellerräumen.
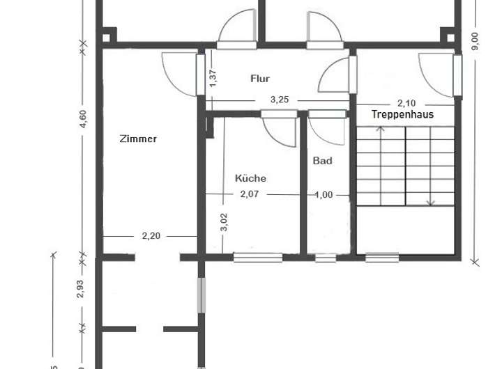
Die Erdgeschosswohnung, aktuell vom Eigentümer genutzt, stellt mit 53 m² Wohnfläche und rund 20 m² zusätzlich beheizter Nutzfläche im Anbau die größte Wohneinheit des Hauses dar. Sie verfügt über insgesamt drei Zimmer, eine Küche und ein Badezimmer.
Die Wohnung im Obergeschoss bietet auf etwa 52 m² eine gut durchdachte Raumaufteilung, bestehend aus zwei Zimmern, einer Küche, einer Diele, einem Badezimmer und einem praktischen Abstellraum.
Vom Eingangsbereich führt der Flur direkt zu den einzelnen Räumen: Auf der rechten Seite befinden sich das großzügige Wohnzimmer und das gemütliche Schlafzimmer, am Ende des Flurs die geräumige Küche. Linkerhand liegt das helle Tageslichtbad, das durch seine Nähe zum Schlafbereich besonders praktisch ist, sowie der angrenzende Abstellraum, der zusätzlichen Stauraum für alltägliche Dinge bietet.
Im Dachgeschoss befindet sich eine Zweizimmerwohnung mit ca. 43 m². Sie weist eine ähnliche Bauweise wie die Wohnung im Obergeschoss auf, mit der Ausnahme, dass Badezimmer und Küche ihre Plätze getauscht haben. Das Bad ist zudem mit einer Badewanne anstelle einer Dusche ausgestattet.
Diese Immobilie bietet vielseitige Nutzungsmöglichkeiten und großes Potenzial – sei es als rentable Kapitalanlage oder als Mehrfamilienhaus für individuelle Wohnkonzepte. Mit der Möglichkeit zur persönlichen Gestaltung stellt sie eine attraktive Gelegenheit für langfristige Investitionen dar.
Wir laden Sie ein, diese Investitionsmöglichkeit näher zu betrachten und sich von ihrem Potenzial zu überzeugen.
Handwerker aufgepasst! - Zentral gelegenes Mehrfamilienhaus mit Ausbaupotential
31224 Peine
Die vollständige Adresse der Immobilie erhalten Sie vom Anbieter.
Auf Karte anzeigen
Die vollständige Adresse der Immobilie erhalten Sie vom Anbieter.
Finanzierungszertifikat
In nur zwei Minuten zu Ihrem persönlichen Finanzierungszertifkat.
Infos
| Haustyp | Mehrfamilienhaus |
|---|---|
| Etagenzahl | 3 |
| Wohnfläche ca. | 148 m2 |
| Nutzfläche | 20 m2 |
| Grundstücksfläche | 241 m2 |
| Zimmer | 7 |
| Schlafzimmer | 3 |
| Badezimmer | 3 |
Kosten
| Kaufpreis |
170.000 € |
|---|---|
| Provision |
3,57% inkl. MwSt. |
Finanzierungsrechner:
Kaufpreis:
600.000 €
Eigenkapital:
600.000 €
Monatliche Rate
0 €
Effektiver Jahreszins
0 %
Sollzinsbindung
10 Jahre
Bausubstanz & Energieausweis
| Baujahr | 1896 |
|---|---|
| Letzte Sanierung | 2016 |
| Qualität der Austattung | Einfach |
| Heizungsart | Etagenheizung |
| Wesentliche Energieträger | Gas |
| Energieausweis | liegt zur Besichtigung vor |
Beschreibung des Objekts
Ausstattung
• Grundstücksgröße: ca. 241 m²
• Gesamtwohnfläche: ca. 148 m²
• Nutzfläche: ca. 20 m²
• Baujahr 1896
• Mehrfamilienhaus mit 3 Einheiten auf 3 Etagen
• Eine Wohnung wird vom Eigentümer bewohnt, die anderen beiden sind vermietet.
• Erzielbare Jahresnettomiete bei Mietanpassung/Vollvermietung ca. 12.500 Euro
• Das Gebäude ist voll unterkellert.
• Gas-Etagenheizung
• Im gesamten Gebäude wurden weiße Kunststofffenster eingebaut.
• Vorwiegend wurden Laminat- und Teppichbodenbeläge verlegt.
• Garten vorhanden
Lage
Peine vereint den historischen Charme einer traditionsreichen Stadt mit den Vorzügen einer hervorragend zentralen Lage und erstklassigen Verkehrsanbindung. Umgeben von den Metropolen Hannover und Braunschweig, liegt Peine inmitten der lebendigen Region Niedersachsen.
Hier finden Familien und Berufspendler gleichermaßen ein ideales Zuhause, das städtisches Leben und dörfliche Gemütlichkeit miteinander verbindet.
Für Familien ist die Umgebung attraktiv, da Kindergärten und Schulen in wenigen Minuten mit dem Auto erreichbar sind. Im nahen Umfeld befinden sich ebenfalls mehrere Grund- und weiterführende Schulen, die eine optimale Bildungsversorgung gewährleisten. Universitäten und andere Bildungsstätten in den nahegelegenen Großstädten Hannover und Braunschweig ergänzen das Angebot.
Zahlreiche Fachärzte und Apotheken stellen eine umfassende Gesundheitsversorgung sicher und bieten vielseitige Behandlungsmöglichkeiten direkt vor Ort. Das Klinikum Peine ist ebenfalls innerhalb weniger Minuten mit dem Auto erreichbar und gewährleistet eine umfassende medizinische Versorgung.
Die Immobilie befindet sich in einer zentrumsnahen Lage, die das Beste aus urbanem Komfort und nachbarschaftlicher Ruhe vereint. Nur einen kurzen Spaziergang entfernt laden Lebensmittelhändler, gut sortierte Discounter und eine Vielzahl an gemütlichen Bäckereien dazu ein, die Einkäufe des täglichen Bedarfs ganz entspannt zu erledigen. Die Innenstadt mit einer größeren Auswahl an Einkaufsmöglichkeiten, Cafés, Restaurants und dem Wochenmarkt ist in wenigen Minuten erreichbar, was die Lage besonders praktisch für Besorgungen macht.
Die Lage von Peine eröffnet Pendlern und Reisenden durch die unmittelbare Nähe zur Autobahn A2 sowie zu den wichtigen Bundesstraßen B65 und B444 ein Tor zu den umliegenden Großstädten. Hannover und Braunschweig liegen praktisch vor der Haustür und sind in kürzester Zeit erreichbar.
Regelmäßige Zugverbindungen sorgen für eine schnelle und komfortable Verbindung nach Hannover, Braunschweig und bis nach Wolfsburg und machen den öffentlichen Nahverkehr zu einer verlässlichen Alternative.
Innerhalb der Stadt und in die angrenzenden Ortschaften bringt ein gut ausgebautes Busnetz die Menschen bequem an ihr Ziel. So sind sowohl die charmante Innenstadt als auch die umliegenden Stadtteile immer gut erreichbar.
Die Altstadt von Peine liegt etwa einen Kilometer entfernt und hat viele gut erhaltene Fachwerkhäuser und historische Gebäude, die an die lange Geschichte der Stadt erinnern.
Hier gibt es eine vielfältige Auswahl an Freizeitmöglichkeiten, die für jeden Geschmack etwas bereithalten. Ob in der historischen Altstadt mit ihren Cafés und kleinen Boutiquen, beim Entspannen im Stadtpark oder bei einem Ausflug in die Natur entlang des Fuhsekanals – hier kommt keine Langeweile auf.
Zusammenfassend bietet das Objekt eine zentrale und gut angebundene Wohnlage in Peine mit einer ausgewogenen Mischung aus urbanem Komfort und naturnaher Erholungsmöglichkeit.
Sonstige Angaben
++ Gerne senden wir Ihnen auf Anfrage unser interaktives Exposé zu. Bitte beachten Sie, dass es möglicherweise im Spam-Ordner landen könnte – schauen Sie dort nach, falls es nicht in Ihrem Posteingang zu finden ist. ++
Ausführliche Detailinformationen erhalten Sie bei einer persönlichen Hausbesichtigung.
Besichtigungstermine werden ausschließlich über unser Büro vereinbart. Sie erreichen uns jederzeit unter 05731 - 55 99 87 0 – wir freuen uns auf Ihren Anruf!
Rechtliche Hinweise
Alle Angaben in diesem Exposé wurden nach bestem Wissen auf Basis der Informationen unseres Auftraggebers erstellt. Eine Haftung für Richtigkeit, Vollständigkeit und Aktualität kann nicht übernommen werden. Irrtum und Zwischenverkauf bleiben vorbehalten.
Beim Abschluss eines Kaufvertrages wird eine Vermittlungs-/Nachweisprovision in Höhe von 3,57 % inklusive 19 % Mehrwertsteuer auf den Kaufpreis des Käufers fällig.
Finanzierungsberatung – individuell & zuverlässig
Beim Kauf der eigenen vier Wände ist eine maßgeschneiderte Finanzierung entscheidend. Wir unterstützen Sie gerne und helfen Ihnen, das passende Finanzierungskonzept zu finden.
Dank unserer Zusammenarbeit mit renommierten regionalen und überregionalen Banken können wir Ihnen eine Finanzierungslösung anbieten, die genau auf Ihre Bedürfnisse abgestimmt ist.
Kostenlose Wertermittlung – Ihr Vorteil als Eigentümer
Sie überlegen, Ihre Immobilie zu verkaufen? Nutzen Sie unseren kostenlosen Service für Eigentümer:
• Marktgerechte Wertermittlung Ihrer Immobilie
• Individuelle Verkaufsstrategie für Ihr Objekt
• Persönliche Betreuung bis zum erfolgreichen Abschluss
Kontaktieren Sie uns unverbindlich – wir stehen Ihnen mit unserer Erfahrung und Marktkenntnis gerne zur Seite!
500 € Tippgeber-Provision: Empfehlen & profitieren!
Sie kennen jemanden, der eine Immobilie verkaufen möchte? Empfehlen Sie uns weiter! Sobald durch Ihre Empfehlung ein erfolgreicher Verkauf zustande kommt, erhalten Sie eine Tippgeber-Provision von 500 €.
Einfach die Kontaktdaten des Verkäufers weitergeben – wir übernehmen den Rest!
Grundriss
Grundriss KG
>
>
Grundriss EG mit Anbau
>
>
Grundriss OG
>
>
Grundriss DG
>
>
Adresse
31224 Peine
Interessante Orte
Preis- und Lageinformationen
Preistrend für Bestandsimmobilien in Peine