Das angebotene Einfamilien,- oder Mehrgenerationenhaus liegt urban in Sachsenhausen-Nord, am Museumsufer.
Hier lässt sich auch Arbeiten und Wohnen in exklusivem Ambiente unter einem Dach verbinden.
Die extravagante Immobilie eignet sich ebenfalls bestens für repräsentative Empfänge, Ausstellungen oder Events.
Das Haus mit Designerausstattung und außergewöhnlichem Flair bietet
Platz und Raum für individuelle Lebensformen auf hohem Niveau.
Die imposante Deckenhöhe von ca. 6 Metern im Hochparterre und die riesigen Fensterflächen im gesamten Haus vermitteln eine außergewöhnliche Großzügigkeit mit viel Licht.
Ein weiteres Highlight stellt der große, nach Süd-West ausgerichtete Garten mit weitläufiger Terrasse und altem Baumbestand dar.
Eine geräumige Garage sowie drei Parkplätze davor vervollständigen das Angebot.
Direkt am Main gelegen, bieten sich unzählige Outdooraktivitäten vor der Haustür an. Sehr gute, renommierte Schulen sind ebenso fußläufig erreichbar, wie die Innenstadt. In wenigen Minuten erreichen Sie sämtliche öffentlichen Verkehrsmittel inklusive den Hauptbahnhof zu Fuß.
Townhouse am Museumsufer
60596 Frankfurt am Main
Die vollständige Adresse der Immobilie erhalten Sie vom Anbieter.
Auf Karte anzeigen
Die vollständige Adresse der Immobilie erhalten Sie vom Anbieter.
Finanzierungszertifikat
In nur zwei Minuten zu Ihrem persönlichen Finanzierungszertifkat.
Infos
| Etagenzahl | 3 |
|---|---|
| Wohnfläche ca. | 370 m2 |
| Nutzfläche | 115,41 m2 |
| Grundstücksfläche | 503 m2 |
| Zimmer | 12 |
| Schlafzimmer | 5 |
| Badezimmer | 3 |
| Garage/Stellplatz | Garage |
| Anzahl Garage/Stellplatz | 1 |
Kosten
| Kaufpreis |
4.950.000 € |
|---|---|
| Provision |
Käuferprovision beträgt 3,57 % (inkl. MwSt.) des beurkundeten Kaufpreises |
Finanzierungsrechner:
Kaufpreis:
600.000 €
Eigenkapital:
600.000 €
Monatliche Rate
0 €
Effektiver Jahreszins
0 %
Sollzinsbindung
10 Jahre
Bausubstanz & Energieausweis
| Baujahr | 1915 |
|---|---|
| Letzte Sanierung | 2020 |
| Bauphase | Haus fertig gestellt |
| Objektzustand | Modernisiert |
| Qualität der Austattung | Luxus |
| Heizungsart | Zentralheizung |
| Wesentliche Energieträger | Gas |
| Energieausweis | liegt vor |
| Energieausweistyp | Verbrauchsausweis |
| Energieverbrauchskennwert | 56,0 kWh/(m²*a) |
| Energieeffizienzklasse | B |
56,0
kWh/(m²*a)
Energieeffizienzklasse B
- A+
- A
- B
- C
- D
- E
- F
- G
- H
- 0
- 25
- 50
- 75
- 100
- 125
- 150
- 175
- 200
- 225
- >250
Beschreibung des Objekts
Ausstattung
- Deckenhöhe im Erdgeschoss circa sechs Meter
- Massive Eichenparkettböden Fischgrät
- Stuckleisten mit LED-Beleuchtung
- Offene Einbauküche
- Pantry im Obergeschoss
- Schiebetüren
- Zum Teil verglaste Zimmerwände
- Verputzte Wände
- Videoüberwachung
- Puristische Designer-Badezimmer mit bodentiefen Fenstern
- Sauna im Untergeschoß
- Imposante Fensterfronten
- Dreifache Verglasung Lärmschutzfenster zur Straßenseite
- Außenjalousien
- Vier Balkone
- Großer Süd-West-Garten mit Terrasse
- Garage mit elektrischem Tor
- Drei Stellplätze vor der Garage
Lage
Südlich des Mains erstreckt sich Sachsenhausen, von den Frankfurtern auch liebevoll „Dribbdebach“ genannt - eine Dialektbezeichnung für den Stadtteil, der sich auf der südlichen Mainseite befindet– vom berühmten Museumsufer bis zum grünen Gürtel des Stadtwaldes.
Im Norden schlägt das Herz des Viertels mit seiner beeindruckenden Vielfalt: Das Museumsufer am Schaumainkai zieht Kulturfreunde aus aller Welt an, während die Flaniermeile Schweizer Straße mit ihrem Mix aus eleganten Boutiquen, traditionellen Fachgeschäften, Cafés und internationalen Delikatessen zum Bummeln und Verweilen einlädt. Alt-Sachsenhausen und die umliegenden Straßen sind über die Stadtgrenzen hinaus für seine Apfelweinkneipen bekannt und strahlt mit Kopfsteinpflastergassen, Fachwerkhäusern und urigem Charme ein Stück altes Frankfurt aus. Hier treffen historische Gemütlichkeit, moderne Neubauquartiere am Mainufer und prachtvolle Altbauten auf engstem Raum zusammen.
Eine lebendige Infrastruktur sorgt über den ganzen Stadtteil hinweg für urbanen Komfort. Der Südbahnhof mit seinem traditionsreichen Wochenmarkt, der dienstags und freitags stattfindet und ein Treffpunkt für Feinschmecker ist, unterstreicht den lokalen Charakter. Zahlreiche Brunnen und Türme prägen das Bild und die Nähe zum Main mit seinen Villen, Grünanlagen und kulturellen Angeboten macht Sachsenhausen zu einem der begehrtesten Viertel Frankfurts. Vom Sachsenhäuser Mainufer eröffnet sich ein beeindruckender Panoramablick auf die berühmte Frankfurter Skyline.
Sachsenhausen überzeugt nicht nur durch seine Wohn- und Lebensqualität, sondern auch durch eine exzellente Verkehrsanbindung. Der Frankfurter Südbahnhof zählt zu den wichtigsten Knotenpunkten der Stadt: Von hier aus verkehren die S-Bahn-Linien (S3–S6, S8, S9) sowie mehrere Bus- und Straßenbahnlinien. Die U-Bahn-Linien U1, U2, U3 und U8 verbinden Sachsenhausen direkt mit der Innenstadt, dem Bankenviertel sowie den nördlichen Stadtteilen. Über die Bundesstraßen B3, B43 und B44 sind die Autobahnen A3, A5 und A661 in wenigen Minuten erreichbar. Damit sind sowohl der Frankfurter Flughafen als auch das gesamte Rhein-Main-Gebiet optimal angebunden.
Sonstige Angaben
GELDWÄSCHE: Als Immobilienmaklerunternehmen ist die von Poll Immobilien GmbH nach § 2 Abs. 1 Nr. 14 und § 11 Abs. 1, 2 Geldwäschegesetz (GwG) dazu verpflichtet, bei der Begründung einer Geschäftsbeziehung die Identität des Vertragspartners festzustellen und zu überprüfen, bzw. sobald ein ernsthaftes Interesse an der Durchführung des Immobilienkaufvertrages besteht. Hierzu ist es erforderlich, dass wir nach § 11 Abs. 4 GwG die relevanten Daten Ihres Personalausweises festhalten (wenn Sie als natürliche Person handeln) – beispielsweise mittels einer Kopie. Bei einer juristischen Person benötigen wir eine Kopie des Handelsregisterauszugs, aus welchem der wirtschaftlich Berechtigte hervorgeht. Das Geldwäschegesetz sieht vor, dass der Makler die Kopien bzw. Unterlagen fünf Jahre aufbewahren muss. Als unser Vertragspartner haben Sie auch eine Mitwirkungspflicht nach § 11 Abs. 6 GwG.
HAFTUNG: Wir weisen darauf hin, dass die von uns weitergegebenen Objektinformationen, Unterlagen, Pläne etc. vom Verkäufer bzw. Vermieter stammen. Eine Haftung für die Richtigkeit oder Vollständigkeit der Angaben übernehmen wir daher nicht. Es obliegt daher unseren Kunden, die darin enthaltenen Objektinformationen und Angaben auf ihre Richtigkeit hin zu überprüfen. Alle Immobilienangebote sind freibleibend und vorbehaltlich Irrtümer, Zwischenverkauf- und Vermietung oder sonstiger Zwischenverwertung.
UNSER SERVICE FÜR SIE ALS EIGENTÜMER:
Planen Sie den Verkauf oder die Vermietung Ihrer Immobilie, so ist es für Sie wichtig, deren Marktwert zu kennen. Lassen Sie kostenfrei und unverbindlich den aktuellen Wert Ihrer Immobilie professionell durch einen unserer Immobilienspezialisten einschätzen. Unser bundesweites und internationales Netzwerk ermöglicht es uns, Verkäufer bzw. Vermieter und Interessenten bestmöglich zusammenzuführen.
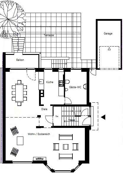
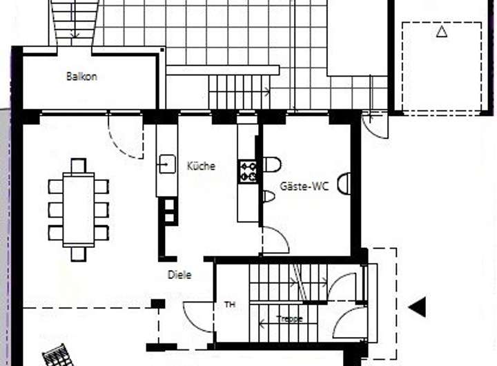
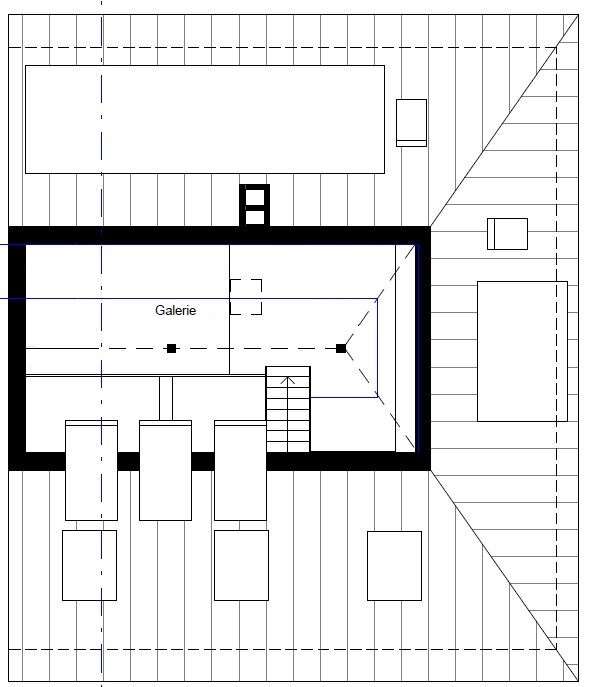
Grundriss
Erdgeschoss / Hochparterre
>
>
1. Obergeschoss
>
>
2. Obergeschoss
>
>
Dachgeschoss
>
>
Spitzboden
>
>
Untergeschoss
>
>
Adresse
60596 Frankfurt am Main
Interessante Orte
Preis- und Lageinformationen
Preistrend für Bestandsimmobilien in Sachsenhausen-Nord