Diese moderne Doppelhaushälfte aus dem Jahr 2013 bietet höchsten Wohnkomfort in einem klimaeffizienten KfW-40-Niedrigenergiehaus. Dank einer nachhaltigen Geothermie-Wärmepumpe und einer Photovoltaikanlage liegt der Energieverbrauch bei nur ca. 34,3 kWh, was der Energieeffizienzklasse „A“ entspricht. Für wohlige Wärme sorgt die Fußbodenheizung im gesamten Haus.
Auf einer Wohnfläche von ca. 108 m² verteilen sich fünf gut geschnittene Zimmer. Besonders beeindruckend ist der ca. 33 m² große Wohnbereich mit bodentiefen Fenstern, die für eine helle und freundliche Atmosphäre sorgen. Alle Fenster im Haus sind dreifach verglast.
Die hochwertige Einbauküche ist mit Elektrogeräten von Miele und AEG ausgestattet. Hier befinden sich zudem eine Waschmaschine und ein Trockner. Zusätzlichen Stauraum bieten der Spitzboden sowie der Hauswirtschaftsraum.
Das Grundstück ist ideell geteilt und umfasst ca. 179 m². Die nach Südosten ausgerichtete Terrasse lädt zum Entspannen ein und bietet einen schönen Blick auf den Wanderweg an der Susebek. Ein Stellplatz befindet sich in unmittelbarer Nähe zum Haus.
Die Lage ist ideal für Familien: Eine Kita ist nur ca. 130 m entfernt, das Gymnasium erreicht man in ca. 210 m.
Das monatliche Hausgeld beträgt 539 €, davon 399 € für laufende Kosten wie Müllentsorgung, Gartenpflege und Winterdienst sowie 140 € für die Rücklagenbildung.
.
Klimaeffizient und neuwertig: Doppelhaushälfte in familienfreundlicher Lage
22339 Hamburg
Die vollständige Adresse der Immobilie erhalten Sie vom Anbieter.
Auf Karte anzeigen
Die vollständige Adresse der Immobilie erhalten Sie vom Anbieter.
Finanzierungszertifikat
In nur zwei Minuten zu Ihrem persönlichen Finanzierungszertifkat.
Infos
| Haustyp | Doppelhaushaelfte |
|---|---|
| Wohnfläche ca. | 108 m2 |
| Grundstücksfläche | 179 m2 |
| Zimmer | 5 |
| Schlafzimmer | 4 |
| Badezimmer | 1 |
| Garage/Stellplatz | Außenstellplatz |
| Anzahl Garage/Stellplatz | 1 |
Kosten
| Kaufpreis |
625.000 € |
|---|---|
| Provision |
Käuferprovision 3,57 % (inkl. MwSt) des beurkundeten Kaufpreises. |
Finanzierungsrechner:
Kaufpreis:
600.000 €
Eigenkapital:
600.000 €
Monatliche Rate
0 €
Effektiver Jahreszins
0 %
Sollzinsbindung
10 Jahre
Bausubstanz & Energieausweis
| Baujahr | 2013 |
|---|---|
| Objektzustand | Neuwertig |
| Heizungsart | Fußbodenheizung |
| Wesentliche Energieträger | expose.parameter.energySourcesEnev2014.COMBINED_HEAT_AND_POWER_REGENERATIVE_ENERGY |
| Energieausweis | liegt vor |
| Energieausweistyp | Verbrauchsausweis |
| Energieverbrauchskennwert | 34,3 kWh/(m²*a) |
| Energieeffizienzklasse | A |
34,3
kWh/(m²*a)
Energieeffizienzklasse A
- A+
- A
- B
- C
- D
- E
- F
- G
- H
- 0
- 25
- 50
- 75
- 100
- 125
- 150
- 175
- 200
- 225
- >250
Beschreibung des Objekts
Ausstattung
- Moderne Doppelhaushälfte in Hamburg - Hummelsbüttel
- Baujahr ca. 2013
- Klimaeffizientes KFW 40 Niedrigenergiehaus mit Geothermie-Wärmepumpe und Photovoltaikanlage. Im Haus ist zudem ein Lüftungssystem mit Be- und Entlüftung sowie Wärmerückgewinnung integriert
- Mit einem Energieverbrauch von ca. 34,3 kWh liegt das Haus in Energieeffiziensklasse "A". Im Haus wird außerdem über die Fußbodenheizung geheizt
- Wohnflächengröße von ca. 108m² mit 5 Zimmern
- Die Küche beinhaltet Elektrogeräte der Firma Miele und AEG. Zudem befinden sich hier auch die Waschmaschine und der Trockner
- Überall im Haus befinden sich dreifachverglaste Fenster. Besonders die bodentiefen Fenster im ca. 33m² Wohnbereich sorgen für eine helle Atmosphäre
- Für Stauraum sorgen sowohl der Spitzboden als auch der Hauswirtschaftsraum
- Das Grundstück ist ideell geteilt und ca. 179m² groß. Die Terrasse befindet sich in südöstlicher Ausrichtung. Von hier aus schaut man auf den Wanderweg an der Susebek
- Der Stellplatz (ca. 5m * 2,30m) befindet sich in unmittelbarer Nähe zum Haus
- Die nächstgelegene Kita ist ca. 130m entfernt, auch das Gymnasium (ca. 210m) ist schnell erreichbar
- Hausgeld in Höhe von 539€. 399€ Hausgeld (Müll, Gartenpflege, Winterdienst etc.) + 140€ für Rücklagenbildung
Lage
Die Doppelhaushälfte liegt im schönen und grünen Stadtteil Hamburg-Hummelsbüttel in einem verkehrsberuhigten Wohngebiet.
Hummelsbüttel gehört mit seinen ca. 18.400 Einwohnern zu den gefragten Wohnlagen im Alstertal und wird dem Bezirk Wandsbek zugeordnet.
Die vielen Grünflächen und Naturschutzgebiete, wie die „Sievertsche Tongrube“, das „Raakmoor“ oder auch die „Hummelsbütteler Moore“ laden zu ausgiebigen Spaziergängen ein.
Diverse Einkaufsmöglichkeiten bietet neben dem kleinen "Einkaufszentrum Hummelsbüttel" das „Alstertal Einkaufszentrum“ mit seinen vielen, exklusiven Fachgeschäften. Darüber hinaus befinden sich hier diverse Restaurants und Ärzte, sowie das „MeridianSpa Alstertal“.
Die Mikrolage nochmal in der Übersicht:
- Kita ca. 130m entfernt
- Gymnasium ca. 210m entfernt
- Hummelsbütteler Sportverein von 1929 e.V. ca. 240m entfernt
- Bushaltestelle ist ca. 400m entfernt
- "Edeka" ist ca. 700m entfernt, "Penny" ca. 800m. Das kleine "Einkaufszentrum Hummelsbüttel" befindet sich ebenfalls hier
- "Aspria Hamburg Alstertal" ist ca. 1,4km entfernt
- Einkaufszentrum "La Ho Ma" ca. 2,2km entfernt, das "AEZ" ca. 4,3km
Sonstige Angaben
1.Maklervertrag:
Ein Maklervertrag kommt durch Inanspruchnahme unserer Dienstleistung zustande.
2. Weitergabe:
Die von uns ausgehändigten Unterlagen, Objektinformationen, Pläne etc. dürfen nicht an Dritte weitergegeben werden. Ausnahme besteht nur durch eine schriftliche Genehmigung von der Firma Hansen & Hansen Immobilien Kontor.
3.Objektinformationen:
Alle Objektinformationen erhalten wir durch Dritte. Wir übernehmen daher keine Haftung für die Richtigkeit und Vollständigkeit der Angaben. Dem Kunden obliegt eine Prüfung auf Richtigkeit und Vollständigkeit der Objektinformationen selbständig.
Alle Immobilienangebote sind freibleibend und vorbehaltlich Irrtümer, Zwischenverkauf- und Vermietung oder sonstiger Zwischenverwertung.
4.Interessenten:
Interessenten die von der Firma Hansen & Hansen Immobilien Kontor Daten über ein von uns betreutes Objekt erhalten haben und sich direkt mit unserem Kunden in Verbindung setzen und es dadurch zu einem wirksamen Hauptvertrag (Miet- Kaufvertrag) kommt, haften für unsere Courtage in voller Höhe.
5. Provision:
Die Provision ist verdient und fällig, sobald ein rechtswirksamer Hauptvertrag (Miet/Kaufvertrag) zustande gekommen ist. Die Provision ist jeweils vom Verkäufer und Käufer zu zahlen. Sie beträgt für beide Parteien jeweils 3,57 % (inkl. MwSt.) des beurkundeten Kaufpreises.
6. Vollmacht:
Die Firma Hansen & Hansen Immobilien Kontor erhält von dem Auftraggeber die Vollmacht alle relevanten Daten für eine erfolgreiche Vermarktung, nach Maßnahmen der gesetzlichen Regelung, zu verarbeiten.
7. Datenschutz: Der Verkäufer, Käufer oder Interessent erklärt sich ausdrücklich damit einverstanden, dass die Firma Hansen&Hansen Immobilien Kontor GbR, Alsterdorfer Markt 10, 22297 Hamburg, zur Erfüllung Ihrer Verpflichtungen befugt ist, die notwendigen personenbezogenen Daten des Verkäufers, Käufers oder Interessenten nach Maßgabe der gesetzlichen Regelungen zu verarbeiten.
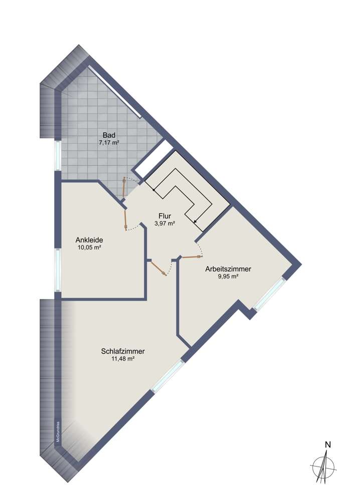
Grundriss
Erdgeschoss
>
>
Obergeschoss
>
>
Dachgeschoss
>
>
Adresse
22339 Hamburg
Interessante Orte
Preis- und Lageinformationen
Preistrend für Bestandsimmobilien in Hummelsbüttel