Einzigartiges, geräumiges Architektenhaus aus dem Jahre 1962. Lichtdurchflutete Räume, große Fenster, Atrium.
Vorderhaus 1 Geschoss, Hinterhaus 2 -Geschossig, gebaut im Bungalowstil der frühen 60er Jahre.
Es handelt sich um den Entwurf eines bekannten Hamburger Architekten mit vielen schönen Details.
Das Grundstück liegt in einer sehr ruhigen Sackgasse und ist mit der Front nach Süden ausgerichtet, umgeben von einem schönen Garten.
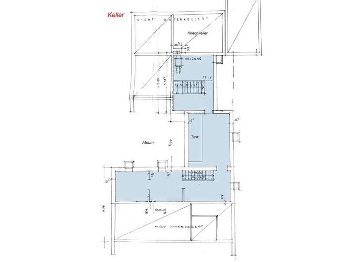
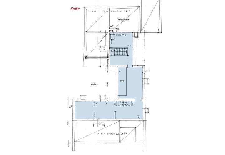
Das Haus ist weitgehend unterkellert, mit barrierefreiem Zugang und 3 Bädern. Vorder-und Hinterhaus sind durch eine Innentür, bzw. einen Wanddurchbruch verbunden. Heizungsanlage ist eine Ölheizung.
Das Haus ist kurzfristig bezugsfertig, Modernisierungsmaßnahmen sollten allerdings einkalkuliert werden (Küche, Bäder, Fenster, evtl. energetische Sanierung).
Architektenhaus in Hamburg Rissen
22559 Hamburg
Die vollständige Adresse der Immobilie erhalten Sie vom Anbieter.
Auf Karte anzeigen
Die vollständige Adresse der Immobilie erhalten Sie vom Anbieter.
Finanzierungszertifikat
In nur zwei Minuten zu Ihrem persönlichen Finanzierungszertifkat.
Infos
| Haustyp | Einfamilienhaus |
|---|---|
| Etagenzahl | 2 |
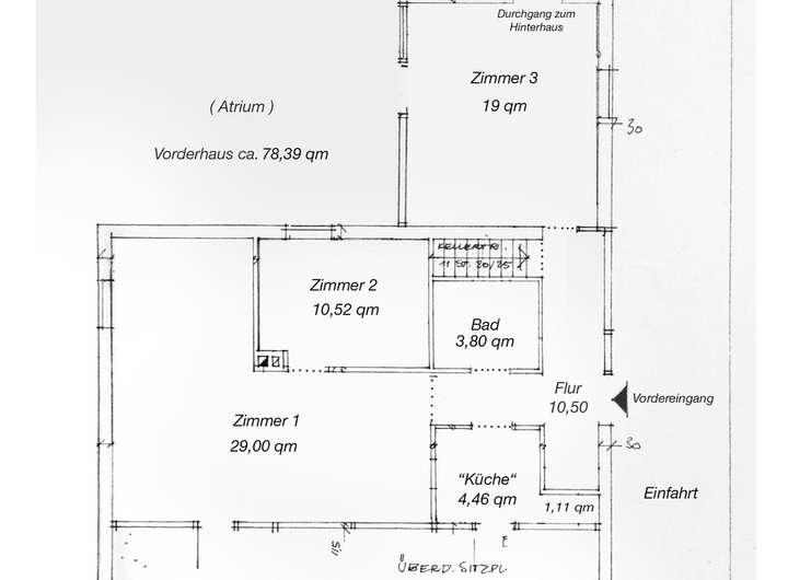
| Wohnfläche ca. | 189 m2 |
| Grundstücksfläche | 859 m2 |
| Bezugsfrei ab | nach Absprache |
| Zimmer | 7 |
| Schlafzimmer | 2 |
| Badezimmer | 3 |
| Garage/Stellplatz | Garage |
| Anzahl Garage/Stellplatz | 1 |
Kosten
| Kaufpreis |
839.000 € |
|---|---|
| Provision | Nein |
Finanzierungsrechner:
Kaufpreis:
600.000 €
Eigenkapital:
600.000 €
Monatliche Rate
0 €
Effektiver Jahreszins
0 %
Sollzinsbindung
10 Jahre
Bausubstanz & Energieausweis
| Baujahr | 1962 |
|---|---|
| Bauphase | Haus fertig gestellt |
| Objektzustand | Renovierungsbedürftig |
| Heizungsart | Zentralheizung |
| Wesentliche Energieträger | Öl |
| Energieausweis | liegt zur Besichtigung vor |
Beschreibung des Objekts
Ausstattung
Balkon, Terrasse, Garten, Keller, Vollbad, Duschbad, Einbauküche, Gäste-WC, Parkett, Fliesen
Bemerkungen:
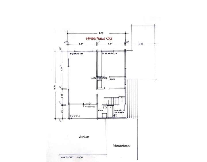
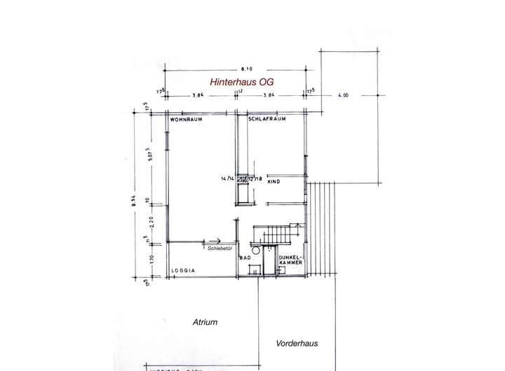
Das Haus besitzt 2 Haupteingänge, von dem der vordere Barrierefrei ist, beim hinteren müssen 2 Stufen überwunden werden.
Raumhöhe zwischen 2,39 und 2,44.
Aus der Baubeschreibung:
Wände in Keller und Erdgeschoss Kalksandstein, im Erdgeschoss rotes Ziegel-Verblendmauerwerk.
Obergeschoss als Holzskelettkonstruktion mit 10 cm Leca-Ausmauerung. Innere Verkleidung mit 10 mm Novopanplatten und Isolierung aus 3 cm Hartschaumplatten. Isolierung des Kellers durch Sperrputz und Sohlendichtung. Keller und Erdgeschossdecke Stahlbeton, 10 bzw 12 cm stark.
Dachkonstruktion: Holzpfetten mit innerer und äußerer Schalung, Isolierung durch 2 cm Hartschaumplatten und Dämmstoffbahnen (60 mm).
Erd- und Obergeschoss mit schwimmendem Estrich auf Silan-Trittschallplatten bzw. 1cm Hartschaumplatten.
Lage
Die Immobilie liegt in einer sehr ruhigen Sackgassen- Wohnlage in Hamburg Rissen. Die Buslinie 388 verläuft in nur 100m Entfernung.
S- Bahn Anschluss über Haltestelle Rissen.
Fußläufig erreicht man sowohl das Erholungsgebiet Tinsdaler Heide mit angrenzendem Elbufer Wittenbergen, als auch die Einkaufsmöglichkeiten des Rissener Dorfkerns. Die Schulen Iserbarg und Vosshagen sind besonders leicht und schnell erreichbar.
Der herrliche, weitläufige Naturlandschaft des Forst Klövensteen mit dem WIldgehege ist auch mit dem Fahrrad schnell erreichbar.
Infrastruktur (im Umkreis von 5 km):
Apotheke, Lebensmittel-Discount, Allgemeinmediziner, Kindergarten, Grundschule, Realschule, Gymnasium, Gesamtschule, Öffentliche Verkehrsmittel
Sonstige Angaben
Heizungsart: Zentralheizung
Energieträger: Öl
Energieausweis nicht vorhanden
ohne-makler (OM) ist weder Anbieter noch Vermittler der Immobilie. OM betreibt eine Plattform für Immobilieneigentümer, die unter anderem die gleichzeitige Veröffentlichung einzelner Inserate auf mehreren Immobilienportalen ermöglicht. Die Inhalte dieser Inserate werden ausschließlich von Dritten verantwortet. Für die Richtigkeit, Vollständigkeit oder Rechtmäßigkeit der Angaben übernimmt OM keine Haftung. Hinweise auf mögliche Rechtsverstöße können jederzeit gemeldet werden und werden nach Prüfung umgehend bearbeitet.
Grundriss
Aussenansicht Zeichnungen
>
>
Hinterhaus EG
>
>
Hinterhaus OG
>
>
Vorderhaus Qm
>
>
Keller
>
>
Adresse
22559 Hamburg
Interessante Orte
Preis- und Lageinformationen
Preistrend für Bestandsimmobilien in Rissen