Diese Doppelhaushälfte bietet Ihnen viel Raum für Ihre Wohnideen. Die 300m² Grundstück und 5 geräumige Zimmer bilden den perfekten Rahmen für Ihr neues Zuhause.
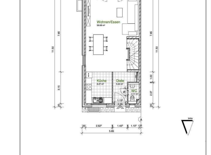
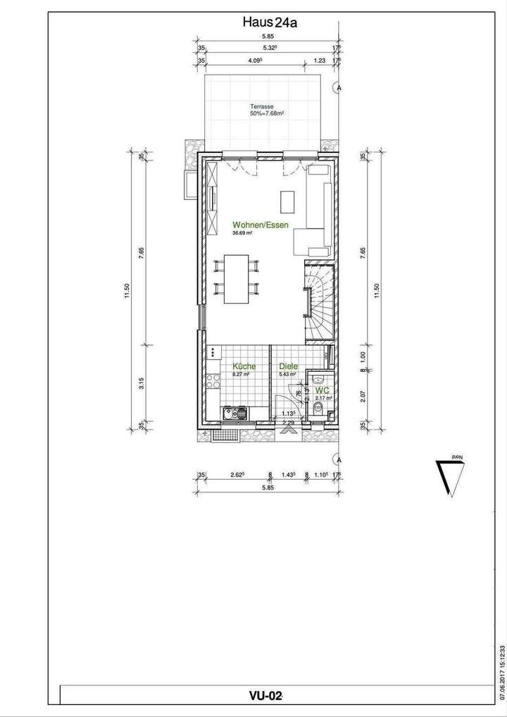
Das Haus inmitten der weitläufigen Wälder des Naturparks Hochtaunus ist optimal auf Ihre Bedürfnisse abgestimmt, dazu noch energieeffizient. Freuen Sie sich auf edles Parkett in den Wohnräumen, schicke Fliesen im Bad und einen Platz für den Liegestuhl auf der eigenen Terrasse mit Garten. Der großzügige Wohn-Essbereich mit offener Küche lädt ein zum gemeinsamen Kochen und bietet genügend Platz für gesellige Abende. Alle Räume sind mit einer Fußbodenheizung ausgestattet. Kleiner Komfort, große Wirkung. Der eigenen Stellplätze vor dem Haus erspart Ihnen die abendliche Parkplatzsuche.
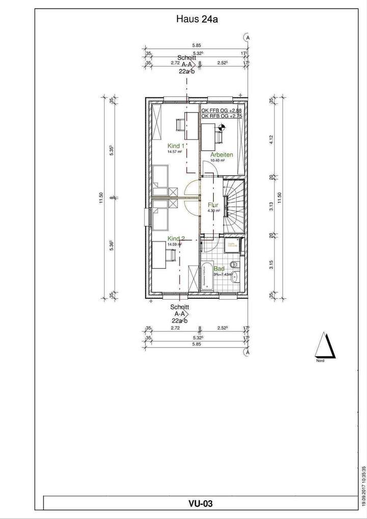
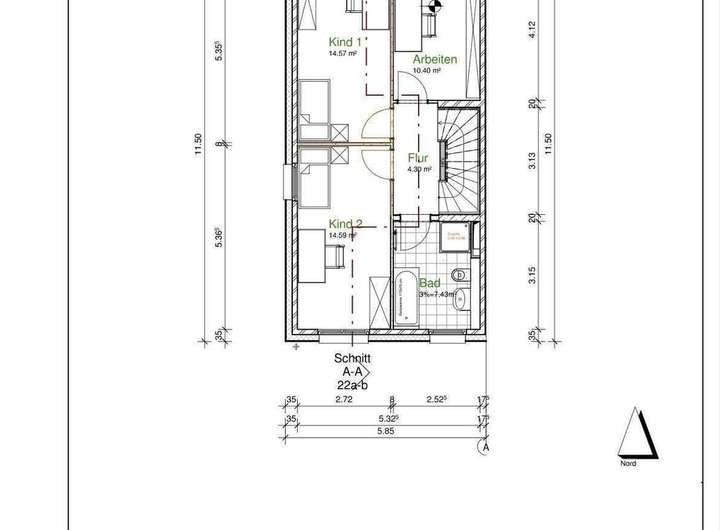
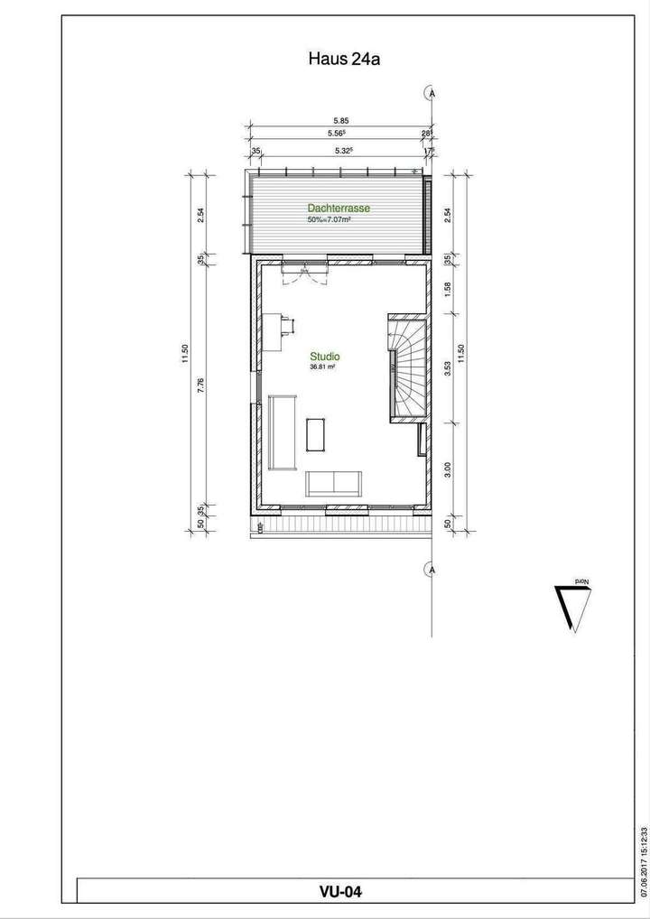
Das Studio im Dachgeschoss bietet zudem diverse Varianten. Nutzen Sie die Fläche etwa für einen Hobbyraum oder für ein weiteres Schlafzimmer.
Rücken Sie den Liegestuhl zurecht, spannen den Sonnenschirm auf und freuen sich auf den neuesten Krimi bei einem selbstgemachten Smoothie. Die Terrasse mit Garten erweitert Ihr Haus auf wunderbare Weise ins Grüne. Von den Blumenkästen her duftet es nach Lavendel und Jasmin, die Kinder tollen mit dem Hund auf der Wiese.
Das Hau ist in Leerstand
**Wohnen mit Garten und Feldblick** neuwertige Doppelhaushälfte mit EBK und 2 Stellplätze
61191 Rosbach vor der Höhe
Die vollständige Adresse der Immobilie erhalten Sie vom Anbieter.
Auf Karte anzeigen
Die vollständige Adresse der Immobilie erhalten Sie vom Anbieter.
Finanzierungszertifikat
In nur zwei Minuten zu Ihrem persönlichen Finanzierungszertifkat.
Infos
| Haustyp | Doppelhaushaelfte |
|---|---|
| Etagenzahl | 3 |
| Wohnfläche ca. | 160 m2 |
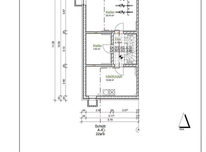
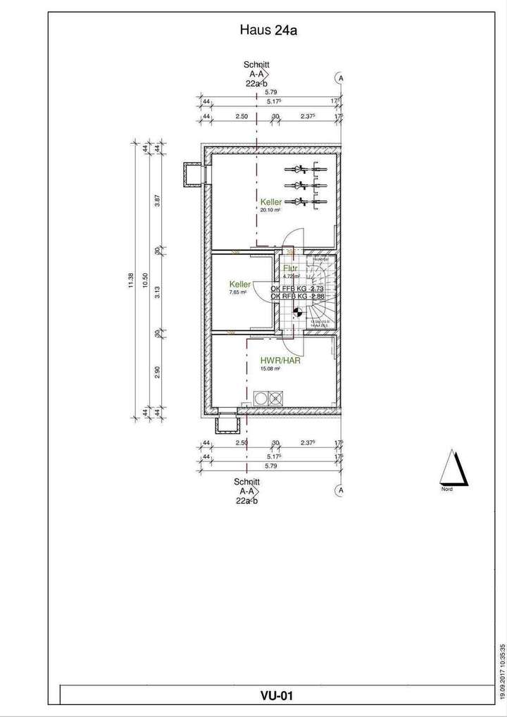
| Nutzfläche | 48 m2 |
| Grundstücksfläche | 300 m2 |
| Bezugsfrei ab | sofort |
| Zimmer | 5 |
| Schlafzimmer | 3 |
| Badezimmer | 3 |
| Anzahl Garage/Stellplatz | 2 |
Kosten
| Kaufpreis |
825.000 € |
|---|---|
| Provision |
3,57% des ges. Kaufpreises inkl. MwSt. Der Anbieter erhält von Ihnen bei Abschluss eines durch ihn vermittelten notariell beurkundeten Kaufvertrages zu dieser Immobilie die oben angegebene Provision. |
Finanzierungsrechner:
Kaufpreis:
600.000 €
Eigenkapital:
600.000 €
Monatliche Rate
0 €
Effektiver Jahreszins
0 %
Sollzinsbindung
10 Jahre
Bausubstanz & Energieausweis
| Baujahr | 2018 |
|---|---|
| Objektzustand | Neuwertig |
| Qualität der Austattung | Gehoben |
| Heizungsart | Fußbodenheizung |
| Wesentliche Energieträger | Fernwärme |
| Energieausweis | liegt zur Besichtigung vor |
Beschreibung des Objekts
Ausstattung
- hochwertige Einbauküche mit marken Elektrogeräten
- Fußbodenheizung
- hochwertiges Parkett und Fliesen
- Fenster mit Dreifachverglasung
- Elektrische Rollladen
- Hochmoderne Multimediaverkabelung
- 2 Badezimmer und 1 Gäste-WC (alle mit Tageslicht)
- 2x Außenstellplatz, kann aber bis 4 Autos parken
- Glasfaser angeschlossen
Lage
Zum Laufen in den Taunus, zum Shoppen nach Frankfurt. Naturnah und unweit der Metropole entsteht in Rosbach diese gut ausgestattete Doppelhaushälfte.
Erkunden Sie Wege zu Fuß oder auf dem Rad im Naturpark Hochtaunus. Oder Sie trinken einen Cappuccino zwischen Fachwerkhäusern. Ihr neues Zuhause in Rosbach im Wetteraukreis bietet viele Möglichkeiten.
Ein Supermarkt finden Sie in 300 Meter entfernt, und das Neubaugebiet bekommt künftig sogar einen eigenen Supermarkt. Eine Drogerie und eine Bäckerei gibt es dann zudem als Bonus.
Verkehrsanbindung:
Gut vernetzt: Zur Bushaltestelle sind es kaum 200 Meter. Die Linie 33 bringt Sie in fünf Minuten ins Zentrum von Ober-Rosbach oder zum Bahnhof von Nieder-Rosbach. Eine dreiviertel Stunde später schlendern Sie bereits über den Frankfurter Römer.
Sonstige Angaben
Haftungshinweis:
Wir weisen darauf hin, dass die von uns weitergegebenen Objektinformationen, Unterlagen, Pläne etc. vom Vermieter stammen. Eine Haftung für die Richtigkeit oder Vollständigkeit der Angaben übernehmen wir daher nicht. Es obliegt daher unseren Kunden, die darin enthaltenen Objektinformationen und Angaben auf ihre Richtigkeit hin zu überprüfen. Alle Immobilienangebote sind freibleibend und vorbehaltlich Irrtümer, Zwischenverkauf- und Vermietung oder sonstiger Zwischenverwertung.
Wir freuen uns auf Ihre Besichtigung.
Übrigens... Falls Sie Ihre Immobilie verkaufen oder vermieten möchten, sind wir gerne für Sie tätig. Unsere langjährige Erfahrung auf dem Immobilienmarkt führen zu einer realistischen Marktwerteinschätzung. Ein zügiger Verkaufs-/Vermietungserfolg ist somit gegeben. Senden Sie uns eine E-Mail an: info@sun-immobilien.com
Adresse
61191 Rosbach vor der Höhe
Interessante Orte
Preis- und Lageinformationen
Preistrend für Bestandsimmobilien in Rosbach vor der Höhe
>
>
>
>