In absolut begehrter und ruhiger Sackgassenlage befindet sich dieses freistehende, zweigeschossige Einfamilienhaus mit großem Potenzial. Errichtet wurde das Haus im Jahre 1972. Auf dem massiv gemauerten Erdgeschoss befindet sich ein eingeschossiges Fertighaus mit Flachdach.
Das Haus liegt in erhabener Hanglage und eröffnet einen fantastischen Fernblick über die Rheinebene sowie ins Grüne. Das Haus bietet eine Vielzahl von Entwicklungsmöglichkeiten, die wir Ihnen gerne telefonisch oder in einem persönlichen Gespräch näher erläutern. Eine große Doppelgarage rundet dieses einmalige Angebot ab.
HIGHLIGHTS IM ÜBERBLICK:
+ ruhiges Wohnen in Sackgassenlage
+ fantastischer Fernblick
+ durch die Hanglage helle Räume im gesamten Haus
+ attraktive und begehrte Wohnanlage
+ großzügiges Wohnzimmer mit Terrasse
+ gute Bausubstanz des Untergeschosses
+ Entwicklungspotenzial vorhanden
+ großzügige Doppelgarage
+ viel Platz für die ganze Familie
SCHWIND IMMOBILIEN - traumhafte Lage trifft auf Haus mit Optionen
64342 Seeheim-Jugenheim
Die vollständige Adresse der Immobilie erhalten Sie vom Anbieter.
Auf Karte anzeigen
Die vollständige Adresse der Immobilie erhalten Sie vom Anbieter.
Finanzierungszertifikat
In nur zwei Minuten zu Ihrem persönlichen Finanzierungszertifkat.
Infos
| Haustyp | Einfamilienhaus |
|---|---|
| Etagenzahl | 2 |
| Wohnfläche ca. | 205 m2 |
| Nutzfläche | 46,37 m2 |
| Grundstücksfläche | 607 m2 |
| Bezugsfrei ab | sofort |
| Zimmer | 7 |
| Schlafzimmer | 6 |
| Badezimmer | 2 |
| Garage/Stellplatz | Garage |
| Anzahl Garage/Stellplatz | 2 |
Kosten
| Kaufpreis |
439.000 € |
|---|---|
| Provision |
3,57 % des Kaufpreises inkl. 19 % MwSt. |
Finanzierungsrechner:
Kaufpreis:
600.000 €
Eigenkapital:
600.000 €
Monatliche Rate
0 €
Effektiver Jahreszins
0 %
Sollzinsbindung
10 Jahre
Bausubstanz & Energieausweis
| Baujahr | 1972 |
|---|---|
| Objektzustand | Renovierungsbedürftig |
| Qualität der Austattung | Normal |
| Heizungsart | Öl-Heizung |
| Wesentliche Energieträger | Öl |
| Energieausweis | liegt zur Besichtigung vor |
Beschreibung des Objekts
Ausstattung
AUFTEILUNG & SCHNITT:
Das Haus besticht durch seine großzügige Raumaufteilung sowie den durchdachten Grundriss. Über die in den Hang errichtete Treppe erreichen Sie das Erd- und von hier aus weiter, das Obergeschoss. Auf der oberen Ebene angekommen, erwartet Sie eine geschützte Terrasse und der Zugang zum Haus.
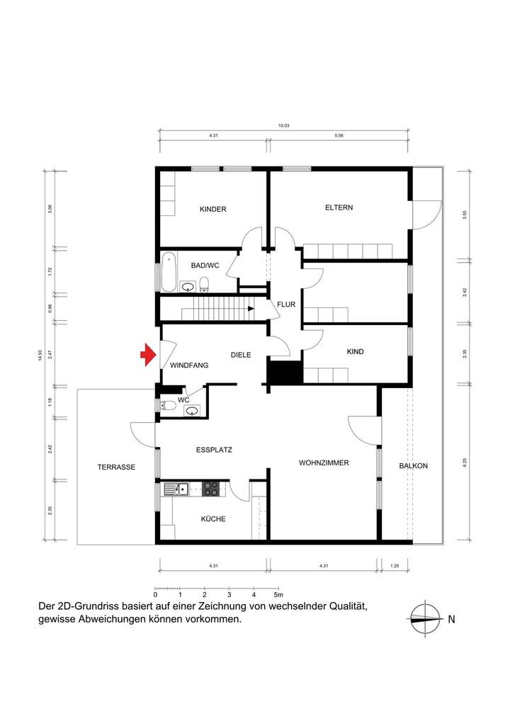
Der großzügige Eingangsbereich bietet ausreichend Platz für eine große Garderobe. Ein Gäste-WC ist hier ebenfalls untergebracht. Vom Eingangsbereich aus geht es rechter Hand zum großzügigen Wohn- und Essbereich und linker Hand zu den Schlaf-/Gäste-/Arbeitszimmer.
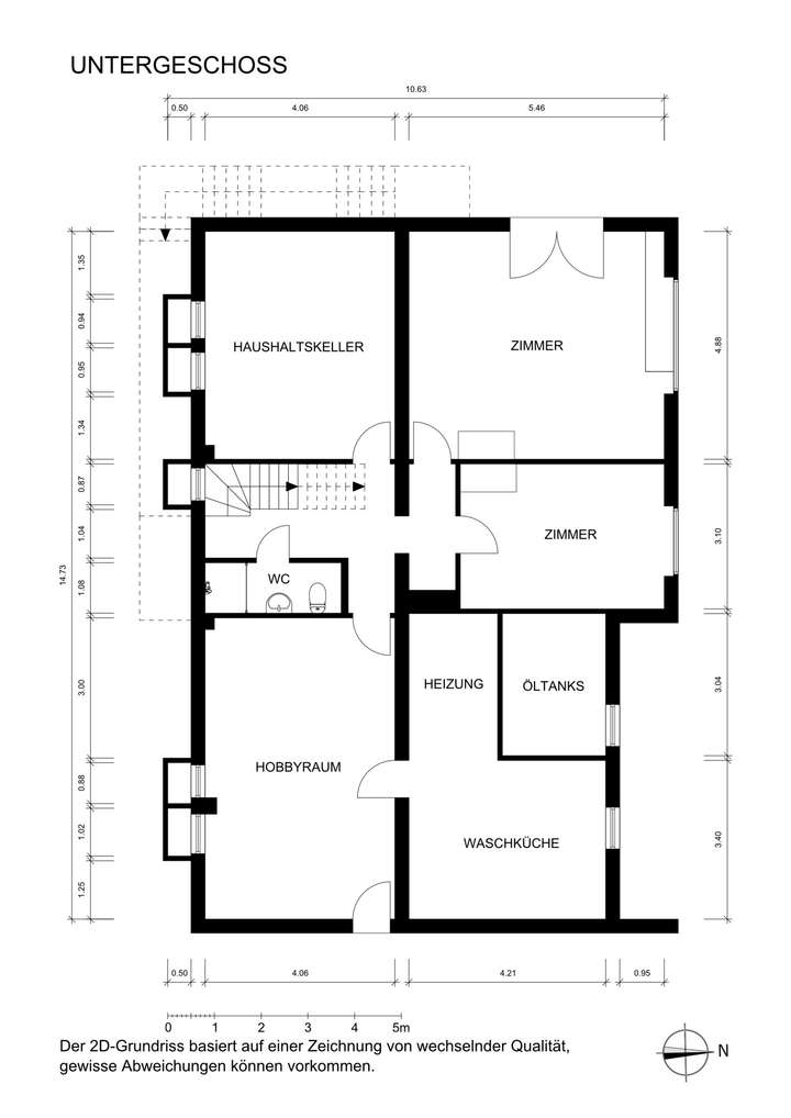
Der lichtdurchflutete Wohnbereich hat Zugang zur geschützten Terrasse auf der Hangseite, als auch zum Tal hin ausgerichteten Balkon mit unvergleichlichem Ausblick. Das Raumangebot im Obergeschoss umfasst insgesamt vier Schlafzimmer, die vielfältig nutzbar sind: ob als Kinder-, Gäste-, Arbeits- oder Hobbyzimmer. Ein Tageslichtbadezimmer rundet das Raumangebot in dieser Etage ab. Über eine Treppe geht es weiter in das massiv gemauerte Erd- bzw. Untergeschoss. Hier befinden sich zwei weitere vielfältig nutzbare Zimmer, ein Haushaltskeller sowie das Dusch-Bad. Diese Fläche könnte dank des zweiten Eingangs entweder als Einliegerwohnung oder Büro genutzt werden. Ein weiterer Hobbyraum, ein Heizungsraum mit Lagermöglichkeiten bieten weitere Nutzflächen auf dieser Ebene.
Das freistehende Haus befindet sich in einer der begehrtesten Wohnlagen von Seeheim-Jugenheim. Hier verbinden sich Ruhe und Natur auf ideale Weise - ein ideales Zuhause für Menschen, die das Besondere suchen.
ZUSTAND & OPTIONEN:
Das Haus (obere Etage) wurde in Holzständerbauweise errichtet. Aufgrund des Gesamtzustands (stark renovierungsbedürftig) können Sie entscheiden, ob Sie mittels einer Kernsanierung die Flächen zu neuem Glanz verhelfen oder aber nach Abriss der oberen Etage ein individuell auf Ihre Bedürfnisse angepasstes Wohnhaus errichten.
Nach ersten Auskünften des Bauamts wäre auch eine weitere Etage (Staffelgeschoss) möglich. Der Abriss wurde auf ca. 35.000 € geschätzt. Der Gesamtzustand wurde bereits bei der Ermittlung des Kaufpreises berücksichtigt. Alleine der Grundstückswert liegt bei über 470.000 €, sodass Sie mit diesem Haus eine seltene Gelegenheit in Hanglage von Seeheim erhalten.
Nutzungsmöglichkeiten wären daher:
- Kernsanierung (Kostenschätzung ca. 450.000 €)
- Abriss der oberen Etage und Errichtung von 1- bzw. 2 Geschossen
- Komplettabriss und Neubau
- Nutzung als Einfamilienhaus
- Nutzung als Zweifamilienhaus
Nutzen Sie die zahlreichen Fördermöglichkeiten von Kfw und BAFA, um in dieser besonderen Lage Ihr neues Zuhause zu ermöglichen. Sprechen Sie uns gerne an, wir beraten Sie bezüglich der Optionen und stellen Ihnen unser gesamtes Netzwerk aus Architekten, Handwerkern und Finanzierern zur Seite.
Wir freuen uns über Ihre Kontaktanfrage!
Lage
Die betreffende Immobilie befindet sich in ruhiger und begehrter Sackgassenlage in einer Anliegerstraße von Seeheim-Jugenheim, eingebettet in die malerische Landschaft der hessischen Bergstraße.
In der Nähe befinden sich Cafés, Geschäfte und Restaurants, die den täglichen Bedarf abdecken und zum Verweilen einladen. Die Umgebung zeichnet sich durch ihre Nähe zur Natur aus, mit vielfältigen Freizeitmöglichkeiten wie Spaziergängen im Odenwald oder entlang der Bergstraße.
Zudem besteht eine gute Anbindung an die Autobahn A5, wodurch Städte wie Darmstadt, Frankfurt, Heidelberg und Mannheim in etwa 30 Minuten erreichbar sind. Das internationale Schuldorf ist ebenfalls in wenigen Minuten zu Fuß, mit dem Fahrrad oder dem Pkw zu erreichen, was die Lage besonders für Familien attraktiv macht.
Sonstige Angaben
Haben wir Ihr Interesse geweckt? Dann füllen Sie einfach das nebenstehende Kontaktformular aus und schreiben Sie uns, wann Sie einen Besichtigungstermin wünschen. Sollten Sie zuvor noch Fragen haben, sind wir selbstverständlich für Sie erreichbar (Mo.-Fr. 10:00 bis 18:00 und Sa. von 10:00 bis 16:00).
Der Maklervertrag mit uns kommt entweder durch schriftliche Vereinbarung oder auch durch die Inanspruchnahme unserer Maklertätigkeit auf der Basis des Objekt-Exposés und seiner Bedingungen zustande. Sollte das von uns nachgewiesene Objekt bereits bekannt sein, teilen Sie uns dieses bitte unverzüglich mit.
Die Immobilie fällt unter die Vorgaben gemäß § 656c BGB („Gesetz über die Verteilung der Maklerkosten bei der Vermittlung von Kaufverträgen über Wohnungen und Einfamilienhäuser“), sodass die Courtage in Höhe von 7,14 % zwischen Käufer und Verkäufer im Verhältnis 50/50 geteilt wird. Der Käufer zahlt somit, ebenso wie der Verkäufer bei Abschluss eines Kaufvertrags eine Courtage in Höhe von 3,57 % des notariell beurkundeten Kaufpreises inkl. 19 % MwSt. an Schwind Immobilien. Schwind Immobilien und ggf. deren Beauftragte erhalten einen unmittelbaren Zahlungsanspruch gegenüber dem Käufer (Vertrag zugunsten Dritter, § 328 BGB). Grunderwerbssteuer, Notar- und Gerichtskosten trägt der Käufer.
Alle Angaben sind ohne Gewähr und basieren ausschließlich auf Informationen, die uns von unserem Auftraggeber, Hausverwalter oder Vormieter übermittelt wurden. Wir übernehmen keine Gewähr für die Vollständigkeit, Richtigkeit und Aktualität dieser Angaben. Irrtum und Zwischenvermietung bzw. Zwischenverkauf vorbehalten. Es handelt sich lediglich um Beschreibung und nicht um zugesicherte Eigenschaften. Die Weitergabe an Dritte verpflichtet zur vollen Provisionszahlung.
Mit der Immobilienanfrage erklären sich Interessenten einverstanden, dass das Immobilienunternehmen Schwind Immobilien wegen Objektangeboten telefonisch, schriftlich oder per E-Mail Kontakt aufnimmt.
Grundriss
Grundriss EG 2D
>
>
Grundriss EG 3D
>
>
Grundriss UG 2D
>
>
Grundriss UG 3D
>
>
Wir lieben Immobilien
>
>
Adresse
64342 Seeheim-Jugenheim
Interessante Orte
Preis- und Lageinformationen
Preistrend für Bestandsimmobilien in Seeheim-Jugenheim