Diese sehr gepflegte, letztmals in 2014 grundlegend sanierte und renovierte Immobilie, ein ehemaliges Verwaltungsgebäude einer bekannten Friedrichsdorfer Traditionsfirma, liegt äußerst zentral und doch in ruhiger gelegen am Beginn einer Seitenstraße in Friedrichsdorf. Alle drei Wohnungen verfügen über den gleichen Standard und sind gut vermietet. Eine Anpassung an den heute üblichen Mietzins ist mittelfristig darstellbar. Es herrscht kein Sanierungsstau.
Durch die ideale Lage der Immobilie erreichen Sie alle Einkaufsmöglichkeiten, Ärztehäuser und auch den Friedrichsdorfer Bahnhof fußläufig in kurzer Zeit. Kindergärten sowie Schulen sowie Nah- und Fernverkehrswege sind ebenfalls schnell erreicht.
Eine sehr interessante Immobilie mit Charme, eine langfristig werthaltige Anlage mit Entwicklungspotential!
Zahlen
Aktuelle Mieten Durchschnitt EUR 9,60 / IST - Jahres-Netto-Kaltmieten EUR 32.220,00
Die Wohnung im Hochparterre wird zum 01.01.2026 frei und kann nach Renovierung zu dann ortsüblichen Preisen neu vermietet werden. Die Miete im ersten OG wird zeitgleich um 15% angepaßt. Mieteinnahmen ab 01/2026 jährlich: EUR 37.899,00.
Mieten Soll nach Mietspiegel EUR 13,01 / SOLL - Jahres-Netto-Kaltmiete EUR 43.713,60
Wichtige Information für Verbraucher
Informationen über das Fernabfragegesetz finden Sie hier: http://maintaunusimmobilien.com/widerruf/
MTI Commercial - Anlageimmobilie in bester Lage!
61381 Friedrichsdorf
Die vollständige Adresse der Immobilie erhalten Sie vom Anbieter.
Auf Karte anzeigen
Die vollständige Adresse der Immobilie erhalten Sie vom Anbieter.
Finanzierungszertifikat
In nur zwei Minuten zu Ihrem persönlichen Finanzierungszertifkat.
Infos
| Haustyp | Mehrfamilienhaus |
|---|---|
| Etagenzahl | 2 |
| Wohnfläche ca. | 280 m2 |
| Grundstücksfläche | 234 m2 |
| Bezugsfrei ab | Sofort |
| Zimmer | 12 |
| Garage/Stellplatz | Außenstellplatz |
Kosten
| Kaufpreis |
795.000 € |
|---|---|
| Provision |
5,95% vom Kaufpreis (inkl. MwSt.) |
Finanzierungsrechner:
Kaufpreis:
600.000 €
Eigenkapital:
600.000 €
Monatliche Rate
0 €
Effektiver Jahreszins
0 %
Sollzinsbindung
10 Jahre
Bausubstanz & Energieausweis
| Baujahr | 1920 |
|---|---|
| Letzte Sanierung | 2014 |
| Objektzustand | Saniert |
| Qualität der Austattung | Normal |
| Heizungsart | Zentralheizung |
| Wesentliche Energieträger | Gas |
| Energieausweis | liegt vor |
| Energieausweistyp | Verbrauchsausweis |
| Energieverbrauchskennwert | 227,2 kWh/(m²*a) |
| Energieeffizienzklasse | G |
227,2
kWh/(m²*a)
Energieeffizienzklasse G
- A+
- A
- B
- C
- D
- E
- F
- G
- H
- 0
- 25
- 50
- 75
- 100
- 125
- 150
- 175
- 200
- 225
- >250
Beschreibung des Objekts
Ausstattung
Alle Wohnungen wurden in und nach 2014 saniert und renoviert, teilweise wurde altes Parkett sowie historische Details wie Kamine erhalten, Bäder, Böden und Wandbeläge entsprechem heutigem Standard. Eine Gas-Brennwert-Therme wurde in diesem Zeitraum ebenfalls neu verbaut
Lage
Friedrichsdorf gilt als gesuchte Wohnlage im Vordertaunusbereich und zeichnet sich besonders durch eine sehr gute Erreichbarkeit der Nah- und Fernverkehrswege sowie durch eine gesunde, gewachsene Infrastruktur aus. Die benachbarte Stadt Bad Homburg ist in wenigen Minuten erreicht, die nahe gelegenen Wälder sowie der Hardtwald lädt zu ausgiebigen Spaziergängen ein. Ein sehr gutes Angebot an Kindergärten und Schulen rundet das Gesamtpaket ab.
Sonstige Angaben
Hinweis zur neuen EnEV 2014
Ab dem 01.05.2014 tritt die neue EnEV in Kraft. Diese besagt, daß Eigentümer / Vermieter den Kaufinteressenten / Käufern / Mietinteressenten / Mietern unaufgefordert einen Energieausweis der betreffenden Immobilie vorlegen / überlassen müssen. Wir sind als Makler daran gehalten diesen bei den Eigentümern / Vermietern einzufordern, an unsere Kunden weiterzuleiten und in den öffentlichen Medien zu publizieren, um unserer Nebenleistungspflicht nachzukommen.
Aktueller Stand: Ein Energieausweis ist beim Eigentümer angefordert!
Wichtige Hinweise
Widerrufsrecht:
Im Falle eines Zustande kommenden Vertrages haben Verbraucher das folgende Widerrufsrecht:
Sie haben das Recht, binnen vierzehn Tagen ohne Angabe von Gründen den Vertrag zu widerrufen.
Die Widerrufsfrist beträgt vierzehn Tage ab dem Tag des Vertragsabschlusses.
Um Ihr Widerrufsrecht auszuüben, müssen Sie uns mittels einer eindeutigen Erklärung (z.B. ein mit der Post versandter Brief, Telefax oder E-Mail) über Ihren Entschluss, diesen Vertrag zu widerrufen, informieren.
Der Widerruf ist zu richten an: MainTaunus-Immobilien Sauer & Sauer GbR
Louisenstr. 98
61348 Bad Homburg
Fax-Nr.: 06172 1399929
info@maintaunus-immobilien.com
Sie können dafür dieses Muster-Widerrufsformular verwenden, das jedoch nicht vorgeschrieben ist.
Zur Wahrung der Widerrufsfrist reicht es aus, dass Sie die Mitteilung über die Ausübung des Widerrufsrechts vor Ablauf der Widerrufsfrist absenden.
Folgen des Widerrufs
Wenn Sie diesen Vertrag widerrufen, haben wir Ihnen alle Zahlungen, die wir von Ihnen erhalten haben, einschließlich der Lieferkosten (mit Ausnahme der zusätzlichen Kosten, die sich daraus ergeben, dass Sie eine andere Art der Lieferung als die von uns angebotene, günstigste Standardlieferung gewählt haben), unverzüglich und spätestens binnen vierzehn Tagen ab dem Tag zurückzuzahlen, an dem die Mitteilung über Ihren Widerruf dieses Vertrags bei uns eingegangen ist. Für diese Rückzahlung verwenden wir dasselbe Zahlungsmittel, das Sie bei der ursprünglichen Transaktion eingesetzt haben, es sei denn, mit Ihnen wurde ausdrücklich etwas anderes vereinbart; in keinem Fall werden Ihnen wegen dieser Rückzahlung Entgelte berechnet.
Haben Sie verlangt, dass die Dienstleistungen während der Widerrufsfrist beginnen soll, so haben Sie uns einen angemessenen Betrag zu zahlen, der dem Anteil der bis zu dem Zeitpunkt, zu dem Sie uns von der Ausübung des Widerrufsrechts hinsichtlich dieses Vertrags unterrichten, bereits erbrachten Dienstleistungen im Vergleich zum Gesamtumfang der im Vertrag vorgesehenen Dienstleistungen entspricht.
Gesetzliche Verpflichtung für Immobilienmakler nach dem Geldwäschegesetz (GwG) gemäß § 2 Abs. 1 Nr. 10 GwG
Seit dem 29.11.2011 gilt das neue Geldwäschegesetz, welches jedes Immobilienbüro verpflichtet, bei Kontaktaufnahme die Identität des Kunden festzuhalten. Wir möchten Sie deshalb bitten, zu einer Besichtigung ein gültiges Ausweisdokument mitzubringen. Bei Firmen und juristischen Personen ist ein Handelsregisterauszug notwendig. Wir danken Ihnen für Ihr Verständnis und sichern Ihnen selbstverständlich einen diskreten Umgang mit Ihren Daten zu. Für Fragen stehen wir Ihnen gerne zur Verfügung.
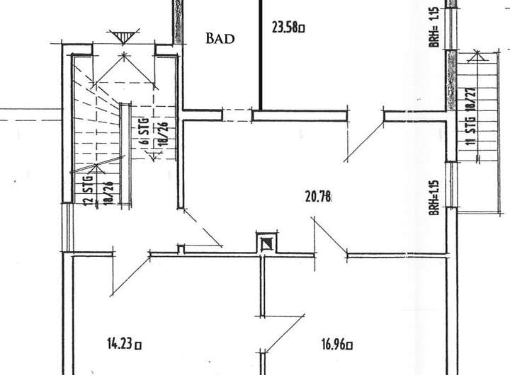
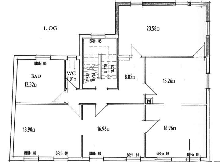
Grundriss
376092 202534151311 0871
>
>
376092 202534151245 0954
>
>
376092 202534151255 0201
>
>
376092 202534151311 0871
>
>
Adresse
61381 Friedrichsdorf
Interessante Orte
Preis- und Lageinformationen
Preistrend für Bestandsimmobilien in Friedrichsdorf