Die 1909 erbaute Jugendstil-Villa liegt ruhig und fußläufig im Herzen von Bad Homburg, unweit vom beliebten Jubiläumspark.
Das einseitig angebaute, unter Ensembleschutz stehende, Anwesen wurde 2001 von der jetzigen Eigentümerin liebevoll kernsaniert und präsentiert sich in einem hervorragenden Zustand.
Die ca. 328 m² Wohnfläche erstrecken sich über drei Etagen und einen Spitzboden - das wohnlich ausgebaute Souterrain bietet weitere ca. 95 m² Fläche. Hier stehen neben den üblichen Nutzräumen auch Hobbyraum, Billardzimmer sowie ein Weinkeller zur Verfügung.
Die stilvolle Ausstattung in den Wohnetagen kombiniert mit den klassischen Jugendstilelementen - wie zum Beispiel Deckenhöhen mit bis zu 3,30 Meter, originaler Stuck, aufgearbeitete Kassettentüren und Holzvertäfelung sowie ein historisches Bleiglasfenster im Treppenhaus - verleihen der Villa einen einzigartigen Charakter und ein besonderes Flair.
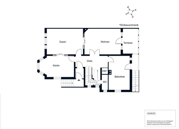
Das repräsentative Hochparterre bildet das Herzstück der Liegenschaft und ist mit offenem Grundriss, der hochwertigen Einbauküche, Dielenböden, Kamin und Zugang zum Garten einzigartig. Das Bibliothekszimmer stellt einen idealen Rückzugsort zum Lesen und Entspannen dar und gewährt einen direkten Blick in den großzügigen Garten.
Das erste Obergeschoss verfügt über drei helle Zimmer, zwei davon mit einem eigenen Balkon. Diese Etage ist prädestiniert für bis zu drei Kinder und wird durch ein ca. 22 m² großes Dusch- und Wannenbad komplettiert.
Der perfekte Elternbereich befindet sich im 2. Obergeschoss mit offenem Schlafzimmer mit Wohlfühlbad und Ankleidezimmer sowie dem ausgebauten Spitzboden. Ein weiteres Zimmer mit sonniger Dachterrasse bietet einen herrlichen Blick über den Hardtwald und den Taunus.
Der uneinsehbare und parkähnliche Garten mit altem Baumbestand ist eine Oase der Ruhe inmitten der Stadt. Die absolute Privatsphäre im Grünen lädt zu enstpannten Stunden im Kreise von Familie und Freunden ein.
Auf dem eingefriedeten Grundstück mit elektrischem Hoftor sind zahlreiche PKW-Stellmöglichkeiten vorhanden.
Durch die zentrale Lage ist man in nur wenigen Schritten im Kurpark, im Bad Homburger Schloss und auf der Louisenstraße.
Charmante und kernsanierte Jugendstil-Villa auf sonnigem Parkgrundstück
61348 Bad Homburg vor der Höhe
Die vollständige Adresse der Immobilie erhalten Sie vom Anbieter.
Auf Karte anzeigen
Die vollständige Adresse der Immobilie erhalten Sie vom Anbieter.
Finanzierungszertifikat
In nur zwei Minuten zu Ihrem persönlichen Finanzierungszertifkat.
Infos
| Haustyp | Einfamilienhaus |
|---|---|
| Etagenzahl | 4 |
| Wohnfläche ca. | 328 m2 |
| Nutzfläche | 95 m2 |
| Grundstücksfläche | 1.127 m2 |
| Zimmer | 10 |
| Badezimmer | 3 |
| Garage/Stellplatz | Außenstellplatz |
| Anzahl Garage/Stellplatz | 4 |
Kosten
| Kaufpreis |
0 € |
|---|---|
| Provision |
3,57 % inkl. gesetzlicher MwSt. von aktuell 19 % bezogen auf den Kaufpreis |
Finanzierungsrechner:
Kaufpreis:
600.000 €
Eigenkapital:
600.000 €
Monatliche Rate
0 €
Effektiver Jahreszins
0 %
Sollzinsbindung
10 Jahre
Bausubstanz & Energieausweis
| Baujahr | 1909 |
|---|---|
| Objektzustand | Vollständig Renoviert |
| Qualität der Austattung | Gehoben |
| Heizungsart | Zentralheizung |
| Wesentliche Energieträger | Gas |
| Energieausweis | laut Gesetz nicht erforderlich |
Beschreibung des Objekts
Ausstattung
_ als Bestandteil einer Gesamtanlage nach § 2 Absatz 3 Hessisches Denkmalschutzgesetz in das Denkmalverzeichnis des Landes Hessen eingetragen (Ensemble-Schutz)
_ Kernsanierung in 2001
_ Fassadenanstrich (2022) und weitere Instandhaltungsmaßnahmen (Sandsteinlaibungen, Geländer, Regenrinne, Abfluss, Dachüberprüfung, etc.)
_ 10 Zimmer
_ fünf Schlafzimmer
_Miele-Einbauküche mit Miele/Bosch-Markengeräten
_ drei Badezimmer und ein Gäste-WC
_ großzügige Elternetage mit Schlafzimmer/Bad en suite und Ankleidezimmer mit Schreinereinbauten
_ Holzdielenböden und Stäbchenparkett in allen Wohn- und Schlafräumen
_ Fliesen im Eingangsbereich und den Bädern sowie im Kellerbereich
_ Kamin
_ hochwertig gespachtelte Wände
_ Deckenhöhe bis zu ca. 3,30 Meter
_ original Stuckarbeiten
_ Flügel- und Kassetten sowie Schiebetüren , teilweise mit geschliffenen Glaseinsätzen
_ diverse Einbauschränke im gesamten Haus
_ Bleiglas-Kirchenfenster im Treppenhaus
_ einladender und repräsentativer Treppenaufgang
_ Holzfenster (Doppelisolierverglasung) aus 2001
_ elektrische Rollläden und Jalousien als Sicht-/Lichtschutz
_ diverse Balkone und überdachte Veranda mit Zugang zum Garten
_ wohnlich ausgebautes Souterrain (Billard- und Fitnesszimmer (Starkstrom für Sauna vorbereitet))
_ übliche Nutzräume sowie eigener Weinkeller im Untergeschoss
_ Ausgang zum Garten mit zusätzlich elektronisch gesteuerter Hundetür
_ praktisches Gartenhaus und Mähroboter
_ vier Stellplätze - Bauantrag zur Errichtung einer Doppelgarage müsste neu geprüft werden
Lage
_Seit Jahren erfreut sich die Kurstadt Bad Homburg immer stärkerer Beliebtheit
_Mit ihrem romantischen Charme spricht Bad Homburg vor allem auch Pendler aus Frankfurt an
_Wer den ländlichen Ausgleich sucht, der ist hier genau richtig
_Eine Mischung aus Idylle und pittoresker Architektur spiegelt die hohe Lebensqualität wieder
_In der Altstadt wird in repräsentativem Ambiente flaniert
_Von Frankfurt aus erreicht man Bad Homburg ganz bequem über die U-Bahn Linie U2
_Nach ungefähr 20 Minuten wird der Flughafen Frankfurt erreicht
Grundriss
Hochparterre
>
>
Erstes Obergeschoss
>
>
Zweites Obergeschoss
>
>
Spitzboden
>
>
Souterrain
>
>
Adresse
61348 Bad Homburg vor der Höhe
Interessante Orte
Preis- und Lageinformationen
Preistrend für Bestandsimmobilien in Bad Homburg vor der Höhe