Das gepflegte, freistehende Zweifamilienhaus von 1920 wurde stets erweitert • erstmalig durch den Anbau in 1965 und dem Anbau von 1995 • mit der angrenzenden Garage inklusive Hauswirtschaftsraum.
Auf einer Wohnfläche von insgesamt 192 qm auf zwei Wohnetagen teilen sich zwei vollständig vermietete Wohneinheiten mit je einem eigenem Eingang sowie einem großen sonnenverwöhnten Gemüsegarten, welcher hälftig auf beide Parteien aufgeteilt ist. Dieser herrliche Garten mit seinem Gartenhaus, machen diesen Ort zu einer Oase der Ruhe und Stille.
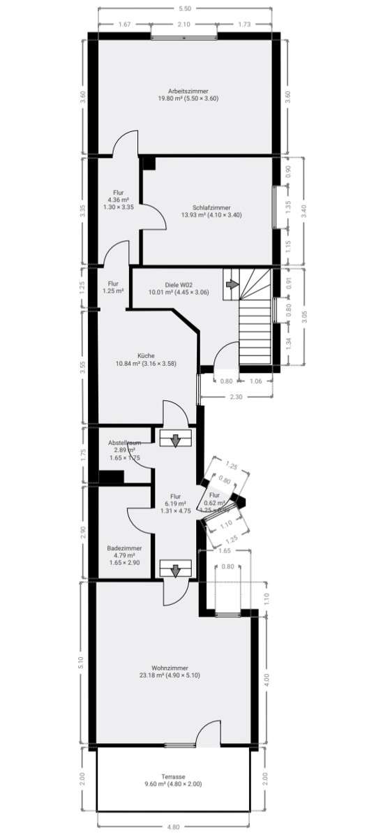
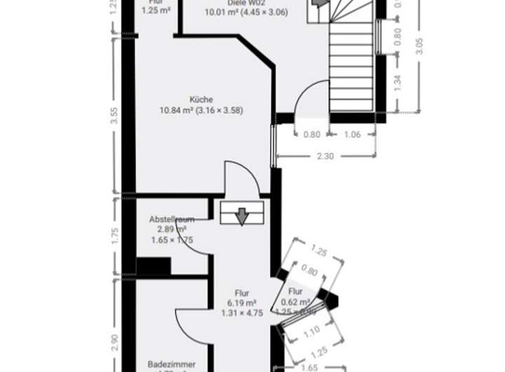
W02 • Im Erdgeschoss befinden sich auf ca. 93 qm Wohnfläche das großzügige und lichtdurchflutete Wohn•Esszimmer mit Terrasse, ein innenliegendes Duschbad, die helle Küche, ein großzügiges Schlafzimmer, das Arbeitszimmer•Kinderzimmer sowie einen Flur.
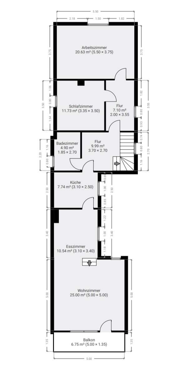
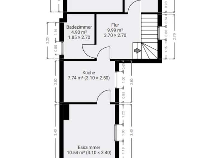
W01 • Das Obergeschoss mit seiner Fläche von ca. 99 qm beherbergt ein schön geschnittenes Wohnzimmer mit Balkon, das Esszimmer, die Küche, ein Tageslicht•Duschbad, das Schlafzimmer, ein Arbeitszimmer sowie einen Flur.
Das kleine Kellergeschoss besteht aus einem Vorratsraum, Hausanschlussraum und dem Heizungsraum.
In der Garage ist ein weiterer Hauswirtschaftsraum integriert.
Suchen Sie eine solide Kapitalanlage so nehmen Sie direkt mit uns Kontakt auf?
Gepflegtes, vermietetes Zweifamilienhaus • Garten•Nutzgarten • Ortslage Finthen
55126 Mainz
Die vollständige Adresse der Immobilie erhalten Sie vom Anbieter.
Auf Karte anzeigen
Die vollständige Adresse der Immobilie erhalten Sie vom Anbieter.
Finanzierungszertifikat
In nur zwei Minuten zu Ihrem persönlichen Finanzierungszertifkat.
Infos
| Haustyp | Mehrfamilienhaus |
|---|---|
| Etagenzahl | 2 |
| Wohnfläche ca. | 192 m2 |
| Nutzfläche | 99 m2 |
| Grundstücksfläche | 516 m2 |
| Bezugsfrei ab | sofort |
| Zimmer | 7 |
| Schlafzimmer | 3 |
| Badezimmer | 2 |
| Garage/Stellplatz | Garage |
| Anzahl Garage/Stellplatz | 1 |
Kosten
| Kaufpreis |
535.000 € |
|---|---|
| Provision |
Die Käuferprovision beträgt 5,95% des beurkundeten Kaufpreises inkl. der gesetzlichen MwSt |
Finanzierungsrechner:
Kaufpreis:
600.000 €
Eigenkapital:
600.000 €
Monatliche Rate
0 €
Effektiver Jahreszins
0 %
Sollzinsbindung
10 Jahre
Bausubstanz & Energieausweis
| Baujahr | 1920 |
|---|---|
| Objektzustand | Gepflegt |
| Qualität der Austattung | Normal |
| Heizungsart | Zentralheizung |
| Wesentliche Energieträger | Gas |
| Energieausweis | liegt vor |
| Energieausweistyp | Bedarfsausweis |
| Energieverbrauchskennwert | 311,8 kWh/(m²*a) |
| Energieeffizienzklasse | H |
311,8
kWh/(m²*a)
Energieeffizienzklasse H
- A+
- A
- B
- C
- D
- E
- F
- G
- H
- 0
- 25
- 50
- 75
- 100
- 125
- 150
- 175
- 200
- 225
- >250
Beschreibung des Objekts
Ausstattung
• Zweifamilienhaus von 1920
• Anbau von 1965
• Anbau von 1995
W02•EG - ca. 99 qm
• Wohn•Esszimmer nebst Terrasse und hälftiger Gartenanteil
• Innenliegendes Duschbad
• Küche
• Schlafzimmer
• Arbeitszimmer
• Flur
W01•OG ca. 93 qm
• Wohnzimmer nebst Balkon und hälftiger Gartenanteil
• Esszimmer
• Küche
• Tageslicht•Duschbad
• Schlafzimmer
• Arbeitszimmer
• Flur
KG
• Heizungsraum
• Vorratsraum
• HAR
• KFZ•Stellplatz
• Garage
• Hauswirtschaftsraum
• Garten
• Gartenhaus
2009 • Heizung Gas
1980 • Fenster
Lage
Finthen ist ein Ortsbezirk der rheinland-pfälzischen Landeshauptstadt Mainz und seit 1969 im Rahmen der Gebietsreform eingemeindet und lässt seitdem die Einwohnerzahl auf ca. 14.000 Einwohner ansteigen. Der außerhalb gelegene zivile Flugplatz für Kleinflugzeuge sowie der Layenhof gehören ebenfalls zum Ort dazu.
Der Anbau von Sonderkulturen in der Landwirtschaft, lies den Finther Spargel überregional bekannt werden.
Neben Einkaufsmärkten und der Markthalle, attraktiven Geschäften, Ärzten, Apotheken, Bäckereien, Metzger und Tankstelle zählen auch Kindergärten, Kita, Grundschule, Freie Waldorfschule zum westlichsten Ortsteil von Mainz dazu. Verschiedene bekannte deutsche und internationale Gastronomien sowie eine Eisdiele machen diesen Ort einfach so lebenswert und der Karnevalszug "Finther Lebensfreude" und die alljährlich stattfindende "Finther Kerb" unterstreichen das Lebensgefühl.
An den Mainzer Ring (A60) ist die Anschlussstelle Mainz-Finthen angeschlossen. Mit mehreren Bus- und Straßenbahnlinien der MVG ist Finthen in wenigen Minuten an die Innenstadt von Mainz und anderen Stadtteilen angebunden. Die benachbarte Landeshauptstadt Wiesbaden sowie Frankfurt sind ebenfalls in 15-30 Autominuten erreichbar.
Sonstige Angaben
Geldwäschegesetz:
Als Immobilienmaklerunternehmen ist das LANDHAUS13 nach § 2 Abs. 1 Nr. 14 und § 11 Abs. 1.2 Geldwäschegesetz (GwG) dazu verpflichtet, bei der Begründung einer Geschäftsbeziehung die Identität des Vertragspartners festzustellen und zu überprüfen, bzw. sobald ein ernsthaftes Interesse an der Durchführung des Immobilienkaufvertrages beseht. Hierzu ist es erforderlich, dass wir nach § 11 Abs. 4 GwG die relevanten Daten Ihres Personalausweises festhalten (wenn Sie als natürliche Person handeln) - beispielsweise mittels einer Kopie. Bei einer juristischen Person benötigen wir eine Kopie des Handelsregisterauszuges, aus welchem der wirtschaftlich Berechtigte hervorgeht. Das Geldwäschegesetz sieht vor, dass der Makler die Kopien bzw. Unterlagen fünf Jahre aufbewahren muss. Als unser Vertragspartner haben Sie auch ein Mitwirkungsrecht nach § 11. Abs. 6 GwG.
Haftung:
Wir weisen darauf hin, dass die von uns weitergegebenen Objektinformationen, Unterlagen, Pläne usw. vom Verkäufer/Vermieter stammen. Eine Haftung für die Richtigkeit oder Vollständigkeit der Angaben übernehmen wir daher nicht. Es obliegt daher unseren Kunden, die darin enthaltenen Objektinformationen und Angaben auf ihre Richtigkeit hin zu überprüfen. Alle Immobilienangebote sind freibleibend und vorbehaltlich Irrtümer, Zwischenverkauf- und Vermietung oder sonstiger Zwischenverwertung.
Verbraucherinformation:
Gemäß Verordnung (EU) Nr. 524/2013)
Im Rahmen der Verordnung über Online-Streitbeilegung zu Verbraucherangelegenheiten steht Ihnen unter http://ec.europa.eu/consumers/odr/
Eine Onlinestreitbeilegungsplattform der EU-Kommission zur Verfügung.
Wir nehmen nicht an einem Steitbeilegungsverfahren vor einer Verbraucherschlichterstelle teil.
Grundriss
Erdgeschoss
>
>
Obergeschoss
>
>
Kellergeschoss
>
>
Adresse
55126 Mainz
Interessante Orte
Preis- und Lageinformationen
Preistrend für Bestandsimmobilien in Finthen