Dieses Einfamilienhaus, wurde im Jahr 1933 in Südausrichtung auf einem großzügigen Eckgrundstück von ca. 667 m² mitten im Ortskern erbaut.
Eine Gesamtfläche von etwa 220 m², erstreckt sich auf ca. 134 m² Wohnfläche und ca. 86 m² Nutzfläche.
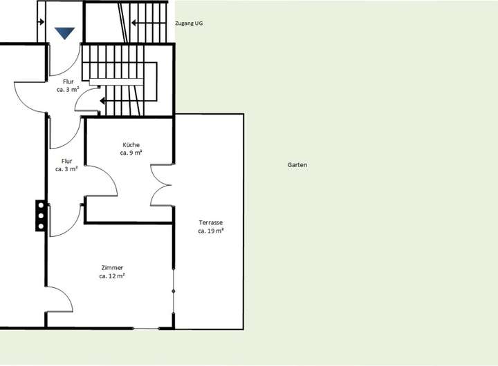
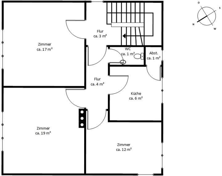
Im Erdgeschoss befinden sich zwei Zimmer, wobei das nördliche Zimmer einst als großer Verkaufsraum genutzt wurde – hier wurde früher ein Einzelhandel betrieben. Angrenzend befindet sich eine Küche, die direkten Zugang zur Terrasse und zum Garten bietet.
Das weitere Zimmer befindet sich im süd- westlichen Teil des Erdgeschosses mit Blick in den Garten. Im ersten Obergeschoss finden Sie drei Zimmer, ein Gäste-WC sowie eine weitere Küche vor, während sich im zweiten Obergeschoss zwei Räume, die in der Vergangenheit als Schlafzimmer genutzt wurden, und ein zusätzlicher Dachbodenraum für Stauraum oder für eine kreative Nutzung befinden.
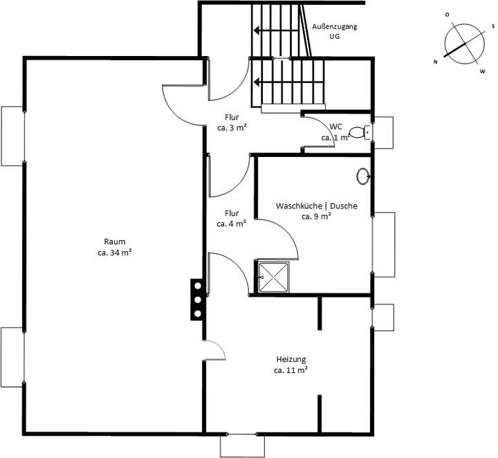
Das Haus ist vollunterkellert und bietet auf etwa 62 m² eine vielseitige Nutzflächen.
Das Grundstück ist zusätzlich seitlich in westlicher Richtung vom Newmans Park aus zu erreichen. Es verfügt hier über eine Zufahrt, so dass von hier die massiv gebaute Doppelgarage sowie der Carport zu erreichen sind.
Das Grundstück kann nach Maßgabe des Bebauungsplan Nienstedten 8 bebaut werden. Dieser sieht eine Allgemeine Wohnnutzung (WA) und eine zweigeschossige Bebauung vor. Das Maß der baulichen Nutzung wird durch ein ausgewiesenes Baufenster beschränkt.
Einfamilienhaus im Herzen von Nienstedten
22609 Hamburg
Die vollständige Adresse der Immobilie erhalten Sie vom Anbieter.
Auf Karte anzeigen
Die vollständige Adresse der Immobilie erhalten Sie vom Anbieter.
Finanzierungszertifikat
In nur zwei Minuten zu Ihrem persönlichen Finanzierungszertifkat.
Infos
| Haustyp | Einfamilienhaus |
|---|---|
| Wohnfläche ca. | 134 m2 |
| Nutzfläche | 86 m2 |
| Grundstücksfläche | 667 m2 |
| Zimmer | 5 |
| Schlafzimmer | 4 |
| Badezimmer | 1 |
| Anzahl Garage/Stellplatz | 6 |
Kosten
| Kaufpreis |
1.690.000 € |
|---|---|
| Provision |
3,57 % inkl. ges. MwSt. |
Finanzierungsrechner:
Kaufpreis:
600.000 €
Eigenkapital:
600.000 €
Monatliche Rate
0 €
Effektiver Jahreszins
0 %
Sollzinsbindung
10 Jahre
Bausubstanz & Energieausweis
| Baujahr | 1933 |
|---|---|
| Heizungsart | Gas-Heizung |
| Wesentliche Energieträger | Gas |
| Energieausweis | liegt vor |
| Energieausweistyp | Bedarfsausweis |
| Energieverbrauchskennwert | 387,1 kWh/(m²*a) |
| Energieeffizienzklasse | H |
387,1
kWh/(m²*a)
Energieeffizienzklasse H
- A+
- A
- B
- C
- D
- E
- F
- G
- H
- 0
- 25
- 50
- 75
- 100
- 125
- 150
- 175
- 200
- 225
- >250
Beschreibung des Objekts
Lage
Hamburg - Nienstedten zählt zu den besonders bevorzugten Wohnlagen der Elbvororte. Inmitten des Ortskerns, unweit des Westerparks, des Hirschparks, des Jenischparks und der Elbe gelegen, befindet sich die Immobilie in einer sehr attraktiven und beliebten Lage. Die traditionelle Bebauung der Umgebung schafft eine ansprechende, fast dörfliche Atmosphäre. In der näheren Umgebung befinden sich zahlreiche Grünanlagen. Das schnell erreichbare Elbufer ermöglicht eine attraktive Auswahl an Freizeitaktivitäten. Das idyllische Zentrum Nienstedtens mit der Vielzahl an Geschäften, Ärzten und Restaurants ist zu Fuß erreichbar. Die Anbindung an die Hamburger Innenstadt ist durch die nahe gelegenen S-Bahnstationen Hochkamp sowie Klein Flottbek und durch die Buslinien optimal. Kindergärten, Grund- und weiterführende Schulen befinden sich unmittelbarer Nähe.
Adresse
22609 Hamburg
Interessante Orte
Preis- und Lageinformationen
Preistrend für Bestandsimmobilien in Nienstedten
>
>
>
>