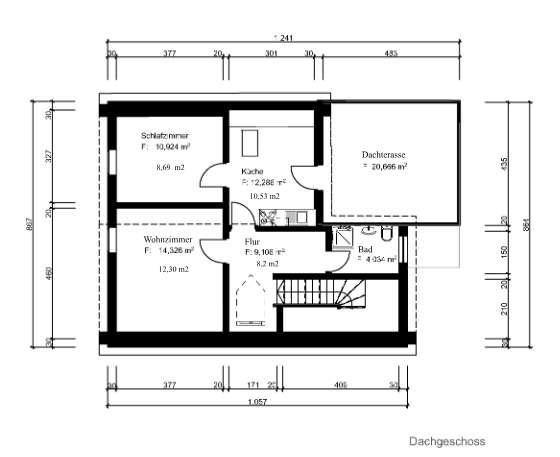
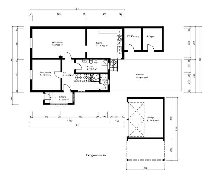
Das freistehende Einfamilienhaus aus dem Jahr 1955 befindet sich in einer guten Lage und ist in ein schönes Wohnumfeld eingebettet. Das großzügige Grundstück von 1159 m² bietet viel Raum für individuelle Gestaltungsmöglichkeiten. Im Erdgeschoss stehen etwa 92 m² Wohnfläche mit einem Schlafzimmer, großem Wohn- und Esszimmer, Küche, Bad und Gäste-WC zur Verfügung. Das Dachgeschoss mit ebenfalls 2 Zimmern, Küche, Bad und einer großen Dachterrasse bietet ca. 54 m² Wohnfläche und viel Platz für kreative Nutzung. Das Haus ist voll unterkellert, was zusätzlichen Stauraum schafft. Im Hof gibt es zwei Garagen sowie bis zu vier Stellplätze, was für ausreichend Parkmöglichkeiten sorgt. Außerdem eröffnet die Größe des Grundstücks die Möglichkeit, im hinteren Bereich mit einer Zufahrt an den Garagen vorbei ein großes, freistehendes Haus zu bauen – ideal für Familien oder Investoren, die noch mehr Raum schaffen möchten.
Freistehendes eins bis zwei Familienhaus plus Bauplatz
55597 Wöllstein
Die vollständige Adresse der Immobilie erhalten Sie vom Anbieter.
Auf Karte anzeigen
Die vollständige Adresse der Immobilie erhalten Sie vom Anbieter.
Finanzierungszertifikat
In nur zwei Minuten zu Ihrem persönlichen Finanzierungszertifkat.
Infos
| Haustyp | Einfamilienhaus |
|---|---|
| Etagenzahl | 2 |
| Wohnfläche ca. | 146 m2 |
| Nutzfläche | 80 m2 |
| Grundstücksfläche | 1.159 m2 |
| Zimmer | 4 |
| Schlafzimmer | 3 |
| Badezimmer | 2 |
| Garage/Stellplatz | Garage |
| Anzahl Garage/Stellplatz | 2 |
Kosten
| Kaufpreis |
329.000 € |
|---|---|
| Provision |
3,57% Der Maklervertrag mit uns und/oder unserem Beauftragten kommt zustande, wenn du unsere Maklertätigkeit in Textform bestätigst. Das kann zum Beispiel durch deine Unterschrift auf dem Suchkundenvertrag oder dem Objekt-Exposé geschehen. Die Courtage beträgt 3,57 % des Kaufpreises inklusive Umsatzsteuer. Sie ist bei notariellem Vertragsabschluss verdient und fällig. |
Finanzierungsrechner:
Kaufpreis:
600.000 €
Eigenkapital:
600.000 €
Monatliche Rate
0 €
Effektiver Jahreszins
0 %
Sollzinsbindung
10 Jahre
Bausubstanz & Energieausweis
| Baujahr | 1955 |
|---|---|
| Letzte Sanierung | 2015 |
| Objektzustand | Gepflegt |
| Qualität der Austattung | Normal |
| Heizungsart | Zentralheizung |
| Wesentliche Energieträger | Öl |
| Energieausweis | liegt vor |
| Energieausweistyp | Bedarfsausweis |
| Energieverbrauchskennwert | 528,1 kWh/(m²*a) |
| Energieeffizienzklasse | H |
528,1
kWh/(m²*a)
Energieeffizienzklasse H
- A+
- A
- B
- C
- D
- E
- F
- G
- H
- 0
- 25
- 50
- 75
- 100
- 125
- 150
- 175
- 200
- 225
- >250
Beschreibung des Objekts
Lage
Wöllstein befindet sich im Landkreis Alzey-Worms und ist eine charmante Ortsgemeinde, die als Grundzentrum ausgewiesen ist. Die Gemeinde liegt etwa südlich von Mainz und südwestlich von Alzey, in einer landschaftlich schönen Region mit Weinbergen und fruchtbaren Feldern.
Die Lage ist verkehrsgünstig, da Wöllstein gut an die Autobahnen A61 und A63 angebunden ist, was eine schnelle Verbindung zu größeren Städten wie Mainz, Worms oder Alzey ermöglicht. Die Region ist bekannt für ihre Weintradition und bietet eine ruhige, ländliche Atmosphäre mit guten Einkaufsmöglichkeiten, Kindergarten, Schulen und anderen Einrichtungen für die Bewohner.
Grundriss
Grundriss EG
>
>
Grundriss DG
>
>
Adresse
55597 Wöllstein
Interessante Orte
Preis- und Lageinformationen
Preistrend für Bestandsimmobilien in Wöllstein