Dieses außergewöhnliche Architektenhaus begeistert mit einer raffinierten Raumaufteilung, einer klaren Formensprache und zwei großzügigen Dachterrassen.
Im Erdgeschoss befindet sich angrenzend an den geräumigen Wohn- und Essbereich eine Küche mit großen Fensterflächen, die für Helligkeit sorgen und einen direkten Zugang zur überdachten Terrasse ermöglichen. Ein Zimmer für den Gast sowie das gegenüberliegende Duschbad bieten zusätzlichen Komfort.
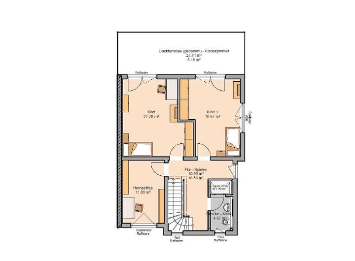
Das Obergeschoss beherbergt zwei Kinderzimmer mit Zugang zur Dachterrasse, ein zusätzliches Homeoffice und ein Duschbad.
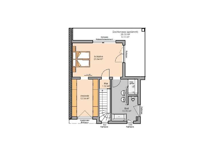
Im Dachgeschoss ist das Reich der Eltern zu finden. Ein Schlafzimmer mit separater Ankleide sowie ein Badezimmer mit Wanne und Dusche und die großzügige Dachterrasse.
Dieses Haus wird nach Ihren individuellen Wünschen geplant und ausgestattet!
Atemberaubende Architektur! - Aufregend. Anregend. Anders.
64297 Darmstadt
Die vollständige Adresse der Immobilie erhalten Sie vom Anbieter.
Auf Karte anzeigen
Die vollständige Adresse der Immobilie erhalten Sie vom Anbieter.
Finanzierungszertifikat
In nur zwei Minuten zu Ihrem persönlichen Finanzierungszertifkat.
Infos
| Haustyp | Doppelhaushaelfte |
|---|---|
| Wohnfläche ca. | 224 m2 |
| Nutzfläche | 0 m2 |
| Grundstücksfläche | 720 m2 |
| Zimmer | 6 |
| Schlafzimmer | 5 |
| Badezimmer | 3 |
| Anzahl Garage/Stellplatz | 2 |
Kosten
| Kaufpreis |
1.588.000 € |
|---|---|
| Provision | Nein |
Finanzierungsrechner:
Kaufpreis:
600.000 €
Eigenkapital:
600.000 €
Monatliche Rate
0 €
Effektiver Jahreszins
0 %
Sollzinsbindung
10 Jahre
Bausubstanz & Energieausweis
| Baujahr | 2025 |
|---|---|
| Bauphase | Haus in Planung (projektiert) |
| Objektzustand | Erstbezug |
| Qualität der Austattung | Gehoben |
| Heizungsart | Wärmepumpe |
| Wesentliche Energieträger | Strom |
| Energieausweis | liegt vor |
| Energieausweistyp | Bedarfsausweis |
| Energieverbrauchskennwert | 16,8 kWh/(m²*a) |
| Energieeffizienzklasse | A+ |
16,8
kWh/(m²*a)
Energieeffizienzklasse A+
- A+
- A
- B
- C
- D
- E
- F
- G
- H
- 0
- 25
- 50
- 75
- 100
- 125
- 150
- 175
- 200
- 225
- >250
Beschreibung des Objekts
Ausstattung
6 Zimmer, Küche, Diele, 2 x Flur, Hauswirtschaftsraum, Garderobe, Bad, 2 x Dusche, 2 x Dachterrasse, Ankleide, Keller
Das gezeigte Traumhaus im Überblick:
+ Schlüsselfertiges Massivhaus im Sinne der Ausstattungsbeschreibung "Edition 25"
+ Zukunftsorientierte Energieausstattung in Form einer Luft-Wasser-Wärmepumpe und Fußbodenheizung sowie einer kontrollierten Wohnraumlüftung mit Wärmerückgewinnung
+ Inklusive Bodenplatte
Beste Markenausstattung in jedem Kern-Haus:
+ Zimmermannsmäßiger Dachstuhl aus Konstruktionsvollholz
+ Dacheindeckung mit Betondachsteinen von Braas
+ Hochwertiger Kunstharz-Außenputz für eine langlebige Fassade
+ Vollständige Badausstattung von Villeroy & Boch mit Badewanne und flacher Duschwanne sowie einer Echtglasduschkabine
+ Fliesen von Villeroy & Boch in Bad und WC
+ Haustür mit 5-fach-Sicherheitsverriegelung
+ Erstklassige Innentüren der Marke Herholz
+ Fenster mit 3-Scheiben-Wärmeschutzverglasung und Rollläden
+ Stahl-Holz-Treppe mit individueller Farbgestaltungsmöglichkeit
+ Vollständige und überdurchschnittliche Elektroausstattung inklusive Klingelanlage und Netzwerkdosen
+ Rauchmelder für Ihre Sicherheit
+ Alle Leistungen aus einer Hand
+ Alle Planungs- und Architektenleistungen
+ Einsatz regionaler Handwerksbetriebe
+ Baubegleitende 5-Phasen-TÜV-Prüfung und Blower-Door-Test
+ Individuelle Anpassung auf Ihre Bedürfnisse
+ Auf Wunsch mit Keller erhältlich
+ Auf Wunsch mit weiteren Energietechniken erhältlich
Lage
Das Baugrundstück befindet sich in bester Wohnlage der "Villenkolonie" von Eberstadt, direkt am Waldrand gelegen.
In Darmstadts gibt es Parks, Grünanlagen, Wasserflächen und Wälder, die für ein angenehmes Stadtklima und jede Menge Erholung sorgen.
Darmstadt kann eine gut ausgebaute Gesundheitsinfrastruktur vorweisen. Es gibt zahlreiche Einrichtungen, die sich um Ihre Gesundheit kümmern. Unter anderem das Klinikum Darmstadt als der kommunale Maximalversorger in Südhessen und als einziges Krankenhaus mit umfassender Notfallversorgung.
In Darmstadt sorge 100 Sportvereine für ein vielfältiges Sportangebot, das allen Altersklassen zugutekommt. Die Sportinfrastruktur ist sowohl auf den Freizeit- als auch den Leistungssport ausgelegt. Der SV Darmstadt 98 und seine Profifußballmannschaft besitzen eine Strahlkraft, die weit über die eigenen Stadtgrenzen hinausgeht. Hallen-, Frei- und Naturbäder sorgen zudem in den Sommermonaten für eine erfrischende Abkühlung.
Sonstige Angaben
Kern-Haus baut individuelle und massive Architektenhäuser zu einem attraktiven Preis-Leistungs-Verhältnis – und das bereits mit einer Erfahrung seit 1980. Bei Kern-Haus erhalten Sie unter anderem 10 Jahre Gewährleistung auf die wesentlichen Bauleistungen, bis zu 24 Monate Preissicherheit sowie eine dokumentierte 5-Phasen-TÜV-Prüfung während der Bauphase. Jedes Kern-Haus als Effizienzhaus 40 ist bereits QNG-zertifiziert durch die Deutsche Gesellschaft für nachhaltiges Bauen (DGNB).
40 Jahre Expertise für das massive, energieeffiziente Bauen: Kern-Haus realisiert Massivhäuser in Ziegel, Bims, Porenbeton oder Stahlbeton (DuoTherm).
Kern-Haus setzt auf eine hohe Bauqualität der Handwerker und auf eine große Auswahl starker Marken. So verwendet Kern-Haus beim Bau Ihres Hauses nur hochwertige Markenprodukte renommierter Hersteller – wie etwa Produkte von Villeroy & Boch.
Preise und Auszeichnungen von Kern-Haus:
- German Brand Award in den Jahren 2018 und 2021
- Hausbau Design Award: Sieger in den Jahren 2017, 2018, 2019, 2020, 2021, 2022 und 2023
- Deutscher Traumhauspreis: Sieger in den Jahren 2014, 2015, 2016 und 2018 und Silber 2017, 2020 und 2021
- Mittelstandspreis "Top 100" in den Jahren 2014, 2016, 2018, 2020 und 2022
- German Design Award im Jahr 2018
Weitere Informationen
Der gezeigte Preis versteht sich inklusive Grundstück sowie den Bau- und Kaufnebenkosten. Die Courtage für das Grundstück ist ebenfalls im Gesamtpreis enthalten.
Grundriss
Grundriss Kellergeschoss
>
>
Grundriss Erdgeschoss
>
>
Grundriss Obergeschoss
>
>
Grundriss Dachgeschoss
>
>
Adresse
64297 Darmstadt
Interessante Orte
Preis- und Lageinformationen
Preistrend für Bestandsimmobilien in Eberstadt