In zentraler Lage von Westhofen befindet sich dieses vielseitig nutzbare Wohn- und Gewerbeobjekt, das sowohl Kapitalanleger als auch Eigennutzer anspricht. Die ehemalige Winzergenossenschaft bietet eine großzügige Gewerbehalle im Erdgeschoss sowie drei abgeschlossene Wohneinheiten mit insgesamt ca. 270 m² Wohnfläche – ideal für eine gemischte Nutzung oder zur Entwicklung eines attraktiven Wohnkonzepts.
Erdgeschoss • Gewerbebereich
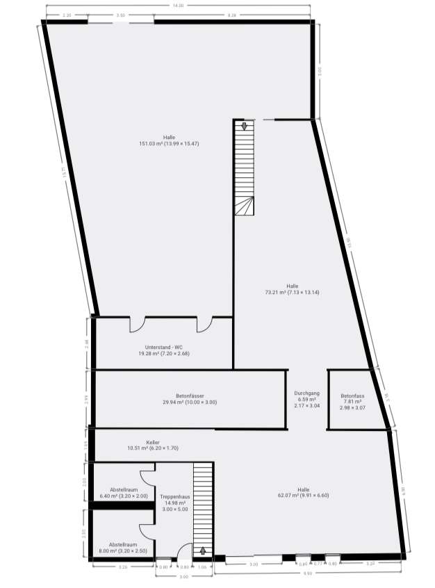
Die Gewerbeeinheit im Erdgeschoss mit ca. 300 m² Hallenfläche bietet vielfältige Nutzungsmöglichkeiten – z. B. für Lager, Produktion, Werkstatt oder Atelier. Zusätzlich stehen riesige Kellerräume zur Verfügung, die früher zur Weinlagerung genutzt wurden. Die Halle ist mit einem separaten WC, eigenen Gas- und Wasserzählern sowie Abstellräumen ausgestattet. Diese Einheit ist direkt von der Straße zugänglich und eignet sich ideal für Gewerbetreibende oder zur Vermietung.
Obergeschoss und Dachgeschoss • Wohnungen
Die Wohnung links (W01) mit ca. 42 m² Wohnfläche, besteht aus Schlafzimmer, Wohnzimmer, Küche und Bad. Die Fenster stammen teils aus 1970, teils aus 2022, die Böden sind mit Laminat belegt. Beheizung über Gastherme (2008).
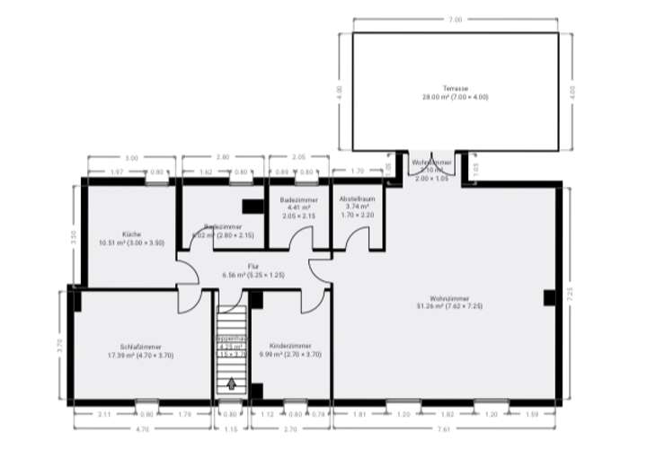
Die Wohnung rechts (W02) mit ca. 112 m² Wohnfläche ist großzügig geschnitten und beherbergt folgende Räumlichkeiten: Küche, Diele, Wohnzimmer, Schlafzimmer, zwei Kinderzimmern, Badezimmer und separatem WC sowie Balkon. Bodenbeläge aus Laminat, Fliesen und Parkett, ebenfalls beheizt über eine Gastherme aus 2008.
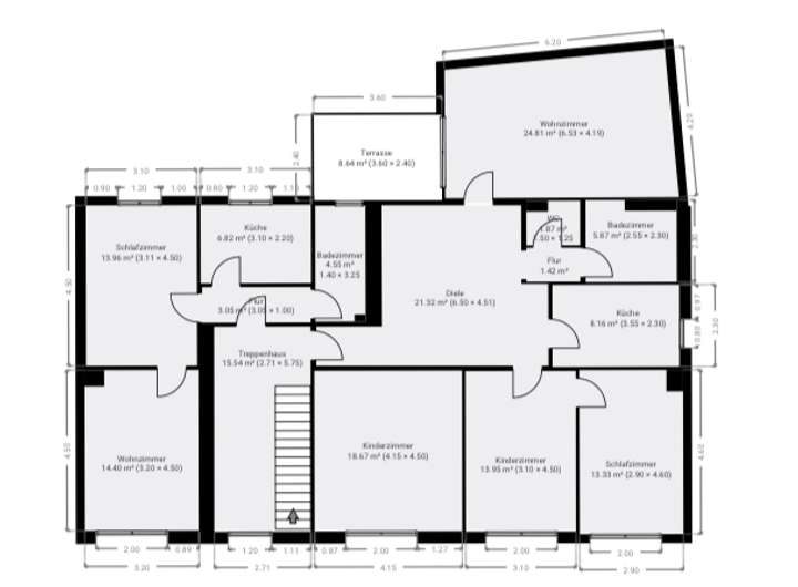
Im Dachgeschoss befindet sich die Wohnung (W03) mit ca. 115 m² Wohnfläche - sie besteht aus einem großzügigen Wohnzimmer mit Zugang zur Dachterrasse, Schlafzimmer, Arbeitszimmer, großer Wohnküche, Bad mit Wanne und WC und einem Abstellraum. Die Fenster wurden 2023 erneuert, die Gauben wurden im Jahr 2000 eingebaut. Bodenbeläge aus Laminat und Fliesen.
Zentral gelegenes Mehrfamilienhaus • 3 Wohneinheiten • Hallen • Gewölbekeller • Westhofen
67593 Westhofen
Die vollständige Adresse der Immobilie erhalten Sie vom Anbieter.
Auf Karte anzeigen
Die vollständige Adresse der Immobilie erhalten Sie vom Anbieter.
Finanzierungszertifikat
In nur zwei Minuten zu Ihrem persönlichen Finanzierungszertifkat.
Infos
| Haustyp | Mehrfamilienhaus |
|---|---|
| Etagenzahl | 2 |
| Wohnfläche ca. | 270 m2 |
| Nutzfläche | 300 m2 |
| Grundstücksfläche | 524 m2 |
| Bezugsfrei ab | sofort |
| Zimmer | 13 |
| Schlafzimmer | 9 |
| Badezimmer | 4 |
Kosten
| Kaufpreis |
535.000 € |
|---|---|
| Provision |
Die Käuferprovision beträgt 5,95% des beurkundeten Kaufpreises inkl. der gesetzlichen MwSt |
Finanzierungsrechner:
Kaufpreis:
600.000 €
Eigenkapital:
600.000 €
Monatliche Rate
0 €
Effektiver Jahreszins
0 %
Sollzinsbindung
10 Jahre
Bausubstanz & Energieausweis
| Baujahr | 1900 |
|---|---|
| Objektzustand | Modernisiert |
| Qualität der Austattung | Normal |
| Heizungsart | Etagenheizung |
| Wesentliche Energieträger | Gas |
| Energieausweis | liegt vor |
| Energieausweistyp | Bedarfsausweis |
| Energieverbrauchskennwert | 172,1 kWh/(m²*a) |
| Energieeffizienzklasse | F |
172,1
kWh/(m²*a)
Energieeffizienzklasse F
- A+
- A
- B
- C
- D
- E
- F
- G
- H
- 0
- 25
- 50
- 75
- 100
- 125
- 150
- 175
- 200
- 225
- >250
Beschreibung des Objekts
Ausstattung
Wohnhaus mit Gewerbehalle • Baujahr 1900
ehemalige Winzergenossenschaft in Westhofen
EG • Halle • ca. 300 m² • Gewerbe möglich
• riesige Kellerräume
• ehemalige Winzergenossenschaft
• WC
• EG • zu den Wohnungen gehörend
• 3 Abstellräume
• Gas- und Wasserzähler extra
OG•W01 • ca. 42 m²
• Wohnzimmer
• Schlafzimmer
• Küche
• Bad
• Flur
• Fenster aus 1970 / 2022
• Laminat / Raufaser
• Gastherme 2008
OG•W02 • ca. 112 m²
• Wohnzimmer
• Kinderzimmer
• Arbeitszimmer
• Küche
• Bad
• WC
• Diele
• Balkon
• Laminat, Fliesen, Parkett
• Gastherme 2008
DG•W03 • ca. 115 m²
• Wohnzimmer mit großer Dachterrasse
• Schlafzimmer
• Arbeitszimmer
• Küche
• Bad•Wanne•WC
• Abstellraum
• Laminatboden
• Fliesen
• Fenster 2023
• Gauben 2000
Lage
Das Objekt befindet sich im Herzen von Westhofen, einer malerischen Gemeinde im südlichen Rheinhessen, die zur Verbandsgemeinde Wonnegau im Landkreis Alzey-Worms gehört. Westhofen ist bekannt für seine historische Architektur, idyllische Weinlandschaften und eine hohe Lebensqualität.
Die Immobilie liegt zentral im Ortskern, umgeben von charmanten Fachwerkhäusern, dem denkmalgeschützten Marktplatz und der Seebachquelle – einer der bedeutendsten Quellen Rheinhessens. Der historische Pulverturm und die Reste der mittelalterlichen Befestigungsanlage verleihen dem Ort ein besonderes Flair
Die verkehrliche Anbindung ist hervorragend: Die B47 führt direkt durch Westhofen und verbindet die Gemeinde mit den nahegelegenen Städten Worms und Osthofen. Der Bahnhof Osthofen ist nur wenige Kilometer entfernt und bietet Anschluss an das Regionalbahnnetz. Der Flughafen Frankfurt am Main ist in etwa 70 km erreichbar und ermöglicht internationale Verbindungen.
Die Umgebung von Westhofen zeichnet sich durch eine hohe Lebensqualität und zahlreiche Freizeitmöglichkeiten aus. Die Region ist ideal für Outdoor-Aktivitäten wie Wandern und Radfahren. Der Westhofener Wingertsheisjer Wanderweg führt durch die Weinberge und bietet atemberaubende Ausblicke auf die Landschaft .
Kulturell hat Westhofen einiges zu bieten: Jährlich finden Veranstaltungen wie das Traubenblütenfest und der Westhofener Markt statt, die Besucher aus der Region anziehen . Die Nähe zu den Städten Worms und Mainz ermöglicht zudem den Zugang zu einem breiten kulturellen Angebot, darunter Museen, Theater und historische Sehenswürdigkeiten.
Für Familien bietet Westhofen eine gute Infrastruktur mit Kindergärten, Schulen und Sporteinrichtungen. Die Region zeichnet sich durch eine hohe Lebensqualität und ein starkes Gemeinschaftsgefühl aus.
Sonstige Angaben
Geldwäschegesetz:
Als Immobilienmaklerunternehmen ist das LANDHAUS13 nach § 2 Abs. 1 Nr. 14 und § 11 Abs. 1.2 Geldwäschegesetz (GwG) dazu verpflichtet, bei der Begründung einer Geschäftsbeziehung die Identität des Vertragspartners festzustellen und zu überprüfen, bzw. sobald ein ernsthaftes Interesse an der Durchführung des Immobilienkaufvertrages beseht. Hierzu ist es erforderlich, dass wir nach § 11 Abs. 4 GwG die relevanten Daten Ihres Personalausweises festhalten (wenn Sie als natürliche Person handeln) - beispielsweise mittels einer Kopie. Bei einer juristischen Person benötigen wir eine Kopie des Handelsregisterauszuges, aus welchem der wirtschaftlich Berechtigte hervorgeht. Das Geldwäschegesetz sieht vor, dass der Makler die Kopien bzw. Unterlagen fünf Jahre aufbewahren muss. Als unser Vertragspartner haben Sie auch ein Mitwirkungsrecht nach § 11. Abs. 6 GwG.
Haftung:
Wir weisen darauf hin, dass die von uns weitergegebenen Objektinformationen, Unterlagen, Pläne usw. vom Verkäufer/Vermieter stammen. Eine Haftung für die Richtigkeit oder Vollständigkeit der Angaben übernehmen wir daher nicht. Es obliegt daher unseren Kunden, die darin enthaltenen Objektinformationen und Angaben auf ihre Richtigkeit hin zu überprüfen. Alle Immobilienangebote sind freibleibend und vorbehaltlich Irrtümer, Zwischenverkauf- und Vermietung oder sonstiger Zwischenverwertung.
Verbraucherinformation:
Gemäß Verordnung (EU) Nr. 524/2013)
Im Rahmen der Verordnung über Online-Streitbeilegung zu Verbraucherangelegenheiten steht Ihnen unter http://ec.europa.eu/consumers/odr/
Eine Onlinestreitbeilegungsplattform der EU-Kommission zur Verfügung.
Wir nehmen nicht an einem Steitbeilegungsverfahren vor einer Verbraucherschlichterstelle teil.
Grundriss
OG
>
>
DG
>
>
EG
>
>
Adresse
67593 Westhofen
Interessante Orte
Preis- und Lageinformationen
Preistrend für Bestandsimmobilien in Westhofen