Willkommen in Weilrod-Mauloff, wo Geschichte und Potential aufeinandertreffen.
Dieses einzigartige Wohn- und Geschäftshaus, erbaut im Jahr 1845, bietet Ihnen die seltene Gelegenheit, ein Stück Geschichte zu erwerben und gleichzeitig Ihre eigenen Ideen zu verwirklichen.
Auf einem großzügigen Grundstück, das über mehrere Stellplätze sowie einer ausbaufähigen Scheune mit Werkstatt verfügt, die etwa 85 m² Nutzfläche bietet, entfaltet sich hier eine Welt voller Möglichkeiten.
Das Gebäude präsentiert sich im traditionellen Fachwerkstil und strahlt einen besonderen Charme aus.
Im Inneren wartet ein gemütlicher Wohnbereich darauf, mit Leben gefüllt zu werden.
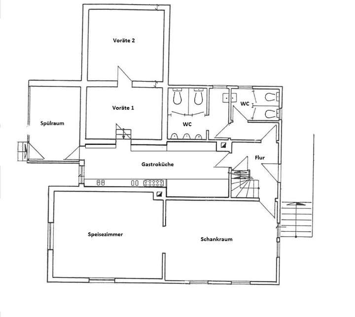
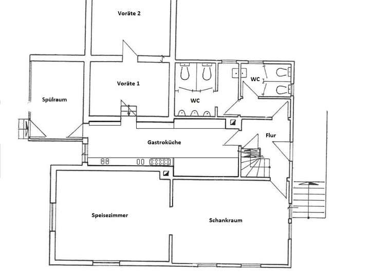
Der gastronomische Bereich welcher durch einen ca. 50 m² großen Gastraum besticht sowie als Restaurant "Zur Rose" bekannt ist, dient mit einer voll ausgestatteten Gastroküche, einem Kühlraum sowie einem einladenden Biergarten - ideal für alle, die ihre Leidenschaft für die Gastronomie ausleben möchten.
Zwar ist die Immobilie sanierungsbedürftig, doch genau das bietet Ihnen die Chance, es nach Ihren Wünschen und Vorstellungen zu gestalten.
Stellen Sie sich vor, wie Sie aus diesem historischem Gebäude ein modernes Zuhause mit einem beliebten Gastronomiebetrieb schaffen, der die Menschen in der Umgebung anzieht.
Nutzen Sie diese einmalige Gelegenheit, in eine Immobilie mit Geschichte und Zukunftsperspektive zu investieren.
Lassen Sie Ihrer Kreativität freien Lauf und gestalten Sie dieses Juwel nach Ihren Vorstellungen!
Gastro-Anwesen im Taunus: Fachwerkflair, Biergarten, Wohnung, Stellplätze, Scheune & Ausbauoptionen!
61276 Weilrod
Die vollständige Adresse der Immobilie erhalten Sie vom Anbieter.
Auf Karte anzeigen
Die vollständige Adresse der Immobilie erhalten Sie vom Anbieter.
Finanzierungszertifikat
In nur zwei Minuten zu Ihrem persönlichen Finanzierungszertifkat.
Infos
| Etagenzahl | 2 |
|---|---|
| Wohnfläche ca. | 110 m2 |
| Nutzfläche | 250 m2 |
| Grundstücksfläche | 797 m2 |
| Zimmer | 4 |
| Schlafzimmer | 3 |
| Badezimmer | 1 |
| Garage/Stellplatz | Außenstellplatz |
| Anzahl Garage/Stellplatz | 6 |
Kosten
| Kaufpreis |
199.000 € |
|---|---|
| Provision |
Käuferprovision beträgt 3,57 % (inkl. MwSt.) des beurkundeten Kaufpreises |
Finanzierungsrechner:
Kaufpreis:
600.000 €
Eigenkapital:
600.000 €
Monatliche Rate
0 €
Effektiver Jahreszins
0 %
Sollzinsbindung
10 Jahre
Bausubstanz & Energieausweis
| Baujahr | 1899 |
|---|---|
| Bauphase | Haus fertig gestellt |
| Qualität der Austattung | Einfach |
| Heizungsart | Zentralheizung |
| Wesentliche Energieträger | Öl |
| Energieausweis | liegt vor |
| Energieausweistyp | Bedarfsausweis |
| Energieverbrauchskennwert | 429,9 kWh/(m²*a) |
| Energieeffizienzklasse | H |
429,9
kWh/(m²*a)
Energieeffizienzklasse H
- A+
- A
- B
- C
- D
- E
- F
- G
- H
- 0
- 25
- 50
- 75
- 100
- 125
- 150
- 175
- 200
- 225
- >250
Beschreibung des Objekts
Ausstattung
- Biergarten im Vorhof zum Einkehren und Verweilen
- mehrere Stellplätze im Hof
- Scheune inkl. Hobbyraum mit Starkstromanschluss und ca. 85 m²
- überdachter Eingangsbereich
- umfangreiche Sanitäranlagen
- geräumige Gastroküche mit Durchreiche, angrenzendem Spülraum und Vorratskammern
- 2-fach verglaste Holz-/Sprossenfenster
- Gast- sowie Schankraum mit gepflegter Bar ca. 50 m²
- Kühlraum sowie Getränkelager und Heizungsraum im Kellergeschoss
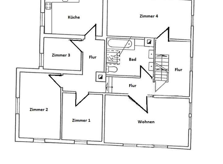
- Wohnbereich im Obergeschoss mit ca. 4 Schlafzimmern und Duschbad inklusive Lichtschacht sowie geräumiger Küche
- Dachgeschoss mit Ausbaupotential
Lage
Die Gemeinde Weilrod befindet sich im Weiltal inmitten des Naturparks Hochtaunus.
Eine idyllischere und erholsamere Lage findet sich kaum und die Freitzeitmöglichkeiten sind überaus vielfältig.
Beliebt bei Radfahrern, Joggern und Spaziergängern ist das malerische Weiltal, welches auch durch den Weiltal-Marathon in der Laufszene bestens bekannt ist.
Tennis- und Reitplätze, der Golfplatz, zahlreiche Wander-, Rad- und Reitwege und ein reges Vereinsleben kennzeichnen den Standort Weilrod.
Kindergärten und verschiedene schulische Angebote befinden sich vor Ort. Darüber hinaus gibt es sehr gute Busverbindungen in Richtung Schmitten, Königstein und Usingen.
Im nur wenige Kilometer entfernten Usingen befinden sich ein Hallenbad sowie der Hattsteinweiher, im Sommer neben dem Waldschwimmbad in Neu-Anspach eine beliebte Anlaufstelle - für Familien mit Kindern ebenso wie für ambitionierte Schwimmer. Voraussichtlich wird die S-Bahn-Verbindung im Jahre 2020 Richtung Usingen ausgebaut.
Ebenfalls nur ca. 10-15km entfernt befinden sich die Städte Bad Camberg, Idstein, Weilburg und Limburg, die nicht nur mit zahlreichen Sehenswürdigkeiten aufwarten, sondern auch mit einer vielfältigen Infrastruktur und Freizeitmöglichkeiten begeistern. Zahlreiche Weilroder Kinder besuchen bspw. die dortigen Schulen oder auch das akademische Weiterbildungsangebot der Hochschule Fresenius in Idstein.
Sonstige Angaben
GELDWÄSCHE: Als Immobilienmaklerunternehmen ist die von Poll Immobilien GmbH nach § 2 Abs. 1 Nr. 14 und § 11 Abs. 1, 2 Geldwäschegesetz (GwG) dazu verpflichtet, bei der Begründung einer Geschäftsbeziehung die Identität des Vertragspartners festzustellen und zu überprüfen, bzw. sobald ein ernsthaftes Interesse an der Durchführung des Immobilienkaufvertrages besteht. Hierzu ist es erforderlich, dass wir nach § 11 Abs. 4 GwG die relevanten Daten Ihres Personalausweises festhalten (wenn Sie als natürliche Person handeln) – beispielsweise mittels einer Kopie. Bei einer juristischen Person benötigen wir eine Kopie des Handelsregisterauszugs, aus welchem der wirtschaftlich Berechtigte hervorgeht. Das Geldwäschegesetz sieht vor, dass der Makler die Kopien bzw. Unterlagen fünf Jahre aufbewahren muss. Als unser Vertragspartner haben Sie auch eine Mitwirkungspflicht nach § 11 Abs. 6 GwG.
HAFTUNG: Wir weisen darauf hin, dass die von uns weitergegebenen Objektinformationen, Unterlagen, Pläne etc. vom Verkäufer bzw. Vermieter stammen. Eine Haftung für die Richtigkeit oder Vollständigkeit der Angaben übernehmen wir daher nicht. Es obliegt daher unseren Kunden, die darin enthaltenen Objektinformationen und Angaben auf ihre Richtigkeit hin zu überprüfen. Alle Immobilienangebote sind freibleibend und vorbehaltlich Irrtümer, Zwischenverkauf- und Vermietung oder sonstiger Zwischenverwertung.
UNSER SERVICE FÜR SIE ALS EIGENTÜMER:
Planen Sie den Verkauf oder die Vermietung Ihrer Immobilie, so ist es für Sie wichtig, deren Marktwert zu kennen. Lassen Sie kostenfrei und unverbindlich den aktuellen Wert Ihrer Immobilie professionell durch einen unserer Immobilienspezialisten einschätzen. Unser bundesweites und internationales Netzwerk ermöglicht es uns, Verkäufer bzw. Vermieter und Interessenten bestmöglich zusammenzuführen.
Grundriss
Erdgeschoss
>
>
Obergeschoss
>
>
Kellergeschoss
>
>
Adresse
61276 Weilrod
Interessante Orte
Preis- und Lageinformationen
Preistrend für Bestandsimmobilien in Weilrod