--- Sollten Sie ein kompetenten Finanzierungspartner für Ihre Finanzierung benötigen, sprechen Sie uns bitte hierzu direkt an, da wir Ihnen unsere sehr erfahrenen Kooperationspartner gerne vermitteln können. ---
Eine Besichtigung ist nach Absprache möglich. Wir benötigen bei Interesse eine Anfrage mit Ihren vollständigen Kontaktdaten und Telefonnummer.
Sie haben hier die Chance ein sehr schönes Reihenmittelhaus im Grünen nähe Friedwald in sehr ruhiger Lage von Dietzenbach zu erwerben.
Das Haus ist aktuell für 2000 EUR Kaltmiete und 300 EUR NK vermietet.
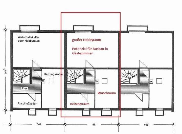
Das Haus hat insgesamt 6 Zimmer aufgeteilt auf UG, EG, OG und DG. Im Untergeschoss haben Sie 1 Hobbyraum, Waschküche und den Heizungsraum. Im EG haben ein Wohnzimmer mit Zugang zu Terrasse und Garten, Küche mit Einbauküche und ein Gäste-WC. Im Obergeschoss haben Sie 1 Zimmer mit Balkon, ein weiteres Zimmer mit Blick ins Grüne, eine Küche die auch als Zimmer möglich wäre und ein Tageslicht-Wannenbad. Im Dachgeschoss haben Sie ein weiteres großes Schlafzimmer und ein sehr gepflegtes Tageslicht-Duschbad.
Alle Kellerfenster wurden erneuert sowie diverse Heizkörper. Der Zugang zum Garten erfolgt über die Terrasse (mit herausfahrbarer Markise. Eine Garage gehört zum Haus (s. Lageplan). Die Gasheizung wurde 2012 erneuert.
PROVISIONSFREI*** Reihenmittelhaus + Garten + Balkon + Garage*** in Dietzenbach-Westend-FriedWald***
63128 Dietzenbach
Die vollständige Adresse der Immobilie erhalten Sie vom Anbieter.
Auf Karte anzeigen
Die vollständige Adresse der Immobilie erhalten Sie vom Anbieter.
Finanzierungszertifikat
In nur zwei Minuten zu Ihrem persönlichen Finanzierungszertifkat.
Infos
| Haustyp | Reihenmittelhaus |
|---|---|
| Etagenzahl | 2 |
| Wohnfläche ca. | 122 m2 |
| Nutzfläche | 29,34 m2 |
| Grundstücksfläche | 194 m2 |
| Bezugsfrei ab | nach Vereinbarung |
| Zimmer | 6 |
| Schlafzimmer | 4 |
| Badezimmer | 3 |
| Garage/Stellplatz | Garage |
| Anzahl Garage/Stellplatz | 1 |
Kosten
| Kaufpreis |
490.000 € |
|---|---|
| Provision | Nein |
| Mieteinnahmen | 700 € |
Finanzierungsrechner:
Kaufpreis:
600.000 €
Eigenkapital:
600.000 €
Monatliche Rate
0 €
Effektiver Jahreszins
0 %
Sollzinsbindung
10 Jahre
Bausubstanz & Energieausweis
| Baujahr | 1971 |
|---|---|
| Letzte Sanierung | 2012 |
| Bauphase | Haus fertig gestellt |
| Objektzustand | Gepflegt |
| Qualität der Austattung | Normal |
| Heizungsart | Zentralheizung |
| Wesentliche Energieträger | Gas |
| Energieausweis | liegt vor |
| Energieausweistyp | Bedarfsausweis |
| Energieverbrauchskennwert | 135,6 kWh/(m²*a) |
| Energieeffizienzklasse | E |
135,6
kWh/(m²*a)
Energieeffizienzklasse E
- A+
- A
- B
- C
- D
- E
- F
- G
- H
- 0
- 25
- 50
- 75
- 100
- 125
- 150
- 175
- 200
- 225
- >250
Beschreibung des Objekts
Ausstattung
UG
- Hobbyraum
- Waschraum mit Waschmaschinen und Trockner
- Heizungsraum
- Gas-Zentralheizung, Baujahr 2012 - Kesseltyp Viessmann Vitodens 300-W - 19KW
EG
- Parkett- und Fliesenboden im EG
- Wohnbereich mit Parkettboden und Zugang zur Terrasse und Garten
- separate Küche im EG mit vollausgestatteter Einbauküche
- Zugang zur Terrasse und Garten (ca. 40qm) mit Gartenhütte
- Gäste-WC
OG
- Zimmer mit Zugang zum Balkon mit Markise
- weiteres Zimmer mit Blick ins Grüne
- weitere Raum, aktuell als Küche ausgestattet, wäre auch als Schlafzimmer möglich
- Tageslicht-Wannenbad
DG
- Schlafzimmer mit 2 Fenster und Einbauschrank
- sehr gepflegtes Tageslicht-Duschbad
- 1 Garage mit automatischem Rolltor (Fernbedienung)
Maße der Garage:
- 5,40 m tief
- 2,87 m breit
- 2.11 m hoch
Lage
Dietzenbach liegt mit seinen ca. 33.000 Einwohnern im Herzen der Wirtschaftsregion Rhein-Main, südöstlich von Frankfurt und gehört zum Landkreis Offenbach. Der Flughafen Frankfurt liegt nur ca. 15 Autominuten entfernt. Mit der S-Bahn (5 Minuten Fußweg von der Wohnung entfernt) und diversen Buslinien erreichen Sie Frankfurt und die Umgebung auch bequem mit dem öffentlichen Nahverkehr. Autobahnanschlüsse zur A3, A5 und A661 sind ebenfalls sehr schnell erreichbar.
Die zentrale Lage und gute Infrastruktur machen Dietzenbach besonders attraktiv. Die Stadt ist umgeben von großen Grünflächen und Wäldern. Eine optimale Lebensqualität wird nicht zuletzt durch das umfangreiche Bildungs- und Freizeitangebot gewährleistet. Diverse Bildungseinrichtungen sind hier ebenfalls zu finden:
Schulen:
Dietzenbach hat, über die Stadt verteilt, sechs Grundschulen und zwei weiterführende Schulen. Davon bietet eine G8 und die andere G9. Es gibt zwei Privatschulen, (Montessori- und Waldorfschule), außerdem eine Musik- und eine Volkshochschule.
Sonstige Angaben
Für die Richtigkeit und Vollständigkeit der Angaben hinsichtlich der angebotenen Objekte
kann keine Haftung übernommen werden.
Weitere interessante Angebote finden Sie auf unserer Website www.houbban.immo
SUCHE:
Wir suchen für unsere potenziellen Kunden interessante Immobilien im Rhein-Main-Gebiet und bundesweit. Wir selbst sind Immobilienmakler mit Tätigkeitsschwerpunkt in der Vermietung (speziell Ladengeschäfte) und im Verkauf (Mehrfamilienhäuser und Eigentumswohnungen).
Sie möchten Ihre Immobilie verkaufen oder vermieten? Wir, von Houbban & Partner Immobilien, sind Ihr kompetenter Partner!
Was dürfen wir für Sie tun?
Gerne stehen wir Ihnen per Kontaktformular oder persönlich für Sie zur Verfügung.
Grundriss
UG RMH_Grundriss
>
>
EG RMH_Grundriss
>
>
OG RMH_Grundriss
>
>
DG RMH_Grundriss
>
>
Adresse
63128 Dietzenbach
Interessante Orte
Preis- und Lageinformationen
Preistrend für Bestandsimmobilien in Dietzenbach