Einziehen, wohlfühlen und den Ausblick genießen – Erstbezug in einen hochwertigen Neubau. Diese Doppelhaushälfte in gefragter Lage von Bad Kreuznach verbindet modernes Wohnen mit einem familiengerechten Raumkonzept. In naturnaher Umgebung und mit guter Anbindung an die Stadt bietet sie ideale Voraussetzungen für Familien, die Platz und ein angenehmes Wohnumfeld am Fuße des Kuhbergs schätzen. Mit dem Baubeginn im Jahr 2022 und der finalen Fertigstellung in 2024/2025 präsentiert sich diese Doppelhaushälfte heute als modernes, neuwertiges Zuhause.
Viel Platz für Ihre Familie: Die Immobilie im Überblick
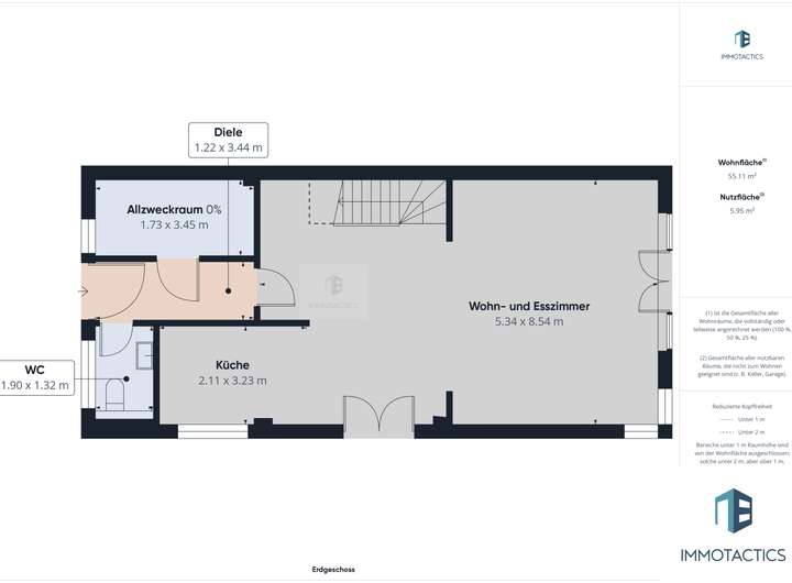
Im Erdgeschoss empfängt Sie ein separater Eingangsbereich, von dem aus das moderne Gäste-WC und der Hauswirtschaftsraum mit Anschlüssen für Technik, Waschmaschine und Trockner zugänglich sind. Der offene Wohn-, Ess- und Küchenbereich bildet das Herzstück des Hauses. Bodentiefe Fensterfronten lassen viel Tageslicht herein und bieten einen weiten Blick in den Garten und auf die Terrasse. Eine stilvolle Massivholztreppe verbindet alle Etagen miteinander und unterstreicht die wertige Gestaltung des Hauses.
Erdgeschoss auf einen Blick:
Eingangsbereich
Modernes Gäste-WC
Hauswirtschaftsraum mit Technikanschlüssen und Anschlüssen für Waschmaschine und Trockner
Großer Wohn-, Ess- und Küchenbereich mit Zugang zur Terrasse
Lichtdurchflutete Räume dank bodentiefer Fensterfronten
Hochwertige Massivholztreppe
Im ersten Obergeschoss erwartet Sie ein Elternschlafzimmer mit angrenzender Ankleide. Bodentiefe Fenster sorgen hier für eine helle und freundliche Atmosphäre. Ein weiteres Zimmer eignet sich ideal als Büro. Auch dieser Raum ist mit zwei bodentiefen Fenstern ausgestattet und bietet einen ruhigen, ungestörten Platz für konzentriertes Arbeiten im Homeoffice. Das Tageslichtbad ist mit einer bodentiefen Dusche und einer separaten Badewanne ausgestattet.
1. Obergeschoss:
Elternschlafzimmer mit Ankleide und bodentiefen Fenstern
Weiteres Zimmer als Büro für Homeoffice
Badezimmer mit Fenster, Dusche und Badewanne
Das Dachgeschoss verfügt über zwei helle, nahezu gleich große Zimmer, die sich ideal als Kinderzimmer eignen. Ergänzt wird der Bereich durch ein eigenes Badezimmer mit Fenster, Dusche und Badewanne – baugleich zum Bad im 1. Obergeschoss. Die Etage ist klar vom restlichen Wohnbereich getrennt und schafft damit eine praktische Raumaufteilung für Kinder oder Gäste.
Dachgeschoss:
Zwei helle geräumige Zimmer – perfekt als Kinderzimmer
Eigenes Badezimmer mit Tageslicht, Dusche und Badewanne
Zugang zum Dachboden über ausklappbare Treppe
Draußen einfach durchatmen
Das Grundstück verfügt über einen großzügigen, ebenerdigen Garten mit sonniger Ausrichtung. Er bietet vielfältige Nutzungsmöglichkeiten – etwa zum Spielen, Entspannen oder für gärtnerische Gestaltung - hier lässt sich Ihr eigenes Poolprojekt verwirklichen.
Direkt neben dem Haus stehen zwei Außenstellplätze zur Verfügung, welche bereits im Kaufpreis mit inbegriffen sind. Zusätzliche Parkmöglichkeiten befinden sich in der Straße.
Bei Interesse freuen wir uns über Ihre Kontaktaufnahme – gerne vereinbaren wir einen Besichtigungstermin, damit Sie sich selbst ein Bild von dieser Immobilie machen können.
Familien(t)raum mit Weitblick: Moderne Doppelhaushälfte mit Garten & Terrasse in Bad Kreuznach
55543 Bad Kreuznach
Die vollständige Adresse der Immobilie erhalten Sie vom Anbieter.
Auf Karte anzeigen
Die vollständige Adresse der Immobilie erhalten Sie vom Anbieter.
Finanzierungszertifikat
In nur zwei Minuten zu Ihrem persönlichen Finanzierungszertifkat.
Infos
| Haustyp | Doppelhaushaelfte |
|---|---|
| Wohnfläche ca. | 160 m2 |
| Nutzfläche | 6 m2 |
| Grundstücksfläche | 319 m2 |
| Bezugsfrei ab | sofort |
| Zimmer | 5 |
| Badezimmer | 2 |
| Anzahl Garage/Stellplatz | 2 |
Kosten
| Kaufpreis |
583.000 € |
|---|---|
| Preis für Garage/Stellplatz | 16.000 € |
| Provision |
3,57% inkl. gesetzlicher Umsatzsteuer |
Finanzierungsrechner:
Kaufpreis:
600.000 €
Eigenkapital:
600.000 €
Monatliche Rate
0 €
Effektiver Jahreszins
0 %
Sollzinsbindung
10 Jahre
Bausubstanz & Energieausweis
| Baujahr | 2022 |
|---|---|
| Letzte Sanierung | 2025 |
| Bauphase | Haus fertig gestellt |
| Objektzustand | Erstbezug |
| Qualität der Austattung | Normal |
| Heizungsart | Wärmepumpe |
| Wesentliche Energieträger | Strom |
| Energieausweis | liegt vor |
| Energieausweistyp | Bedarfsausweis |
| Energieverbrauchskennwert | 23,7 kWh/(m²*a) |
| Energieeffizienzklasse | A+ |
23,7
kWh/(m²*a)
Energieeffizienzklasse A+
- A+
- A
- B
- C
- D
- E
- F
- G
- H
- 0
- 25
- 50
- 75
- 100
- 125
- 150
- 175
- 200
- 225
- >250
Beschreibung des Objekts
Ausstattung
- Wohnfläche: 160 qm
- Luft-Wasser-Wärmepumpe
- Gäste-WC
- 2 Tageslichtbäder mit Badewanne und begehbarer Dusche
- Sprechanlage
- Dreifachisolierverglasung aus Klarglas
- Bodentiefe Fenster
- Automatische Rolläden
- Fußbodenheizung
- Massivholztreppen
- Vinyl-Bodenbelag
- 2 Außenstellplätze
- Garten
-Terrasse
Lage
Diese Immobilie befindet sich in ruhiger Wohnlage von Bad Kreuznach, am Fuße des Kuhberges. Die Straße selbst ist eine wenig befahrene Anliegerstraße mit überwiegend wohnbaulicher Nutzung, was ein ruhiges und familienfreundliches Umfeld schafft. Die Verkehrsanbindung ist durch die Nähe zur Rheingrafenstraße sehr gut: Von hier aus lassen sich sowohl die Innenstadt als auch überregionale Verkehrswege schnell erreichen.
Der öffentliche Nahverkehr ist gut ausgebaut. In fußläufiger Entfernung befinden sich mehrere Bushaltestellen mit direkter Anbindung an das Stadtzentrum, den Bahnhof sowie umliegende Stadtteile. Der Hauptbahnhof Bad Kreuznach ist nur wenige Fahrminuten entfernt und bietet regelmäßige Verbindungen in Richtung Mainz, Bingen, Kaiserslautern und Frankfurt. Auch für Fahrradfahrer und Fußgänger ist die Infrastruktur gut ausgebaut – Bürgersteige sind beidseitig vorhanden, und das Radwegenetz der Stadt wird kontinuierlich erweitert.
Einrichtungen des täglichen Bedarfs wie Supermärkte, Bäckereien, Apotheken und Ärzte sind bequem zu erreichen – sie befinden sich im nahegelegenen Stadtzentrum. Auch Kindergärten, Schulen und Freizeiteinrichtungen liegen im nahen Umfeld, was die Lage besonders für Familien attraktiv macht. Insgesamt bietet der Standort eine gute Infrastruktur, eine angenehme Wohnatmosphäre und eine sehr solide Erreichbarkeit – sowohl für den Individualverkehr als auch für Nutzer öffentlicher Verkehrsmittel.
Sonstige Angaben
Die in unserem Exposé enthaltenen Aussagen basieren ausschließlich auf Informationen, die uns vom Verkäufer und von Handwerkern zur Verfügung gestellt wurden.
Wir übernehmen daher keine Gewähr für die Vollständigkeit und Richtigkeit der Angaben.
Das Immobilienangebot ist freibleibend.
Irrtum und Zwischenverkauf bleiben vorbehalten.
Weitere Details zum Objekt erläutern wir Ihnen gerne bei einem Besichtigungstermin.
Wir bitten um Ihr Verständnis dafür, dass wir nur Anfragen mit vollständigen Adressdaten inklusive Vor- und Zuname, Anschrift, Telefon-/Mobilnummer und Email Adresse bearbeiten können.
Sie suchen nach der passenden Finanzierung? Wir finden sie!
Als ungebundene Finanzierungsvermittler vergleichen wir über 900 Banken und finden einen optimalen Kredit für Sie.
Sparen Sie Geld und Zeit! Mit Sicherheit günstiger als Ihre Hausbank.
Fragen Sie uns kostenfrei und unverbindlich an!
Wir freuen uns auf den Kontakt zu Ihnen:
Immotactics GmbH
0671 – 20272030
info@immotactics.de
Grundriss
Grundriss EG
>
>
Grundriss 1.OG
>
>
Grundriss DG
>
>
Adresse
55543 Bad Kreuznach
Interessante Orte
Preis- und Lageinformationen
Preistrend für Bestandsimmobilien in Bad Kreuznach