In ruhiger Ortslage von Einselthum erwartet Sie dieser offen gestaltete Bungalow aus dem Jahr 1996. Mit einer großzügigen Wohnfläche von ca. 165 m² auf einem beeindruckenden Grundstück von rund 980 m² bietet das Haus viel Platz für individuelles Wohnen auf einer Ebene.
Das Herzstück bildet das große, lichtdurchflutete Wohnzimmer mit einer offenen Empore – ein architektonisches Highlight, das dem Raum eine besondere Tiefe und Atmosphäre verleiht. Ideal zum Gestalten einer gemütlichen Galerie, als Arbeitsbereich oder einfach als Blickfang mit Weitblick.
Neben dem geräumigen Wohnbereich stehen insgesamt vier Zimmer zur Verfügung, darunter ein großzügiges Schlafzimmer sowie die über dem Wohnzimmer gelegene Empore, die vielfältige Einrichtungsmöglichkeiten erlauben. Das Gäste-WC befindet sich im Eingangsbereich, praktisch und dezent integriert in den Flur.
Der weitläufige Garten lädt mit seinem liebevoll angelegten Teich zum Entspannen ein – hier kann man den Alltag wunderbar hinter sich lassen. Eine Garage sorgt für geschützten Stellplatz und zusätzlichen Stauraum.
Erwähnenswert ist auch der große Keller, der dank seiner Fläche und Raumaufteilung viel Potenzial für Hobbyräume, Werkstatt oder Lagerfläche bietet. Die lichte Raumhöhe beträgt knapp unter 2,30 m, daher wird er nicht zur Wohnfläche gezählt, ist jedoch äußerst vielseitig nutzbar.
Ein Zuhause für alle, die Raum zur Entfaltung, naturnahes Wohnen und klare, funktionale Gestaltung schätzen.
Einen Besichtigungstermin können wir Ihnen nach Nutzung des 360-Grad-Rundgangs anbieten. Ihrer Anfrage folgt eine automatisierte Antwortmail mit der Bitte die AGB‘s und Widerrufsbelehrung zu bestätigen. Nach Download des Exposés erhalten Sie eine weitere Mail mit der virtuellen Tour.
Architektonisch ansprechender Bungalow mit Wintergarten und Garage auf großzügigem Grundstück
67308 Einselthum
Die vollständige Adresse der Immobilie erhalten Sie vom Anbieter.
Auf Karte anzeigen
Die vollständige Adresse der Immobilie erhalten Sie vom Anbieter.
Finanzierungszertifikat
In nur zwei Minuten zu Ihrem persönlichen Finanzierungszertifkat.
Infos
| Haustyp | Einfamilienhaus |
|---|---|
| Etagenzahl | 1 |
| Wohnfläche ca. | 165 m2 |
| Nutzfläche | 133 m2 |
| Grundstücksfläche | 978 m2 |
| Zimmer | 4 |
| Schlafzimmer | 2 |
| Badezimmer | 2 |
| Garage/Stellplatz | Garage |
| Anzahl Garage/Stellplatz | 1 |
Kosten
| Kaufpreis |
475.000 € |
|---|---|
| Provision |
3,57% |
Finanzierungsrechner:
Kaufpreis:
600.000 €
Eigenkapital:
600.000 €
Monatliche Rate
0 €
Effektiver Jahreszins
0 %
Sollzinsbindung
10 Jahre
Bausubstanz & Energieausweis
| Baujahr | 1996 |
|---|---|
| Objektzustand | Gepflegt |
| Heizungsart | Zentralheizung |
| Wesentliche Energieträger | Öl |
| Energieausweis | liegt vor |
| Energieausweistyp | Bedarfsausweis |
| Energieverbrauchskennwert | 135,8 kWh/(m²*a) |
| Energieeffizienzklasse | E |
135,8
kWh/(m²*a)
Energieeffizienzklasse E
- A+
- A
- B
- C
- D
- E
- F
- G
- H
- 0
- 25
- 50
- 75
- 100
- 125
- 150
- 175
- 200
- 225
- >250
Beschreibung des Objekts
Ausstattung
- Bungalow, Baujahr 1996
- Ca. 165 m² Wohnfläche
- Grundstücksgröße ca. 980 m²
- 4 Zimmer, davon 1 große Schlafzimmer
- Offenes, großzügiges Wohnzimmer mit hoher Decke
- Offene Empore über dem Wohnzimmer
- Gäste-WC im Eingangsbereich
- Großer Keller (lichte Raumhöhe
Lage
Einselthum ist eine idyllische Weinbaugemeinde im Donnersbergkreis in Rheinland-Pfalz und gehört zur Verbandsgemeinde Göllheim. Der Ort liegt malerisch eingebettet in die sanften Hügel des Zellertals auf etwa 210 m Höhe und zählt rund 800 Einwohner. Die Umgebung ist geprägt von weitläufigen Weinbergen, Feldern und einer naturnahen Landschaft, die zu Spaziergängen, Radtouren und Erholung im Grünen einlädt.
Trotz der ruhigen Lage bietet Einselthum eine gute Anbindung: Die Bundesstraße B47 verläuft am südlichen Ortsrand, und die Autobahnen A63, A6 und A61 sind in kurzer Fahrzeit erreichbar. Der nächstgelegene Bahnhof mit regelmäßiger Anbindung befindet sich in Monsheim, etwa 10 km entfernt, und ist über eine Buslinie gut erreichbar.
Einselthum ist bekannt für seine lebendige Dorfgemeinschaft, das rege Vereinsleben und seine Weinfeste – allen voran die beliebte „Einselthumer Weinkerwe“ im Juli. Einkaufsmöglichkeiten, Schulen und ärztliche Versorgung finden sich in den umliegenden Orten wie Albisheim, Zellertal oder Kirchheimbolanden.
Die Kombination aus naturnaher Lage, guter Erreichbarkeit und charmantem Dorfleben macht Einselthum zu einem attraktiven Wohnort für alle, die Ruhe und Lebensqualität im Grünen suchen.
Sonstige Angaben
Wir als Immobiliendienstleister sind nach dem Geldwäschegesetz verpflichtet die Identität unserer Kunden festzustellen und zu überprüfen. Diese Verpflichtung haben Immobilienmakler vor dem mündlichen oder schriftlichen Maklervertrag zu erfüllen. Um zu verhindern, dass Gewinne aus Straftaten in Umlauf gebracht werden, gibt es das sogenannte Geldwäschegesetz (GwG). Neben Banken, Versicherungen, Treuhändern, Anwälten und Steuerberatern gehören auch Immobiliendienstleister zu den Verpflichteten des GwG und müssen die Sorgfaltspflichten des Gesetzes anwenden. Seit 2011 wird die Einhaltung der Pflichten durch die Aufsichtsbehörden lückenlos kontrolliert. Die Verpflichteten müssen die Einhaltung dieser gegenüber den Behörden belegen.
Für die praktische Arbeit bedeutet dies, dass Immobiliendienstleister sich den Personalausweis ihrer Kunden zeigen lassen und die Daten aufnehmen müssen. Name, Geburtsort und -datum, Staatsangehörigkeit, Anschrift, Ausweisnummer und ausstellende Behörde sind zu vermerken. Am einfachsten ist es, eine Kopie des Ausweises zu erstellen; das Gesetz sieht ausdrücklich vor, dass die Anfertigung einer Kopie genügt. Außerdem muss der Makler prüfen, ob sein Kunde im eigenen wirtschaftlichen Interesse oder für einen Dritten handelt. Bitte haben Sie deshalb Verständnis dafür, dass wir vor einem Besichtigungstermin Ihre Daten bzw. eine Kopie Ihres Personalausweises aufnehmen müssen.
Alle Angaben in diesem Exposé wurden sorgfältig und so vollständig wie möglich gemacht. Gleichwohl kann das Vorhandensein von Fehlern nicht ausgeschlossen werden. Die Angaben in diesem Exposé erfolgen daher ohne jede Gewähr.
Besichtigungen sind jederzeit, jedoch nur nach vorheriger Terminabsprache mit Ihrem Ansprechpartner möglich. Kaufverhandlungen sind ausschließlich über Ihren Ansprechpartner zu führen. Preisänderungen bleiben vorbehalten.
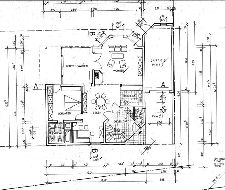
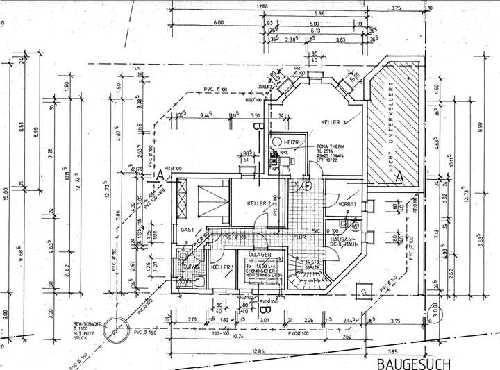
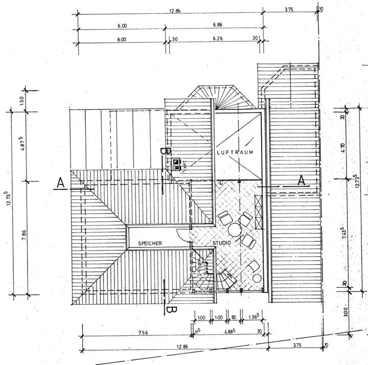
Grundriss
Erdgeschoss
>
>
Kellergeschoss
>
>
Dachgeschoss
>
>
Adresse
67308 Einselthum
Interessante Orte
Preis- und Lageinformationen
Preistrend für Bestandsimmobilien in Einselthum