Diese Immobilie bietet eine seltene Gelegenheit für Eigentümer, die auf der Suche nach einer vielseitigen Immobilie sind. Ursprünglich 1971 erbaut, präsentiert sich dieses Einfamilienhaus mit einer großzügigen Wohnfläche von ca. 220,63 m², verteilt auf neun Zimmer, und bietet damit ausreichend Platz für vielfältige Nutzungsmöglichkeiten, aktuell in der Aufteilung in 2 separate Wohneinheiten als Mehrgenerationenhaus.
Beim Betreten des Hauses gelangen Sie in einen einladenden Eingangsbereich, der den Zugang zu den zwei separaten Wohneinheiten ermöglicht. Jede Einheit ist so konzipiert, dass sie als eigene Wohneinheit genutzt werden kann. Diese Flexibilität macht die Immobilie besonders attraktiv, die eine Kombination aus Wohnen und Kapitalanlage bietet.
Das Grundstück erstreckt sich über beeindruckende ca. 1095 m² und bietet nicht nur ausreichend Parkmöglichkeiten, sondern auch Raum für Erweiterungen oder die Gestaltung eines ansprechenden Außenbereichs. Die Energieeffizienzklasse D spiegelt den Zustand der Immobilie wider und bietet Potenzial für Modernisierungen, um den Energieverbrauch weiter zu optimieren.
Mit einem Kaufpreis von 780.000 € stellt diese Immobilie eine wertvolle Investition dar, die sowohl durch ihre Lage als auch durch ihre Struktur überzeugt. Die Kombination aus großzügigem Raumangebot, vielseitiger Nutzungsmöglichkeit und der Möglichkeit zur Wertsteigerung durch Modernisierungen macht dieses Objekt zu einer idealen Wahl für zukunftsorientierte Investoren.
Zweifamilienhaus in ruhiger rückwärtiger Lage mit großem Garten
22145 Hamburg
Die vollständige Adresse der Immobilie erhalten Sie vom Anbieter.
Auf Karte anzeigen
Die vollständige Adresse der Immobilie erhalten Sie vom Anbieter.
Finanzierungszertifikat
In nur zwei Minuten zu Ihrem persönlichen Finanzierungszertifkat.
Infos
| Haustyp | Mehrfamilienhaus |
|---|---|
| Etagenzahl | 1 |
| Wohnfläche ca. | 220 m2 |
| Nutzfläche | 217,47 m2 |
| Grundstücksfläche | 1.095 m2 |
| Bezugsfrei ab | ab sofort |
| Zimmer | 8 |
| Schlafzimmer | 4 |
| Badezimmer | 4 |
| Garage/Stellplatz | Garage |
| Anzahl Garage/Stellplatz | 2 |
Kosten
| Kaufpreis |
780.000 € |
|---|---|
| Provision |
3,57 |
Finanzierungsrechner:
Kaufpreis:
600.000 €
Eigenkapital:
600.000 €
Monatliche Rate
0 €
Effektiver Jahreszins
0 %
Sollzinsbindung
10 Jahre
Bausubstanz & Energieausweis
| Baujahr | 1971 |
|---|---|
| Objektzustand | Modernisiert |
| Heizungsart | Öl-Heizung |
| Wesentliche Energieträger | Öl |
| Energieausweis | liegt vor |
| Energieausweistyp | Verbrauchsausweis |
| Energieverbrauchskennwert | 180,0 kWh/(m²*a) |
| Energieeffizienzklasse | D |
180,0
kWh/(m²*a)
Energieeffizienzklasse D
- A+
- A
- B
- C
- D
- E
- F
- G
- H
- 0
- 25
- 50
- 75
- 100
- 125
- 150
- 175
- 200
- 225
- >250
Beschreibung des Objekts
Ausstattung
Besondere Highlights:
+ gesamte Wohnfläche ca. 220,63 m²
+ 1. Wohnung EG ca. 130,70 m²
+ 2. Wohnung OG ca. 44,45 m² + ca. 45,48 m²
+ Grundstücksgröße ca. 1095 m²
+ Nutzfläche ca. 217,47 m²
+ Doppelgarage plus Stauraum
+ Stellplätze
+ Lage in Zweiter Reihe
+ nicht einsehbarer Garten
+ große Terrasse von Wohnzimmer und Küche zugänglich
+ Kamin im Wohnzimmer
+ Stäbchenparkett im EG
+ Dachmodernisierung 2010
+ Fenster im OG balkonseitig 1997
+ Dachfenster im Rahmen der Modernisierung 2010
+ jede Wohnung im OG mit Einbauküche und Bad
+ Duschbad und Vollbad im EG
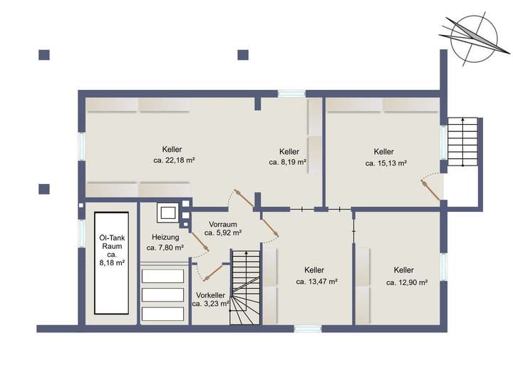
+ Vollunterkellert beheizt
+ Heizungsanlage Baujahr 1987
+ Heizungsbrenner 2013
+ Energieklasse D
WICHTIGER HINWEIS:
Der ausgebaute Wohnbereich im Dachgeschoss ist in der Wohnflächenberechnung bereits enthalten. Dieser wird aktuell durch einen Architekten beim Bauamt nachqualifiziert.
Nähere Details erläutere ich Ihnen gerne in einem persönlichen Gespräch.
Machen Sie sich selbst ein Bild von diesem schönen Objekt und vereinbaren Sie jetzt Ihren individuellen Besichtigungstermin.
Lage
Ihr neues Zuhause liegt zentral in Meiendorf, einem Ortsteil von Hamburg-Rahlstedt, direkt am Naturschutzgebiet Höltigbaum und dem Stellmoorer Tunneltal . Im direkten Umfeld finden Sie alle Läden für den täglichen Bedarf und profitieren von einer guten Infrastruktur.
Mit der Rahlstedter Fußgängerzone existiert ein lebendiges Stadtteilzentrum mit diversen Geschäften, Restaurants und Wochenmärkten. Der besondere Stadtteilcharakter entsteht durch die Verbindung eines eher dörflichen, naturnahen Umfelds und der guten Infrastruktur und Nähe zur Hamburger Stadtmitte. Auch für Familien gibt es mit diversen Kitas und einem breiten Bildungsangebot von der Grundschule bis hin zum Gymnasium ein breites Angebot.
Rahlstedt hat eine gute Anbindung an den ÖPNV. Mit der Regionalbahn erreichen Sie die Innenstadt von Hamburg in ca. 20 Minuten. Der Bezirk Wandsbek wird außerdem von der U-Bahn Linie U1 angefahren. Die S-Bahn-Neubaustrecke S4, welche den Regional- und Fernverkehr entlasten soll, ist gerade im Bau. Sie verbindet Hamburg mit Bad Oldesloe, sodass Umsteigen am Hamburger HBF nicht mehr nötig sein wird. Der öffentliche Nahverkehr ist mit Buslinien hervorragend ausgebaut.
Egal, ob Sie einen Spaziergang entlang der Wandse machen oder durch Alt-Rahlstedt laufen, Sie bewegen sich überall sehr naturnah. Das städtische Leben ist bunt und wird von vielen Vereinen geprägt. Ob Sportfan, ehrenamtlich Engagierter oder Sammler, in Rahlstedt findet jeder genau den Verein, der zu seinen Interessen passt. Wassersportler können auch im neuen, modern ausgebauten Hallen- und Freibad ambitioniert die Bahnen ziehen.
Hamburg Rahlstedt – ein liebenswerter Stadtteil mit Charme und Charakter. Wer dem Trubel Hamburgs aus dem Weg gehen, aber trotzdem zentral wohnen möchte, ist in Rahlstedt genau richtig.
Sonstige Angaben
Sie wollen Ihre Immobilie verkaufen? Sprechen Sie uns an und vereinbaren Sie einen Termin für eine kostenlose Werteinschätzung. Entsprechend Ihrer Vorstellungen erhalten Sie von uns ein für Sie maßgeschneidertes Vermarktungskonzept für Ihre Immobilie.
Dolberg & Uderstadt Immobilien GmbH, Ihr Vertrauensmakler seit 1971 – profitieren Sie von der Erfahrung aus 50 Jahren im Verkauf von Immobilien.
Nebenkosten: ca. 2 % Notar- und Gerichtskosten sowie 5,5 % gesetzlicher Grunderwerbsteuer
Käufercourtage: 3,57 % inkl. Mehrwertsteuer
Bitte haben Sie Verständnis dafür, dass auf Wunsch der Verkäufer keine Reservierungen vor Notartermin möglich sind.
Haftungsausschluss: Wir möchten Sie darauf hinweisen, dass sämtliche Angaben auf Grundlage von Eigentümerangaben, nach bestem Wissen und Gewissen, jedoch ohne Gewähr auf Vollständigkeit und Richtigkeit, erfolgen. Irrtum und Zwischenverkauf vorbehalten. Der Makler ist von jeglicher Haftung befreit.
Grundriss
Grundriss EG
>
>
Grundriss OG
>
>
Grundriss Keller
>
>
Grundriss Dachboden
>
>
Adresse
22145 Hamburg
Interessante Orte
Preis- und Lageinformationen
Preistrend für Bestandsimmobilien in Rahlstedt