Diese Villa von 1931 bietet ein außergewöhnliches Wohnambiente direkt am Ufer eines privaten Sees. Auf einem ca. 2.941 m² großen, parkähnlichen Grundstück mit altem Baumbestand genießen Sie höchste Privatsphäre und eine seltene Kombination aus Natur, Exklusivität und Wohnkomfort.
Im Inneren verbindet die Villa großzügige Räume mit historischem Charme und modernen Akzenten. Das Entrée führt in den Wohn- und Essbereich mit Blick ins Grüne und Zugang zur großen Terrasse. Hochwertige venezianische Spachteltechnik verleiht den Wänden eine edle Anmutung, ein Kamin sorgt für wohltuende Atmosphäre. Zwei weitere Zimmer, ein Bad und ein Gäste-WC vervollständigen das Erdgeschoss.
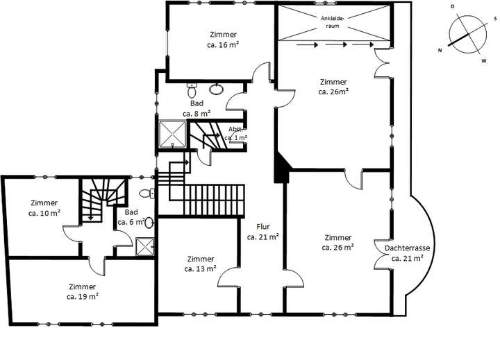
Im Obergeschoss stehen vier Schlafzimmer und ein großes Bad zur Verfügung. Eine Einliegerwohnung mit separatem Eingang erweitert das Raumangebot, ist jedoch sanierungsbedürftig. Insgesamt bietet die Villa ca. 365 m² Wohnfläche; ein großer Spitzboden (ca. 98 m² Nutzfläche) bietet weiteren Stauraum.
Das Untergeschoss verfügt über Sauna, Bar, Fitnessraum und Abstellflächen (ca. 173 m²). Wichtige Modernisierungen wurden bereits durchgeführt: Dach, Dämmung und Dachstuhl 2013, Heizung und Großteil der Fenster 2021.
Mehrere Stellplätze sowie ein überdachter Unterstand runden dieses exklusive Seeanwesen in Othmarschen ab.
Ein Refugium am See
22605 Hamburg
Die vollständige Adresse der Immobilie erhalten Sie vom Anbieter.
Auf Karte anzeigen
Die vollständige Adresse der Immobilie erhalten Sie vom Anbieter.
Finanzierungszertifikat
In nur zwei Minuten zu Ihrem persönlichen Finanzierungszertifkat.
Infos
| Haustyp | Villa |
|---|---|
| Wohnfläche ca. | 365 m2 |
| Grundstücksfläche | 2.941 m2 |
| Zimmer | 10 |
| Schlafzimmer | 8 |
| Badezimmer | 4 |
Kosten
| Kaufpreis |
3.490.000 € |
|---|---|
| Provision |
3,57 % inkl. ges. MwSt. |
Finanzierungsrechner:
Kaufpreis:
600.000 €
Eigenkapital:
600.000 €
Monatliche Rate
0 €
Effektiver Jahreszins
0 %
Sollzinsbindung
10 Jahre
Bausubstanz & Energieausweis
| Baujahr | 1931 |
|---|---|
| Objektzustand | Gepflegt |
| Heizungsart | Zentralheizung |
| Wesentliche Energieträger | Gas |
| Energieausweis | liegt vor |
| Energieausweistyp | Bedarfsausweis |
| Energieverbrauchskennwert | 216,7 kWh/(m²*a) |
| Energieeffizienzklasse | G |
216,7
kWh/(m²*a)
Energieeffizienzklasse G
- A+
- A
- B
- C
- D
- E
- F
- G
- H
- 0
- 25
- 50
- 75
- 100
- 125
- 150
- 175
- 200
- 225
- >250
Beschreibung des Objekts
Lage
Othmarschen im Hamburger Westen besticht durch seine idyllische Lage an der Elbe und seine grünen, gepflegten Wohnstraßen. Historische Architektur und ein einladendes Ambiente schaffen eine harmonische Mischung aus urbanem Lebensstil und natürlicher Schönheit. Die nahe Waitzstraße mit individuellen Boutiquen, Cafés und Restaurants sowie vielfältige Sportmöglichkeiten bieten hohen Komfort und Lebensqualität.
Parks, Grünflächen und das Elbufer laden zu Spaziergängen, Erholung und Aktivitäten im Freien ein. Othmarschen überzeugt zudem mit kultureller Vielfalt: Galerien, lokale Veranstaltungen und ein lebendiges Miteinander prägen das Viertel.
Ausgezeichnete Schulen und die sehr gute Verkehrsanbindung machen Othmarschen zu einem begehrten Wohnort für Familien, Paare und Menschen, die eine besondere Wohnlage mit Wohlfühlatmosphäre suchen.
Adresse
22605 Hamburg
Interessante Orte
Preis- und Lageinformationen
Preistrend für Bestandsimmobilien in Othmarschen
>
>
>
>