Dieses Hotel Garni befindet sich aktuell im Rohbau und bietet Investoren eine ideale Gelegenheit zur Fertigstellung und individuellen Gestaltung. Das Gebäude umfasst drei Etagen und überzeugt mit einer durchdachten Raumaufteilung sowie hochwertigen baulichen Voraussetzungen.
Der Rohbau wurde bereits komplett erstellt, inklusive der Installation von Fenstern mit Dreifachverglasung. Im Erdgeschoss sind die elektrischen Installationen bereits abgeschlossen. Hier befinden sich fünf Doppelzimmer mit eigenem Badezimmer, ein großzügiger Gastraum mit angrenzender Küche, ein Personalraum sowie separate WC-Anlagen für Gäste und Mitarbeiter. Zudem ist ausreichend Fläche für eine gastronomische Nutzung mit einer Sommerterrasse vorhanden. Ergänzend gibt es fünf Apartments mit eigener Terrasse oder Balkon sowie eine Gewerbefläche für die Küche.
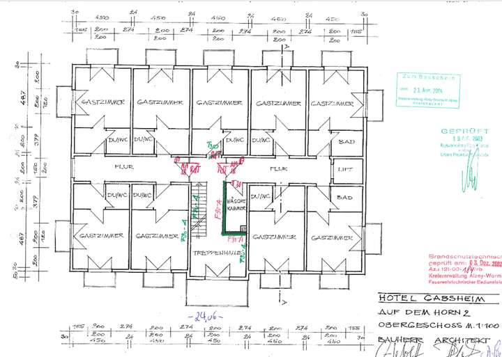
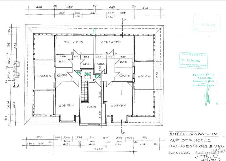
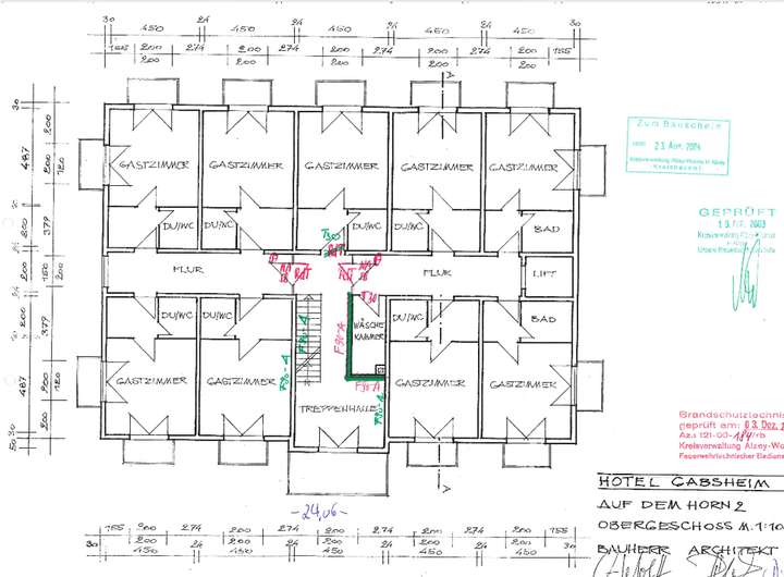
Das erste Obergeschoss ist aktuell im Rohbauzustand, die Fenster wurden jedoch bereits eingebaut. Hier entstehen neun Apartments mit einer Größe von jeweils ca. 30 m², die ebenfalls über einen Balkon oder eine Terrasse verfügen. Im zweiten Obergeschoss befinden sich vier großzügige Zwei-Zimmer-Wohnungen, die jeweils mit einem Badezimmer und einer weitläufigen Terrasse ausgestattet sind.
Ein besonderer Vorteil dieses Projekts ist die vorhandene Tiefgarage, in der die Elektrik bereits verlegt wurde. Zudem ist ein Rolltor bereits installiert. Für zusätzlichen Komfort wurde ein Schacht für einen Personenaufzug vorgesehen, der die Tiefgarage mit dem zweiten Obergeschoss verbindet.
Das gesamte Bauprojekt profitiert von einem eigenen Bebauungsplan für das Areal, was eine langfristige und durchdachte Entwicklung ermöglicht. Mit seinem modernen Konzept und der klaren Nutzung als Hotel Garni bietet dieses Objekt eine attraktive Investitionsmöglichkeit in der Hotelleriebranche.
Hotel Garni im Rohbau – Neubauobjekt mit ca. 1.286 m² vermietbarer Fläche in Alleinlage bei Gabsheim
55288 Gabsheim
Die vollständige Adresse der Immobilie erhalten Sie vom Anbieter.
Auf Karte anzeigen
Die vollständige Adresse der Immobilie erhalten Sie vom Anbieter.
Finanzierungszertifikat
In nur zwei Minuten zu Ihrem persönlichen Finanzierungszertifkat.
Infos
| Wohnfläche ca. | 174 m2 |
|---|---|
| Grundstücksfläche | 1.955 m2 |
| Zimmer | 22 |
| Anzahl Garage/Stellplatz | 17 |
Kosten
| Kaufpreis |
2.100.000 € |
|---|---|
| Provision |
5,95% des notariell beurkundeten Kaufpreises inkl. der gesetzl. MwSt. von z.Zt. 19% |
Finanzierungsrechner:
Kaufpreis:
600.000 €
Eigenkapital:
600.000 €
Monatliche Rate
0 €
Effektiver Jahreszins
0 %
Sollzinsbindung
10 Jahre
Bausubstanz & Energieausweis
| Baujahr | 2023 |
|---|
Beschreibung des Objekts
Ausstattung
Ausstattung des Hotel Garni (Rohbau)
Allgemein:
Kompletter Rohbau mit eingebauten Fenstern (Dreifachverglasung)
Tiefgarage mit verlegter Elektrik und installiertem Rolltor
Schacht für Personenaufzug von der Tiefgarage bis zum 2. Obergeschoss
Erdgeschoss:
Elektrik vollständig verlegt
5 Einzelzimmer mit eigenem Badezimmer
Gastraum mit Küche
Personalraum
WC-Anlagen für Gäste und Mitarbeiter
5 Apartments mit Balkon oder Terrasse
Gewerbefläche für die Küche
Fläche für eine Sommerterrasse zur gastronomischen Nutzung
Erstes Obergeschoss:
Rohbauzustand, Fenster bereits eingebaut
9 Apartments (je ca. 30 m²) mit Balkon oder Terrasse
Zweites Obergeschoss:
4 Zwei-Zimmer-Wohnungen mit eigenem Badezimmer
Große Terrassen für jede Wohnung
Lage
Das Hotel Garni befindet sich in 55288 Gabsheim, einer ruhigen und naturnahen Umgebung im Landkreis Alzey-Worms in Rheinland-Pfalz. Das gesamte Areal steht für sich und ist nicht mitten im Ortskern gelegen, sondern außerhalb der dörflichen Bebauung. Dadurch bietet es eine besondere Exklusivität und ein hohes Maß an Privatsphäre – ideal für Gäste, die eine entspannte und erholsame Atmosphäre suchen.
Gabsheim ist die kleinste Weinbaugemeinde Rheinhessens und zeichnet sich durch eine idyllische Landschaft mit Weinbergen und Feldern aus. Trotz der ruhigen Lage ist die Anbindung an die umliegenden Städte hervorragend. Die nahegelegene Bundesstraße B420 ermöglicht eine schnelle Verbindung nach Alzey (ca. 10 km) und Mainz (ca. 25 km). Über die Autobahnen A61 und A63 sind auch weitere Wirtschaftszentren in der Rhein-Main-Region bequem erreichbar.
Für Investoren ist diese Lage besonders attraktiv, da sie sich ideal für den Betrieb eines Hotels mit Fokus auf Natur- und Erholungstourismus eignet. Die Umgebung bietet zahlreiche Freizeitmöglichkeiten für Gäste, darunter Rad- und Wanderwege durch die Weinberge sowie Ausflüge zu den historischen Städten Alzey, Mainz oder Worms. Zudem spricht die ruhige, aber gut angebundene Lage sowohl Urlauber als auch Geschäftsreisende an, die einen Rückzugsort inmitten der Natur suchen.
Durch die naturnahe Umgebung und die moderne Hotelstruktur besteht Potenzial, ein nachhaltiges und zielgruppenorientiertes Hotelkonzept zu etablieren – insbesondere für Gäste, die Wert auf Erholung, regionale Kultur und eine exklusive Lage legen.
Grundriss
Grundriss Erdgeschoss
>
>
Grundriss Obergeschoss
>
>
Grundriss Dachgeschoss
>
>
Schnitt
>
>
Ansichten
>
>
Ansichten
>
>
Adresse
55288 Gabsheim
Interessante Orte
Preis- und Lageinformationen
Preistrend für Bestandsimmobilien in Gabsheim