Wir vermitteln diese Immobilie im GEBOTSVERFAHREN. Der aufgerufene Preis von 435.000 EUR ist als Mindestpreis zu verstehen. Die Courtage in Höhe von 3,5 % inkl. gesetzlicher MwSt. ist auf den tatsächlich notariell beurkundeten Kaufpreis fällig.
Wir bieten hier einen sanierungsfähigen Altbestand (Bungalow) mit Erweiterungspotential an. Das Grundstück liegt in einer absolut ruhigen, grünen Nachbarschaft in fußläufiger Nähe zu dem großen Naherholungsgebiet Hainesch-Iland, durch das die Saselbek fließt.
Das Grundstück erstreckt sich über eine Fläche von ca. 691qm und liegt in West-Ausrichtung. Es ist von viel Grün umsäumt und ein hübscher Baumbestand ziert den Garten.
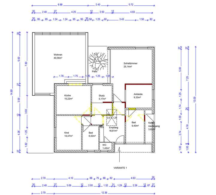
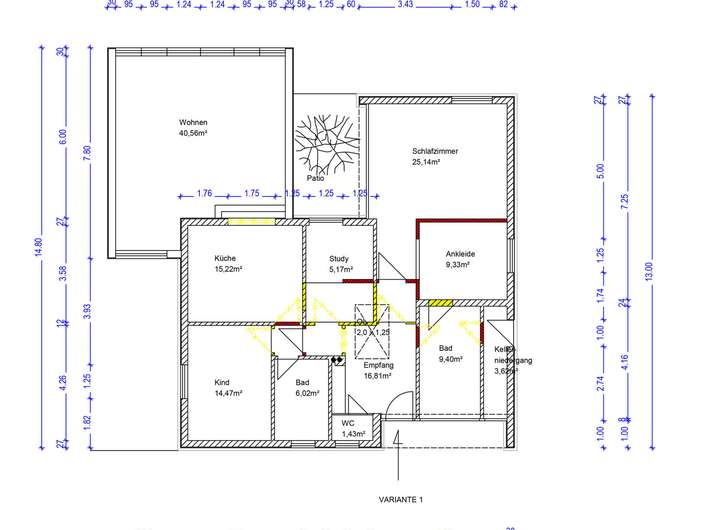
Der Bungalow mit derzeit ca. 110 qm Wohnfläche bedarf einer voll umfänglichen Sanierung. Zudem ist es möglich, diesen auf einer oder zwei Ebenen zu erweitern, um insgesamt bis zu 180 qm Wohnfläche zu erzielen. Hierzu liegen bereits Ideen vor, die wir als Grundrissvorschlag im Exposé eingefügt haben. Natürlich sind auch andere Grundrissaufteilungen realisierbar, je nachdem welcher Raum-und Platzbedarf benötigt wird.
Zudem liegt eine Baugenehmigung für ein Doppelhaus im klassischen Bauhausstil mit ca. 300 qm Wohnfläche vor.
Das Gebäude ist halbunterkellert und bietet trockene Räume zum Wirtschaften und Aufbewahren.
Durch eine Sanierung würde der ikonische Bungalow seinen ästhetischen Charakter überwiegend bewahren und zusätzlich ein revitalisiertes äußeres Erscheinungsbild in Verbindung mit einer modernen Haustechnik erhalten.
Durch die rückwärtige Lage ist das Grundstück nicht direkt mit dem Auto anfahrbar, jedoch bietet der Melissenweg ausreichend Parkmöglichkeiten für Bewohner und Gäste.
Wir freuen uns darauf, Ihnen diese Immobilie näherzubringen. Gerne beraten wir Sie hierzu auch ausführlich.
GEBOTSVERFAHREN: Sasel - Erhaltenswerter Bungalow mit vielseitigen Erweiterungsoptionen
22395 Hamburg
Die vollständige Adresse der Immobilie erhalten Sie vom Anbieter.
Auf Karte anzeigen
Die vollständige Adresse der Immobilie erhalten Sie vom Anbieter.
Finanzierungszertifikat
In nur zwei Minuten zu Ihrem persönlichen Finanzierungszertifkat.
Infos
| Haustyp | Bungalow |
|---|---|
| Etagenzahl | 1 |
| Wohnfläche ca. | 110 m2 |
| Grundstücksfläche | 691 m2 |
| Bezugsfrei ab | Sofort |
| Zimmer | 4 |
| Schlafzimmer | 3 |
| Badezimmer | 1 |
Kosten
| Kaufpreis |
435.000 € |
|---|---|
| Provision |
3,5 % inkl. gesetzl. MwSt. vom erzielten Kaufpreis |
Finanzierungsrechner:
Kaufpreis:
600.000 €
Eigenkapital:
600.000 €
Monatliche Rate
0 €
Effektiver Jahreszins
0 %
Sollzinsbindung
10 Jahre
Bausubstanz & Energieausweis
| Baujahr | 1966 |
|---|---|
| Qualität der Austattung | Normal |
| Heizungsart | Zentralheizung |
| Wesentliche Energieträger | Öl |
| Energieausweis | liegt vor |
| Energieausweistyp | Bedarfsausweis |
| Energieverbrauchskennwert | 416,4 kWh/(m²*a) |
| Energieeffizienzklasse | H |
416,4
kWh/(m²*a)
Energieeffizienzklasse H
- A+
- A
- B
- C
- D
- E
- F
- G
- H
- 0
- 25
- 50
- 75
- 100
- 125
- 150
- 175
- 200
- 225
- >250
Beschreibung des Objekts
Lage
Der Stadtteil Sasel, im Nordosten des schönen Alstertals, bietet nicht zuletzt wegen der guten Infrastruktur eine angenehme Umgebung für Familien und Naturliebhaber. Er profitiert von dem Flüsschen und dem grünen Wanderweg mit dem alten Baumbestand an seinen Ufern.
Der Melissenweg selbst ist eine verkehrsberuhigte Wohnstraße mit Einfamilien- und Reihenhäusern, die von viel Grün umgeben ist. Das Alstertal und das Naturschutzgebiet Hainesch-Iland liegen direkt um die Ecke und verführen zum Joggen, Spazierengehen, Trimmen und zu weiteren Freizeitaktivitäten wie Kanufahren, Tennisspielen und Reiten. Ebenfalls im Naturschutzgebiet in unmittelbarer Nachbarschaft befinden sich, verwunschen gelegen, zwei bekannte Baudenkmäler- die älteste noch erhaltene Alsterschleuse, die Mellingburger Schleuse, derzeit ein Hotel & Restaurant und die Alte Mühle, ebenfalls ein überregional bekanntes Restaurant mit Terrasse direkt am Stausee.
Grundriss
Entwurfsplan Sanierung EG
>
>
Entwurfsplan Sanierung Staffel
>
>
Erdgeschoss-Sanierung Bungalow
>
>
Adresse
22395 Hamburg
Interessante Orte
Preis- und Lageinformationen
Preistrend für Bestandsimmobilien in Sasel