Die hier angebotene Immobilie befindet sich in der niedersächsischen Stadt Peine - eingebettet zwischen den wirtschaftsstarken Metropolregionen Hannover und Braunschweig. Dank dieser hervorragenden Lage erfreut sich Peine seit Jahren zunehmender Beliebtheit. Die Stadt bietet eine nahezu ideale Kombination aus urbaner Infrastruktur und hoher Lebensqualität im Grünen.
Peine verfügt über eine sehr gute Verkehrsanbindung: Die Autobahn A2 verbindet die Stadt auf kurzen Wegen mit Hannover und Braunschweig, während die Bundesstraßen B65 und B444 schnelle Verbindungen in das Umland ermöglichen. Der Bahnhof Peine ist in das regionale und überregionale Bahnnetz eingebunden und sichert bequeme Anbindungen in alle Richtungen. Auch der öffentliche Nahverkehr ist sehr gut ausgebaut und gewährleistet schnelle Mobilität innerhalb der Stadt und darüber hinaus. Zahlreiche Einkaufsmöglichkeiten, Schulen, Kindergärten, Ärzte, Freizeit- und Kultureinrichtungen sowie eine solide wirtschaftliche Infrastruktur tragen zur Attraktivität des Standorts bei und machen Peine zu einem gefragten Lebensmittelpunkt für Jung und Alt.
Das hier angebotene Ein.- bis Zweifamilienhaus befindet sich in einer der besten, begehrtesten und zentrumsnahen Wohngegenden im Herzen von Peine. Und zwar zwischen der Innenstadt und den Naherholungsgebieten -"Peiner Herzberg" - und "Barumer Moor". Die Umgebung zeichnet sich durch eine aufgelockerte Bebauung, viel Grün und ein angenehmes, ruhiges Wohnumfeld aus - ideal für Familien.
Trotz der ruhigen Lage sind die Innenstadt von Peine sowie sämtliche Einkaufs-, Bildungs- und Freizeiteinrichtungen bequem fußläufig erreichbar. Auch die Anbindungen an den Hauptbahnhof, die Autobahn A2 sowie die Bundesstraßen B65 und B444 sind in wenigen Fahrminuten gewährleistet. Hier verbindet sich urbanes Leben mit hoher Wohnqualität in direkter Stadtnähe - ein Standort, der gleichermaßen nachgefragt und wertstabil ist.
Dieses im Jahr ca. 1966 in massiver Bauweise errichtete Ein.-Zweifamilienhaus präsentiert sich auf einem weitläufigen Grundstück von etwa 740 m² und bietet mit rund 185 m² Wohnfläche, einem lichtdurchfluteten Wintergarten und zusätzlichen Nutzflächen im Vollkeller ein außergewöhnlich großzügiges Raumangebot.
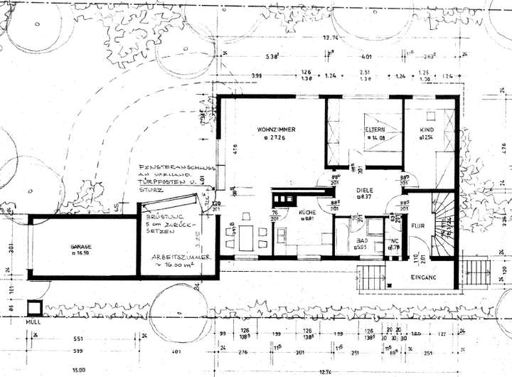
Bereits beim Betreten überzeugt der repräsentative Eingangsbereich mit einem einladenden und hochwertigen Ambiente. Das Erdgeschoss besticht durch ein großes, lichtdurchflutetes Wohnzimmer mit Essbereich, eine großzügige Küche, ein Eltern- sowie ein Kinderzimmer, ein Badezimmer, ein Gäste-WC und einem errichteten Anbau, der als zusätzliches Arbeitszimmer genutzt worden ist. Von hier aus gelangt man direkt zur Sonnenterrasse, in den liebevoll angelegten Garten und den Mitte der 1990er Jahre errichteten, verglasten Wintergarten.
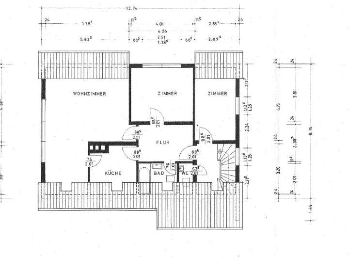
Über das Treppenhaus gelangt man in das Dachgeschoss. Hier erwartet Sie - bis auf den Anbau - ein nahezu identischer Grundriss. Somit lässt sich die Immobilie ideal als großzügiges Einfamilienhaus oder flexibel als Zwei-Parteien-Haus für ein Mehrgenerationenwohnen nutzen.
Die Eigentümer haben das Haus stets sehr gepflegt und in wesentlichen Bereichen modernisiert:
aufwändige Dacheindeckung inkl. Isolierung: erneuert 2014
Gaszentralheizung: Baujahr 2020
Wärmedämmverbundsystem: zur Steigerung der Energieeffizienz rund um das Gebäude angebracht
Das Innere der Immobilie befindet sich teilweise im ursprünglichen Zustand und bietet Ihnen daher die Möglichkeit, Ihre persönlichen Wohnideen zu verwirklichen. Die Elektrik und ein Teil der sanitären Ausstattungen entsprechen nicht mehr den heutigen Anforderungen.- ebenso stammen einige Fenster aus alter Zeit und es ist empfehlenswert, diese auszutauschen. Potentielle Erwerber werden jedoch ihre Freude an den hochwertigen Materialien haben, die damals verbaut worden sind. Hierzu gehören unter anderem das teils verlegte Echtholzparkett sowie Steinböden u...
Peine-Zentrum / Großes Ein.- bis Zweifamilienhaus in top Lage !
31224 Peine
Die vollständige Adresse der Immobilie erhalten Sie vom Anbieter.
Auf Karte anzeigen
Die vollständige Adresse der Immobilie erhalten Sie vom Anbieter.
Finanzierungszertifikat
In nur zwei Minuten zu Ihrem persönlichen Finanzierungszertifkat.
Infos
| Haustyp | Einfamilienhaus |
|---|---|
| Etagenzahl | 3 |
| Wohnfläche ca. | 185 m2 |
| Grundstücksfläche | 738 m2 |
| Bezugsfrei ab | nach Vereinbarung |
| Zimmer | 8 |
Kosten
| Kaufpreis |
339.000 € |
|---|---|
| Provision |
3,57 % inkl. MwSt |
Finanzierungsrechner:
Kaufpreis:
600.000 €
Eigenkapital:
600.000 €
Monatliche Rate
0 €
Effektiver Jahreszins
0 %
Sollzinsbindung
10 Jahre
Bausubstanz & Energieausweis
| Baujahr | 1966 |
|---|---|
| Wesentliche Energieträger | Gas |
| Energieausweis | liegt vor |
| Energieausweistyp | Bedarfsausweis |
| Energieverbrauchskennwert | 285,7 kWh/(m²*a) |
| Energieeffizienzklasse | H |
285,7
kWh/(m²*a)
Energieeffizienzklasse H
- A+
- A
- B
- C
- D
- E
- F
- G
- H
- 0
- 25
- 50
- 75
- 100
- 125
- 150
- 175
- 200
- 225
- >250
Beschreibung des Objekts
Adresse
31224 Peine
Interessante Orte
Preis- und Lageinformationen
Preistrend für Bestandsimmobilien in Peine