Diese tollen Doppelhaushälften entstehen in einer der begehrtesten Lagen von Zornheim. Das Haus liegt nur wenige Minuten vom Feldrand entfernt in toller Lage.
Provisionsfrei - noch eine von 4 Doppelhaushälften! Preis incl. Grundstück und Keller!
55270 Zornheim
Die vollständige Adresse der Immobilie erhalten Sie vom Anbieter.
Auf Karte anzeigen
Die vollständige Adresse der Immobilie erhalten Sie vom Anbieter.
Finanzierungszertifikat
In nur zwei Minuten zu Ihrem persönlichen Finanzierungszertifkat.
Infos
| Haustyp | Doppelhaushaelfte |
|---|---|
| Etagenzahl | 1 |
| Wohnfläche ca. | 120 m2 |
| Nutzfläche | 38 m2 |
| Grundstücksfläche | 183 m2 |
| Zimmer | 4 |
| Schlafzimmer | 3 |
| Badezimmer | 1 |
| Anzahl Garage/Stellplatz | 2 |
Kosten
| Kaufpreis |
495.900 € |
|---|---|
| Provision | Nein |
Finanzierungsrechner:
Kaufpreis:
600.000 €
Eigenkapital:
600.000 €
Monatliche Rate
0 €
Effektiver Jahreszins
0 %
Sollzinsbindung
10 Jahre
Bausubstanz & Energieausweis
| Bauphase | Haus in Planung (projektiert) |
|---|---|
| Objektzustand | Erstbezug |
| Qualität der Austattung | Gehoben |
| Heizungsart | Wärmepumpe |
| Wesentliche Energieträger | KWK erneuerbar |
Beschreibung des Objekts
Ausstattung
Das Haus erfüllt die neuesten Ansprüche an Dämmung und Energieeffizienz.
Der Kellerraum kann Wohnraummäßig ausgebaut werden.
IM PREIS ENTHALTEN:
- Wärmepumpe
- 3-fach Verglasung
- Fußbodenheizung
- Hochwertige Fliesen im Sanitärbereich
- 36,5 Mauerwerk
- 2 Bäder
- Keller
- Fenster und Haustür außen anthrazit
- Fußbodenheizung
- Rohbau- und Endabnahme mit unabhängigen bei Gericht zugelassenem Gutachter
Lage
Die Weinbaugemeinde Zornheim liegt im Landkreis Mainz-Bingen südwestlich angrenzend an den Stadtteil Ebersheim der rheinland-pfälzischen Landeshauptstadt Mainz am Rande des Rhein-Main-Gebiets und ist wegen Lage und Anbindung als Wohnort äußerst begehrt.
Das Haus ist von der Ortsmitte nur ca. 500 Meter entfernt.
2 Bushaltestellen ( Stadtbus Mainz - Wiesbaden) ca. 200 Meter. Autobahnanschluß Niederolm ca 3 km ( BAB 63). Mainz 14 km; Flughafen Frankfurt ca 45 km. Alle Einkaufsmöglichkeiten, Bank SB Stelle, Post und Einkaufsmarkt am Ort
(zu Fuß erreichbar). Kindergarten und Grundschule in direkter Nähe.
In unmittelbarer Umgebung sind Weinberge und Obstanlagen, die zu Wandern und Radfahren einladen.
Hoher Freizeitwert.
Sonstige Angaben
Haus incl. Grundstück und Keller.
WOHNFLÄCHENANGABE INCL. ausgebautem Kellergeschoss.
(gegen Aufpreis)
NUR NOCH 1 HÄLFTE VERFÜGBAR!
Anfragen bitte schriftlich! Vielen Dank.
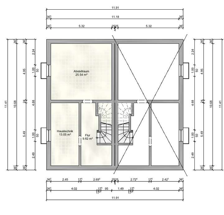
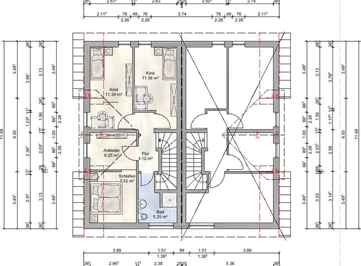
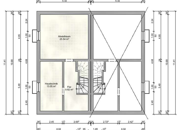
Grundriss
Kellergeschoss
>
>
Erdgeschoss
>
>
Obergeschoss
>
>
Adresse
55270 Zornheim
Interessante Orte
Preis- und Lageinformationen
Preistrend für Bestandsimmobilien in Zornheim