Objektbeschreibung
Der freistehende Bungalow bietet Wohnen auf einer Ebene und wartet mit einigen Besonderheiten auf:
– durchdachtes Wohnraumkonzept mit vielen Einbauschränken
– Kaminofen
– Sauna
– große Terrasse mit sensationellem Fernblick
– eingewachsener Garten
– großes Gartenhaus aus Holz
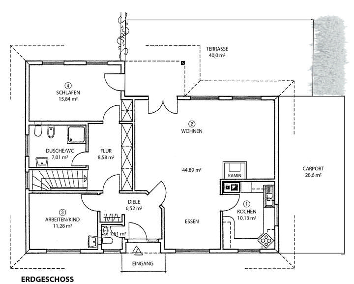
ERDGESCHOSS: Von der Diele geht es in das großzügige Wohn-Ess-Zimmer. Die ausgestattete Küche befindet sich gleich neben dem Essbereich – ein kurzer Weg vom Herd zum Tisch.
Ein Kaminofen sorgt im Wohnbereich für eine angenehme Atmosphäre an kälteren Tagen.
Vom Wohnzimmer führt eine doppelflügelige Terrassentür hinaus auf eine großzügige Terrasse mit stimmungsvoller Beleuchtung von 40 qm, die teilüberdacht ist. Heizstrahler können hier für wohligen Komfort sorgen.
Von dieser Terrasse genießt man einen grandiosen Fernblick, der bei klarem Wetter bis zum Hoherodskopf reicht!
Links von der Diele befindet sich das vor zwei Jahren neu ausgestattete, moderne Gäste-WC. Eine weitere Tür führt in ein Arbeitszimmer.
Von der Diele gelangt man in einen Flur zum Schlaf-/Badbereich. Im Flur befinden sich deckenhohe Einbauschränke.
Das elegante Tageslicht-Bad ist ausgestattet mit einem großzügigen Waschtisch und Spiegelschrank, WC, Bidet und Dusche.
Im Schlafzimmer befindet sich ebenfalls ein zweitüriger Einbauschrank. Eine Tür führt hinaus zur Terrasse.
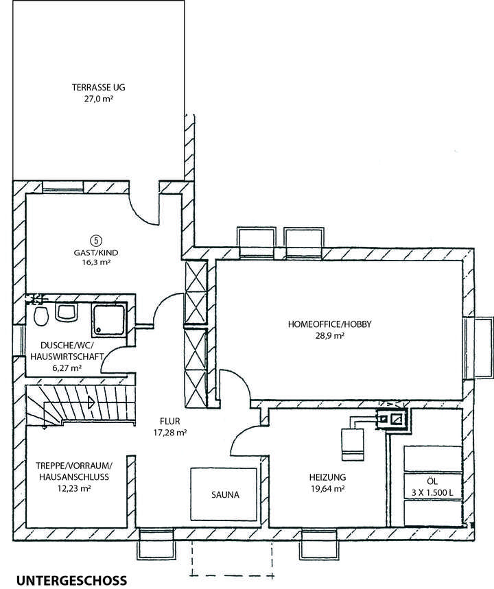
UNTERGESCHOSS: Eine Treppe führt vom Flur ins UG. Hier befindet sich zunächst ein Vorraum mit den Hausanschlüssen. Der Durchgang führt in den Flur des UGs. Von hier gelangt man in den Heizungskeller, den großen Raum (mit LAN ausgestattet für Homeoffice/Hobby), den Hauswirtschaftsraum/Gästebad mit WC, Waschbecken und Dusche und in das Gästezimmer. Von diesem gelangt man auf die zweite Terrasse und in den Garten. Im Flur und Gästezimmer befinden sich deckenhohe Wandschränke.
Ein besonderes Schmankerl für Wellnessfans ist die im Flur befindliche Sauna für bis zu 3 Personen.
Im Garten steht ein großes Holz-Gartenhaus mit 13 qm Innenfläche.
Freistehender Bungalow mit geh. Innenausstattung von Privat
61267 Neu-Anspach
Die vollständige Adresse der Immobilie erhalten Sie vom Anbieter.
Auf Karte anzeigen
Die vollständige Adresse der Immobilie erhalten Sie vom Anbieter.
Finanzierungszertifikat
In nur zwei Minuten zu Ihrem persönlichen Finanzierungszertifkat.
Infos
| Haustyp | Einfamilienhaus |
|---|---|
| Etagenzahl | 1 |
| Wohnfläche ca. | 160 m2 |
| Nutzfläche | 84 m2 |
| Grundstücksfläche | 740 m2 |
| Bezugsfrei ab | 1.1.2026 |
| Zimmer | 5 |
| Schlafzimmer | 3 |
| Badezimmer | 2 |
| Garage/Stellplatz | Carport |
| Anzahl Garage/Stellplatz | 1 |
Kosten
| Kaufpreis |
557.000 € |
|---|---|
| Provision | Nein |
Finanzierungsrechner:
Kaufpreis:
600.000 €
Eigenkapital:
600.000 €
Monatliche Rate
0 €
Effektiver Jahreszins
0 %
Sollzinsbindung
10 Jahre
Bausubstanz & Energieausweis
| Baujahr | 1990 |
|---|---|
| Letzte Sanierung | 2019 |
| Bauphase | Haus fertig gestellt |
| Objektzustand | Gepflegt |
| Qualität der Austattung | Gehoben |
| Heizungsart | Öl-Heizung |
| Wesentliche Energieträger | Öl |
| Energieausweis | liegt vor |
Beschreibung des Objekts
Ausstattung
Ausstattung
– Die Fußböden in Wohn-/Esszimmer, Arbeitszimmer und Schlafzimmer sind aus Echtholzparkett
– Diele, WC, Flur und Bad sind weiß gefliest
– In der Küche befindet sich ein unempfindlicher Vinylboden
– Die Terrasse ist mit hellen Betonsteinfliesen der Firma Rinn ausgelegt
– Innentüren aus mattiertem Glas und Holz
– Eingangstür mit Automatikverriegelung und Dreifachverglasung 2022 erneuert
– modernes Gäste-WC 2022 neu ausgestattet
– Das UG ist mit braun-roten Fliesen ausgestattet
– Das Gästezimmer ist weiß-grau gefliest
– Homeoffice/Hobbyraum ist mit einem LAN-Netzwerk ausgestattet und kann als Büro genutzt werden
– Der Garten ist ringsum eingewachsen
– Großes Gartenhaus aus Holz 5 x 3 m
– An der Terrasse ist ein Brunnensprudelstein installiert, der den Vögeln als Bad und Tränke dient
– Zwei Regenwasserspeicher haben je 550 l
– Die Öl-Brennwertheizung wurde 2019 installiert
– 3 x 1.500 l Öltanks
– Auf dem Dach der Vorderseite Solaranlage zur Gewinnung Heißwassers
– Carport
Lage
Der freistehende Bungalow befindet sich im Hochtaunuskreis in Neu-Anspach im höher gelegenem Ortsteil Rod am Berg – (dem „Kronberg von Neu-Anspach“ wie Einheimische sagen) – in einem ruhigen, bevorzugtem Wohngebiet, umgeben von Gärten. Von hier schaut man auf Wiesen und Felder und Naturliebhaber erreichen in 5 Fuß-Minuten Wälder und Wanderwege für jeden Anspruch.
Neu-Anspach selbst bietet alle Einkaufsmöglichkeiten: Supermärkte, Discounter, Drogeriemärkte, Bäcker, Metzger usw, mit dem Auto in ein paar Minuten zu erreichen. Restaurants und Imbisse verschiedener Nationalitäten laden ein.
Die nächstgrößeren Städte sind Bad Homburg und Oberursel, 15 bzw. 20 Autominuten entfernt, nach Frankfurt über die A 661 eine gute halbe Stunde.
Für Pendler fährt die Taunusbahn bis Frankfurt. Eine Buslinie verbindet mit dem Ortskern.
Ausflugsziele Römerkastell Saalburg und das Freilichtmuseum Hessenpark liegen sozusagen „um die Ecke“.
Eine gute medizinische Versorgung mit Ärzten und Apotheken und den Hochtaunuskliniken in Usingen und Bad Homburg.
Weitere Dokumente
EnergieausweisGrundriss
Erdgeschoss
>
>
Untergeschoss
>
>
Adresse
61267 Neu-Anspach
Interessante Orte
Preis- und Lageinformationen
Preistrend für Bestandsimmobilien in Neu-Anspach