Dieses ursprünglich 1938 massiv erbaute und sehr gepflegte freistehende Einfamilienhaus wurde mit viel Liebe zum Detail in den vergangenen Jahren auf den aktuellen Stand des heutigen Wohncomfort gebracht. Hier kann man so einziehen und sich wohlfühlen.
Die Lage bietet eine gute Infrastruktur, kurze Wege zu Einkaufsmöglichkeiten, Schulen und öffentlichen Verkehrsmitteln sowie eine entspannte Atmosphäre zum Wohlfühlen.
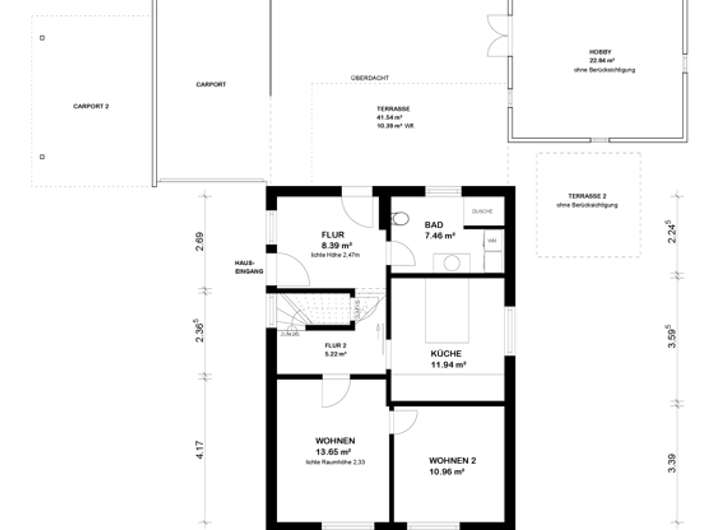
Das Raumangebot erstreckt sich über ca. 104 Quadratmeter Wohnfläche, verteilt auf zwei Ebenen. Es bietet ein komfortables Zuhause in einer harmonischen Umgebung.
Zusammenfassung der Immobilie:
* Einbauküche aus dem Jahr 2022
* Küche mit Fußbodenheizung
* Badsanierung erfolgte 2013
* Austausch der Fenster im Jahr 2005
* Austausch der Haustür im Jahr 2005
* elektronische Außenrollläden inkl. integrierter Insektenschutzgitter
* Neueindeckung des Dach im Jahr 2005
* Einbringung einer Einblasdämmung im Jahr 2015
* Austausch der Gastherme im Jahr 2014
* Neugestaltung des Außenbereich mit Terrassenüberdachung im Jahr 2021
* Erneuerung des Zaum im Vorgartenbereich im Jahr 2022
* Pool inklusive Pooldeck
* Zwei Terrassen eine davon überdacht
Neues Jahr - neues Haus Einfamilienhaus mit allen Annehmlichkeiten die das Leben zu bieten hat
28779 Bremen
Die vollständige Adresse der Immobilie erhalten Sie vom Anbieter.
Auf Karte anzeigen
Die vollständige Adresse der Immobilie erhalten Sie vom Anbieter.
Finanzierungszertifikat
In nur zwei Minuten zu Ihrem persönlichen Finanzierungszertifkat.
Infos
| Haustyp | Einfamilienhaus |
|---|---|
| Wohnfläche ca. | 104 m2 |
| Nutzfläche | 7 m2 |
| Grundstücksfläche | 880 m2 |
| Zimmer | 5 |
| Schlafzimmer | 4 |
| Badezimmer | 1 |
| Garage/Stellplatz | Carport |
| Anzahl Garage/Stellplatz | 2 |
Kosten
| Kaufpreis |
299.900 € |
|---|---|
| Provision |
3,57 inkl. MwSt |
Finanzierungsrechner:
Kaufpreis:
600.000 €
Eigenkapital:
600.000 €
Monatliche Rate
0 €
Effektiver Jahreszins
0 %
Sollzinsbindung
10 Jahre
Bausubstanz & Energieausweis
| Baujahr | 1938 |
|---|---|
| Objektzustand | Gepflegt |
| Heizungsart | Zentralheizung |
| Wesentliche Energieträger | Erdgas leicht |
| Energieausweis | liegt vor |
| Energieausweistyp | Bedarfsausweis |
| Energieverbrauchskennwert | 190,2 kWh/(m²*a) |
| Energieeffizienzklasse | F |
190,2
kWh/(m²*a)
Energieeffizienzklasse F
- A+
- A
- B
- C
- D
- E
- F
- G
- H
- 0
- 25
- 50
- 75
- 100
- 125
- 150
- 175
- 200
- 225
- >250
Beschreibung des Objekts
Ausstattung
Wenn die Aufteilung zusagt heißt es hier einziehen und sofort wohlfühlen und das Leben mit den Annehmlichkeiten dieses Hauses genießen.
Über den hellen Eingangsbereich gelangen Sie in den diesen Wohntraum.
Im Erdgeschoss befindet sich ein großzügiger Garderobenbereich von hier aus gelangen Sie in die einzelnen Räumlichkeiten des Erdgeschoss und auch der Zugang zum Garten wird hier ermöglicht.
Der Wohnbereich der zum erholen einlädt bietet Ihnen einen Raum zum Erholen und Entspannen. Vom Wohnbereich aus hat man den Zugang zum Schlafzimmer, welches gute Stellmöglichkeiten für ein großes Bett sowie einen geräumigen Kleiderschrank bietet.
Die Küche verfügt über eine neuwertige Einbauküche nebst elektronischer Geräte sowie einer gemütlichen Sitzmöglichkeit.
Das Duschbad verfügt über eine bodentiefe Dusche, die Anschlüsse für Waschmaschine und Trockner sowie ein Fenster, so das hier Tageslicht und Frischluft an der Tagesordnung sind.
Im Obergeschoss befinden sich drei weitere Zimmer die trotz ihrer Lage unter dem Dach sehr gute Gestaltungsmöglichkeiten bieten. Eines der Zimmer ist über ein Durchgangszimmer zu erreichen.
Der Garten bietet eine Oase der Erholung. Vom Haus aus gelangt man zu der überdachten Terrasse unter der man auch an nicht allzu warmen Tagen oder gut vor der Sonne Schutz suchen kann. Von dieser Terrasse aus gelangt man in das "Gartenhaus", welches schon fast einem kleinen Einraumapartment gerecht werden könnte.
Die zweite Terrasse ist nicht überdacht und bietet in den späten Nachmittags- und Abendstunden ein sonniges Plätzchen zum verweilen.
Der Garten ist pflegeleicht angelegt. An warmen Tagen genießen Sie Ihre Freizeit auf dem Pooldeck und ein Sprung ins erfrischende Nass wird hier ebenfalls ermöglicht.
Abgerundet wird der Wohncomfort durch einen Carport sowie einen Garagenstellplatz mit elektronischem Rolltor.
Für Gartengeräte steht ein separater Raum im Außenbereich bereit.
Lage
Bockhorn ist ein Ortsteil im Norden Bremens, der sich durch ruhiges, ländliches Wohnen, grüne Umgebung und eine gute Anbindung in die Innenstadt auszeichnet.
Die Umgebung ist geprägt von Wohngebieten, vereinzelt kleineren Gewerbebetrieben sowie landwirtschaftlich geprägten Flächen.
Die Gegend bietet viele Grünflächen, Radwege und kurze Wege zu Feldern und Wiesen. Typisch für die Region sind ruhige Straßen, weniger Durchgangsverkehr und Familienfreundlichkeit. Nahegelegene Wasserläufe, Wälder und Parks laden zu Spaziergängen und Outdoor-Aktivitäten ein. Der Golfplatz Bremer Schweiz sowie das Freibad Blumenthal sind von hier in nur wenigen Minuten erreichbar.
Einkaufsmöglichkeiten sowie Ärzte und Apotheke befinden sich in der Umgebung. Die Anbindung an die Bremer Innenstadt erfolgt meist über Buslinien oder die Zuganbindung der Nordwestbahn. Schulen, Kitas und weitere Bildungseinrichtungen befinden sich ebenfalls in der Nähe und sind mit dem Rad und auch zu Fuß sehr gut erreichbar.
Hier leben Sie ruhig, familienorientiert und naturnah, ohne sich zu abgelegen zu fühlen.
Sonstige Angaben
Art: Bedarfsausweis
Gültig bis: 21.08.2025
Endenergieverbrauch: 190,16 kWh/(m²*a)
Baujahr lt. Energieausweis: 1938
Baujahr Heizung: 2013
Energieträger: Gas
Für eine detaillierte Auskunft fordern Sie bitte unser ausführliches Exposé an.
Adresse
28779 Bremen
Interessante Orte
Preis- und Lageinformationen
Preistrend für Bestandsimmobilien in Lüssum-Bockhorn