Willkommen in Ihrem neuen Zuhause!
In begehrter Wohnlage von Friedrichsdorf-Köppern präsentiert sich dieses gepflegte Fertighaus aus dem Jahr 1972 auf einem ca. 480 m² großen Grundstück.
Die Immobilie wurde über viele Jahre hinweg zuverlässig vermietet und bietet neuen Eigentümern nun die Möglichkeit, ein Stück Wohnraum in bester Lage zu erwerben und nach eigenen Vorstellungen zu modernisieren oder vermietet zu lassen.
Ideal für Kapitalanleger – laufende Mieteinnahmen von 1.700 € pro Monat sichern eine stabile Einnahmequelle.“
Charmant ausgebautes Dachgeschoss – mit viel Gemütlichkeit und Wohlfühlatmosphäre.
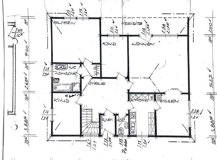
Wohnkonzept
Das Haus verfügt über ca. 116 m² Wohnfläche, die sich funktional und hell aufteilen:
Großzügiger Wohn- und Essbereich mit Zugang zur Terrasse und in den Garten
Separate Küche
Drei gut geschnittene Schlafzimmer
Tageslichtbad sowie Gäste-WC
Ein besonderes Highlight ist der wohnraumähnlich ausgebaute Keller, der zusätzliche Fläche für Hobby, Arbeiten oder Gäste bietet.
Außerdem ist das Dachgeschoss vollständig ausgebaut und überzeugt mit einem eigenen Badezimmer inklusive Dusche sowie einer Küche. Damit eignet es sich ideal als Homeoffice-Bereich, Gästezimmer oder auch als separate Wohneinheit für Kinder oder Familienangehörige.
Grundstück & Außenbereich
Das rund 480 m² große Grundstück ist pflegeleicht angelegt und überzeugt mit einem schönen Garten, einer sonnigen Terrasse und einem gemütlichen Außenkamin – perfekt für gesellige Abende im Freien. Eine Garage rundet das Angebot ab.
Bauweise & Potenzial
Fertighaus aus dem Baujahr 1972
Über viele Jahre vermietet, daher in einem altersgerechten, gepflegten Zustand
Individuelle Modernisierungen bieten neuen Eigentümern die Chance, den Charme dieses Hauses in die heutige Zeit zu überführen.
Alternativ bietet das Grundstück großes Potenzial sich neu zu verwirklichen!
Solide Basis und gute Raumaufteilung für vielfältige Wohnkonzepte
Charmantes Fertighaus mit schönem Grundstück in bester Lage von Köppern! Auch für Kapitalanleger!
61381 Friedrichsdorf
Die vollständige Adresse der Immobilie erhalten Sie vom Anbieter.
Auf Karte anzeigen
Die vollständige Adresse der Immobilie erhalten Sie vom Anbieter.
Finanzierungszertifikat
In nur zwei Minuten zu Ihrem persönlichen Finanzierungszertifkat.
Infos
| Haustyp | Einfamilienhaus |
|---|---|
| Etagenzahl | 1 |
| Wohnfläche ca. | 116 m2 |
| Nutzfläche | 104,38 m2 |
| Grundstücksfläche | 480 m2 |
| Bezugsfrei ab | 01.10.2025 |
| Zimmer | 6 |
| Schlafzimmer | 3 |
| Badezimmer | 2 |
| Garage/Stellplatz | Garage |
| Anzahl Garage/Stellplatz | 1 |
Kosten
| Kaufpreis |
439.000 € |
|---|---|
| Provision |
3,57% |
Finanzierungsrechner:
Kaufpreis:
600.000 €
Eigenkapital:
600.000 €
Monatliche Rate
0 €
Effektiver Jahreszins
0 %
Sollzinsbindung
10 Jahre
Bausubstanz & Energieausweis
| Baujahr | 1972 |
|---|---|
| Objektzustand | Gepflegt |
| Heizungsart | Zentralheizung |
| Wesentliche Energieträger | Gas |
| Energieausweis | liegt vor |
| Energieausweistyp | Bedarfsausweis |
| Energieverbrauchskennwert | 342,0 kWh/(m²*a) |
| Energieeffizienzklasse | H |
342,0
kWh/(m²*a)
Energieeffizienzklasse H
- A+
- A
- B
- C
- D
- E
- F
- G
- H
- 0
- 25
- 50
- 75
- 100
- 125
- 150
- 175
- 200
- 225
- >250
Beschreibung des Objekts
Ausstattung
-Fertighaus, Baujahr 1972
-Grundstück ca. 480 m² in ruhiger und begehrter Lage von Köppern mit Potenzial sich neu zu verwirklichen!
-Wohnfläche ca. 116 m²
-charmant ausgebautes Dachgeschoss als weitere wohnraumähnliche Nutzfläche mit separater Dusche und Küche!
-Zusätzlich wohnraumähnliche Nutzfläche im Keller
-Großzügiger Wohn- und Essbereich mit Zugang zur Terrasse
-3 Schlafzimmer
-Tageslichtbad + Gäste-WC
-Pflegeleichter Garten mit Außenkamin
-Sonnige Terrasse
-Garage vorhanden
-Über viele Jahre zuverlässig vermietet – gepflegter, altersgerechter Zustand
- Attraktiv für Kapitalanleger: Mit derzeitigen Mieteinnahmen von ca. 1.700 € monatlich bietet die Immobilie eine solide Rendite und eine sichere Basis für Ihre Investition.
-Gute Basis für Modernisierungen nach eigenen Vorstellungen
Lage
Lage – Köppern
Das Haus befindet sich in einer der gefragtesten Wohnlagen von Friedrichsdorf-Köppern. Die Umgebung zeichnet sich durch ihre ruhige, familienfreundliche Atmosphäre aus, kombiniert mit einer sehr guten Infrastruktur: Einkaufsmöglichkeiten, Schulen, Kitas und Ärzte befinden sich in unmittelbarer Nähe. Die Nähe zum Taunus lädt zu vielfältigen Freizeitaktivitäten ein, während die Anbindung nach Frankfurt und in das gesamte Rhein-Main-Gebiet hervorragend ist (S-Bahn-Anschluss fußläufig erreichbar).
Adresse
61381 Friedrichsdorf
Interessante Orte
Preis- und Lageinformationen
Preistrend für Bestandsimmobilien in Friedrichsdorf