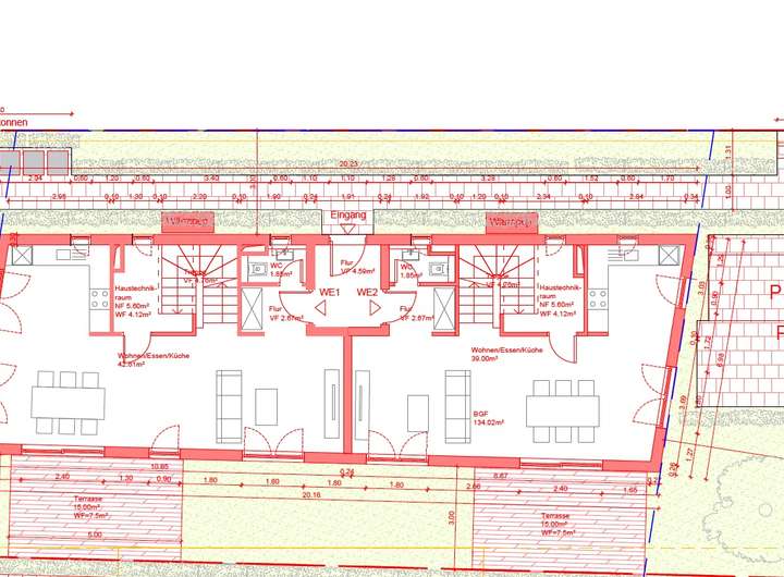
In einem der begehrtesten Neubaugebiete von Langen entsteht ein modernes Doppelhaus in ruhiger, familienfreundlicher Umgebung. Die hier angebotene Doppelhaushälfte, nach WEG geteilt, überzeugt durch eine durchdachte Raumaufteilung, eine südliche Ausrichtung und eine hochwertige Bauweise. Mit einer Wohnfläche von ca. 150 m², verteilt auf drei Etagen, bietet das Haus (WHG 1) ein komfortables und zukunftsorientiertes Zuhause für Familien, Paare oder anspruchsvolle Eigennutzer.
Das Erdgeschoss bildet das Herzstück des Hauses: Ein großzügiger, lichtdurchfluteter Wohn- und Essbereich mit direktem Zugang zur sonnigen Terrasse und dem ca. 80 m² großen Garten lädt zum Verweilen ein. Ein Hauswirtschaftsraum sowie ein Gäste-WC ergänzen das Angebot auf dieser Etage und sorgen für zusätzlichen Komfort im Alltag.
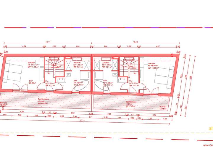
Im ersten Obergeschoss befinden sich zwei gut geschnittene Schlafzimmer, ein geräumiges Badezimmer sowie eine praktische Abstellkammer. Das Staffelgeschoss bietet ein weiteres Highlight: ein großzügiges Schlafzimmer mit Zugang zur herrlichen Süd-Dachterrasse, ein modernes Masterbad sowie eine separate Ankleide schaffen eine private Rückzugsoase mit besonderem Flair.
Zusätzlich besteht die Möglichkeit, das Haus halb unterkellern zu lassen. Gegen einen Aufpreis von EUR 35.000 entsteht hier wertvolle zusätzliche Abstellfläche, die den Wohnkomfort weiter erhöht und flexible Nutzungsmöglichkeiten bietet.
Zur Doppelhaushälfte gehören außerdem zwei Außenstellplätze – so sind Sie stets bequem mobil. Die moderne, energieeffiziente Bauweise, die ruhige Lage sowie die durchgängige Süd-Ausrichtung machen diese Immobilie zu einem idealen Zuhause für alle, die urbanes Wohnen mit hoher Lebensqualität verbinden möchten.
Elegante Doppelhaushälfte im Palais Charlottenhof
63225 Langen (Hessen)
Die vollständige Adresse der Immobilie erhalten Sie vom Anbieter.
Auf Karte anzeigen
Die vollständige Adresse der Immobilie erhalten Sie vom Anbieter.
Finanzierungszertifikat
In nur zwei Minuten zu Ihrem persönlichen Finanzierungszertifkat.
Infos
| Haustyp | Doppelhaushaelfte |
|---|---|
| Etagenzahl | 3 |
| Wohnfläche ca. | 150 m2 |
| Grundstücksfläche | 210 m2 |
| Bezugsfrei ab | Fertigstellung 4. Quartal 2026 |
| Zimmer | 4 |
| Schlafzimmer | 3 |
| Badezimmer | 2 |
| Garage/Stellplatz | Außenstellplatz |
| Anzahl Garage/Stellplatz | 2 |
Kosten
| Kaufpreis |
749.000 € |
|---|---|
| Provision | Nein |
Finanzierungsrechner:
Kaufpreis:
600.000 €
Eigenkapital:
600.000 €
Monatliche Rate
0 €
Effektiver Jahreszins
0 %
Sollzinsbindung
10 Jahre
Bausubstanz & Energieausweis
| Baujahr | 2025 |
|---|---|
| Objektzustand | Erstbezug |
| Qualität der Austattung | Gehoben |
| Heizungsart | Wärmepumpe |
| Energieausweis | liegt vor |
| Energieausweistyp | Bedarfsausweis |
| Energieverbrauchskennwert | 17,0 kWh/(m²*a) |
| Energieeffizienzklasse | A+ |
17,0
kWh/(m²*a)
Energieeffizienzklasse A+
- A+
- A
- B
- C
- D
- E
- F
- G
- H
- 0
- 25
- 50
- 75
- 100
- 125
- 150
- 175
- 200
- 225
- >250
Beschreibung des Objekts
Ausstattung
- Halbe Unterkellerung zzgl. EUR 35.000
- Moderne Ausstattung mit hochwertigen Materialien
- Hochwertige Bodenbeläge (Extra: flexible Bodenauswahl nach Kundenwunsch)
- Hochmoderne Badezimmerausstattung
- Geräumige Abstellräume für zusätzlichen Stauraum
- Großzügige Terrasse im Erdgeschoss und Staffelgeschoss
- 2x Außenstellplatz (direkt am Haus) jeweils zzgl. EUR 15.000
- Begrüntes Dach für ökologisches Wohnen und angenehmes Raumklima
Genießen Sie eine maßgeschneiderte Beratung und persönliche Betreuung durch den Bauträger – Ihre Zufriedenheit ist unser oberstes Ziel!
Lage
Das Neubauobjekt befindet sich in einer der begehrtesten Wohngegenden von Langen, einer charmanten Stadt in der Nähe von Frankfurt am Main. Langen zeichnet sich durch seine idyllische Lage im Grünen und seine gleichzeitig hervorragende Anbindung an die Metropolregion aus.
Das Neubaugebiet, in dem sich die Doppelhaushälfte befindet, ist geprägt von einer modernen und familienfreundlichen Atmosphäre. Hier erwarten Sie ruhige Wohnstraßen und eine angenehme Nachbarschaft, die zum Wohlfühlen einladen.
Die Stadt Langen selbst bietet eine ausgezeichnete Infrastruktur mit zahlreichen Einkaufsmöglichkeiten, Restaurants, Cafés und Freizeiteinrichtungen. Von Supermärkten bis hin zu kleinen Boutiquen ist hier alles vorhanden, was das Herz begehrt.
Für Familien mit Kindern sind die örtlichen Schulen und Kindergärten von großer Bedeutung. Langen verfügt über mehrere Kindergärten, Grundschulen und weiterführende Schulen, die eine qualitativ hochwertige Bildung gewährleisten.
Die Lage des Neubauobjekts bietet auch eine ausgezeichnete Anbindung an den öffentlichen Nahverkehr. Die nächste Bushaltestelle ist nur wenige Gehminuten entfernt und bietet eine direkte Verbindung zum Bahnhof, von dem aus Sie bequem die umliegenden Städte und die Frankfurter Innenstadt erreichen können.
Für Pendler bietet die Nähe zur Autobahn A661 eine schnelle Anbindung an das regionale und überregionale Straßennetz. Die A661 verbindet Langen mit Frankfurt am Main und anderen wichtigen Städten in der Region. Darüber hinaus ist die Autobahn A5 in nur wenigen Fahrminuten erreichbar, die eine schnelle Verbindung in Richtung Darmstadt und Karlsruhe bietet.
Adresse
63225 Langen (Hessen)
Interessante Orte
Preis- und Lageinformationen
Preistrend für Bestandsimmobilien in Langen (Hessen)