#provisionsfrei
Haus statt Wohnung: Fast wie Neubau und in zentraler Lage in Frankfurt-Schwanheim und dennoch sehr ruhig gelegen! Als Eigennutzung oder Investition( perfekt für AIRBNB durch Nähe zum Flughafen).
Dieses massiv ausgebaute kleines Stadthäuschen mit einer Wohnfläche von 90 qm eignet sich ideal für Alleinstehende , Paare oder maximal für Familie mit Kleinkind. Es verfügt über einen ausgewiesenen Parkplatz und ein kleines Grundstück im Eigentum (kein Erbpacht).
Es besteht die Möglichkeit das Haus weiter auszubauen und damit zu vergrößern.
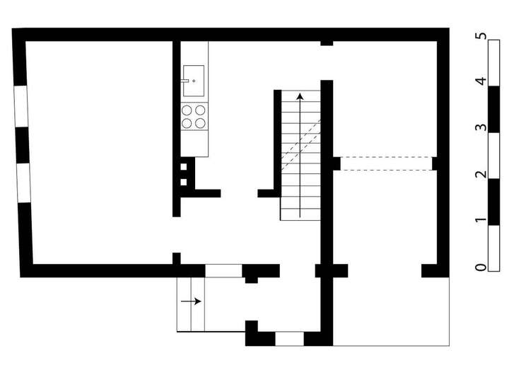
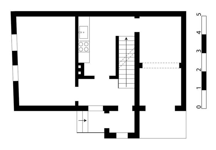
Im Erdgeschoss gibt es eine offene Küche, die sowohl zum hellen Wohnzimmer als auch zu einem weiteren Zimmer führt, das Zugang zur Terrasse hat. Dieses Zimmer eignet sich ideal als Arbeits- oder Esszimmer.
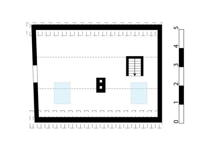
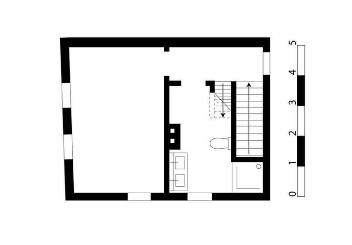
Das Schlafzimmer und ein großzügiges Bad befinden sich im Obergeschoss. Der offene Dachboden bietet zusätzlichen Raum für ein Arbeits-, Hobbyzimmer oder Kinderzimmer.
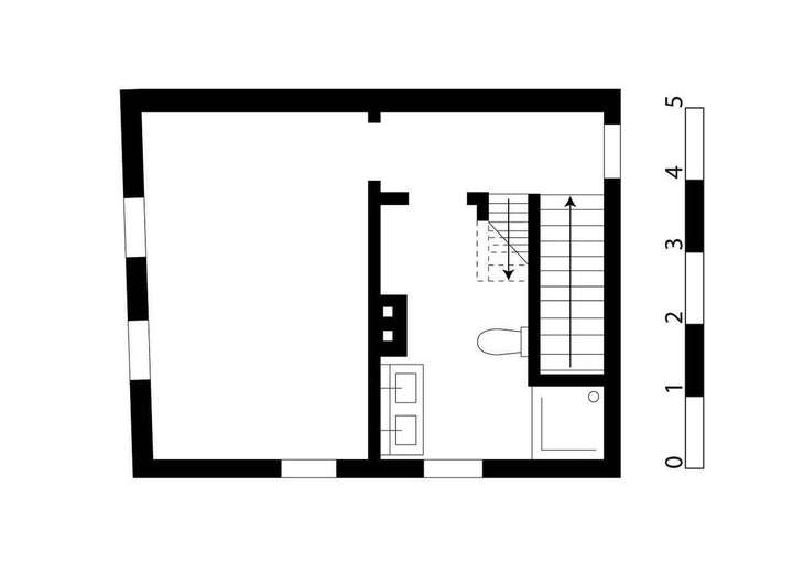
Im Untergeschoss finden sich ein Abstellraum, der Hauswirtschaftsraum und ein weiteres Bad.
Zwischen 2020 und 2021 wurden umfangreiche Ausbau-, Sanierungs- und Modernisierungsmaßnahmen durchgeführt, unter anderem:
•Erneuerung der Dachkonstruktion,
•Neuinstallation der Heizungsanlage (inklusive Heizkörper) und der Wasserleitungen,
•Neuinstallation der elektrischen Leitungen, inklusive Vorbereitung einer E-Ladestation,
•Dämmung von Decken, Wänden und Dachgeschoss,
•Sanierung und Dämmung der Fassade sowie neuer Anstrich,
•Sanierung des Badezimmers,
•Anlegen einer Echtholz-Terrasse aus sibirischer Lärche,
•Einbau einer Echtholztreppe aus Akazienholz,
•Verlegung neuer Bodenbeläge (Fliesen, Parkett, Vinyl und Laminat),
•Verputzen und Streichen der Innenwände.
Das Haus wurde nach strengen Baugenehmigungen der Stadt Frankfurt umgebaut, einschließlich neuer Decken, einer neuen Giebelwand, eines neuen Anbaus und eines Windfangs.
Man könnte noch das Haus noch weiter ausbauen.
Bitte beachten Sie, daß dieses Häuschen klein und überschaubar ist und als super alternative zur einer Wohnung in Frankfurt ist aber nicht für Großfamilien geeignet ist !
Neu ausgebautes Stadthäuschen in Frankfurt/Schwanheim-kein Erbpacht
60529 Frankfurt am Main
Die vollständige Adresse der Immobilie erhalten Sie vom Anbieter.
Auf Karte anzeigen
Die vollständige Adresse der Immobilie erhalten Sie vom Anbieter.
Finanzierungszertifikat
In nur zwei Minuten zu Ihrem persönlichen Finanzierungszertifkat.
Infos
| Haustyp | Einfamilienhaus |
|---|---|
| Etagenzahl | 3 |
| Wohnfläche ca. | 90 m2 |
| Nutzfläche | 27 m2 |
| Grundstücksfläche | 102 m2 |
| Bezugsfrei ab | nach Absprache |
| Zimmer | 4 |
| Schlafzimmer | 2 |
| Badezimmer | 2 |
| Garage/Stellplatz | Außenstellplatz |
| Anzahl Garage/Stellplatz | 1 |
Kosten
| Kaufpreis |
480.000 € |
|---|---|
| Provision | Nein |
Finanzierungsrechner:
Kaufpreis:
600.000 €
Eigenkapital:
600.000 €
Monatliche Rate
0 €
Effektiver Jahreszins
0 %
Sollzinsbindung
10 Jahre
Bausubstanz & Energieausweis
| Baujahr | 2021 |
|---|---|
| Bauphase | Haus fertig gestellt |
| Objektzustand | Erstbezug nach Sanierung |
| Heizungsart | Etagenheizung |
| Wesentliche Energieträger | Gas |
| Energieausweis | liegt vor |
| Energieausweistyp | Bedarfsausweis |
| Energieverbrauchskennwert | 107,4 kWh/(m²*a) |
| Energieeffizienzklasse | D |
107,4
kWh/(m²*a)
Energieeffizienzklasse D
- A+
- A
- B
- C
- D
- E
- F
- G
- H
- 0
- 25
- 50
- 75
- 100
- 125
- 150
- 175
- 200
- 225
- >250
Beschreibung des Objekts
Ausstattung
Terrasse, Garten, Keller, Duschbad, Gäste-WC, Parkett, Laminat, Fliesen
Bemerkungen:
Wohnfläche:Ca.90 qm
Nutzfläche : ca. 27 qm
Grundstück: ca. 102 qm
Gas und Wasser Installation: neu Viessmann 300
Elektroinstallation : komplett erneuert
2 neue Bäder mit Dusch/WC
Windfang und Anbau-Neubau
Decken und Dachkonstruktion-Neubau
Giebelwand-Neubau
Dämmung : Außenwände, Decken, Dach
Alu Zaun: neu
Parkplatz: neu
Lage
Zentral und ruhig in Frankfurt-Schwanheim, Flughafen Nähe und dennoch sehr ruhig, 15 Minuten ins Zentrum Frankfurt-City, Schwanheimer Wald ist ein paar Schritte entfernt
Infrastruktur (im Umkreis von 5 km):
Apotheke, Lebensmittel-Discount, Allgemeinmediziner, Kindergarten, Grundschule, Hauptschule, Realschule, Gymnasium, Gesamtschule, Öffentliche Verkehrsmittel
Sonstige Angaben
Heizungsart: Etagenheizung
Energieträger: Gas
Makleranfragen nicht erwünscht. Nach § 7 UWG sind unaufgeforderte Kontaktaufnahmen durch Makler ohne ausdrückliche Einwilligung des Empfängers verboten!
ohne-makler (OM) ist weder Anbieter noch Vermittler der Immobilie. OM betreibt eine Plattform für Immobilieneigentümer, die unter anderem die gleichzeitige Veröffentlichung einzelner Inserate auf mehreren Immobilienportalen ermöglicht. Die Inhalte dieser Inserate werden ausschließlich von Dritten verantwortet. Für die Richtigkeit, Vollständigkeit oder Rechtmäßigkeit der Angaben übernimmt OM keine Haftung. Hinweise auf mögliche Rechtsverstöße können jederzeit gemeldet werden und werden nach Prüfung umgehend bearbeitet.
Grundriss
Grandriss DG
>
>
Grundriss EG
>
>
Grundriss KG
>
>
Grundriss OG
>
>
Adresse
60529 Frankfurt am Main
Interessante Orte
Preis- und Lageinformationen
Preistrend für Bestandsimmobilien in Schwanheim