Dieses Mehrfamilienwohnhaus bietet drei aktuell vermietete Wohneinheiten, die durchdachte Grundrisse und vielfältige Nutzungsmöglichkeiten vereinen.
Die Wohnung im 1. Obergeschoss erstreckt sich über rund 128 m². Hier stehen ein großzügiger Wohn- und Essbereich mit angrenzender Küche, ein Badezimmer, ein Schlafzimmer sowie zwei weitere Zimmer zur Verfügung. Ein Balkon sorgt für zusätzlichen Wohnraum im Freien.
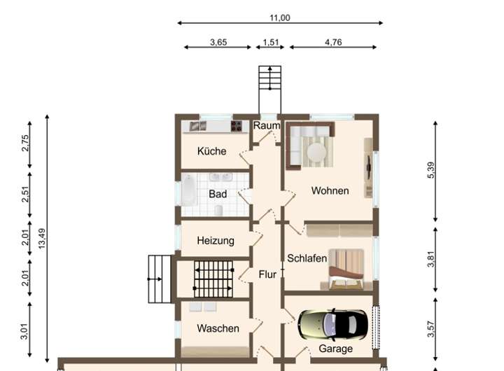
Auch im Erdgeschoss befindet sich eine Wohneinheit mit etwa 128 m² Wohnfläche. Der Grundriss gleicht weitgehend der oberen Etage und überzeugt ebenfalls mit einem weitläufigen Wohn- und Essbereich, angrenzender Küche, Badezimmer, Schlafzimmer und zwei weiteren Zimmern. Auch diese Wohnung verfügt über einen Balkon.
Das Untergeschoss beherbergt eine kleinere Wohnung mit ca. 70 m². Sie umfasst ein Wohnzimmer, eine Küche, ein Badezimmer, ein Schlafzimmer sowie einen praktischen Abstellraum. Zusätzlich verfügt diese Wohnung über eine eigene Terrasse mit direktem Zugang zum Garten - ideal für entspannte Stunden im Freien.
Ergänzt wird das Haus durch Kellerräume, Garagen und Stellplätze.
Ob als Zuhause für mehrere Generationen oder als Kapitalanlage – das Wohnhaus eröffnet verschiedene Perspektiven und bietet eine solide Grundlage für individuelle Wohn- und Nutzungskonzepte.
***Mehrfamilienhaus zwischen Natur und Zentrum***
65307 Bad Schwalbach
Die vollständige Adresse der Immobilie erhalten Sie vom Anbieter.
Auf Karte anzeigen
Die vollständige Adresse der Immobilie erhalten Sie vom Anbieter.
Finanzierungszertifikat
In nur zwei Minuten zu Ihrem persönlichen Finanzierungszertifkat.
Infos
| Haustyp | Mehrfamilienhaus |
|---|---|
| Wohnfläche ca. | 325 m2 |
| Grundstücksfläche | 453 m2 |
| Zimmer | 10 |
| Badezimmer | 3 |
Kosten
| Kaufpreis |
425.000 € |
|---|---|
| Provision |
2,975% inkl. MwSt.
Käuferprovision |
Finanzierungsrechner:
Kaufpreis:
600.000 €
Eigenkapital:
600.000 €
Monatliche Rate
0 €
Effektiver Jahreszins
0 %
Sollzinsbindung
10 Jahre
Bausubstanz & Energieausweis
| Baujahr | 1972 |
|---|---|
| Wesentliche Energieträger | Gas |
| Energieausweis | liegt vor |
| Energieausweistyp | Bedarfsausweis |
| Energieverbrauchskennwert | 195,7 kWh/(m²*a) |
| Energieeffizienzklasse | F |
195,7
kWh/(m²*a)
Energieeffizienzklasse F
- A+
- A
- B
- C
- D
- E
- F
- G
- H
- 0
- 25
- 50
- 75
- 100
- 125
- 150
- 175
- 200
- 225
- >250
Beschreibung des Objekts
Ausstattung
-Drei Wohneinheiten
-Garagen und Stellplätze
-Kunststofffenster 3-fach verglast im Erd- und Obergeschoss, aus 2010
-Kunststofffenster 2-fach verglast im Kellergeschoss
-Gasheizung aus 2001, Firma Buderus
- Jahresnettomieteinnahme: 22.080,00 €
Lage
Das Mehrfamilienwohnhaus befindet sich in direkter Ortslage von Langenseifen, einem Stadtteil von Bad Schwalbach. Ideal für alle, die das Ländliche schätzen, aber auf die Nähe zur Stadt nicht verzichten möchten.
Langenseifen ist ein charmant gelegener Stadtteil von Bad Schwalbach im hessischen Rheingau-Taunus-Kreis, rund sieben Kilometer westlich des Stadtzentrums gelegen.
Größere Einkaufsmöglichkeiten gibt es im Stadtteil Langenseifen selbst nicht. Für den täglichen Bedarf stehen jedoch im Stadtkern von Bad Schwalbach diverse Supermärkte, Bäckereien, Metzgereien sowie Fachgeschäfte zur Verfügung. Auch Kindergärten und Schulen befinden sich im etwa sieben Kilometer entfernten Bad Schwalbach.
Sonstige Angaben
Gefällt Ihnen unser Angebot? Dann zögern Sie nicht und melden sich bei uns.
Wir zeigen Ihnen das Anwesen in einem gemeinsamen Termin vor Ort und begleiten Sie bei den folgenden Schritten zum Kauf Ihres eigenen Zuhauses.
Sie haben Fragen zur Finanzierung oder suchen einen Finanzierungspartner? Auch hier stehen wir Ihnen gerne zur Seite.
Oder haben Sie gleichzeitig eine Immobilie zum Verkauf? Wir kümmern uns darum!
Wir haben dieses Exposé mit Sorgfalt und nach bestem Wissen erstellt. Das Angebot erfolgt freibleibend, alle Angaben beruhen auf uns erteilten Informationen von Dritten.
Zwischenverkauf und Irrtum bleiben vorbehalten.
Wir weisen darauf hin, dass vorhandene Grundrisse nicht maßstabsgetreu sind, Maße, Angaben und Details abweichen können. Für die Richtigkeit, Vollständigkeit und Aktualität der Angaben können wir keine Gewähr übernehmen, auch nicht für mögliche Folgenutzungen der Immobilie.
Die Funktionsfähigkeit der technischen Anlagen haben wir bestmöglich erfragt, können jedoch im Einzelfall hierfür keine Gewähr übernehmen.
Selbstverständlich erhalten Sie bei näherem Interesse die Möglichkeit, das Haus durch Experten Ihrer Wahl ausführlich prüfen und begutachten zu lassen. Für die Klärung Ihrer offenen Fragen stehen wir Ihnen gerne zur Verfügung.
Doch nicht die richtige Immobilie? Dann schauen Sie sich unser weiteres Angebot an: www.zimmermann-immobilien.eu
Grundriss
45105_735408_1945401_999-1150_
>
>
45105_735408_1945402_999-1150_
>
>
45105_735408_1945403_999-1150_
>
>
Adresse
65307 Bad Schwalbach
Interessante Orte
Preis- und Lageinformationen
Preistrend für Bestandsimmobilien in Bad Schwalbach