Im begehrten Wohngebiet Schleichenbach II steht dieses großzügige, komfortabel und hochwertig ausgestattete, freistehende Einfamilienhaus in Südlage mit unverbaubarem Blick.
Auf einer großzügigen Wohn- u. Nutzfläche von ca. 516 m² – ergänzt durch zusätzlichen Stauraum im Dachgeschoss – bietet Ihnen dieses Haus Raum für gehobenes Wohnen und individuelle Entfaltung.
Das in solider Massivbauweise errichtete Gebäude überzeugt mit einem hohen Wohnkomfort und großzügig geschnittenen Räumen. Besonders hervorzuheben ist der exzellente Schall- und Wärmeschutz, der ein angenehmes und ruhiges Wohnklima schafft.
Bereits beim Betreten des Hauses wird der hochwertige Anspruch spürbar. Die freitragende Treppe mit eleganten Glaselementen als seitlichem Schutz bildet ein architektonisches Highlight und gewährt einen ersten Eindruck der stilvollen Gesamtgestaltung.
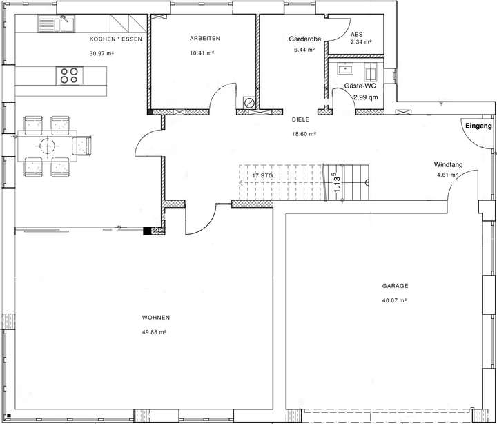
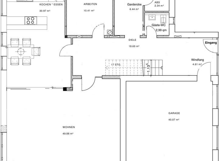
Die moderne, hochwertig ausgestattete Küche mit edlen Granit-Arbeitsflächen und einem integrierten Thekenbereich für bis zu vier Personen lädt sowohl zum gemütlichen Frühstück als auch zum gemeinsamen Kochen ein. Hochwertige Elektrogeräte und zahlreiche durchdachte Details sorgen für höchsten Komfort und Funktionalität.
Der offen gestaltete Küchen- und Essbereich (ca. 30 m²) geht über eine elegante Glaswand mit Schiebetür fließend in das großzügige Wohnzimmer mit ca. 50 m² über – ein Wohnensemble, das modernes Design und stilvolle Gemütlichkeit perfekt vereint.
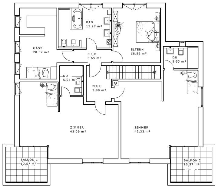
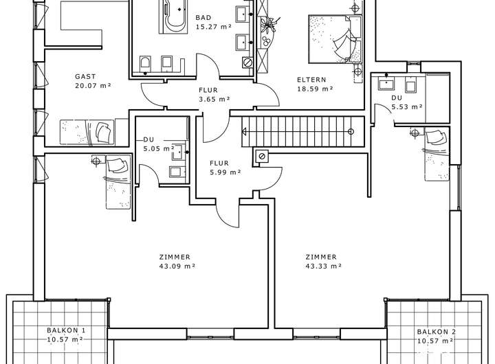
Insgesamt stehen vier Schlafzimmer im Obergeschoss zur Verfügung – zwei davon als großzügige Apartments mit jeweils ca. 43 m² Wohn- und Schlafbereich sowie eigenen Bädern (je ca. 5 m²) und fast vollständig überdachten Süd-Balkonen (je ca. 10 m²). Ein separater Eltern-Schlafbereich mit 2 Schlafzimmern und Masterbad bieten jedem Bewohner ausreichend Privatsphäre und Rückzugsmöglichkeiten.
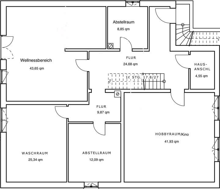
Im Untergeschoss erwartet Sie bei 2,50 m Deckenhöhe neben einem über 40 m² großen Hobby- oder Kinoraum ein exklusiver Wellnessbereich mit luxuriösem Whirlpool und großzügiger, bodengleicher Dusche – der ideale Ort für Erholung und Entspannung. Das gesamte Kellergeschoss ist hochwertig wohnlich ausgebaut, ebenfalls mit Fußbodenheizung und P4 Verglasung versehen.
Weitere Nutzräume stehen zur Verfügung.
Viele andere Ausstattungsdetails des Hauses erleben Sie am besten bei einer kurzfristigen Besichtigung.
Provisionsfrei! Exklusive Stadtvilla mit vielen Annehmlichkeiten
61250 Usingen
Die vollständige Adresse der Immobilie erhalten Sie vom Anbieter.
Auf Karte anzeigen
Die vollständige Adresse der Immobilie erhalten Sie vom Anbieter.
Finanzierungszertifikat
In nur zwei Minuten zu Ihrem persönlichen Finanzierungszertifkat.
Infos
| Haustyp | Einfamilienhaus |
|---|---|
| Wohnfläche ca. | 370 m2 |
| Nutzfläche | 145,21 m2 |
| Grundstücksfläche | 782 m2 |
| Zimmer | 7 |
| Schlafzimmer | 4 |
| Badezimmer | 3 |
| Anzahl Garage/Stellplatz | 5 |
Kosten
| Kaufpreis |
1.590.000 € |
|---|---|
| Provision | Nein |
Finanzierungsrechner:
Kaufpreis:
600.000 €
Eigenkapital:
600.000 €
Monatliche Rate
0 €
Effektiver Jahreszins
0 %
Sollzinsbindung
10 Jahre
Bausubstanz & Energieausweis
| Baujahr | 2014 |
|---|---|
| Qualität der Austattung | Luxus |
| Heizungsart | Fernwärme |
| Wesentliche Energieträger | Fernwärme |
| Energieausweis | liegt vor |
| Energieausweistyp | Verbrauchsausweis |
| Energieverbrauchskennwert | 44,0 kWh/(m²*a) |
| Energieeffizienzklasse | A |
44,0
kWh/(m²*a)
Energieeffizienzklasse A
- A+
- A
- B
- C
- D
- E
- F
- G
- H
- 0
- 25
- 50
- 75
- 100
- 125
- 150
- 175
- 200
- 225
- >250
Beschreibung des Objekts
Ausstattung
+ zwei große Jugendzimmer (ca. 43 m²) mit modernen Bädern und ca. 10 m² großen Balkonen mit teilweiser Überdachung
+ Fussbodenheizung in allen Etagen und in der Garage
+ Doppelgarage mit elektrischem Sektionaltor
+ Wallbox für Ihr Elektroauto
+ Wellnessbereich mit exklusivem Whirlpool sowie bodengleicher Dusche, Saunaanschluss vorhanden (ca. 43 m²)
+ Masterbad im Obergeschoss mit bodengleicher Dusche, Bidet, Toilette, Badewanne, hochwertigen Badmöbeln, zwei Waschbecken, Tageslicht
+ Wäscheabwurfschacht im Masterbad
+ Gäste-WC mit Tageslicht
+ Glaswand mit Schiebetür zwischen Esszimmer und Wohnzimmer
+ Sonnenterrasse ca. 46 m²
+ zweite Grill-Terrasse mit Bankirai-Holzboden
+ freitragende Treppe mit Sichtbetonstufen und Stufenbeleuchtung
+ Einbauküche mit modernen Marken-Elektrogeräten
+ elektrisches Zufahrtstor mit Fernbedienung
+ 4-fach verglaste Fenster extrem widerstandsfähig
+ Deckenhöhe im Wohnzimmer 2,87 m
+ Deckenhöhe im Untergeschoss 2,50 m
+ sehr guter Schall- und Wärmeschutz
+ Energieeffizienzhaus 55
+ elektrische Rollläden in allen Etagen
+ Wohnzimmer mit Deckenaufzug für Beamer
+ Heimkino ca. 40 m² mit großer Leinwand
+ große Waschküche
+ 2 weitere Abstellräume im Untergeschoss
+ Anschluss für Sauna vorhanden
+ separater Kellerzugang
+ schön eingewachsener Garten
+ Anschluss für Kamin im Wohnzimmer vorhanden
+ Vorbereitung für Photovoltaik vorhanden
+ 2 Garagenstellplätze im Haus
+ 2-3 Stellplätze auf dem Grundstück
Das Haus ist an ein modernes Nahwärmenetz (Holzpellet) angeschlossen und hat sehr niedrige Heiz- und Warmwasserkosten u.a. durch verbauten Hochwärmedämmstein und zusätzlicher Dämmung.
Lage
Das Einfamilienhaus befindet sich in bevorzugter Wohnlage von Usingen, in einer ruhigen Anliegerstraße mit familienfreundlichem Umfeld.
Alle wichtigen Einrichtungen des täglichen Bedarfs – Supermärkte, Bäcker, Apotheke, Ärzte sowie Schulen und Kindergärten – sind bequem zu Fuß oder mit dem Fahrrad erreichbar. Eine Bushaltestelle befindet sich nur wenige Gehminuten entfernt, der Bahnhof Usingen mit Anschluss an die Taunusbahn ist schnell erreichbar und sorgt für eine gute Anbindung in Richtung Frankfurt und Umgebung.
Zahlreiche Freizeit- und Erholungsmöglichkeiten wie Spazierwege, Spielplätze und der nahegelegene Naturpark Taunus bieten hohen Wohn- und Freizeitwert. Die Lage verbindet ruhiges Wohnen im Grünen mit städtischer Infrastruktur – ideal für Familien, Paare oder Berufspendler.
Die Autobahnen A3, A5 und A661 sind ca. 15-20 Autominuten entfernt.
Die Taunusbahn fährt über Bad Homburg zeitweise direkt bis Frankfurt am Main. Für die Zukunft ist auch der direkte Anschluss an das S-Bahnnetz (S5) geplant.
Sonstige Angaben
HAFTUNG:
Alle von uns angegebenen Objektinformationen oder Unterlagen zum Objekt beruhen auf Auskünften und Angaben des Verkäufers.
Für die Richtigkeit oder Vollständigkeit können wir daher keine Haftung übernehmen.
SERVICE FÜR VERKÄUFER:
Wenn Sie eine Immobilie verkaufen möchten oder wir Ihre Immobilie bewerten sollen, zögern Sie nicht mit uns Kontakt aufzunehmen. Dieser Service ist für Sie kostenlos.
Grundriss
Erdgeschoss
>
>
Obergeschoss
>
>
Untergeschoss
>
>
Adresse
61250 Usingen
Interessante Orte
Preis- und Lageinformationen
Preistrend für Bestandsimmobilien in Usingen