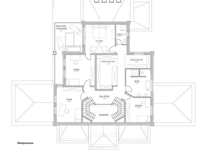
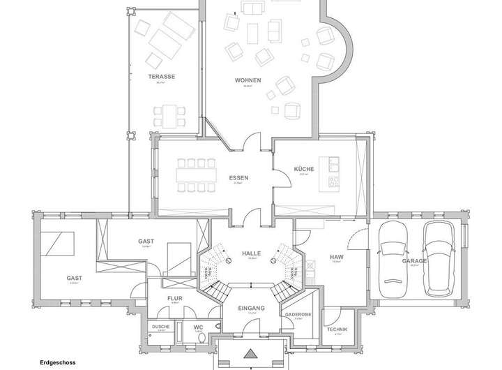
In einer der begehrtesten Lagen Hamburgs – im Herzen von Wellingsbüttel – eröffnet sich Ihnen die seltene Gelegenheit, ein außergewöhnliches Grundstück mit einem exklusiven Neubauprojekt zu realisieren. Hier präsentieren wir Ihnen ein durchdachtes Bebauungskonzept, das höchste architektonische Ansprüche erfüllt. Das ca. 2.835 m² große Grundstück liegt in einer ruhigen, begrünten Wohnstraße und ist von stilvollen Villen mit gepflegten Gärten umgeben. Die ideale Südausrichtung sorgt für lichtdurchflutete Innenräume und lange Sonnenstunden auf der Terrasse und im Garten. Das vorgesehene Baukonzept umfasst eine Villa der Extraklasse mit rund 420 m² Nettogrundfläche (DIN 277), organisiert über zwei Ebenen mit großzügiger Galerie, und kann je nach Raumbedarf individuell nach Ihren Wünschen gestaltet werden. Ca. drei Meter hohe Decken unterstreichen die eindrucksvolle Großzügigkeit der lichtdurchfluteten Räume. Der weitläufige Wohn- und Essbereich wird durch einen eleganten Kamin akzentuiert, der für eine einladende, stilvolle Atmosphäre sorgt. Die Ausstattung erfüllt höchste Ansprüche: edle Parkettböden, ausgewählte Design-Sanitäranlagen, modernste Haustechnik sowie die Energieeffizienzklasse A+ stehen für zeitgemäßen Wohnkomfort auf höchstem Niveau. Die Doppelgarage bietet ausreichend Platz für Ihre Fahrzeuge. Großformatige Panoramafenster schaffen fließende Übergänge zwischen Innen- und Außenbereich und eröffnen den Blick auf die großzügige Sonnenterrasse sowie den weitläufigen Garten. Das Grundstück ist vollständig erschlossen und sofort beplanbar. Dieses Angebot ist Ihre Gelegenheit, Ihren Traum von einem exklusiven Zuhause Wirklichkeit werden zu lassen.
Lebensqualität und klares Design in Top-Lage von Wellingsbüttel
22391 Hamburg
Die vollständige Adresse der Immobilie erhalten Sie vom Anbieter.
Auf Karte anzeigen
Die vollständige Adresse der Immobilie erhalten Sie vom Anbieter.
Finanzierungszertifikat
In nur zwei Minuten zu Ihrem persönlichen Finanzierungszertifkat.
Infos
| Haustyp | Villa |
|---|---|
| Etagenzahl | 2 |
| Wohnfläche ca. | 420 m2 |
| Grundstücksfläche | 2.835 m2 |
| Zimmer | 10 |
| Schlafzimmer | 6 |
| Badezimmer | 3 |
Kosten
| Kaufpreis |
6.795.000 € |
|---|---|
| Provision |
6,25 % inkl. MwSt. auf das Grundstück |
Finanzierungsrechner:
Kaufpreis:
600.000 €
Eigenkapital:
600.000 €
Monatliche Rate
0 €
Effektiver Jahreszins
0 %
Sollzinsbindung
10 Jahre
Bausubstanz & Energieausweis
| Baujahr | 2026 |
|---|---|
| Bauphase | Haus in Planung (projektiert) |
| Objektzustand | Erstbezug |
| Qualität der Austattung | Luxus |
| Heizungsart | Fußbodenheizung |
Beschreibung des Objekts
Ausstattung
Typisch Metis: Wir von MetisHaus haben ein hochwertiges Paket mit tollen Ausstattungsmerkmalen für Ihr neues Traumhaus geschnürt:
Bei Metis inklusive:
- Bauausführung nur durch Handwerksbetriebe aus der Region
- Bauherrenhaftpflichtversicherung
- Bauleistungsversicherung
- Bauschuttentsorgung
- Blower-Door-Test
- Fenster 3-fach verglast
- Sicherheitsfenster- und Rahmen nach RC2
- elektrische Rollläden im Erd- und Obergeschoss mit Aluminium Rollladenpanzer
- SmartHome-System mit Handysteuerung
- Luft-/Wasser-Wärmepumpe
- Fußbodenheizung
- Photovoltaik-Anlage
- Zentral kontrollierte Wohnraumbelüftungsanlage mit Wärmerückgewinnung
- Fertigstellungsbürgschaft
- Fliesenarbeiten im Format bis 60 cm x 60 cm (Materialpreis: € 100,00/ m²)
- Parkettfußböden (Materialpreis: € 100,00, /m²)
- Umbria 14 Weißlack Innentüren
- hochwertige Sanitärausstattung Villeroy & Boch Subway 3.0
- hochwertige Theano Badewanne Villeroy & Boch
- hochwertige Regenduschen
- ebenerdige Dusche
- Doppelwaschtisch
- Betoninnentreppe mit Parkett
- frostsicherer Außenwasseranschluss
- Fundamente und Sohlplatte
- hochwertige Hauseingangstür mit verglasten Seitenteilen
- Balkone mit Edelstahlhandlauf und Satinatoglas
- Fußbodenheizung im gesamten Haus
- Gewährleistung nach BGB (nicht VOB)
- individueller Entwurf Ihres Eigenheims
- Marken- und Qualitätsbaustoffe
- Massivbauweise
- Untersohlendämmung
- qualifizierte Bauleitung
- Stahlbetondecke
- Wärmschutzberechnung
- Zahlungen abschnittsweise nach Fertigstellung
- und vieles mehr
Lage
Wellingsbüttel ist ein attraktiver, grüner Stadtteil im Nordosten Hamburgs, im Bezirk Wandsbek. Der Ort ist geprägt durch hochwertige Einzelhausbebauung auf großzügigen, baumbestandenen Grundstücken.
Rund um den Ortskern finden sich zahlreiche Versorgungsmöglichkeiten: Supermarkt (REWE), Wochenmarkt, Bäckerei, Apotheke, Arztpraxen, Banken und gastronomische Angebote. Das nahegelegene Alstertal Einkaufszentrum bietet ein zusätzlich umfassendes Shopping Angebot sowie Fitnessstudios und vielfältige Gastronomie – erreichbar in etwa 5 Minuten mit dem Auto oder mit nur einer Station per S Bahn.
Der S Bahnhof Wellingsbüttel (Linie S1) liegt fußläufig entfernt – zirka 10 Minuten zu Fuß vom Zentrum. Von dort erreicht man den Hauptbahnhof ohne Umsteigen in etwa 25 Minuten und den Jungfernstieg in knapp 30 Minuten.
Sonstige Angaben
Die in den Exposés abgebildeten Häuser enthalten teilweise Sonderausstattungen.
Der genannte Verkaufspreis bezieht sich auf das Grundstück und Haus, zzgl. Baunebenkosten.
Das Grundstück ist aktuell mit einem Einfamilienhaus bebaut. Die Abrisskosten gehen zu Lasten des Käufers.
Die Angaben zum Grundstück beruhen auf Auskunft Dritter. Irrtum und Zwischenverkauf bleiben vorbehalten.
Bei dem dargestellten Bauvorhaben handelt es sich um einen Bebauungsvorschlag vorbehaltlich möglicher Auflagen durch das zuständige Bauamt.
Adresse
22391 Hamburg
Interessante Orte
Preis- und Lageinformationen
Preistrend für Bestandsimmobilien in Wellingsbüttel
>
>
>