Dieses historische und freistehende Einfamilien-Stadthaus aus dem Jahr 1908 wurde 2022 mit viel Liebe zum Detail und einem klaren Fokus auf Energieeffizienz und Wohnkomfort kernsaniert. Die historische Backsteinfassade wurde erhalten und durch eine hochwertige Innenisolierung ergänzt - ein gelungenes Zusammenspiel aus Altbaucharme und moderner Technik.
Die Sanierung umfasste unter anderem:
•Austausch aller Fenster durch 3-fach verglaste Modelle
•Installation einer leistungsstarken Wärmepumpe (auch für Erweiterung ausgelegt)
•Installation Entkalkungsanlage Gruenbeck
•Fußbodenheizung im Hauptbad
•WLAN Netwerk-Hub (im Keller) und Ethernet-Anschlüsse in allen Wohnräumen
•Erneuerung der Elektrik und Sanitärinstallationen
•Hochwertige neue interne Türen
•Ausbau des Hinterhauses mit Heizung und Klimaanlage in 2024
•Vollkeller mit Deckenisolierung, ideal als Lager- oder Hobbyfläche
Das Haus ist vollständig bezugsfertig - ohne Renovierungsstau, ohne offene Baustellen.
Bitte entnehmen Sie die detailierte Objektbechreibung des Exposes.
Einzigartiges, freistehendes Stadthaus mit Geschichte - stilvoll saniert, sofort bezugsbereit
65830 Kriftel
Die vollständige Adresse der Immobilie erhalten Sie vom Anbieter.
Auf Karte anzeigen
Die vollständige Adresse der Immobilie erhalten Sie vom Anbieter.
Finanzierungszertifikat
In nur zwei Minuten zu Ihrem persönlichen Finanzierungszertifkat.
Infos
| Haustyp | Einfamilienhaus |
|---|---|
| Etagenzahl | 2 |
| Wohnfläche ca. | 130 m2 |
| Grundstücksfläche | 432 m2 |
| Bezugsfrei ab | sofort |
| Zimmer | 5 |
| Schlafzimmer | 3 |
| Badezimmer | 2 |
| Garage/Stellplatz | Garage |
| Anzahl Garage/Stellplatz | 1 |
Kosten
| Kaufpreis |
950.000 € |
|---|---|
| Provision | Nein |
Finanzierungsrechner:
Kaufpreis:
600.000 €
Eigenkapital:
600.000 €
Monatliche Rate
0 €
Effektiver Jahreszins
0 %
Sollzinsbindung
10 Jahre
Bausubstanz & Energieausweis
| Baujahr | 1908 |
|---|---|
| Bauphase | Haus fertig gestellt |
| Objektzustand | Saniert |
| Heizungsart | Zentralheizung |
| Wesentliche Energieträger | Umweltwärme |
| Energieausweis | liegt vor |
| Energieausweistyp | Verbrauchsausweis |
| Energieverbrauchskennwert | 36,0 kWh/(m²*a) |
| Energieeffizienzklasse | A |
36,0
kWh/(m²*a)
Energieeffizienzklasse A
- A+
- A
- B
- C
- D
- E
- F
- G
- H
- 0
- 25
- 50
- 75
- 100
- 125
- 150
- 175
- 200
- 225
- >250
Beschreibung des Objekts
Ausstattung
Garten, Keller, Vollbad, Duschbad, Einbauküche, Sonstiges (s. Text)
Bemerkungen:
Bitte entnehmen Sie die detaillierte Beschreibung der Ausstattung dem Expose.
Lage
Kriftel liegt im Herzen des Vordertaunus und ist für viele noch ein Geheimtipp. Die Gemeinde verbindet ländliche Ruhe mit urbaner Nähe:
• S-Bahn-Station in 2 Gehminuten Entfernung
• Frankfurter Hauptbahnhof in unter 20 Minuten erreichbar
• Wiesbaden, Flughafen Frankfurt und A66 in direkter Nähe
Die Umgebung bietet alles, was das tägliche Leben angenehm macht:
• Rewe, Aldi, Alnatura und Hofläden fußläufig erreichbar
• Supermarkt, Cafés und Restaurants im Ortskern
• Freibad, Minigolf, Spazierwege entlang des Schwarzbachs
• Großer Freizeitpark mit Spiel- und Sportangeboten
• Grundschule und weiterführende Schule 200m entfernt
• Internationale Schule (IFS) nur eine S-Bahn-Station entfernt
Kriftel ist besonders attraktiv für Familien, Berufspendler und internationale Käufer, die Frankfurt als Arbeitsmittelpunkt schätzen, aber ein Zuhause mit Ruhe, Qualität und Charakter suchen.
Infrastruktur (im Umkreis von 5 km):
Apotheke, Lebensmittel-Discount, Allgemeinmediziner, Kindergarten, Grundschule, Hauptschule, Realschule, Gymnasium, Gesamtschule, Öffentliche Verkehrsmittel
Sonstige Angaben
Heizungsart: Zentralheizung
Makleranfragen nicht erwünscht. Nach § 7 UWG sind unaufgeforderte Kontaktaufnahmen durch Makler ohne ausdrückliche Einwilligung des Empfängers verboten!
ohne-makler (OM) ist weder Anbieter noch Vermittler der Immobilie. OM betreibt eine Plattform für Immobilieneigentümer, die unter anderem die gleichzeitige Veröffentlichung einzelner Inserate auf mehreren Immobilienportalen ermöglicht. Die Inhalte dieser Inserate werden ausschließlich von Dritten verantwortet. Für die Richtigkeit, Vollständigkeit oder Rechtmäßigkeit der Angaben übernimmt OM keine Haftung. Hinweise auf mögliche Rechtsverstöße können jederzeit gemeldet werden und werden nach Prüfung umgehend bearbeitet.
Weitere Dokumente
Exposé deutschExposé english
Energieausweis Kriftel
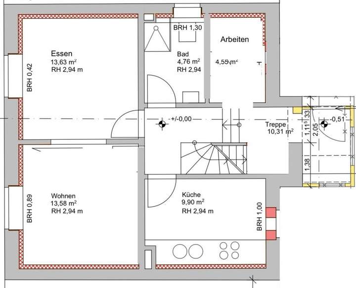
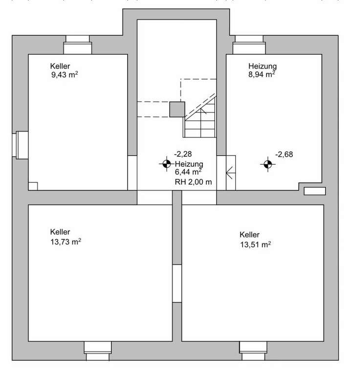
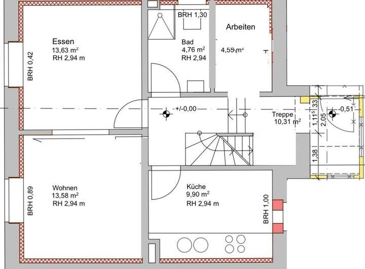
Grundriss
Grundriss KG
>
>
Grundriss EG
>
>
Grundriss OG
>
>
Adresse
65830 Kriftel
Interessante Orte
Preis- und Lageinformationen
Preistrend für Bestandsimmobilien in Kriftel