Dieses gepflegte Wohn-und Geschäftshaus liegt in Worms Hochheim ,nähe Pfrimmpark.
Die Aufteilung des Objektes:
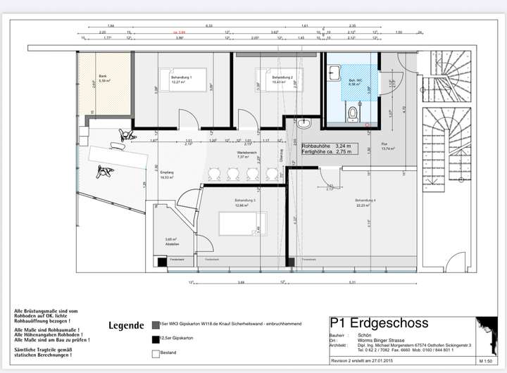
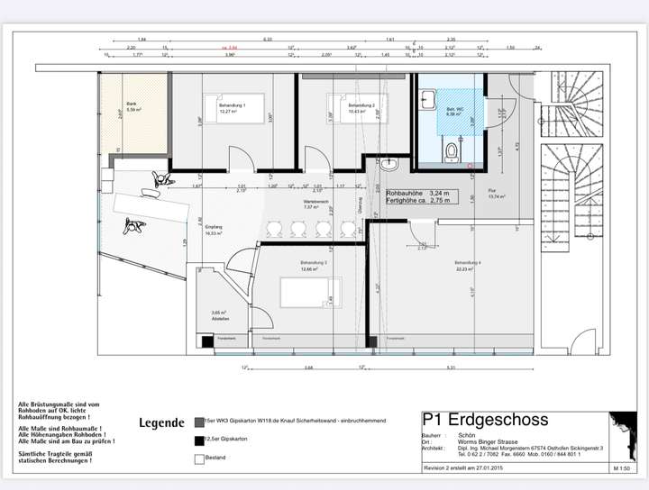
EG :Gewerbliche Etage ! Eingangsbereich, 4 Büroräume gehen von dem geräumigen Flur ab. Am Ende davon gibt es noch ein Badezimmer. Dazu gehört ein großer Keller mit ca. 70 qm.
Im 1 OG. befindet sich eine ansprechende und helle 4 Zi. Wohnung mit ca. 101 qm Wfl. 3 Schlafzimmer, großes Wohnzimmer mit Ausgang zum Balkon, Küche , Gäste WC und Tageslichtbad mit Wanne.
Im 2 OG. befindet sich die Wohnung mit dem gleichen Grundriss vom 1 OG. Außerdem gehört noch zu beiden Wohnungen jeweils ein Kellerraum mit dazu.
Im Aussenbereich steht noch eine überdachte Halle für Ihre Fahrzeuge bereit.
Großzügiges Wohn/Geschäftshaus in sehr guter Lage am Pfrimmpark!
67549 Worms
Die vollständige Adresse der Immobilie erhalten Sie vom Anbieter.
Auf Karte anzeigen
Die vollständige Adresse der Immobilie erhalten Sie vom Anbieter.
Finanzierungszertifikat
In nur zwei Minuten zu Ihrem persönlichen Finanzierungszertifkat.
Infos
| Haustyp | Mehrfamilienhaus |
|---|---|
| Etagenzahl | 2 |
| Wohnfläche ca. | 317 m2 |
| Nutzfläche | 90 m2 |
| Grundstücksfläche | 335 m2 |
| Bezugsfrei ab | Nach Absprache |
| Zimmer | 12 |
| Schlafzimmer | 9 |
| Badezimmer | 3 |
| Garage/Stellplatz | Carport |
| Anzahl Garage/Stellplatz | 2 |
Kosten
| Kaufpreis |
490.000 € |
|---|---|
| Provision |
5,95% inkl. gesetzl. MwSt. Käuferprovison |
| Mieteinnahmen | 2.280 € |
Finanzierungsrechner:
Kaufpreis:
600.000 €
Eigenkapital:
600.000 €
Monatliche Rate
0 €
Effektiver Jahreszins
0 %
Sollzinsbindung
10 Jahre
Bausubstanz & Energieausweis
| Baujahr | 1969 |
|---|---|
| Letzte Sanierung | 2014 |
| Qualität der Austattung | Normal |
| Heizungsart | Zentralheizung |
| Wesentliche Energieträger | Gas |
| Energieausweis | liegt zur Besichtigung vor |
Beschreibung des Objekts
Ausstattung
Das Haus ist 1969 erbaut und wurde Ende der 90 ziger zum Teil modernisiert .D.h. neue Alufenster , Elektro und Wasser wurden damals nur zum Teil modernisiert im Zuge der neuen Bäder. Die ursprüngliche Heizung ist aus 1989 . Aber der Brenner wurde 2005 erneuert.
Im Erdgeschoss wurde 2014 alles komplett saniert. ( Außer die Fenster).
Ob als Kapitalanlage ,oder zur eigenen Nutzung. Anschauen lohnt sich!
Lage
Diese Immobilie liegt in dem bevorzugten Wohngebiet ,Worms Hochheim mit seiner sehr guten Lage zum Pfrimmpark.
Gute und regelmäßige Busanbindung nach Worms zum Zentrum und Bahnhof sowie zur A 61. Gute Infrastruktur . Schulen, Kitas und Einkaufsmöglichkeiten, alles in näheren Umgebung.
Grundriss
EG
>
>
Keller
>
>
Keller
>
>
Grundriss Whg. 1.u. 2.OG
>
>
Adresse
67549 Worms
Interessante Orte
Preis- und Lageinformationen
Preistrend für Bestandsimmobilien in Hochheim