Das gepflegte Haus steht mit tollem Blick in die Weinberge im schönen Weinort Oberheimbach.
Das Haus wurde 1950 erbaut und 2002 kernsaniert. Dabei wurden u.a.
eine neue Öl Heizung, die Badezimmer, Kunstofffenster und Elektroleitungen erneuert.
Provisionsfrei von privat zu verkaufen.
Gepflegte Familienoase in den Weinbergen ×PROVISIONSFREI×
55413 Oberheimbach
Die vollständige Adresse der Immobilie erhalten Sie vom Anbieter.
Auf Karte anzeigen
Die vollständige Adresse der Immobilie erhalten Sie vom Anbieter.
Finanzierungszertifikat
In nur zwei Minuten zu Ihrem persönlichen Finanzierungszertifkat.
Infos
| Haustyp | Einfamilienhaus |
|---|---|
| Etagenzahl | 2 |
| Wohnfläche ca. | 172 m2 |
| Nutzfläche | 78,9 m2 |
| Grundstücksfläche | 212 m2 |
| Bezugsfrei ab | nach Absprache |
| Zimmer | 7 |
| Schlafzimmer | 7 |
| Badezimmer | 3 |
| Garage/Stellplatz | Außenstellplatz |
| Anzahl Garage/Stellplatz | 1 |
Kosten
| Kaufpreis |
199.000 € |
|---|---|
| Provision | Nein |
Finanzierungsrechner:
Kaufpreis:
600.000 €
Eigenkapital:
600.000 €
Monatliche Rate
0 €
Effektiver Jahreszins
0 %
Sollzinsbindung
10 Jahre
Bausubstanz & Energieausweis
| Baujahr | 1950 |
|---|---|
| Bauphase | Haus fertig gestellt |
| Objektzustand | Gepflegt |
| Heizungsart | Zentralheizung |
| Wesentliche Energieträger | Öl |
| Energieausweis | liegt vor |
| Energieausweistyp | Bedarfsausweis |
| Energieverbrauchskennwert | 145,6 kWh/(m²*a) |
| Energieeffizienzklasse | E |
145,6
kWh/(m²*a)
Energieeffizienzklasse E
- A+
- A
- B
- C
- D
- E
- F
- G
- H
- 0
- 25
- 50
- 75
- 100
- 125
- 150
- 175
- 200
- 225
- >250
Beschreibung des Objekts
Ausstattung
Terrasse, Garten, Keller, Vollbad, Duschbad, Sauna, Einbauküche, Gäste-WC, Laminat, Fliesen
Bemerkungen:
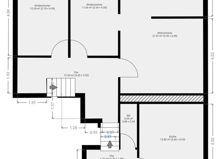
Die Immobilie steht auf einem 212m² großem Grundstück und verfügt über insgesamt 161 m² Wohnfläche, welche sich über 2 Stockwerke und ausgebautem Dachboden auf insgesamt 7 Zimmer, der Küche, einem Gäste WC sowie dem Hauptbad mit Dusche und Eckbadewanne verteilen. Im Keller steht Ihnen zusätzlich noch ein schönes Badezimmer mit Dusche zur Verfügung.
Die Einbauküche ist bereits im Kaufpreis enthalten.
Lage
Die Weinbaugemeinde Oberheimbach ist eine Ortsgemeinde im Landkreis Mainz-Bingen.
Im Ort befinden sich mehrere Restaurants, Hotels und Winzer. Ein kleiner Supermarkt befindet sich in ca. 5 Km Entfernung. Zahlreiche Einkaufsmöglichkeiten und Ärzte gibt es in Oberwesel oder Bingen, welche in ca. 15 Fahrminuten zu erreichen sind.
Über den öffentlichen Nahverkehr kann der 2 Km entfernte Bahnhof erreicht werden, von dem man eine schnelle Verbindung nach Mainz, Frankfurt oder Koblenz hat.
Die Grundschule ist für die Kinder innerhalb weniger Minuten mit dem Bus zu erreichen. Zu den weiterführenden Schulen besteht eine kurze Verbindung über das Schienennetz.
Infrastruktur (im Umkreis von 5 km):
Apotheke, Lebensmittel-Discount, Allgemeinmediziner, Kindergarten, Grundschule, Öffentliche Verkehrsmittel
Sonstige Angaben
Heizungsart: Zentralheizung
Energieträger: Öl
Makleranfragen nicht erwünscht. Nach § 7 UWG sind unaufgeforderte Kontaktaufnahmen durch Makler ohne ausdrückliche Einwilligung des Empfängers verboten!
ohne-makler (OM) ist weder Anbieter noch Vermittler der Immobilie. OM betreibt eine Plattform für Immobilieneigentümer, die unter anderem die gleichzeitige Veröffentlichung einzelner Inserate auf mehreren Immobilienportalen ermöglicht. Die Inhalte dieser Inserate werden ausschließlich von Dritten verantwortet. Für die Richtigkeit, Vollständigkeit oder Rechtmäßigkeit der Angaben übernimmt OM keine Haftung. Hinweise auf mögliche Rechtsverstöße können jederzeit gemeldet werden und werden nach Prüfung umgehend bearbeitet.
Adresse
55413 Oberheimbach
Interessante Orte
Preis- und Lageinformationen
Preistrend für Bestandsimmobilien in Oberheimbach