Diese elegante Villa im klassischen Stil erstreckt sich über drei Obergeschosse sowie ein voll ausgebautes Untergeschoss. Sie befindet sich in einer der beliebtesten Wohngegenden von Maintal-Bischofsheim. Das Anwesen wurde im 2024 von einem professionellen Team mit über 500.000 € komplett saniert. Großzügige Raumaufteilung, exklusive Details und hochwertige Materialien bieten höchsten Wohnkomfort – ideal für Familien mit gehobenen Ansprüchen.
Wohnfläche: ca. 290 m²
Grundstücksfläche: ca. 881 m²
Baujahr: 1988 (komplett kernsaniert)
6 Schlafzimmer + 1 Wohnzimmer + Weinkeller, Freizeitraum, Schwimmbad u.v.m.
Komplett hochwertig saniert– alle Rechnungen vorhanden
Ausgestattet mit hochwertigem chinesischem Massivholz-Mobiliar
Energieeffizienzklasse: Ursprünglich D, nach Sanierung deutlich verbessert.
Raumaufteilung
Im Erdgeschoss erwarten Sie der großzügige Wohnbereich mit Kamin, eine separate Küche sowie ein Schlafzimmer. Des Weiteren befinden sich hier ein Gäste-WC sowie das Schwimmbad mit angrenzender Außenterrasse. Der Innenbereich des Hauses ist offen gestaltet, welchen die freiliegende Treppe mit ihrem besonderen Charme unterstreicht.
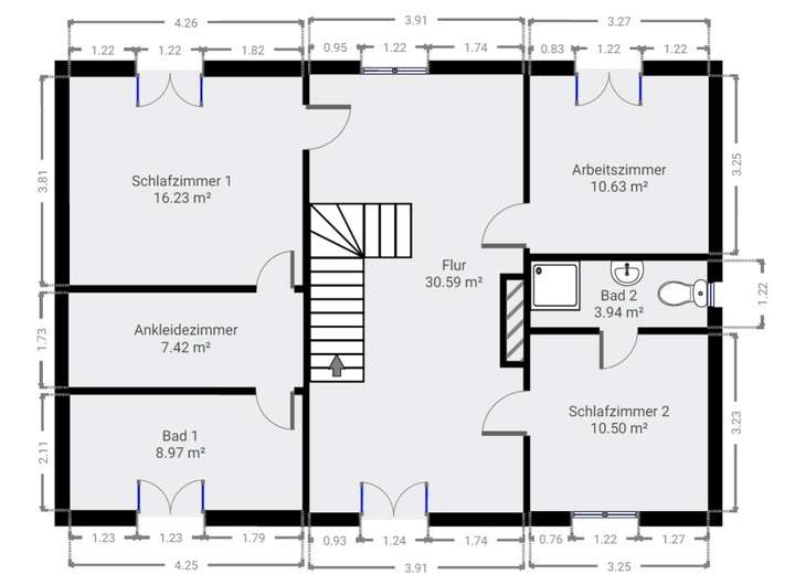
Das Obergeschoss verfügt über zwei Kinder- / Arbeitszimmer sowie ein Schlafzimmer, an das komfortabler Ankleidebereich und das Masterbad angrenzen.
Im zweiten Obergeschoss befinden sich zwei geräumige Arbeitszimmer bzw. Gastzimmer, ein Tageslichtbad mit Wanne und ein separates Gäste-WC.
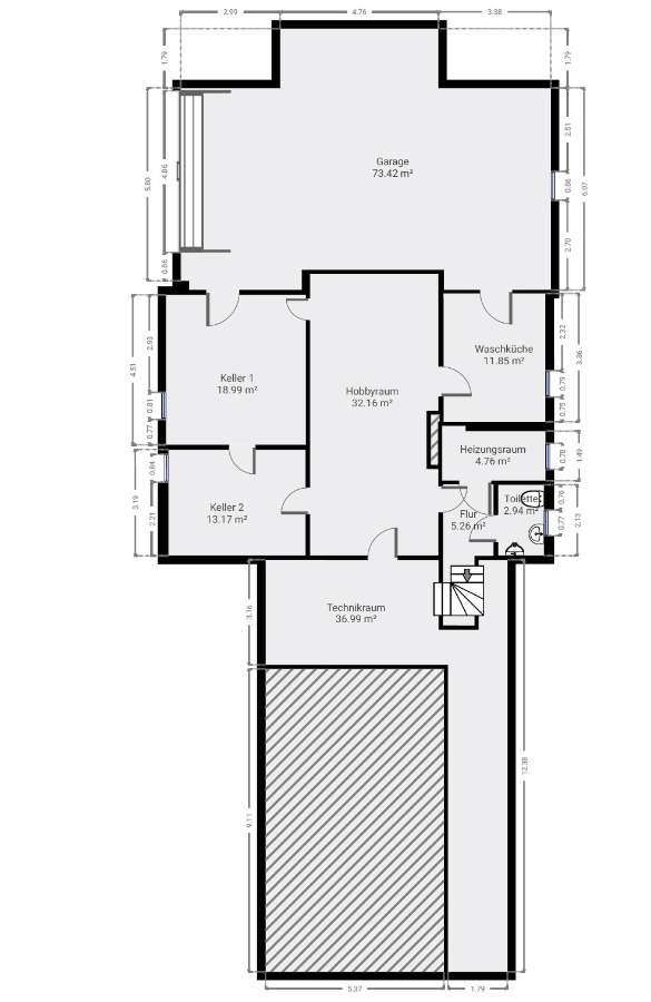
Zudem ist das Haus voll unterkellert. Im Untergeschoss befinden sich zwei Abstellräume, ein Gäste-WC, eine klassische Kellerbar und eine Waschküche.
Für Ihre PKWs sind vier Stellplätze in der Tiefgarage des Hauses vorgesehen.
Im Außenbereich steht Ihnen eine weitläufige Terrasse sowie der angrenzende Garten vor und hinter dem Haus zur Verfügung.
Erstbezug! Komplett sanierte freistehende Luxusvilla in begehrter Wohnlage
63447 Maintal
Die vollständige Adresse der Immobilie erhalten Sie vom Anbieter.
Auf Karte anzeigen
Die vollständige Adresse der Immobilie erhalten Sie vom Anbieter.
Finanzierungszertifikat
In nur zwei Minuten zu Ihrem persönlichen Finanzierungszertifkat.
Infos
| Haustyp | Einfamilienhaus |
|---|---|
| Wohnfläche ca. | 290 m2 |
| Nutzfläche | 407 m2 |
| Grundstücksfläche | 881 m2 |
| Bezugsfrei ab | 01.11.2025 |
| Zimmer | 7 |
| Schlafzimmer | 6 |
| Badezimmer | 4 |
| Garage/Stellplatz | Tiefgarage |
| Anzahl Garage/Stellplatz | 4 |
Kosten
| Kaufpreis |
1.320.000 € |
|---|---|
| Provision |
3,57%inkl. MwSt 3,57 % Käuferprovision inkl. MwSt., verdient und fällig mit Beurkundung des notariellen Kaufvertrages. Der Immobilienmakler hat einen provisionspflichtigen Maklervertrag mit dem Verkäufer in gleicher Höhe abgeschlossen. |
Finanzierungsrechner:
Kaufpreis:
600.000 €
Eigenkapital:
600.000 €
Monatliche Rate
0 €
Effektiver Jahreszins
0 %
Sollzinsbindung
10 Jahre
Bausubstanz & Energieausweis
| Baujahr | 1988 |
|---|---|
| Objektzustand | Saniert |
| Qualität der Austattung | Luxus |
| Heizungsart | Zentralheizung |
| Wesentliche Energieträger | Gas |
| Energieausweis | liegt vor |
| Energieausweistyp | Bedarfsausweis |
| Energieverbrauchskennwert | 140,5 kWh/(m²*a) |
| Energieeffizienzklasse | E |
140,5
kWh/(m²*a)
Energieeffizienzklasse E
- A+
- A
- B
- C
- D
- E
- F
- G
- H
- 0
- 25
- 50
- 75
- 100
- 125
- 150
- 175
- 200
- 225
- >250
Beschreibung des Objekts
Ausstattung
Umfangreiche und erstklassige Sanierung 2024
Alle Rechnungen vorhanden!
Küche:
Neue moderne Einbauküche der deutschen Marke PLANA mit Miele & Siemens iQ700 Geräten, Arbeitsplatten aus Nero Pretoria Granit, matten Marmor-Rückwänden und ultramatten Fronten.
Badezimmer:
4 komplett sanierte Badezimmer (davon 3 mit Fenster) + 2 Gäste-WCs, mit Marken wie Villeroy & Boch, GROHE, Geberit. Neu verlegte Wasserleitungen, Strom und Fliesen
Bodenbeläge:
224 m² hochwertiger, matt lackierter Eichenholz-Dielenboden aus dem Schwarzwald (Amadeus) neu verlegt
Eingangstür:
Neue doppelflügelige Aluminium-Haustür mit Sicherheitsverglasung und 5-fach-Verriegelung, Terrassentaugliche Abdichtung inklusive.
Elektrik & Wände:
Erneuerung der gesamten Elektrik, Glätten und Streichen der Wände und Decken mit umweltfreundlicher Farbe – von deutschen Handwerkern ausgeführt
Heizungssystem:
Neue Wasser-/Heizleitungen inkl. modernes Buderus-Heizkörper-System.
Im Zuge der Sanierung 2024 wurden moderne Heizkörper im 1. OG und DG sowie eine Kombination aus Heizkörpern und Fußbodenheizung im EG und UG neu installiert.
Fenster & Türen:
Neue Gealan S8000 Dreifachverglasung mit Einbruchschutz; Fenster im EG & Keller mit Sicherheitsbeschlägen + elektrischen Rollläden
Möblierung:
edle, aus China importierte, handgefertigte Möbel aus rotem Massivholz.
Weinkeller:
Traditionell gestalteter Weinkeller mit Holzverkleidung, Holzdecke, stilvoller Bar – ein privater Rückzugsort mit Charakter.
Lage
Top-Lage – Maintal-Bischofsheim
Die Immobilie liegt ruhig an einer kleinen Seitenstraße nahe des Mains, direkt am Waldrand – ideal für Familien, die Privatsphäre und Natur schätzen, aber dennoch zentral wohnen möchten.
Nur ca. 15 Minuten mit dem Auto in die Frankfurter Innenstadt
5 Minuten mit dem Bus zur U-Bahnstation Enkheim (U4/U7 Richtung Zentrum)
Maintal West S-Bahn-Station fußläufig erreichbar – zukünftig S6 direkt zur Frankfurter Hauptwache (ab ca. 2031). Dies stellt einen erheblichen Standortvorteil dar und bietet langfristiges Wertsteigerungspotenzial für die Umgebung.
4 Minuten zu zwei Autobahnanschlüssen A66 – perfekte Anbindung
Supermärkte, Schulen, Kitas, Sportvereine und Restaurants in unmittelbarer Umgebung
In wenigen Minuten mit dem Auto erreichbar: Hessen Center, Bauhaus, Tolliwood Kinderpark u.v.m.
Weitere Dokumente
Wohnflächenberechnung und G...Grundriss
Grundriss DG
>
>
Grundriss EG
>
>
Grundriss OG
>
>
Grundriss UG
>
>
Adresse
63447 Maintal
Interessante Orte
Preis- und Lageinformationen
Preistrend für Bestandsimmobilien in Maintal